Property
Account |
| Property ID: | 11629 | Abbreviated Legal Description: | HIGHLAND HEIGHTS LOT 8 |
| Parcel Number: | 360731520008 | Agent Code: | |
| Type: | Real | | |
| Tax Area: | 101 - 140-4 | Land Use Code | 11 |
| Open Space: | N | DFL | N |
| Historic Property: | N | Remodel Property: | N |
| Multi-Family Redevelopment: | N | | |
| Township: | 7 | Section: | 31 |
| Range: | 36 |
Location |
| Address: | 1485 HIGHLAND RD WA 99362 | Mapsco: | |
| Neighborhood: | G SFR Rural/City Inf | Map ID: | |
| Neighborhood CD: | 114012 |
Owner |
| Name: | LAWYER BEN & ASHLEY ANN | Owner ID: | 68759 |
| Mailing Address: | 1485 HIGHLAND RD WALLA WALLA, WA 99362 | % Ownership: | 100.0000000000% |
| | | Exemptions: | |
Taxes and Assessment Details
Property Tax Information as of
02/21/2026
Click on "Statement Details" to expand or collapse a tax statement.
* Please enter a valid date ** Please enter a valid date *
Statement Details |
| | TOTAL: | $0.00 | $0.00 | $0.00 | $0.00 | $0.00 | $0.00 |
|
| | $0.00 | $0.00 | $0.00 | $0.00 | $0.00 | $0.00 |
Values
| (+) Improvement Homesite Value: | + | $0 | |
| (+) Improvement Non-Homesite Value: | + | $356,480 | |
| (+) Land Homesite Value: | + | $0 | |
| (+) Land Non-Homesite Value: | + | $180,000 | |
| (+) Curr Use (HS): | + | $0 | $0 |
| (+) Curr Use (NHS): | + | $0 | $0 |
| | | -------------------------- | |
| (=) Market Value: | = | $536,480 | |
| (–) Productivity Loss: | – | $0 | |
| | | -------------------------- | |
| (=) Subtotal: | = | $536,480 | |
| (+) Senior Appraised Value: | + | $0 | |
| (+) Non-Senior Appraised Value: | + | $536,480 | |
| | | -------------------------- | |
| (=) Total Appraised Value: | = | $536,480 | |
| (–) Senior Exemption Loss: | – | $0 | |
| (–) Exemption Loss: | – | $0 | |
| | | -------------------------- | |
| (=) Taxable Value: | = | $536,480 | |
Taxing Jurisdiction
| Owner: | LAWYER BEN & ASHLEY ANN | | |
| % Ownership: | 100.0000000000% | | |
| Total Value: | $536,480 | | |
| Tax Area: | 101 - 140-4 |
| CERFD | CURRENT EXPENSE REFUND 010 | 0.0000000000 | $536,480 | $536,480 | $0.00 | | |
| CURREXP | CURRENT EXPENSE 010 | 0.9851088983 | $536,480 | $536,480 | $528.49 | | |
| HUMNSERV | HUMAN SERVICES 119 | 0.0250000000 | $536,480 | $536,480 | $13.41 | | |
| SLDREL | SOLDIERS RELIEF 121 | 0.0155990000 | $536,480 | $536,480 | $8.37 | | |
| EMERGSER | EMS 147 | 0.3676811629 | $536,480 | $536,480 | $197.25 | | |
| EMSRFD | EMS REFUND 147 | 0.0000000000 | $536,480 | $536,480 | $0.00 | | |
| FD4EXP | FD #4 EXPENSE 686 | 1.2367913128 | $536,480 | $536,480 | $663.51 | | |
| RLBRFD | RURAL LIBRARY REFUND 623 | 0.0000000000 | $536,480 | $536,480 | $0.00 | | |
| RURALLIB | RURAL LIBRARY 623 | 0.3601547782 | $536,480 | $536,480 | $193.22 | | |
| PORTRFD | PORT REFUND 640 | 0.0000000000 | $536,480 | $536,480 | $0.00 | | |
| PORTWWGEN | PORT OF WW 640 | 0.2344301070 | $536,480 | $536,480 | $125.77 | | |
| SD140BOND | SD #140 BOND 764 | 0.8032434458 | $536,480 | $536,480 | $430.92 | | |
| SD140CAP | SD #140 CAP 762 | 0.3840034221 | $536,480 | $536,480 | $206.01 | | |
| SD140GEN | SD #140 GENERAL 760 | 2.4999999996 | $536,480 | $536,480 | $1,341.20 | | |
| ST2 | STATE SCHOOL PART 2 600 | 0.8853714103 | $536,480 | $536,480 | $474.98 | | |
| STATESCHL | STATE SCHOOL 600 | 1.6424571473 | $536,480 | $536,480 | $881.15 | | |
| STREFUND | STATE REFUND LEVY 603 | 0.0000000000 | $536,480 | $536,480 | $0.00 | | |
| COROAD | COUNTY ROAD 115 | 1.6137667997 | $536,480 | $536,480 | $865.75 | | |
| CRPRD | COUNTY ROAD REFUND 115 | 0.0000000000 | $536,480 | $536,480 | $0.00 | | |
| | Total Tax Rate: | 11.0536074840 | | | | | |
| | | | | Taxes w/Current Exemptions: | $5,930.03 | | |
| | | | | Taxes w/o Exemptions: | $5,930.03 | | |
Improvement / Building
| Improvement #1: | RESIDENTIAL | State Code: | 11 | 2193.0 sqft | Value: | $356,480 |
| Exterior Wall: | PLYWOOD | Heating/Cooling: | WARM & COOLED AIR | | Number of Bathrooms: | 2 | Number of Bedrooms: | 4 | | Plumbing: | 10 | Roof Covering: | COMP SHINGLE |
|
| | Type | Description | Class CD | Sub Class CD | Year Built | Area |
| | MA | Main Area | 1 | 40 | 1975 | 2193.0 |
| | ATG | Attached Garage | 1 | 40 | 0 | 672.0 |
| | SI1 | SITE IMPROVEMENT | 1 | 40 | 0 | 3.5 |
| | BASE | BASEMENT | 1 | 40 | 1975 | 546.0 |
| | BRF | BASEMENT - REC FINISH | 1 | 40 | 1975 | 273.0 |
| | BARN | BARN-AVE | 1 | 40 | 1975 | 420.0 |
| | LEAN TO | LEAN TO | 1 | 40 | 1975 | 300.0 |
| | S1F | Single One Story Fireplace | 1 | 40 | 1975 | 1.0 |
| | PRC | PORCH W STEPS, ROOF,CEILED | 1 | 40 | 0 | 91.0 |
Sketch
Property Image
Land
| 1 | RES 1 | Converted: Residential | 1.0000 | 43560.00 | 0.00 | 0.00 | 1.00 | $180,000 | $0 |
Roll Value History
| 2026 | N/A | N/A | N/A | N/A | N/A |
| 2025 | $356,480 | $180,000 | $0 | $536,480 | $536,480 |
| 2024 | $419,380 | $120,000 | $0 | $539,380 | $539,380 |
| 2023 | $419,380 | $120,000 | $0 | $539,380 | $539,380 |
| 2022 | $419,380 | $120,000 | $0 | $539,380 | $539,380 |
| 2021 | $349,490 | $120,000 | $0 | $469,490 | $469,490 |
| 2020 | $232,990 | $120,000 | $0 | $352,990 | $352,990 |
| 2019 | $262,990 | $90,000 | $0 | $352,990 | $352,990 |
| 2018 | $239,090 | $90,000 | $0 | $329,090 | $329,090 |
| 2017 | $239,090 | $90,000 | $0 | $329,090 | $329,090 |
| 2016 | $217,350 | $90,000 | $0 | $307,350 | $307,350 |
| 2015 | $207,000 | $90,000 | $0 | $297,000 | $297,000 |
| 2014 | $207,000 | $90,000 | $0 | $297,000 | $297,000 |
| 2013 | $207,000 | $90,000 | $0 | $297,000 | $297,000 |
| 2012 | $180,000 | $90,000 | $0 | $0 | $0 |
| 2011 | $150,000 | $120,000 | $0 | $0 | $0 |
| 2010 | $150,000 | $120,000 | $0 | $0 | $0 |
| 2009 | $180,000 | $120,000 | $0 | $0 | $0 |
| 2008 | $157,200 | $45,000 | $0 | $0 | $0 |
| 2007 | $157,200 | $45,000 | $0 | $0 | $0 |
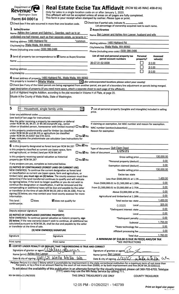
Deed and Sales History
| 1 | 01/26/2021 | QCD | QUIT CLAIM DEED | LAWYER ASHLEY ANN | LAWYER BEN & ASHLEY ANN | | | $130,000.00 | 140799 | 2021-00994 |
| 2 | 07/19/2016 | DPR | DEED OF PERSONAL REPRESENTATIVE | CORFIELD MARILYN | LAWYER ASHLEY ANN | | | $0.00 | 130711 | 2016-05910 |
| 3 | 05/25/2011 | WARRANTY D | WARRANTY DEED | CORFIELD TIMOTHY L | CORFIELD MARILYN | | | | 120190 | 2011-04085 |
| 4 | 01/01/1975 | WARRANTY D | WARRANTY DEED | | | | | $42,800.00 | 40521 | 2605-44217 |
|   | |
Payout Agreement
| No payout information available.. |