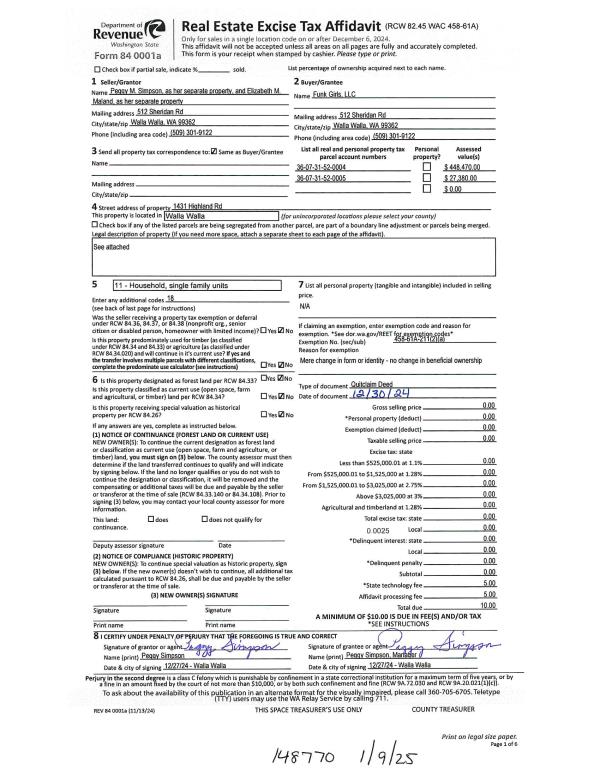
Property
Account |
| Property ID: | 11626 | Abbreviated Legal Description: | HIGHLAND HEIGHTS LOT 5 |
| Parcel Number: | 360731520005 | Agent Code: | |
| Type: | Real | | |
| Tax Area: | 101 - 140-4 | Land Use Code | 18 |
| Open Space: | N | DFL | N |
| Historic Property: | N | Remodel Property: | N |
| Multi-Family Redevelopment: | N | | |
| Township: | 7 | Section: | 31 |
| Range: | 36 |
Location |
| Address: | WA 99362 | Mapsco: | |
| Neighborhood: | G SFR Contig Rural/City Inf | Map ID: | |
| Neighborhood CD: | 114097 |
Owner |
| Name: | FUNK GIRLS LLC | Owner ID: | 76409 |
| Mailing Address: | 512 SHERIDAN RD WALLA WALLA, WA 99362 | % Ownership: | 100.0000000000% |
| | | Exemptions: | |
Taxes and Assessment Details
Property Tax Information as of
02/21/2026
Click on "Statement Details" to expand or collapse a tax statement.
* Please enter a valid date ** Please enter a valid date *
Statement Details |
| | TOTAL: | $0.00 | $0.00 | $0.00 | $0.00 | $0.00 | $0.00 |
|
| | $0.00 | $0.00 | $0.00 | $0.00 | $0.00 | $0.00 |
Values
| (+) Improvement Homesite Value: | + | $0 | |
| (+) Improvement Non-Homesite Value: | + | $22,380 | |
| (+) Land Homesite Value: | + | $0 | |
| (+) Land Non-Homesite Value: | + | $10,000 | |
| (+) Curr Use (HS): | + | $0 | $0 |
| (+) Curr Use (NHS): | + | $0 | $0 |
| | | -------------------------- | |
| (=) Market Value: | = | $32,380 | |
| (–) Productivity Loss: | – | $0 | |
| | | -------------------------- | |
| (=) Subtotal: | = | $32,380 | |
| (+) Senior Appraised Value: | + | $0 | |
| (+) Non-Senior Appraised Value: | + | $32,380 | |
| | | -------------------------- | |
| (=) Total Appraised Value: | = | $32,380 | |
| (–) Senior Exemption Loss: | – | $0 | |
| (–) Exemption Loss: | – | $0 | |
| | | -------------------------- | |
| (=) Taxable Value: | = | $32,380 | |
Taxing Jurisdiction
| Owner: | FUNK GIRLS LLC | | |
| % Ownership: | 100.0000000000% | | |
| Total Value: | $32,380 | | |
| Tax Area: | 101 - 140-4 |
| CERFD | CURRENT EXPENSE REFUND 010 | 0.0000000000 | $32,380 | $32,380 | $0.00 | | |
| CURREXP | CURRENT EXPENSE 010 | 0.9851088983 | $32,380 | $32,380 | $31.90 | | |
| HUMNSERV | HUMAN SERVICES 119 | 0.0250000000 | $32,380 | $32,380 | $0.81 | | |
| SLDREL | SOLDIERS RELIEF 121 | 0.0155990000 | $32,380 | $32,380 | $0.51 | | |
| EMERGSER | EMS 147 | 0.3676811629 | $32,380 | $32,380 | $11.91 | | |
| EMSRFD | EMS REFUND 147 | 0.0000000000 | $32,380 | $32,380 | $0.00 | | |
| FD4EXP | FD #4 EXPENSE 686 | 1.2367913128 | $32,380 | $32,380 | $40.05 | | |
| RLBRFD | RURAL LIBRARY REFUND 623 | 0.0000000000 | $32,380 | $32,380 | $0.00 | | |
| RURALLIB | RURAL LIBRARY 623 | 0.3601547782 | $32,380 | $32,380 | $11.66 | | |
| PORTRFD | PORT REFUND 640 | 0.0000000000 | $32,380 | $32,380 | $0.00 | | |
| PORTWWGEN | PORT OF WW 640 | 0.2344301070 | $32,380 | $32,380 | $7.59 | | |
| SD140BOND | SD #140 BOND 764 | 0.8032434458 | $32,380 | $32,380 | $26.01 | | |
| SD140CAP | SD #140 CAP 762 | 0.3840034221 | $32,380 | $32,380 | $12.43 | | |
| SD140GEN | SD #140 GENERAL 760 | 2.4999999996 | $32,380 | $32,380 | $80.95 | | |
| ST2 | STATE SCHOOL PART 2 600 | 0.8853714103 | $32,380 | $32,380 | $28.67 | | |
| STATESCHL | STATE SCHOOL 600 | 1.6424571473 | $32,380 | $32,380 | $53.18 | | |
| STREFUND | STATE REFUND LEVY 603 | 0.0000000000 | $32,380 | $32,380 | $0.00 | | |
| COROAD | COUNTY ROAD 115 | 1.6137667997 | $32,380 | $32,380 | $52.25 | | |
| CRPRD | COUNTY ROAD REFUND 115 | 0.0000000000 | $32,380 | $32,380 | $0.00 | | |
| | Total Tax Rate: | 11.0536074840 | | | | | |
| | | | | Taxes w/Current Exemptions: | $357.92 | | |
| | | | | Taxes w/o Exemptions: | $357.92 | | |
Improvement / Building
| Improvement #1: | RESIDENTIAL | State Code: | 18 | 0.0 sqft | Value: | $22,380 |
| | Type | Description | Class CD | Sub Class CD | Year Built | Area |
| | POL1 | POLE BUILDING-GRAVEL | 1 | 30 | 2004 | 1600.0 |
| | LNT | LEAN TO DIRT FLOOR | * | 30 | 2024 | 480.0 |
Sketch
Property Image
Land
| 1 | RES 1 | Converted: Residential | 1.0000 | 43560.00 | 0.00 | 0.00 | 1.00 | $10,000 | $0 |
Roll Value History
| 2026 | N/A | N/A | N/A | N/A | N/A |
| 2025 | $22,380 | $10,000 | $0 | $32,380 | $32,380 |
| 2024 | $22,380 | $5,000 | $0 | $27,380 | $27,380 |
| 2023 | $22,380 | $5,000 | $0 | $27,380 | $27,380 |
| 2022 | $22,380 | $5,000 | $0 | $27,380 | $27,380 |
| 2021 | $22,380 | $5,000 | $0 | $27,380 | $27,380 |
| 2020 | $22,380 | $5,000 | $0 | $27,380 | $27,380 |
| 2019 | $23,380 | $4,000 | $0 | $27,380 | $27,380 |
| 2018 | $22,270 | $4,000 | $0 | $26,270 | $26,270 |
| 2017 | $19,300 | $4,000 | $0 | $23,300 | $23,300 |
| 2016 | $19,300 | $4,000 | $0 | $23,300 | $23,300 |
| 2015 | $19,300 | $4,000 | $0 | $23,300 | $23,300 |
| 2014 | $19,300 | $4,000 | $0 | $23,300 | $23,300 |
| 2013 | $0 | $4,000 | $0 | $4,000 | $4,000 |
| 2012 | $0 | $4,000 | $0 | $0 | $0 |
| 2011 | $0 | $4,000 | $0 | $0 | $0 |
| 2010 | $0 | $4,000 | $0 | $0 | $0 |
| 2009 | $0 | $4,000 | $0 | $0 | $0 |
| 2008 | $0 | $6,000 | $0 | $0 | $0 |
| 2007 | $0 | $6,000 | $0 | $0 | $0 |
Deed and Sales History
| 1 | 01/09/2025 | QCD | QUIT CLAIM DEED | MALAND ELIZABETH F & PEGGY M SIMPSON | FUNK GIRLS LLC | | | | 148770 | 2025-00125 |
| 2 | 04/03/2017 | COURT CASE | COURT CASE | FUNK PEARL S LIFE ESTATE | MALAND ELIZABETH F & PEGGY M SIMPSON | | | | 0 | 17-4-00028-9 |
| 3 | 02/04/2000 | DEATH CERT | DEATH CERTIFICATE | FUNK PEARL S LIFE ESTATE | FUNK PEARL S LIFE ESTATE | | | | 0 | 2000-01173 |
| 4 | 04/01/1976 | WARRANTY D | WARRANTY DEED | | | | | $65,000.00 | 0 | 3905-52612 |
|   | |
Payout Agreement
| No payout information available.. |