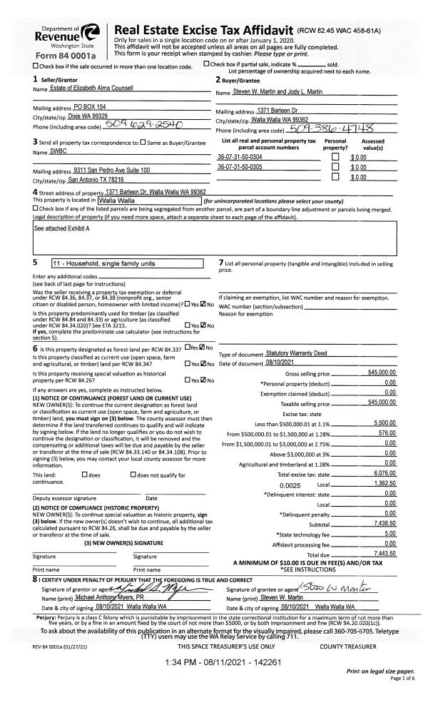
Property
Account |
| Property ID: | 11607 | Abbreviated Legal Description: | COUNTRY CLUB ESTATES LOT 4 BLK 3 |
| Parcel Number: | 360731500304 | Agent Code: | |
| Type: | Real | | |
| Tax Area: | 101 - 140-4 | Land Use Code | 11 |
| Open Space: | N | DFL | N |
| Historic Property: | N | Remodel Property: | N |
| Multi-Family Redevelopment: | N | | |
| Township: | 7 | Section: | 31 |
| Range: | 36 |
Location |
| Address: | 1371 BARLEEN DR WA 99362 | Mapsco: | |
| Neighborhood: | G SFR Rural/City Inf | Map ID: | |
| Neighborhood CD: | 114012 |
Owner |
| Name: | MARTIN STEVEN W & JODY L | Owner ID: | 70089 |
| Mailing Address: | 1371 BARLEEN DR WALLA WALLA, WA 99362 | % Ownership: | 100.0000000000% |
| | | Exemptions: | |
Taxes and Assessment Details
Property Tax Information as of
04/19/2026
Click on "Statement Details" to expand or collapse a tax statement.
* Please enter a valid date ** Please enter a valid date *
Statement Details |
| | TOTAL: | $0.00 | $0.00 | $0.00 | $0.00 | $0.00 | $0.00 |
|
| | $0.00 | $0.00 | $0.00 | $0.00 | $0.00 | $0.00 |
Values
| (+) Improvement Homesite Value: | + | $286,560 | |
| (+) Improvement Non-Homesite Value: | + | $34,340 | |
| (+) Land Homesite Value: | + | $108,170 | |
| (+) Land Non-Homesite Value: | + | $0 | |
| (+) Curr Use (HS): | + | $0 | $0 |
| (+) Curr Use (NHS): | + | $0 | $0 |
| | | -------------------------- | |
| (=) Market Value: | = | $429,070 | |
| (–) Productivity Loss: | – | $0 | |
| | | -------------------------- | |
| (=) Subtotal: | = | $429,070 | |
| (+) Senior Appraised Value: | + | $0 | |
| (+) Non-Senior Appraised Value: | + | $429,070 | |
| | | -------------------------- | |
| (=) Total Appraised Value: | = | $429,070 | |
| (–) Senior Exemption Loss: | – | $0 | |
| (–) Exemption Loss: | – | $0 | |
| | | -------------------------- | |
| (=) Taxable Value: | = | $429,070 | |
Taxing Jurisdiction
| Owner: | MARTIN STEVEN W & JODY L | | |
| % Ownership: | 100.0000000000% | | |
| Total Value: | $429,070 | | |
| Tax Area: | 101 - 140-4 |
| CERFD | CURRENT EXPENSE REFUND 010 | 0.0000000000 | $429,070 | $429,070 | $0.00 | | |
| CURREXP | CURRENT EXPENSE 010 | 1.0175366760 | $429,070 | $429,070 | $436.59 | | |
| HUMNSERV | HUMAN SERVICES 119 | 0.0250000000 | $429,070 | $429,070 | $10.73 | | |
| SLDREL | SOLDIERS RELIEF 121 | 0.0155990005 | $429,070 | $429,070 | $6.69 | | |
| EMERGSER | EMS 147 | 0.3792580840 | $429,070 | $429,070 | $162.73 | | |
| EMSRFD | EMS REFUND 147 | 0.0000000000 | $429,070 | $429,070 | $0.00 | | |
| FD4EXP | FD #4 EXPENSE 686 | 0.8836993059 | $429,070 | $429,070 | $379.17 | | |
| RLBRFD | RURAL LIBRARY REFUND 623 | 0.0000000000 | $429,070 | $429,070 | $0.00 | | |
| RURALLIB | RURAL LIBRARY 623 | 0.3710609029 | $429,070 | $429,070 | $159.21 | | |
| PORTRFD | PORT REFUND 640 | 0.0000000000 | $429,070 | $429,070 | $0.00 | | |
| PORTWWGEN | PORT OF WW 640 | 0.2460186015 | $429,070 | $429,070 | $105.56 | | |
| SD140BOND | SD #140 BOND 764 | 0.8342371393 | $429,070 | $429,070 | $357.95 | | |
| SD140GEN | SD #140 GENERAL 760 | 2.0646500647 | $429,070 | $429,070 | $885.88 | | |
| ST2 | STATE SCHOOL PART 2 600 | 0.8131451643 | $429,070 | $429,070 | $348.90 | | |
| STATESCHL | STATE SCHOOL 600 | 1.5158548041 | $429,070 | $429,070 | $650.41 | | |
| STREFUND | STATE REFUND LEVY 603 | 0.0000000000 | $429,070 | $429,070 | $0.00 | | |
| COROAD | COUNTY ROAD 115 | 1.6549953990 | $429,070 | $429,070 | $710.11 | | |
| CRPRD | COUNTY ROAD REFUND 115 | 0.0000000000 | $429,070 | $429,070 | $0.00 | | |
| | Total Tax Rate: | 9.8210551422 | | | | | |
| | | | | Taxes w/Current Exemptions: | $4,213.93 | | |
| | | | | Taxes w/o Exemptions: | $4,213.93 | | |
Improvement / Building
| Improvement #1: | RESIDENTIAL | State Code: | 11 | 1512.0 sqft | Value: | $286,560 |
| Exterior Wall: | VINYL | Heating/Cooling: | WARM & COOLED AIR | | Number of Bathrooms: | 2 | Number of Bedrooms: | 3 | | Plumbing: | 9 | Roof Covering: | COMP SHINGLE |
|
| | Type | Description | Class CD | Sub Class CD | Year Built | Area |
| | MA | Main Area | 1 | 30 | 1960 | 1512.0 |
| | ATG | Attached Garage | 1 | 30 | 0 | 576.0 |
| | SI1 | SITE IMPROVEMENT | 1 | 30 | 0 | 3.0 |
| | RPO | OPEN PORCH W/ROOF | 1 | 30 | 1960 | 50.0 |
| | CPC | COVERED CARPORT/PATIO | 1 | 30 | 0 | 240.0 |
| | S1F | Single One Story Fireplace | 1 | 30 | 1960 | 1.0 |
| | D1F | Double 1 Story Fireplace | 1 | 30 | 1960 | 1.0 |
| Improvement #2: | RESIDENTIAL | State Code: | 11 | 0.0 sqft | Value: | $34,340 |
Sketch
Property Image
Land
| 1 | RES 1 | Converted: Residential | 0.5941 | 25877.00 | 0.00 | 0.00 | 1.00 | $108,170 | $0 |
Roll Value History
| 2026 | N/A | N/A | N/A | N/A | N/A |
| 2025 | $406,970 | $159,660 | $0 | $566,630 | $566,630 |
| 2024 | $478,790 | $108,170 | $0 | $586,960 | $586,960 |
| 2023 | $320,900 | $108,170 | $0 | $429,070 | $429,070 |
| 2022 | $320,900 | $108,170 | $0 | $429,070 | $429,070 |
| 2021 | $160,450 | $108,170 | $0 | $268,620 | $268,620 |
| 2020 | $133,710 | $108,170 | $0 | $241,880 | $73,744 |
| 2019 | $176,880 | $65,000 | $0 | $241,880 | $92,714 |
| 2018 | $131,590 | $65,000 | $0 | $196,590 | $73,744 |
| 2017 | $125,330 | $65,000 | $0 | $190,330 | $73,744 |
| 2016 | $119,360 | $65,000 | $0 | $184,360 | $73,744 |
| 2015 | $133,700 | $65,000 | $0 | $198,700 | $198,700 |
| 2014 | $133,700 | $65,000 | $0 | $198,700 | $198,700 |
| 2013 | $133,700 | $65,000 | $0 | $198,700 | $198,700 |
| 2012 | $133,700 | $65,000 | $0 | $0 | $0 |
| 2011 | $133,700 | $65,000 | $0 | $0 | $0 |
| 2010 | $133,700 | $65,000 | $0 | $0 | $0 |
| 2009 | $155,800 | $65,000 | $0 | $0 | $0 |
| 2008 | $134,100 | $40,000 | $0 | $0 | $0 |
| 2007 | $134,100 | $40,000 | $0 | $0 | $0 |
Deed and Sales History
| 1 | 08/11/2021 | SWD | STATUTORY WARRANTY DEED | COUNSELL ELIZABETH A ESTATE OF | MARTIN STEVEN W & JODY L | | 2-PARCELS | $545,000.00 | 142261 | 2021-09790 |
|   | |
| 2 | 09/09/2016 | LOPA | LACK OF PROBATE AFFIDAVIT | COUNSELL D MARK | COUNSELL ELIZABETH A ESTATE OF | | | | 131001 | 2016-07370 |
| 3 | 02/28/1978 | WARRANTY D | WARRANTY DEED | | | | | $56,920.00 | 0 | 7778-01679 |
Payout Agreement
| No payout information available.. |