Property
Account |
| Property ID: | 1160 | Abbreviated Legal Description: | HANSON'S PARCEL #4 |
| Parcel Number: | 330734541604 | Agent Code: | |
| Type: | Real | | |
| Tax Area: | 318 - 300-6-TM | Land Use Code | 11 |
| Open Space: | N | DFL | N |
| Historic Property: | N | Remodel Property: | N |
| Multi-Family Redevelopment: | N | | |
| Township: | 7 | Section: | 34 |
| Range: | 33 |
Location |
| Address: | 397 BALM ST WA 99360 | Mapsco: | |
| Neighborhood: | A Touchet/Lowden SFR | Map ID: | |
| Neighborhood CD: | 213611 |
Owner |
| Name: | TURNER VERNA H | Owner ID: | 71050 |
| Mailing Address: | 397 BALM ST TOUCHET, WA 99360 | % Ownership: | 100.0000000000% |
| | | Exemptions: | |
Taxes and Assessment Details
Values
| (+) Improvement Homesite Value: | + | $0 | |
| (+) Improvement Non-Homesite Value: | + | $189,030 | |
| (+) Land Homesite Value: | + | $0 | |
| (+) Land Non-Homesite Value: | + | $60,000 | |
| (+) Curr Use (HS): | + | $0 | $0 |
| (+) Curr Use (NHS): | + | $0 | $0 |
| | | -------------------------- | |
| (=) Market Value: | = | $249,030 | |
| (–) Productivity Loss: | – | $0 | |
| | | -------------------------- | |
| (=) Subtotal: | = | $249,030 | |
| (+) Senior Appraised Value: | + | $0 | |
| (+) Non-Senior Appraised Value: | + | $249,030 | |
| | | -------------------------- | |
| (=) Total Appraised Value: | = | $249,030 | |
| (–) Senior Exemption Loss: | – | $0 | |
| (–) Exemption Loss: | – | $0 | |
| | | -------------------------- | |
| (=) Taxable Value: | = | $249,030 | |
Taxing Jurisdiction
| Owner: | TURNER VERNA H | | |
| % Ownership: | 100.0000000000% | | |
| Total Value: | $249,030 | | |
| Tax Area: | 318 - 300-6-TM |
| CERFD | CURRENT EXPENSE REFUND 010 | 0.0000000000 | $249,030 | $249,030 | $0.00 | | |
| CURREXP | CURRENT EXPENSE 010 | 1.0175366760 | $249,030 | $249,030 | $253.40 | | |
| HUMNSERV | HUMAN SERVICES 119 | 0.0250000000 | $249,030 | $249,030 | $6.23 | | |
| SLDREL | SOLDIERS RELIEF 121 | 0.0155990005 | $249,030 | $249,030 | $3.88 | | |
| EMERGSER | EMS 147 | 0.3792580840 | $249,030 | $249,030 | $94.45 | | |
| EMSRFD | EMS REFUND 147 | 0.0000000000 | $249,030 | $249,030 | $0.00 | | |
| FD6EXP | FD #6 EXPENSE 693 | 0.6692985746 | $249,030 | $249,030 | $166.68 | | |
| RLBRFD | RURAL LIBRARY REFUND 623 | 0.0000000000 | $249,030 | $249,030 | $0.00 | | |
| RURALLIB | RURAL LIBRARY 623 | 0.3710609029 | $249,030 | $249,030 | $92.41 | | |
| PORTRFD | PORT REFUND 640 | 0.0000000000 | $249,030 | $249,030 | $0.00 | | |
| PORTWWGEN | PORT OF WW 640 | 0.2460186015 | $249,030 | $249,030 | $61.27 | | |
| SD300BOND | SD #300 BOND 783 | 1.8964951620 | $249,030 | $249,030 | $472.28 | | |
| SD300GEN | SD #300 GENERAL 780 | 2.1198322866 | $249,030 | $249,030 | $527.90 | | |
| ST2 | STATE SCHOOL PART 2 600 | 0.8131451643 | $249,030 | $249,030 | $202.50 | | |
| STATESCHL | STATE SCHOOL 600 | 1.5158548041 | $249,030 | $249,030 | $377.49 | | |
| STREFUND | STATE REFUND LEVY 603 | 0.0000000000 | $249,030 | $249,030 | $0.00 | | |
| COROAD | COUNTY ROAD 115 | 1.6549953990 | $249,030 | $249,030 | $412.14 | | |
| CRPRD | COUNTY ROAD REFUND 115 | 0.0000000000 | $249,030 | $249,030 | $0.00 | | |
| | Total Tax Rate: | 10.7240946555 | | | | | |
| | | | | Taxes w/Current Exemptions: | $2,670.63 | | |
| | | | | Taxes w/o Exemptions: | $2,670.63 | | |
Improvement / Building
| Improvement #1: | RESIDENTIAL | State Code: | 11 | 1350.0 sqft | Value: | $189,030 |
| Exterior Wall: | PLYWOOD | Heating/Cooling: | BASEBOARD ELECTRIC | | Number of Bathrooms: | 2 | Number of Bedrooms: | 3 | | Plumbing: | 9 | Roof Covering: | COMP SHINGLE |
|
| | Type | Description | Class CD | Sub Class CD | Year Built | Area |
| | MA | Main Area | 1 | 30 | 1976 | 1350.0 |
| | SI1 | SITE IMPROVEMENT | 1 | 30 | 1976 | 1.0 |
| | ATG | Attached Garage | 1 | 30 | 1976 | 792.0 |
| | S1F | Single One Story Fireplace | 1 | 30 | 1976 | 1.0 |
| | SHOP | SHOP BUILDING | 1 | 30 | 1976 | 288.0 |
| | UTST | Utility Storage Shed | 1 | 30 | 1976 | 120.0 |
Sketch
Property Image
Land
| 1 | RES 1 | Converted: Residential | 1.0000 | 0.00 | 0.00 | 0.00 | 1.00 | $60,000 | $0 |
Roll Value History
| 2026 | N/A | N/A | N/A | N/A | N/A |
| 2025 | $189,030 | $60,000 | $0 | $249,030 | $249,030 |
| 2024 | $189,030 | $60,000 | $0 | $249,030 | $249,030 |
| 2023 | $189,030 | $60,000 | $0 | $249,030 | $249,030 |
| 2022 | $189,030 | $60,000 | $0 | $249,030 | $249,030 |
| 2021 | $135,020 | $60,000 | $0 | $195,020 | $195,020 |
| 2020 | $148,890 | $45,000 | $0 | $193,890 | $193,890 |
| 2019 | $148,890 | $45,000 | $0 | $193,890 | $193,890 |
| 2018 | $135,360 | $45,000 | $0 | $180,360 | $180,360 |
| 2017 | $135,360 | $45,000 | $0 | $180,360 | $180,360 |
| 2016 | $117,700 | $45,000 | $0 | $162,700 | $162,700 |
| 2015 | $117,700 | $45,000 | $0 | $162,700 | $162,700 |
| 2014 | $117,700 | $45,000 | $0 | $162,700 | $162,700 |
| 2013 | $117,700 | $45,000 | $0 | $162,700 | $162,700 |
| 2012 | $117,700 | $45,000 | $0 | $0 | $0 |
| 2011 | $117,700 | $45,000 | $0 | $0 | $0 |
| 2010 | $117,700 | $45,000 | $0 | $0 | $0 |
| 2009 | $135,800 | $35,000 | $0 | $0 | $0 |
| 2008 | $91,500 | $35,000 | $0 | $0 | $0 |
| 2007 | $91,500 | $35,000 | $0 | $0 | $0 |
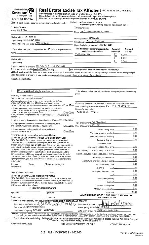
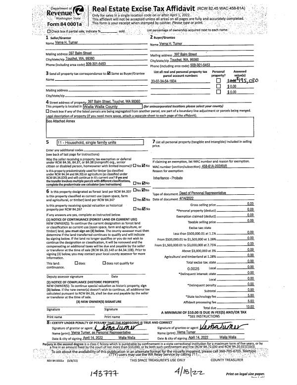
Deed and Sales History
| 1 | 04/14/2022 | DPR | DEED OF PERSONAL REPRESENTATIVE | SHORT JOE D | TURNER VERNA H | | | $0.00 | 143777 | 2022-03199 |
| 2 | | DEATH CERT | DEATH CERTIFICATE | SHORT JOE D & VERNA H TURNER JTWRS | TURNER VERNA H | | | | 0 | 2022-00839 |
| 3 | 10/26/2021 | QCD | QUIT CLAIM DEED | SHORT JOE D & VERNA H TURNER JTWROS | SHORT JOE D & VERNA H TURNER JTWRS | | | $0.00 | 142743 | 2021-12928 |
| 4 | 10/20/2021 | QCD | QUIT CLAIM DEED | SHORT JOE D | SHORT JOE D & VERNA H TURNER JTWROS | | | $0.00 | 142716 | 2021-12750 |
| 5 | 10/18/2002 | QCD | QUIT CLAIM DEED | PATTERSON, PEGGY | SHORT, JOE D | | | | 100624 | 2002-11777 |
| 6 | 04/09/1999 | WARRANTY D | WARRANTY DEED | | | | | $87,000.00 | 92532 | 2829-904366 |
Payout Agreement
| No payout information available.. |