Property
Account |
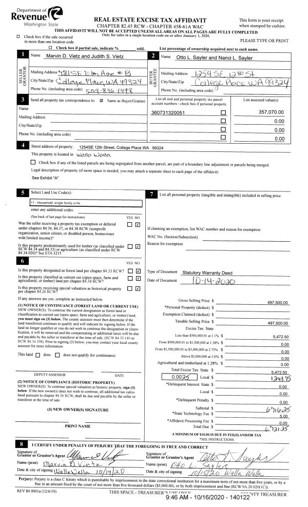
| Property ID: | 11571 | Abbreviated Legal Description: | 31-7-36 TAX 26B & 26D |
| Parcel Number: | 360731320051 | Agent Code: | |
| Type: | Real | | |
| Tax Area: | 105 - 140-F-4 | Land Use Code | 11 |
| Open Space: | N | DFL | N |
| Historic Property: | N | Remodel Property: | N |
| Multi-Family Redevelopment: | N | | |
| Township: | 7 | Section: | 31 |
| Range: | 36 |
Location |
| Address: | 1254 SE 12TH ST WA 99362 | Mapsco: | |
| Neighborhood: | A SFR | Map ID: | |
| Neighborhood CD: | 113011 |
Owner |
| Name: | SAYLER OTTO L & NANCI L | Owner ID: | 68130 |
| Mailing Address: | 1254 SE 12TH ST COLLEGE PLACE, WA 99324 | % Ownership: | 100.0000000000% |
| | | Exemptions: | |
Taxes and Assessment Details
Property Tax Information as of
02/21/2026
Click on "Statement Details" to expand or collapse a tax statement.
* Please enter a valid date ** Please enter a valid date *
Statement Details |
| | TOTAL: | $0.00 | $0.00 | $0.00 | $0.00 | $0.00 | $0.00 |
|
| | $0.00 | $0.00 | $0.00 | $0.00 | $0.00 | $0.00 |
Values
| (+) Improvement Homesite Value: | + | $0 | |
| (+) Improvement Non-Homesite Value: | + | $462,700 | |
| (+) Land Homesite Value: | + | $0 | |
| (+) Land Non-Homesite Value: | + | $90,000 | |
| (+) Curr Use (HS): | + | $0 | $0 |
| (+) Curr Use (NHS): | + | $0 | $0 |
| | | -------------------------- | |
| (=) Market Value: | = | $552,700 | |
| (–) Productivity Loss: | – | $0 | |
| | | -------------------------- | |
| (=) Subtotal: | = | $552,700 | |
| (+) Senior Appraised Value: | + | $0 | |
| (+) Non-Senior Appraised Value: | + | $552,700 | |
| | | -------------------------- | |
| (=) Total Appraised Value: | = | $552,700 | |
| (–) Senior Exemption Loss: | – | $0 | |
| (–) Exemption Loss: | – | $0 | |
| | | -------------------------- | |
| (=) Taxable Value: | = | $552,700 | |
Taxing Jurisdiction
| Owner: | SAYLER OTTO L & NANCI L | | |
| % Ownership: | 100.0000000000% | | |
| Total Value: | $552,700 | | |
| Tax Area: | 105 - 140-F-4 |
| CERFD | CURRENT EXPENSE REFUND 010 | 0.0000000000 | $552,700 | $552,700 | $0.00 | | |
| CURREXP | CURRENT EXPENSE 010 | 1.0175366760 | $552,700 | $552,700 | $562.39 | | |
| HUMNSERV | HUMAN SERVICES 119 | 0.0250000000 | $552,700 | $552,700 | $13.82 | | |
| SLDREL | SOLDIERS RELIEF 121 | 0.0155990005 | $552,700 | $552,700 | $8.62 | | |
| EMERGSER | EMS 147 | 0.3792580840 | $552,700 | $552,700 | $209.62 | | |
| EMSRFD | EMS REFUND 147 | 0.0000000000 | $552,700 | $552,700 | $0.00 | | |
| FD4EXP | FD #4 EXPENSE 686 | 0.8836993059 | $552,700 | $552,700 | $488.42 | | |
| RLBRFD | RURAL LIBRARY REFUND 623 | 0.0000000000 | $552,700 | $552,700 | $0.00 | | |
| RURALLIB | RURAL LIBRARY 623 | 0.3710609029 | $552,700 | $552,700 | $205.09 | | |
| PORTRFD | PORT REFUND 640 | 0.0000000000 | $552,700 | $552,700 | $0.00 | | |
| PORTWWGEN | PORT OF WW 640 | 0.2460186015 | $552,700 | $552,700 | $135.97 | | |
| SD140BOND | SD #140 BOND 764 | 0.8342371393 | $552,700 | $552,700 | $461.08 | | |
| SD140GEN | SD #140 GENERAL 760 | 2.0646500647 | $552,700 | $552,700 | $1,141.13 | | |
| ST2 | STATE SCHOOL PART 2 600 | 0.8131451643 | $552,700 | $552,700 | $449.43 | | |
| STATESCHL | STATE SCHOOL 600 | 1.5158548041 | $552,700 | $552,700 | $837.81 | | |
| STREFUND | STATE REFUND LEVY 603 | 0.0000000000 | $552,700 | $552,700 | $0.00 | | |
| COROAD | COUNTY ROAD 115 | 1.6549953990 | $552,700 | $552,700 | $914.72 | | |
| CRPRD | COUNTY ROAD REFUND 115 | 0.0000000000 | $552,700 | $552,700 | $0.00 | | |
| | Total Tax Rate: | 9.8210551422 | | | | | |
| | | | | Taxes w/Current Exemptions: | $5,428.10 | | |
| | | | | Taxes w/o Exemptions: | $5,428.10 | | |
Improvement / Building
| Improvement #1: | RESIDENTIAL | State Code: | 11 | 2421.0 sqft | Value: | $462,700 |
| Exterior Wall: | PLYWOOD | Heating/Cooling: | WARM & COOLED AIR | | Number of Bathrooms: | 2.5 | Number of Bedrooms: | 3 | | Plumbing: | 13 | Roof Covering: | COMP SHINGLE |
|
| | Type | Description | Class CD | Sub Class CD | Year Built | Area |
| | MA | Main Area | 1 | 40 | 1989 | 2421.0 |
| | SI1 | SITE IMPROVEMENT | 1 | 40 | 1989 | 3.0 |
| | ATG | Attached Garage | 1 | 40 | 1989 | 1135.0 |
| | S1F | Single One Story Fireplace | 1 | 40 | 1989 | 1.0 |
| | TOOL | TOOL SHED | 1 | 40 | 1989 | 128.0 |
| | RPC | OPEN PORCH W/ROOF , CEILED | 1 | 40 | 1989 | 47.0 |
| | WOD | Wood Deck | 1 | 40 | 1989 | 216.0 |
Sketch
Property Image
Land
| 1 | RES 1 | Converted: Residential | 1.0000 | 0.00 | 0.00 | 0.00 | 1.00 | $90,000 | $0 |
Roll Value History
| 2026 | N/A | N/A | N/A | N/A | N/A |
| 2025 | $393,290 | $150,000 | $0 | $543,290 | $543,290 |
| 2024 | $462,700 | $90,000 | $0 | $552,700 | $552,700 |
| 2023 | $462,700 | $90,000 | $0 | $552,700 | $552,700 |
| 2022 | $440,670 | $90,000 | $0 | $530,670 | $530,670 |
| 2021 | $400,610 | $90,000 | $0 | $490,610 | $490,610 |
| 2020 | $267,070 | $90,000 | $0 | $357,070 | $357,070 |
| 2019 | $282,070 | $75,000 | $0 | $357,070 | $357,070 |
| 2018 | $201,480 | $75,000 | $0 | $276,480 | $276,480 |
| 2017 | $201,480 | $75,000 | $0 | $276,480 | $276,480 |
| 2016 | $167,900 | $75,000 | $0 | $242,900 | $242,900 |
| 2015 | $167,900 | $75,000 | $0 | $242,900 | $242,900 |
| 2014 | $167,900 | $75,000 | $0 | $242,900 | $242,900 |
| 2013 | $167,900 | $75,000 | $0 | $242,900 | $242,900 |
| 2012 | $194,900 | $75,000 | $0 | $0 | $0 |
| 2011 | $194,900 | $75,000 | $0 | $0 | $0 |
| 2010 | $194,900 | $75,000 | $0 | $0 | $0 |
| 2009 | $224,900 | $75,000 | $0 | $0 | $0 |
| 2008 | $107,500 | $45,000 | $0 | $0 | $0 |
| 2007 | $107,500 | $45,000 | $0 | $0 | $0 |
Deed and Sales History
| 1 | 10/16/2020 | SWD | STATUTORY WARRANTY DEED | VIETZ MARVIN D & JUDITH S | SAYLER OTTO L & NANCI L | | | $497,500.00 | 140122 | 2020-10718 |
| 2 | 08/01/2002 | WARRANTY D | WARRANTY DEED | PERRY, WILLIAM F & JANE | VIETZ, MARVIN D & JUDITH S | | | $150,000.00 | 100073 | 2002-008667 |
Payout Agreement
| No payout information available.. |