Property
Account |
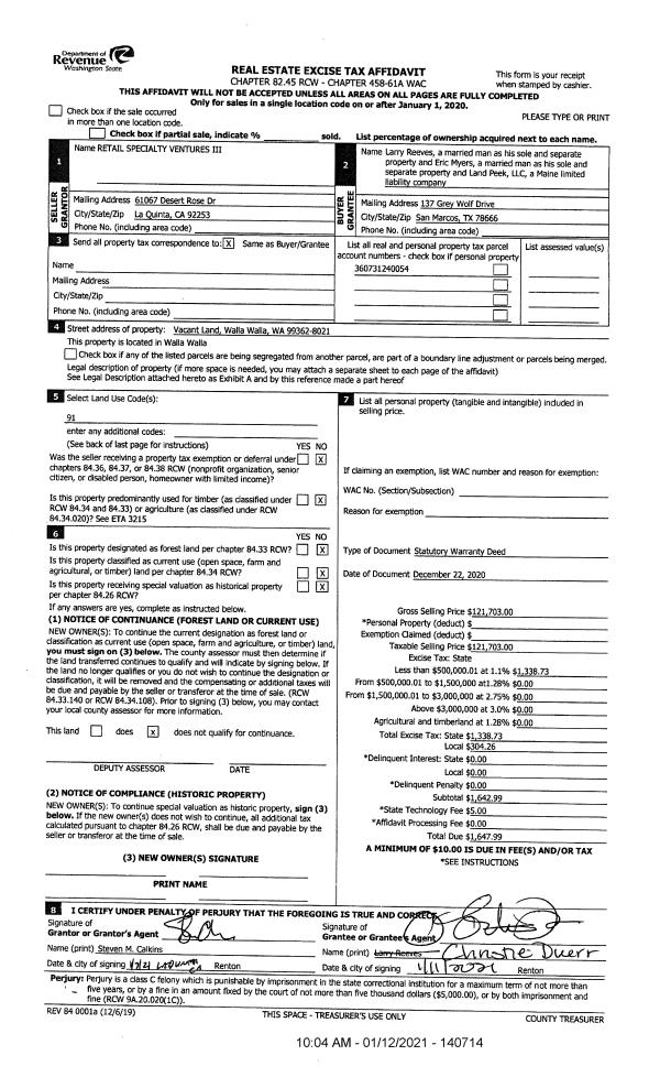
| Property ID: | 11563 | Abbreviated Legal Description: | 31-7-36 (LOT 4 OF BINDING SITE PLAN) WITHIN SE1/4NW1/4 PARCEL 54 |
| Parcel Number: | 360731240054 | Agent Code: | |
| Type: | Real | | |
| Tax Area: | 1 - OL-140-F | Land Use Code | 91 |
| Open Space: | N | DFL | N |
| Historic Property: | N | Remodel Property: | N |
| Multi-Family Redevelopment: | N | | |
| Township: | 7 | Section: | 31 |
| Range: | 36 |
Location |
| Address: | 1703 TWIN CREEK PL WALLA WALLA, WA 99362 | Mapsco: | |
| Neighborhood: | COLLEGE PLACE 1 | Map ID: | |
| Neighborhood CD: | 1341 |
Owner |
| Name: | STONECREEK CUSTOM HOMES LLC | Owner ID: | 64909 |
| Mailing Address: | 3064 S 3RD AVE WALLA WALLA, WA 99362 | % Ownership: | 100.0000000000% |
| | | Exemptions: | |
Taxes and Assessment Details
Values
| (+) Improvement Homesite Value: | + | $0 | |
| (+) Improvement Non-Homesite Value: | + | $0 | |
| (+) Land Homesite Value: | + | $0 | |
| (+) Land Non-Homesite Value: | + | $319,500 | |
| (+) Curr Use (HS): | + | $0 | $0 |
| (+) Curr Use (NHS): | + | $0 | $0 |
| | | -------------------------- | |
| (=) Market Value: | = | $319,500 | |
| (–) Productivity Loss: | – | $0 | |
| | | -------------------------- | |
| (=) Subtotal: | = | $319,500 | |
| (+) Senior Appraised Value: | + | $0 | |
| (+) Non-Senior Appraised Value: | + | $319,500 | |
| | | -------------------------- | |
| (=) Total Appraised Value: | = | $319,500 | |
| (–) Senior Exemption Loss: | – | $0 | |
| (–) Exemption Loss: | – | $0 | |
| | | -------------------------- | |
| (=) Taxable Value: | = | $319,500 | |
Taxing Jurisdiction
| Owner: | STONECREEK CUSTOM HOMES LLC | | |
| % Ownership: | 100.0000000000% | | |
| Total Value: | $319,500 | | |
| Tax Area: | 1 - OL-140-F |
| CERFD | CURRENT EXPENSE REFUND 010 | 0.0000000000 | $319,500 | $319,500 | $0.00 | | |
| CURREXP | CURRENT EXPENSE 010 | 1.0175366760 | $319,500 | $319,500 | $325.10 | | |
| HUMNSERV | HUMAN SERVICES 119 | 0.0250000000 | $319,500 | $319,500 | $7.99 | | |
| SLDREL | SOLDIERS RELIEF 121 | 0.0155990005 | $319,500 | $319,500 | $4.98 | | |
| EMERGSER | EMS 147 | 0.3792580840 | $319,500 | $319,500 | $121.17 | | |
| EMSRFD | EMS REFUND 147 | 0.0000000000 | $319,500 | $319,500 | $0.00 | | |
| PORTRFD | PORT REFUND 640 | 0.0000000000 | $319,500 | $319,500 | $0.00 | | |
| PORTWWGEN | PORT OF WW 640 | 0.2460186015 | $319,500 | $319,500 | $78.60 | | |
| SD140BOND | SD #140 BOND 764 | 0.8342371393 | $319,500 | $319,500 | $266.54 | | |
| SD140GEN | SD #140 GENERAL 760 | 2.0646500647 | $319,500 | $319,500 | $659.66 | | |
| ST2 | STATE SCHOOL PART 2 600 | 0.8131451643 | $319,500 | $319,500 | $259.80 | | |
| STATESCHL | STATE SCHOOL 600 | 1.5158548041 | $319,500 | $319,500 | $484.32 | | |
| STREFUND | STATE REFUND LEVY 603 | 0.0000000000 | $319,500 | $319,500 | $0.00 | | |
| CWWBOND | C OF WW BOND 643 | 0.2760494372 | $319,500 | $319,500 | $88.20 | | |
| CWWGEN | CITY OF WW 631 | 1.6100204973 | $319,500 | $319,500 | $514.40 | | |
| CWWRFD | CITY OF WALLA WALLA REFUND 631 | 0.0000000000 | $319,500 | $319,500 | $0.00 | | |
| | Total Tax Rate: | 8.7973694689 | | | | | |
| | | | | Taxes w/Current Exemptions: | $2,810.76 | | |
| | | | | Taxes w/o Exemptions: | $2,810.76 | | |
Improvement / Building
Sketch
| No sketches available for this property. |
Property Image
Land
| 1 | COM 1 | Converted: Commercial | 1.3400 | 58370.40 | 0.00 | 0.00 | 1.00 | $319,500 | $0 |
Roll Value History
| 2026 | N/A | N/A | N/A | N/A | N/A |
| 2025 | $0 | $319,500 | $0 | $319,500 | $319,500 |
| 2024 | $0 | $319,500 | $0 | $319,500 | $319,500 |
| 2023 | $0 | $319,500 | $0 | $319,500 | $319,500 |
| 2022 | $0 | $319,500 | $0 | $319,500 | $319,500 |
| 2021 | $0 | $319,500 | $0 | $319,500 | $319,500 |
| 2020 | $0 | $319,500 | $0 | $319,500 | $319,500 |
| 2019 | $0 | $262,600 | $0 | $262,600 | $262,600 |
| 2018 | $0 | $262,600 | $0 | $262,600 | $262,600 |
| 2017 | $0 | $262,600 | $0 | $262,600 | $262,600 |
| 2016 | $0 | $262,600 | $0 | $262,600 | $262,600 |
| 2015 | $0 | $262,600 | $0 | $262,600 | $262,600 |
| 2014 | $0 | $262,600 | $0 | $262,600 | $262,600 |
| 2013 | $0 | $262,600 | $0 | $262,600 | $262,600 |
| 2012 | $0 | $262,600 | $0 | $0 | $0 |
| 2011 | $0 | $262,600 | $0 | $0 | $0 |
| 2010 | $0 | $262,600 | $0 | $0 | $0 |
| 2009 | $0 | $262,600 | $0 | $0 | $0 |
| 2008 | $0 | $175,100 | $0 | $0 | $0 |
| 2007 | $0 | $175,100 | $0 | $0 | $0 |
Deed and Sales History
| 1 | 11/10/2022 | SWD | STATUTORY WARRANTY DEED | REEVES LARRY | STONECREEK CUSTOM HOMES LLC | | | $160,000.00 | 145001 | 2022-09061 |
| 2 | 01/12/2021 | SWD | STATUTORY WARRANTY DEED | RETAIL SPECIALTY VENTURES III | REEVES LARRY | | | $121,703.00 | 140714 | 2021-00477 |
| 3 | 10/29/2001 | WARRANTY D | WARRANTY DEED | | | | | $150,000.00 | 98250 | 3210-111599 |
Payout Agreement
| No payout information available.. |