Property
Account |
| Property ID: | 11501 | Abbreviated Legal Description: | TOWNSENDS PARCEL B OF S/P (ELY PTNS OF LOTS 9 AND 10) BLK 3 |
| Parcel Number: | 360730550311 | Agent Code: | |
| Type: | Real | | |
| Tax Area: | 1 - OL-140-F | Land Use Code | 46 |
| Open Space: | N | DFL | N |
| Historic Property: | N | Remodel Property: | N |
| Multi-Family Redevelopment: | N | | |
| Township: | 7 | Section: | 30 |
| Range: | 36 |
Location |
| Address: | 814 S 9TH AVE WA 99362 | Mapsco: | |
| Neighborhood: | | Map ID: | |
| Neighborhood CD: | 3342 |
Owner |
| Name: | MC DONALDS REAL ESTATE COMPANY | Owner ID: | 57270 |
| Mailing Address: | MC DONALDS CORPORATION 6515 W CLEARWATER STE 214 KENNEWICK, WA 99336 | % Ownership: | 100.0000000000% |
| | | Exemptions: | |
Taxes and Assessment Details
Values
| (+) Improvement Homesite Value: | + | $0 | |
| (+) Improvement Non-Homesite Value: | + | $45,500 | |
| (+) Land Homesite Value: | + | $0 | |
| (+) Land Non-Homesite Value: | + | $204,000 | |
| (+) Curr Use (HS): | + | $0 | $0 |
| (+) Curr Use (NHS): | + | $0 | $0 |
| | | -------------------------- | |
| (=) Market Value: | = | $249,500 | |
| (–) Productivity Loss: | – | $0 | |
| | | -------------------------- | |
| (=) Subtotal: | = | $249,500 | |
| (+) Senior Appraised Value: | + | $0 | |
| (+) Non-Senior Appraised Value: | + | $249,500 | |
| | | -------------------------- | |
| (=) Total Appraised Value: | = | $249,500 | |
| (–) Senior Exemption Loss: | – | $0 | |
| (–) Exemption Loss: | – | $0 | |
| | | -------------------------- | |
| (=) Taxable Value: | = | $249,500 | |
Taxing Jurisdiction
| Owner: | MC DONALDS REAL ESTATE COMPANY | | |
| % Ownership: | 100.0000000000% | | |
| Total Value: | $249,500 | | |
| Tax Area: | 1 - OL-140-F |
| CERFD | CURRENT EXPENSE REFUND 010 | 0.0000000000 | $249,500 | $249,500 | $0.00 | | |
| CURREXP | CURRENT EXPENSE 010 | 1.0175366760 | $249,500 | $249,500 | $253.88 | | |
| HUMNSERV | HUMAN SERVICES 119 | 0.0250000000 | $249,500 | $249,500 | $6.24 | | |
| SLDREL | SOLDIERS RELIEF 121 | 0.0155990005 | $249,500 | $249,500 | $3.89 | | |
| EMERGSER | EMS 147 | 0.3792580840 | $249,500 | $249,500 | $94.62 | | |
| EMSRFD | EMS REFUND 147 | 0.0000000000 | $249,500 | $249,500 | $0.00 | | |
| PORTRFD | PORT REFUND 640 | 0.0000000000 | $249,500 | $249,500 | $0.00 | | |
| PORTWWGEN | PORT OF WW 640 | 0.2460186015 | $249,500 | $249,500 | $61.38 | | |
| SD140BOND | SD #140 BOND 764 | 0.8342371393 | $249,500 | $249,500 | $208.14 | | |
| SD140GEN | SD #140 GENERAL 760 | 2.0646500647 | $249,500 | $249,500 | $515.13 | | |
| ST2 | STATE SCHOOL PART 2 600 | 0.8131451643 | $249,500 | $249,500 | $202.88 | | |
| STATESCHL | STATE SCHOOL 600 | 1.5158548041 | $249,500 | $249,500 | $378.21 | | |
| STREFUND | STATE REFUND LEVY 603 | 0.0000000000 | $249,500 | $249,500 | $0.00 | | |
| CWWBOND | C OF WW BOND 643 | 0.2760494372 | $249,500 | $249,500 | $68.87 | | |
| CWWGEN | CITY OF WW 631 | 1.6100204973 | $249,500 | $249,500 | $401.70 | | |
| CWWRFD | CITY OF WALLA WALLA REFUND 631 | 0.0000000000 | $249,500 | $249,500 | $0.00 | | |
| | Total Tax Rate: | 8.7973694689 | | | | | |
| | | | | Taxes w/Current Exemptions: | $2,194.94 | | |
| | | | | Taxes w/o Exemptions: | $2,194.94 | | |
Improvement / Building
| Improvement #1: | COMMERCIAL | State Code: | 58 | 0.0 sqft | Value: | $45,500 |
| | Type | Description | Class CD | Sub Class CD | Year Built | Area |
| | SI1 | SITE IMPROVEMENT | D | * | 0 | 9.0 |
| | PRKSTLA | PARK STALL AVERAGE | D | * | 0 | 29.0 |
Sketch
| No sketches available for this property. |
Property Image
Land
| 1 | COM 1 | Converted: Commercial | 0.3902 | 16996.00 | 0.00 | 0.00 | 1.00 | $204,000 | $0 |
Roll Value History
| 2026 | N/A | N/A | N/A | N/A | N/A |
| 2025 | $45,500 | $204,000 | $0 | $249,500 | $249,500 |
| 2024 | $45,500 | $204,000 | $0 | $249,500 | $249,500 |
| 2023 | $45,500 | $204,000 | $0 | $249,500 | $249,500 |
| 2022 | $45,500 | $204,000 | $0 | $249,500 | $249,500 |
| 2021 | $53,900 | $170,000 | $0 | $223,900 | $223,900 |
| 2020 | $53,900 | $170,000 | $0 | $223,900 | $223,900 |
| 2019 | $53,900 | $170,000 | $0 | $223,900 | $223,900 |
| 2018 | $53,900 | $170,000 | $0 | $223,900 | $223,900 |
| 2017 | $53,900 | $170,000 | $0 | $223,900 | $223,900 |
| 2016 | $53,900 | $170,000 | $0 | $223,900 | $223,900 |
| 2015 | $20,000 | $203,900 | $0 | $223,900 | $223,900 |
| 2014 | $20,000 | $203,900 | $0 | $223,900 | $223,900 |
| 2013 | $20,000 | $203,900 | $0 | $223,900 | $223,900 |
| 2012 | $20,000 | $203,900 | $0 | $0 | $0 |
| 2011 | $20,000 | $203,900 | $0 | $0 | $0 |
| 2010 | $20,000 | $203,900 | $0 | $0 | $0 |
| 2009 | $21,400 | $101,900 | $0 | $0 | $0 |
| 2008 | $21,400 | $101,900 | $0 | $0 | $0 |
| 2007 | $21,400 | $101,900 | $0 | $0 | $0 |
Deed and Sales History
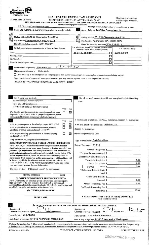
| 1 | 08/26/2015 | SWD | STATUTORY WARRANTY DEED | ADAMS TRI-CITIES ENTERPRISES INC | MC DONALDS REAL ESTATE COMPANY | | | $215,000.00 | 128686 | 2015-07466 |
| 2 | 08/26/2015 | QCD | QUIT CLAIM DEED | ADAMS LEE | ADAMS TRI-CITIES ENTERPRISES INC | | | $0.00 | 128685 | 2015-07465 |
| 3 | 11/07/2014 | SURVEY | SURVEY | | | | | | 0 | 2014-08157 |
| 4 | 09/03/1993 | WARRANTY D | WARRANTY DEED | | | | | $12,000.00 | 0 | 2109-309195 |
Payout Agreement
| No payout information available.. |