Property
Account |
| Property ID: | 11487 | Abbreviated Legal Description: | TOWNSENDS LOT 5 BLK 1 LESS S 100' & LESS ALLEY |
| Parcel Number: | 360730550108 | Agent Code: | |
| Type: | Real | | |
| Tax Area: | 1 - OL-140-F | Land Use Code | 18 |
| Open Space: | N | DFL | N |
| Historic Property: | N | Remodel Property: | N |
| Multi-Family Redevelopment: | N | | |
| Township: | 7 | Section: | 30 |
| Range: | 36 |
Location |
| Address: | WA 99362 | Mapsco: | |
| Neighborhood: | A-SFR Contig | Map ID: | |
| Neighborhood CD: | 313097 |
Owner |
| Name: | FLORES LEONEL CASTANEDA | Owner ID: | 62773 |
| Mailing Address: | 1024 LOWDEN ST WALLA WALLA, WA 99362 | % Ownership: | 100.0000000000% |
| | | Exemptions: | |
Taxes and Assessment Details
Property Tax Information as of
02/21/2026
Click on "Statement Details" to expand or collapse a tax statement.
* Please enter a valid date ** Please enter a valid date *
Statement Details |
| | TOTAL: | $0.00 | $0.00 | $0.00 | $0.00 | $0.00 | $0.00 |
|
| | $0.00 | $0.00 | $0.00 | $0.00 | $0.00 | $0.00 |
Values
| (+) Improvement Homesite Value: | + | $0 | |
| (+) Improvement Non-Homesite Value: | + | $800 | |
| (+) Land Homesite Value: | + | $0 | |
| (+) Land Non-Homesite Value: | + | $8,250 | |
| (+) Curr Use (HS): | + | $0 | $0 |
| (+) Curr Use (NHS): | + | $0 | $0 |
| | | -------------------------- | |
| (=) Market Value: | = | $9,050 | |
| (–) Productivity Loss: | – | $0 | |
| | | -------------------------- | |
| (=) Subtotal: | = | $9,050 | |
| (+) Senior Appraised Value: | + | $0 | |
| (+) Non-Senior Appraised Value: | + | $9,050 | |
| | | -------------------------- | |
| (=) Total Appraised Value: | = | $9,050 | |
| (–) Senior Exemption Loss: | – | $0 | |
| (–) Exemption Loss: | – | $0 | |
| | | -------------------------- | |
| (=) Taxable Value: | = | $9,050 | |
Taxing Jurisdiction
| Owner: | FLORES LEONEL CASTANEDA | | |
| % Ownership: | 100.0000000000% | | |
| Total Value: | $9,050 | | |
| Tax Area: | 1 - OL-140-F |
| CERFD | CURRENT EXPENSE REFUND 010 | 0.0000000000 | $9,050 | $9,050 | $0.00 | | |
| CURREXP | CURRENT EXPENSE 010 | 0.9851088983 | $9,050 | $9,050 | $8.92 | | |
| HUMNSERV | HUMAN SERVICES 119 | 0.0250000000 | $9,050 | $9,050 | $0.23 | | |
| SLDREL | SOLDIERS RELIEF 121 | 0.0155990000 | $9,050 | $9,050 | $0.14 | | |
| EMERGSER | EMS 147 | 0.3676811629 | $9,050 | $9,050 | $3.33 | | |
| EMSRFD | EMS REFUND 147 | 0.0000000000 | $9,050 | $9,050 | $0.00 | | |
| PORTRFD | PORT REFUND 640 | 0.0000000000 | $9,050 | $9,050 | $0.00 | | |
| PORTWWGEN | PORT OF WW 640 | 0.2344301070 | $9,050 | $9,050 | $2.12 | | |
| SD140BOND | SD #140 BOND 764 | 0.8032434458 | $9,050 | $9,050 | $7.27 | | |
| SD140CAP | SD #140 CAP 762 | 0.3840034221 | $9,050 | $9,050 | $3.48 | | |
| SD140GEN | SD #140 GENERAL 760 | 2.4999999996 | $9,050 | $9,050 | $22.63 | | |
| ST2 | STATE SCHOOL PART 2 600 | 0.8853714103 | $9,050 | $9,050 | $8.01 | | |
| STATESCHL | STATE SCHOOL 600 | 1.6424571473 | $9,050 | $9,050 | $14.86 | | |
| STREFUND | STATE REFUND LEVY 603 | 0.0000000000 | $9,050 | $9,050 | $0.00 | | |
| CWWBOND | C OF WW BOND 643 | 0.2642134255 | $9,050 | $9,050 | $2.39 | | |
| CWWGEN | CITY OF WW 631 | 1.6110494978 | $9,050 | $9,050 | $14.58 | | |
| CWWRFD | CITY OF WALLA WALLA REFUND 631 | 0.0000000000 | $9,050 | $9,050 | $0.00 | | |
| | Total Tax Rate: | 9.7181575166 | | | | | |
| | | | | Taxes w/Current Exemptions: | $87.96 | | |
| | | | | Taxes w/o Exemptions: | $87.96 | | |
Improvement / Building
| Improvement #1: | RESIDENTIAL | State Code: | 18 | 0.0 sqft | Value: | $800 |
Sketch
Property Image
Land
| 1 | RES 1 | Converted: Residential | 0.0230 | 1000.00 | 0.00 | 0.00 | 1.00 | $8,250 | $0 |
Roll Value History
| 2026 | N/A | N/A | N/A | N/A | N/A |
| 2025 | $800 | $8,250 | $0 | $9,050 | $9,050 |
| 2024 | $800 | $8,250 | $0 | $9,050 | $9,050 |
| 2023 | $800 | $8,250 | $0 | $9,050 | $9,050 |
| 2022 | $800 | $8,250 | $0 | $9,050 | $9,050 |
| 2021 | $800 | $3,300 | $0 | $4,100 | $4,100 |
| 2020 | $800 | $3,300 | $0 | $4,100 | $4,100 |
| 2019 | $800 | $3,300 | $0 | $4,100 | $4,100 |
| 2018 | $800 | $3,300 | $0 | $4,100 | $4,100 |
| 2017 | $800 | $3,300 | $0 | $4,100 | $4,100 |
| 2016 | $800 | $3,300 | $0 | $4,100 | $4,100 |
| 2015 | $800 | $3,300 | $0 | $4,100 | $4,100 |
| 2014 | $800 | $3,300 | $0 | $4,100 | $4,100 |
| 2013 | $800 | $3,300 | $0 | $4,100 | $4,100 |
| 2012 | $800 | $3,300 | $0 | $0 | $0 |
| 2011 | $800 | $3,300 | $0 | $0 | $0 |
| 2010 | $0 | $4,300 | $0 | $0 | $0 |
| 2009 | $0 | $500 | $0 | $0 | $0 |
| 2008 | $0 | $500 | $0 | $0 | $0 |
| 2007 | $0 | $500 | $0 | $0 | $0 |
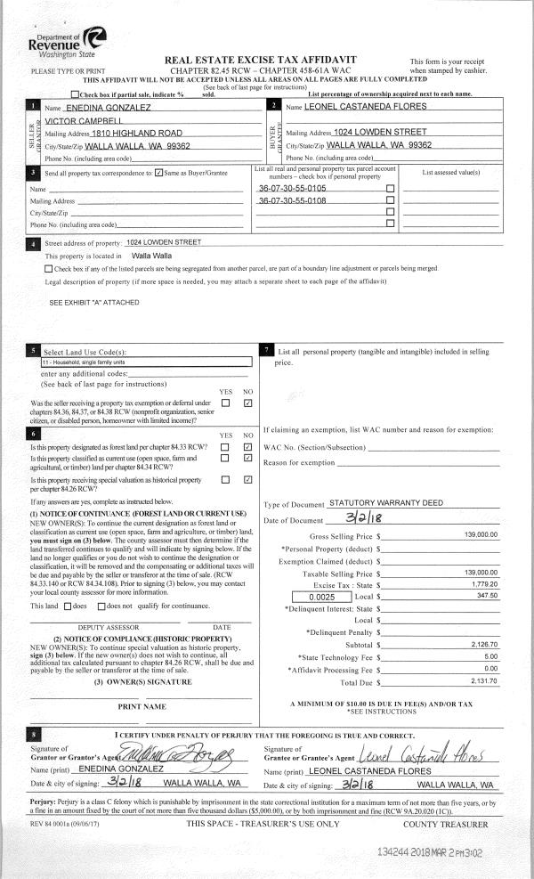
Deed and Sales History
| 1 | 03/02/2018 | QCD | QUIT CLAIM DEED | GONZALEZ PRISCILA RAMOS | FLORES LEONEL CASTANEDA | | | | 134245 | 2018-01692 |
| 2 | 03/02/2018 | SWD | STATUTORY WARRANTY DEED | CAMPBELL VICTOR | FLORES LEONEL CASTANEDA | | 2-PARCLES | $139,000.00 | 134244 | 2018-01691 |
|   | |
| 3 | 05/16/2011 | WARRANTY D | WARRANTY DEED | VAN DONGE, FLORENCE M | CAMPBELL VICTOR | | | $68,500.00 | 120147 | 2011-03862 |
|   | |
| 4 | 11/20/1980 | WARRANTY D | WARRANTY DEED | | | | | $25,000.00 | 0 | 1258-009223 |
|   | |
Payout Agreement
| No payout information available.. |