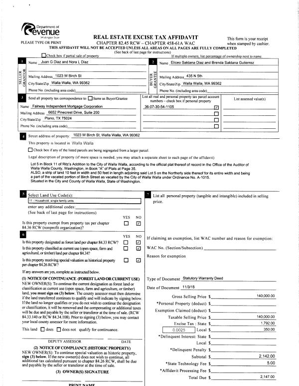
Property
Account |
| Property ID: | 11449 | Abbreviated Legal Description: | RITZ LOT 5 BLK 11 AND TRACT |
| Parcel Number: | 360730541105 | Agent Code: | |
| Type: | Real | | |
| Tax Area: | 1 - OL-140-F | Land Use Code | 11 |
| Open Space: | N | DFL | N |
| Historic Property: | N | Remodel Property: | N |
| Multi-Family Redevelopment: | N | | |
| Township: | 7 | Section: | 30 |
| Range: | 36 |
Location |
| Address: | 1023 W BIRCH ST WA 99362 | Mapsco: | |
| Neighborhood: | A-SFR | Map ID: | |
| Neighborhood CD: | 313011 |
Owner |
| Name: | DIAZ ELICEO SALDANA | Owner ID: | 64558 |
| Mailing Address: | 1023 W BIRCH ST WALLA WALLA, WA 99362 | % Ownership: | 100.0000000000% |
| | | Exemptions: | |
Taxes and Assessment Details
Values
| (+) Improvement Homesite Value: | + | $0 | |
| (+) Improvement Non-Homesite Value: | + | $150,260 | |
| (+) Land Homesite Value: | + | $0 | |
| (+) Land Non-Homesite Value: | + | $53,630 | |
| (+) Curr Use (HS): | + | $0 | $0 |
| (+) Curr Use (NHS): | + | $0 | $0 |
| | | -------------------------- | |
| (=) Market Value: | = | $203,890 | |
| (–) Productivity Loss: | – | $0 | |
| | | -------------------------- | |
| (=) Subtotal: | = | $203,890 | |
| (+) Senior Appraised Value: | + | $0 | |
| (+) Non-Senior Appraised Value: | + | $203,890 | |
| | | -------------------------- | |
| (=) Total Appraised Value: | = | $203,890 | |
| (–) Senior Exemption Loss: | – | $0 | |
| (–) Exemption Loss: | – | $0 | |
| | | -------------------------- | |
| (=) Taxable Value: | = | $203,890 | |
Taxing Jurisdiction
| Owner: | DIAZ ELICEO SALDANA | | |
| % Ownership: | 100.0000000000% | | |
| Total Value: | $203,890 | | |
| Tax Area: | 1 - OL-140-F |
| CERFD | CURRENT EXPENSE REFUND 010 | 0.0000000000 | $203,890 | $203,890 | $0.00 | | |
| CURREXP | CURRENT EXPENSE 010 | 1.0175366760 | $203,890 | $203,890 | $207.47 | | |
| HUMNSERV | HUMAN SERVICES 119 | 0.0250000000 | $203,890 | $203,890 | $5.10 | | |
| SLDREL | SOLDIERS RELIEF 121 | 0.0155990005 | $203,890 | $203,890 | $3.18 | | |
| EMERGSER | EMS 147 | 0.3792580840 | $203,890 | $203,890 | $77.33 | | |
| EMSRFD | EMS REFUND 147 | 0.0000000000 | $203,890 | $203,890 | $0.00 | | |
| PORTRFD | PORT REFUND 640 | 0.0000000000 | $203,890 | $203,890 | $0.00 | | |
| PORTWWGEN | PORT OF WW 640 | 0.2460186015 | $203,890 | $203,890 | $50.16 | | |
| SD140BOND | SD #140 BOND 764 | 0.8342371393 | $203,890 | $203,890 | $170.09 | | |
| SD140GEN | SD #140 GENERAL 760 | 2.0646500647 | $203,890 | $203,890 | $420.96 | | |
| ST2 | STATE SCHOOL PART 2 600 | 0.8131451643 | $203,890 | $203,890 | $165.79 | | |
| STATESCHL | STATE SCHOOL 600 | 1.5158548041 | $203,890 | $203,890 | $309.07 | | |
| STREFUND | STATE REFUND LEVY 603 | 0.0000000000 | $203,890 | $203,890 | $0.00 | | |
| CWWBOND | C OF WW BOND 643 | 0.2760494372 | $203,890 | $203,890 | $56.28 | | |
| CWWGEN | CITY OF WW 631 | 1.6100204973 | $203,890 | $203,890 | $328.27 | | |
| CWWRFD | CITY OF WALLA WALLA REFUND 631 | 0.0000000000 | $203,890 | $203,890 | $0.00 | | |
| | Total Tax Rate: | 8.7973694689 | | | | | |
| | | | | Taxes w/Current Exemptions: | $1,793.70 | | |
| | | | | Taxes w/o Exemptions: | $1,793.70 | | |
Improvement / Building
| Improvement #1: | RESIDENTIAL | State Code: | 11 | 880.0 sqft | Value: | $150,260 |
| Exterior Wall: | SIDING | Heating/Cooling: | BASEBOARD ELECTRIC | | Number of Bathrooms: | 2 | Number of Bedrooms: | 3 | | Plumbing: | 10 | Roof Covering: | COMP SHINGLE |
|
| | Type | Description | Class CD | Sub Class CD | Year Built | Area |
| | MA | Main Area | 1 | 30 | 1900 | 880.0 |
| | SI1 | SITE IMPROVEMENT | 1 | 30 | 0 | 1.0 |
| | BASE | BASEMENT | 1 | 30 | 1900 | 200.0 |
| | BPF | BASEMENT -PARTITIONED FINISH | 1 | 30 | 1900 | 200.0 |
| | WOD | Wood Deck | 1 | 30 | 1900 | 108.0 |
| | SWP | Solid Wall Porch | 1 | 30 | 1900 | 112.0 |
| | CPC | COVERED CARPORT/PATIO | 1 | 30 | 1900 | 240.0 |
Sketch
Property Image
Land
| 1 | RES 1 | Converted: Residential | 0.1492 | 6500.00 | 0.00 | 0.00 | 1.00 | $53,630 | $0 |
Roll Value History
| 2026 | N/A | N/A | N/A | N/A | N/A |
| 2025 | $198,340 | $53,630 | $0 | $251,970 | $251,970 |
| 2024 | $180,310 | $53,630 | $0 | $233,940 | $233,940 |
| 2023 | $150,260 | $53,630 | $0 | $203,890 | $203,890 |
| 2022 | $150,260 | $53,630 | $0 | $203,890 | $203,890 |
| 2021 | $179,090 | $24,800 | $0 | $203,890 | $203,890 |
| 2020 | $111,930 | $24,800 | $0 | $136,730 | $136,730 |
| 2019 | $111,930 | $24,800 | $0 | $136,730 | $136,730 |
| 2018 | $111,930 | $24,800 | $0 | $136,730 | $136,730 |
| 2017 | $106,600 | $24,800 | $0 | $131,400 | $131,400 |
| 2016 | $51,100 | $24,800 | $0 | $75,900 | $75,900 |
| 2015 | $49,650 | $24,800 | $0 | $74,450 | $74,450 |
| 2014 | $66,200 | $24,800 | $0 | $91,000 | $91,000 |
| 2013 | $66,200 | $24,800 | $0 | $91,000 | $91,000 |
| 2012 | $66,200 | $24,800 | $0 | $0 | $0 |
| 2011 | $66,200 | $24,800 | $0 | $0 | $0 |
| 2010 | $63,200 | $24,800 | $0 | $0 | $0 |
| 2009 | $52,500 | $11,400 | $0 | $0 | $0 |
| 2008 | $24,100 | $11,400 | $0 | $0 | $0 |
| 2007 | $24,100 | $11,400 | $0 | $0 | $0 |
Deed and Sales History
| 1 | 01/17/2019 | QCD | QUIT CLAIM DEED | DIAZ ELICEO SALDANA | DIAZ ELICEO SALDANA | | | $0.00 | 136261 | 2019-00359 |
| 2 | 11/04/2015 | SWD | STATUTORY WARRANTY DEED | DIAZ JUAN G | DIAZ ELICEO SALDANA | | | $140,000.00 | 129130 | 2015-09610 |
| 3 | 09/17/2004 | QCD | QUIT CLAIM DEED | DIAZ, NORA L | DIAZ, JUAN G | | | | 105730 | 2004-10770 |
| 4 | 09/17/2004 | WARRANTY D | WARRANTY DEED | WINSTON, JIMMY | DIAZ, JUAN G | | | $38,625.00 | 105729 | 2004-10769 |
| 5 | 01/01/1965 | WARRANTY D | WARRANTY DEED | | | | | $0.00 | 0 | 3100-459186 |
Payout Agreement
| No payout information available.. |