Property
Account |
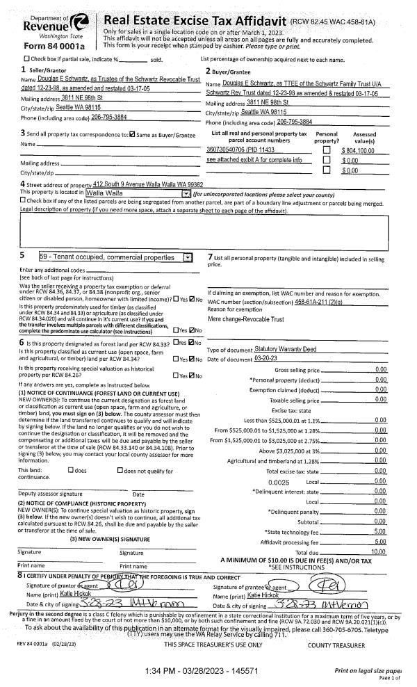
| Property ID: | 11436 | Abbreviated Legal Description: | RITZ PT LOT 7 BLK 7 LESS 9TH AVE S PLUS TRACTS PLUS PT VAC ALLEY |
| Parcel Number: | 360730540711 | Agent Code: | |
| Type: | Real | | |
| Tax Area: | 1 - OL-140-F | Land Use Code | 91 |
| Open Space: | N | DFL | N |
| Historic Property: | N | Remodel Property: | N |
| Multi-Family Redevelopment: | N | | |
| Township: | 7 | Section: | 30 |
| Range: | 36 |
Location |
| Address: | WA 99362 | Mapsco: | |
| Neighborhood: | | Map ID: | |
| Neighborhood CD: | 3342 |
Owner |
| Name: | SCHWARTZ FAMILY TRUST U/A SCHWARTZ REVOCABLE TRUST | Owner ID: | 73473 |
| Mailing Address: | C/O DOUGLAS E SCHWARTZ 8550 54TH AVE NE SEATTLE, WA 98115 | % Ownership: | 100.0000000000% |
| | | Exemptions: | |
Taxes and Assessment Details
Values
| (+) Improvement Homesite Value: | + | $0 | |
| (+) Improvement Non-Homesite Value: | + | $0 | |
| (+) Land Homesite Value: | + | $0 | |
| (+) Land Non-Homesite Value: | + | $49,200 | |
| (+) Curr Use (HS): | + | $0 | $0 |
| (+) Curr Use (NHS): | + | $0 | $0 |
| | | -------------------------- | |
| (=) Market Value: | = | $49,200 | |
| (–) Productivity Loss: | – | $0 | |
| | | -------------------------- | |
| (=) Subtotal: | = | $49,200 | |
| (+) Senior Appraised Value: | + | $0 | |
| (+) Non-Senior Appraised Value: | + | $49,200 | |
| | | -------------------------- | |
| (=) Total Appraised Value: | = | $49,200 | |
| (–) Senior Exemption Loss: | – | $0 | |
| (–) Exemption Loss: | – | $0 | |
| | | -------------------------- | |
| (=) Taxable Value: | = | $49,200 | |
Taxing Jurisdiction
| Owner: | SCHWARTZ FAMILY TRUST U/A SCHWARTZ REVOCABLE TRUST | | |
| % Ownership: | 100.0000000000% | | |
| Total Value: | $49,200 | | |
| Tax Area: | 1 - OL-140-F |
| CERFD | CURRENT EXPENSE REFUND 010 | 0.0000000000 | $49,200 | $49,200 | $0.00 | | |
| CURREXP | CURRENT EXPENSE 010 | 0.9851088983 | $49,200 | $49,200 | $48.47 | | |
| HUMNSERV | HUMAN SERVICES 119 | 0.0250000000 | $49,200 | $49,200 | $1.23 | | |
| SLDREL | SOLDIERS RELIEF 121 | 0.0155990000 | $49,200 | $49,200 | $0.77 | | |
| EMERGSER | EMS 147 | 0.3676811629 | $49,200 | $49,200 | $18.09 | | |
| EMSRFD | EMS REFUND 147 | 0.0000000000 | $49,200 | $49,200 | $0.00 | | |
| PORTRFD | PORT REFUND 640 | 0.0000000000 | $49,200 | $49,200 | $0.00 | | |
| PORTWWGEN | PORT OF WW 640 | 0.2344301070 | $49,200 | $49,200 | $11.53 | | |
| SD140BOND | SD #140 BOND 764 | 0.8032434458 | $49,200 | $49,200 | $39.52 | | |
| SD140CAP | SD #140 CAP 762 | 0.3840034221 | $49,200 | $49,200 | $18.89 | | |
| SD140GEN | SD #140 GENERAL 760 | 2.4999999996 | $49,200 | $49,200 | $123.00 | | |
| ST2 | STATE SCHOOL PART 2 600 | 0.8853714103 | $49,200 | $49,200 | $43.56 | | |
| STATESCHL | STATE SCHOOL 600 | 1.6424571473 | $49,200 | $49,200 | $80.81 | | |
| STREFUND | STATE REFUND LEVY 603 | 0.0000000000 | $49,200 | $49,200 | $0.00 | | |
| CWWBOND | C OF WW BOND 643 | 0.2642134255 | $49,200 | $49,200 | $13.00 | | |
| CWWGEN | CITY OF WW 631 | 1.6110494978 | $49,200 | $49,200 | $79.26 | | |
| CWWRFD | CITY OF WALLA WALLA REFUND 631 | 0.0000000000 | $49,200 | $49,200 | $0.00 | | |
| | Total Tax Rate: | 9.7181575166 | | | | | |
| | | | | Taxes w/Current Exemptions: | $478.13 | | |
| | | | | Taxes w/o Exemptions: | $478.13 | | |
Improvement / Building
Sketch
| No sketches available for this property. |
Property Image
Land
| 1 | COM 1 | Converted: Commercial | 0.0942 | 4103.35 | 0.00 | 0.00 | 1.00 | $49,200 | $0 |
Roll Value History
| 2026 | N/A | N/A | N/A | N/A | N/A |
| 2025 | $0 | $49,200 | $0 | $49,200 | $49,200 |
| 2024 | $0 | $49,200 | $0 | $49,200 | $49,200 |
| 2023 | $0 | $49,200 | $0 | $49,200 | $49,200 |
| 2022 | $0 | $49,200 | $0 | $49,200 | $49,200 |
| 2021 | $0 | $41,000 | $0 | $41,000 | $41,000 |
| 2020 | $0 | $41,000 | $0 | $41,000 | $41,000 |
| 2019 | $0 | $41,000 | $0 | $41,000 | $41,000 |
| 2018 | $0 | $41,000 | $0 | $41,000 | $41,000 |
| 2017 | $0 | $41,000 | $0 | $41,000 | $41,000 |
| 2016 | $0 | $41,000 | $0 | $41,000 | $41,000 |
| 2015 | $0 | $49,100 | $0 | $49,100 | $49,100 |
| 2014 | $0 | $49,100 | $0 | $49,100 | $49,100 |
| 2013 | $0 | $49,100 | $0 | $49,100 | $49,100 |
| 2012 | $0 | $49,100 | $0 | $0 | $0 |
| 2011 | $0 | $49,100 | $0 | $0 | $0 |
| 2010 | $0 | $49,100 | $0 | $0 | $0 |
| 2009 | $0 | $41,000 | $0 | $0 | $0 |
| 2008 | $0 | $41,000 | $0 | $0 | $0 |
| 2007 | $0 | $41,000 | $0 | $0 | $0 |
Deed and Sales History
| 1 | 03/29/2023 | SWD | STATUTORY WARRANTY DEED | SCHWARTZ REVOCABLE TRUST | SCHWARTZ FAMILY TRUST U/A SCHWARTZ REVOCABLE TRUST | | | | 145571 | 2023-01574 |
| 2 | 04/06/2017 | SWD | STATUTORY WARRANTY DEED | WALLA WALLA LLC | SCHWARTZ REVOCABLE TRUST | | 4-PARCELS | $1,300,000.00 | 132167 | 2017-02603 |
|   | |
| 3 | 12/01/2003 | QCD | QUIT CLAIM DEED | FISHER, ETHLYN GAIGE TRUST | WALLA WALLA LLC | | | | 103621 | 2003-18319 |
| 4 | 10/03/1996 | WARRANTY D | WARRANTY DEED | | | | | $218,900.00 | 86971 | 2459-610010 |
|   | |
Payout Agreement
| No payout information available.. |