Property
Account |
| Property ID: | 11406 | Abbreviated Legal Description: | RITZ LOT 8 BLK 1 |
| Parcel Number: | 360730540108 | Agent Code: | |
| Type: | Real | | |
| Tax Area: | 1 - OL-140-F | Land Use Code | 11 |
| Open Space: | N | DFL | N |
| Historic Property: | N | Remodel Property: | N |
| Multi-Family Redevelopment: | N | | |
| Township: | 7 | Section: | 30 |
| Range: | 36 |
Location |
| Address: | 822 EMMA ST WA 99362 | Mapsco: | |
| Neighborhood: | A-SFR | Map ID: | |
| Neighborhood CD: | 313011 |
Owner |
| Name: | ESPINOZA LIZBHET ROMERO | Owner ID: | 75943 |
| Mailing Address: | 2911 S RANIER PL KENNEWICK, WA 99337 | % Ownership: | 100.0000000000% |
| | | Exemptions: | |
Taxes and Assessment Details
Values
| (+) Improvement Homesite Value: | + | N/A | |
| (+) Improvement Non-Homesite Value: | + | N/A | |
| (+) Land Homesite Value: | + | N/A | |
| (+) Land Non-Homesite Value: | + | N/A | Ag / Timber Use Value |
| (+) Curr Use (HS): | + | N/A | N/A |
| (+) Curr Use (NHS): | + | N/A | N/A |
| | | -------------------------- | |
| (=) Market Value: | = | N/A | |
| (–) Productivity Loss: | – | N/A | |
| | | -------------------------- | |
| (=) Subtotal: | = | N/A | |
| (+) Senior Appraised Value: | + | N/A | |
| (+) Non-Senior Appraised Value: | + | N/A | |
| | | -------------------------- | |
| (=) Total Appraised Value: | = | N/A | |
| (–) Senior Exemption Loss: | – | N/A | |
| (–) Exemption Loss: | – | N/A | |
| | | -------------------------- | |
| (=) Taxable Value: | = | N/A | |
Taxing Jurisdiction
| Owner: | ESPINOZA LIZBHET ROMERO | | |
| % Ownership: | 100.0000000000% | | |
| Total Value: | N/A | | |
| Tax Area: | 1 - OL-140-F |
| CERFD | CURRENT EXPENSE REFUND 010 | N/A | N/A | N/A | N/A | | |
| CURREXP | CURRENT EXPENSE 010 | N/A | N/A | N/A | N/A | | |
| HUMNSERV | HUMAN SERVICES 119 | N/A | N/A | N/A | N/A | | |
| SLDREL | SOLDIERS RELIEF 121 | N/A | N/A | N/A | N/A | | |
| EMERGSER | EMS 147 | N/A | N/A | N/A | N/A | | |
| EMSRFD | EMS REFUND 147 | N/A | N/A | N/A | N/A | | |
| PORTRFD | PORT REFUND 640 | N/A | N/A | N/A | N/A | | |
| PORTWWGEN | PORT OF WW 640 | N/A | N/A | N/A | N/A | | |
| SD140BOND | SD #140 BOND 764 | N/A | N/A | N/A | N/A | | |
| SD140GEN | SD #140 GENERAL 760 | N/A | N/A | N/A | N/A | | |
| ST2 | STATE SCHOOL PART 2 600 | N/A | N/A | N/A | N/A | | |
| STATESCHL | STATE SCHOOL 600 | N/A | N/A | N/A | N/A | | |
| STREFUND | STATE REFUND LEVY 603 | N/A | N/A | N/A | N/A | | |
| CWWBOND | C OF WW BOND 643 | N/A | N/A | N/A | N/A | | |
| CWWGEN | CITY OF WW 631 | N/A | N/A | N/A | N/A | | |
| CWWRFD | CITY OF WALLA WALLA REFUND 631 | N/A | N/A | N/A | N/A | | |
| | Total Tax Rate: | N/A | | | | | |
| | | | | Taxes w/Current Exemptions: | N/A | | |
| | | | | Taxes w/o Exemptions: | N/A | | |
Improvement / Building
| Improvement #1: | RESIDENTIAL | State Code: | 11 | 601.0 sqft | Value: | N/A |
| Exterior Wall: | HARDBOARD | Heating/Cooling: | MINI-SPLIT HP SYSTEM | | Number of Bathrooms: | 1 | Number of Bedrooms: | 2 | | Plumbing: | 7 | Roof Covering: | COMP SHINGLE |
|
| | Type | Description | Class CD | Sub Class CD | Year Built | Area |
| | MA | Main Area | 1 | 25 | 1910 | 601.0 |
| | SI1 | SITE IMPROVEMENT | 1 | 25 | 0 | 1.0 |
| | WOD | Wood Deck | 1 | 25 | 1910 | 64.0 |
| | WOD | Wood Deck | 1 | 25 | 1910 | 35.0 |
| | UTST | Utility Storage Shed | 1 | 25 | 1910 | 266.0 |
Sketch
Property Image
Land
| 1 | RES 1 | Converted: Residential | 0.1377 | 6000.00 | 0.00 | 0.00 | 1.00 | N/A | N/A |
Roll Value History
| 2026 | N/A | N/A | N/A | N/A | N/A |
| 2025 | $109,860 | $49,500 | $0 | $159,360 | $159,360 |
| 2024 | $42,380 | $49,500 | $0 | $91,880 | $91,880 |
| 2023 | $42,380 | $49,500 | $0 | $91,880 | $91,880 |
| 2022 | $42,380 | $49,500 | $0 | $91,880 | $91,880 |
| 2021 | $53,020 | $24,400 | $0 | $77,420 | $77,420 |
| 2020 | $48,200 | $24,400 | $0 | $72,600 | $72,600 |
| 2019 | $48,200 | $24,400 | $0 | $72,600 | $72,600 |
| 2018 | $48,200 | $24,400 | $0 | $72,600 | $72,600 |
| 2017 | $48,200 | $24,400 | $0 | $72,600 | $72,600 |
| 2016 | $45,900 | $24,400 | $0 | $70,300 | $70,300 |
| 2015 | $45,900 | $24,400 | $0 | $70,300 | $70,300 |
| 2014 | $30,600 | $24,400 | $0 | $55,000 | $55,000 |
| 2013 | $30,600 | $24,400 | $0 | $55,000 | $55,000 |
| 2012 | $30,600 | $24,400 | $0 | $0 | $0 |
| 2011 | $30,600 | $24,400 | $0 | $0 | $0 |
| 2010 | $31,200 | $24,400 | $0 | $0 | $0 |
| 2009 | $48,000 | $10,500 | $0 | $0 | $0 |
| 2008 | $22,000 | $10,500 | $0 | $0 | $0 |
| 2007 | $22,000 | $10,500 | $0 | $0 | $0 |
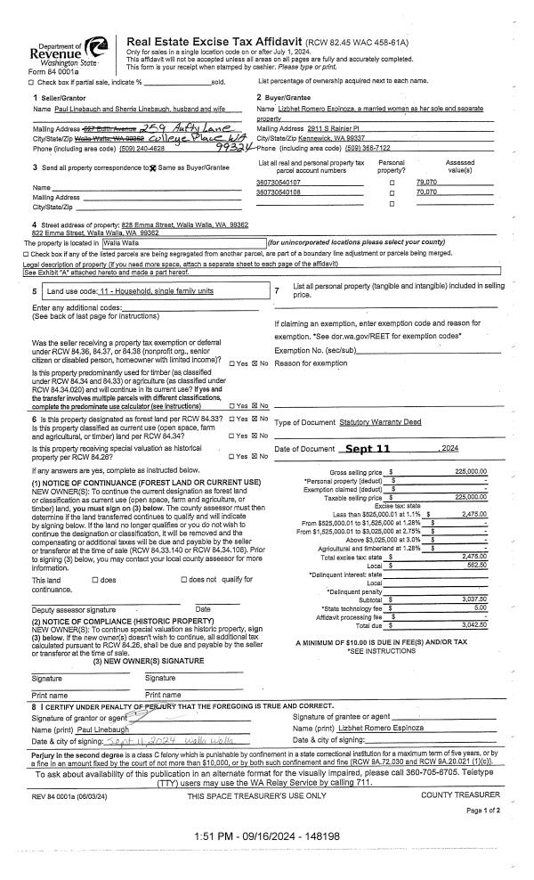
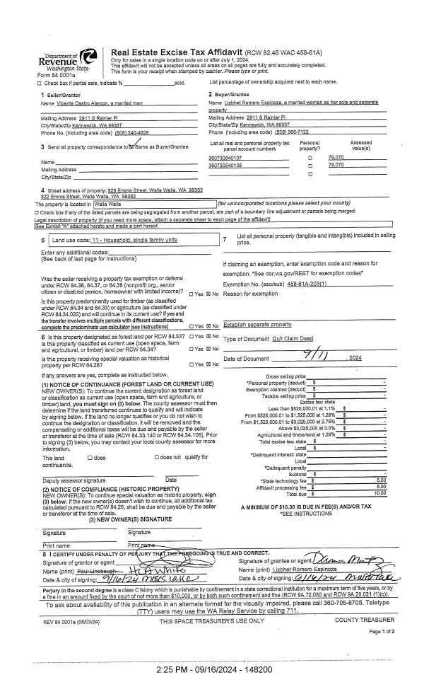
Deed and Sales History
| 1 | 09/16/2024 | QCD | QUIT CLAIM DEED | ALARCON VICENTE CASTRO | ESPINOZA LIZBHET ROMERO | | | | 148200 | 2024-05279 |
| 2 | 09/16/2024 | SWD | STATUTORY WARRANTY DEED | LINEBAUGH PAUL & SHERRIE | ESPINOZA LIZBHET ROMERO | | 2-PARCELS | $225,000.00 | 148198 | 2024-05278 |
|   | |
| 3 | 08/24/2017 | BARGAIN & | BARGAIN & SALE DEED | VASQUEZ RAFAEL ORNELAS II | LINEBAUGH PAUL & SHERRIE | | | $0.00 | 133072 | 2017-06608 |
| 4 | 08/22/2017 | FUL | FULFILLMENT DEED | LINEBAUGH PAUL & SHERRIE | VASQUEZ RAFAEL O II | | | | 0 | 2017-06500 |
| 5 | 08/01/2017 | DECF | DECLARATION OF FOREFEITURE | LINEBAUGH PAUL & SHERRIE | VASQUEZ RAFAEL O II & ROSA | | | $0.00 | 132884 | 2017-05845 |
| 6 | 05/09/2014 | REAL ESTAT | REAL ESTATE CONTRACT | LINEBAUGH PAUL | VASQUEZ RAFAEL ORNELAS II | | 3-PARCELS | $324,000.00 | 125855 | 2014-03176 |
|   | |
| 7 | 08/23/2005 | WARRANTY D | WARRANTY DEED | KINGTON, MICHELE L ESTATE OF | LINEBAUGH, PAUL | | | $59,500.00 | 108305 | 2005-10453 |
| 8 | 08/22/1995 | WARRANTY D | WARRANTY DEED | | | | | $30,000.00 | 84589 | 2339-507965 |
Payout Agreement
| No payout information available.. |