Property
Account |
| Property ID: | 11405 | Abbreviated Legal Description: | RITZ LOT 7 BLK 1 AND TRACT |
| Parcel Number: | 360730540107 | Agent Code: | |
| Type: | Real | | |
| Tax Area: | 1 - OL-140-F | Land Use Code | 11 |
| Open Space: | N | DFL | N |
| Historic Property: | N | Remodel Property: | N |
| Multi-Family Redevelopment: | N | | |
| Township: | 7 | Section: | 30 |
| Range: | 36 |
Location |
| Address: | 828 EMMA ST WA 99362 | Mapsco: | |
| Neighborhood: | A-SFR | Map ID: | |
| Neighborhood CD: | 313011 |
Owner |
| Name: | LINEBAUGH PAUL & SHERRIE | Owner ID: | 13145 |
| Mailing Address: | C/O GARY COWLES 527 EDITH AVE WALLA WALLA, WA 99362 | % Ownership: | 100.0000000000% |
| | | Exemptions: | |
Taxes and Assessment Details
Values
| (+) Improvement Homesite Value: | + | $0 | |
| (+) Improvement Non-Homesite Value: | + | $19,670 | |
| (+) Land Homesite Value: | + | $0 | |
| (+) Land Non-Homesite Value: | + | $59,400 | |
| (+) Curr Use (HS): | + | $0 | $0 |
| (+) Curr Use (NHS): | + | $0 | $0 |
| | | -------------------------- | |
| (=) Market Value: | = | $79,070 | |
| (–) Productivity Loss: | – | $0 | |
| | | -------------------------- | |
| (=) Subtotal: | = | $79,070 | |
| (+) Senior Appraised Value: | + | $0 | |
| (+) Non-Senior Appraised Value: | + | $79,070 | |
| | | -------------------------- | |
| (=) Total Appraised Value: | = | $79,070 | |
| (–) Senior Exemption Loss: | – | $0 | |
| (–) Exemption Loss: | – | $0 | |
| | | -------------------------- | |
| (=) Taxable Value: | = | $79,070 | |
Taxing Jurisdiction
| Owner: | LINEBAUGH PAUL & SHERRIE | | |
| % Ownership: | 100.0000000000% | | |
| Total Value: | $79,070 | | |
| Tax Area: | 1 - OL-140-F |
| CERFD | CURRENT EXPENSE REFUND 010 | 0.0000000000 | $79,070 | $79,070 | $0.00 | | |
| CURREXP | CURRENT EXPENSE 010 | 1.0175366760 | $79,070 | $79,070 | $80.46 | | |
| HUMNSERV | HUMAN SERVICES 119 | 0.0250000000 | $79,070 | $79,070 | $1.98 | | |
| SLDREL | SOLDIERS RELIEF 121 | 0.0155990005 | $79,070 | $79,070 | $1.23 | | |
| EMERGSER | EMS 147 | 0.3792580840 | $79,070 | $79,070 | $29.99 | | |
| EMSRFD | EMS REFUND 147 | 0.0000000000 | $79,070 | $79,070 | $0.00 | | |
| PORTRFD | PORT REFUND 640 | 0.0000000000 | $79,070 | $79,070 | $0.00 | | |
| PORTWWGEN | PORT OF WW 640 | 0.2460186015 | $79,070 | $79,070 | $19.45 | | |
| SD140BOND | SD #140 BOND 764 | 0.8342371393 | $79,070 | $79,070 | $65.96 | | |
| SD140GEN | SD #140 GENERAL 760 | 2.0646500647 | $79,070 | $79,070 | $163.25 | | |
| ST2 | STATE SCHOOL PART 2 600 | 0.8131451643 | $79,070 | $79,070 | $64.30 | | |
| STATESCHL | STATE SCHOOL 600 | 1.5158548041 | $79,070 | $79,070 | $119.86 | | |
| STREFUND | STATE REFUND LEVY 603 | 0.0000000000 | $79,070 | $79,070 | $0.00 | | |
| CWWBOND | C OF WW BOND 643 | 0.2760494372 | $79,070 | $79,070 | $21.83 | | |
| CWWGEN | CITY OF WW 631 | 1.6100204973 | $79,070 | $79,070 | $127.30 | | |
| CWWRFD | CITY OF WALLA WALLA REFUND 631 | 0.0000000000 | $79,070 | $79,070 | $0.00 | | |
| | Total Tax Rate: | 8.7973694689 | | | | | |
| | | | | Taxes w/Current Exemptions: | $695.61 | | |
| | | | | Taxes w/o Exemptions: | $695.61 | | |
Improvement / Building
| Improvement #1: | RESIDENTIAL | State Code: | 11 | 825.0 sqft | Value: | $19,670 |
| Exterior Wall: | SIDING | Heating/Cooling: | FORCED AIR | | Number of Bathrooms: | 1 | Number of Bedrooms: | 2 | | Plumbing: | 7 | Roof Covering: | COMP SHINGLE |
|
| | Type | Description | Class CD | Sub Class CD | Year Built | Area |
| | MA | Main Area | 1 | 20 | 1930 | 825.0 |
| | SI1 | SITE IMPROVEMENT | 1 | 20 | 0 | 1.0 |
| | OPS | OPEN PORCH W/STEPS | 1 | 20 | 1930 | 28.0 |
| | WOD | Wood Deck | 1 | 20 | 1930 | 9.0 |
Sketch
Property Image
Land
| 1 | RES 1 | Converted: Residential | 0.1653 | 7200.00 | 0.00 | 0.00 | 1.00 | $59,400 | $0 |
Roll Value History
| 2026 | N/A | N/A | N/A | N/A | N/A |
| 2025 | $63,200 | $59,400 | $0 | $122,600 | $122,600 |
| 2024 | $19,670 | $59,400 | $0 | $79,070 | $79,070 |
| 2023 | $19,670 | $59,400 | $0 | $79,070 | $79,070 |
| 2022 | $19,670 | $59,400 | $0 | $79,070 | $79,070 |
| 2021 | $49,720 | $25,200 | $0 | $74,920 | $74,920 |
| 2020 | $49,720 | $25,200 | $0 | $74,920 | $74,920 |
| 2019 | $49,720 | $25,200 | $0 | $74,920 | $74,920 |
| 2018 | $49,720 | $25,200 | $0 | $74,920 | $74,920 |
| 2017 | $49,720 | $25,200 | $0 | $74,920 | $74,920 |
| 2016 | $45,200 | $25,200 | $0 | $70,400 | $70,400 |
| 2015 | $45,200 | $25,200 | $0 | $70,400 | $70,400 |
| 2014 | $45,200 | $25,200 | $0 | $70,400 | $70,400 |
| 2013 | $45,200 | $25,200 | $0 | $70,400 | $70,400 |
| 2012 | $45,200 | $25,200 | $0 | $0 | $0 |
| 2011 | $45,200 | $25,200 | $0 | $0 | $0 |
| 2010 | $46,200 | $25,200 | $0 | $0 | $0 |
| 2009 | $62,600 | $12,600 | $0 | $0 | $0 |
| 2008 | $29,200 | $12,600 | $0 | $0 | $0 |
| 2007 | $29,200 | $12,600 | $0 | $0 | $0 |
Deed and Sales History
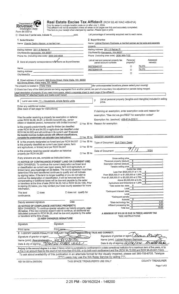
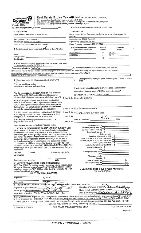
| 1 | 09/16/2024 | QCD | QUIT CLAIM DEED | ALARCON VICENTE CASTRO | ESPINOZA LIZBHET ROMERO | | | | 148200 | 2024-05279 |
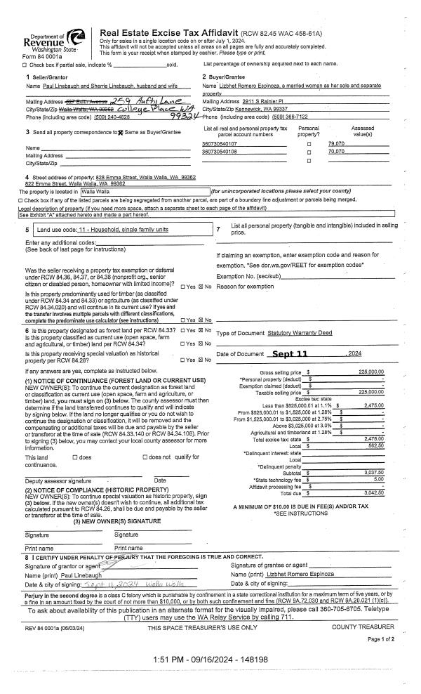
| 2 | 09/16/2024 | SWD | STATUTORY WARRANTY DEED | LINEBAUGH PAUL & SHERRIE | ESPINOZA LIZBHET ROMERO | | 2-PARCELS | $225,000.00 | 148198 | 2024-05278 |
|   | |
| 3 | 08/24/2017 | BARGAIN & | BARGAIN & SALE DEED | VASQUEZ RAFAEL ORNELAS II | LINEBAUGH PAUL & SHERRIE | | | $0.00 | 133072 | 2017-06608 |
| 4 | 08/22/2017 | FUL | FULFILLMENT DEED | | VASQUEZ RAFAEL O II | | | | 0 | 2017-06500 |
| 5 | 08/01/2017 | DECF | DECLARATION OF FOREFEITURE | LINEBAUGH PAUL & SHERRIE | VASQUEZ RAFAEL O II & ROSA | | | $0.00 | 132884 | 2017-05845 |
| 6 | 05/09/2014 | REAL ESTAT | REAL ESTATE CONTRACT | LINEBAUGH PAUL & SHERRIE | VASQUEZ RAFAEL ORNELAS II | | 3-PARCELS | $324,000.00 | 125855 | 2014-03176 |
|   | |
| 7 | 01/11/2001 | WARRANTY D | WARRANTY DEED | | | | | $45,000.00 | 96456 | 3060-100316 |
Payout Agreement
| No payout information available.. |