Property
Account |
| Property ID: | 11387 | Abbreviated Legal Description: | REESES LOT 7 BLK 9 |
| Parcel Number: | 360730530907 | Agent Code: | |
| Type: | Real | | |
| Tax Area: | 1 - OL-140-F | Land Use Code | 11 |
| Open Space: | N | DFL | N |
| Historic Property: | N | Remodel Property: | N |
| Multi-Family Redevelopment: | N | | |
| Township: | 7 | Section: | 30 |
| Range: | 36 |
Location |
| Address: | 622 W POPLAR ST WA 99362 | Mapsco: | |
| Neighborhood: | F SFR | Map ID: | |
| Neighborhood CD: | 512011 |
Owner |
| Name: | LOWELL CHARLES P | Owner ID: | 69551 |
| Mailing Address: | PO BOX 3405 WALLA WALLA, WA 99362-0338 | % Ownership: | 100.0000000000% |
| | | Exemptions: | |
Taxes and Assessment Details
Values
| (+) Improvement Homesite Value: | + | $0 | |
| (+) Improvement Non-Homesite Value: | + | $48,240 | |
| (+) Land Homesite Value: | + | $0 | |
| (+) Land Non-Homesite Value: | + | $37,800 | |
| (+) Curr Use (HS): | + | $0 | $0 |
| (+) Curr Use (NHS): | + | $0 | $0 |
| | | -------------------------- | |
| (=) Market Value: | = | $86,040 | |
| (–) Productivity Loss: | – | $0 | |
| | | -------------------------- | |
| (=) Subtotal: | = | $86,040 | |
| (+) Senior Appraised Value: | + | $0 | |
| (+) Non-Senior Appraised Value: | + | $86,040 | |
| | | -------------------------- | |
| (=) Total Appraised Value: | = | $86,040 | |
| (–) Senior Exemption Loss: | – | $0 | |
| (–) Exemption Loss: | – | $0 | |
| | | -------------------------- | |
| (=) Taxable Value: | = | $86,040 | |
Taxing Jurisdiction
| Owner: | LOWELL CHARLES P | | |
| % Ownership: | 100.0000000000% | | |
| Total Value: | $86,040 | | |
| Tax Area: | 1 - OL-140-F |
| CERFD | CURRENT EXPENSE REFUND 010 | 0.0000000000 | $86,040 | $86,040 | $0.00 | | |
| CURREXP | CURRENT EXPENSE 010 | 1.0175366760 | $86,040 | $86,040 | $87.55 | | |
| HUMNSERV | HUMAN SERVICES 119 | 0.0250000000 | $86,040 | $86,040 | $2.15 | | |
| SLDREL | SOLDIERS RELIEF 121 | 0.0155990005 | $86,040 | $86,040 | $1.34 | | |
| EMERGSER | EMS 147 | 0.3792580840 | $86,040 | $86,040 | $32.63 | | |
| EMSRFD | EMS REFUND 147 | 0.0000000000 | $86,040 | $86,040 | $0.00 | | |
| PORTRFD | PORT REFUND 640 | 0.0000000000 | $86,040 | $86,040 | $0.00 | | |
| PORTWWGEN | PORT OF WW 640 | 0.2460186015 | $86,040 | $86,040 | $21.17 | | |
| SD140BOND | SD #140 BOND 764 | 0.8342371393 | $86,040 | $86,040 | $71.78 | | |
| SD140GEN | SD #140 GENERAL 760 | 2.0646500647 | $86,040 | $86,040 | $177.64 | | |
| ST2 | STATE SCHOOL PART 2 600 | 0.8131451643 | $86,040 | $86,040 | $69.96 | | |
| STATESCHL | STATE SCHOOL 600 | 1.5158548041 | $86,040 | $86,040 | $130.42 | | |
| STREFUND | STATE REFUND LEVY 603 | 0.0000000000 | $86,040 | $86,040 | $0.00 | | |
| CWWBOND | C OF WW BOND 643 | 0.2760494372 | $86,040 | $86,040 | $23.75 | | |
| CWWGEN | CITY OF WW 631 | 1.6100204973 | $86,040 | $86,040 | $138.53 | | |
| CWWRFD | CITY OF WALLA WALLA REFUND 631 | 0.0000000000 | $86,040 | $86,040 | $0.00 | | |
| | Total Tax Rate: | 8.7973694689 | | | | | |
| | | | | Taxes w/Current Exemptions: | $756.92 | | |
| | | | | Taxes w/o Exemptions: | $756.92 | | |
Improvement / Building
| Improvement #1: | RESIDENTIAL | State Code: | 11 | 955.0 sqft | Value: | $48,240 |
| Exterior Wall: | SIDING | Heating/Cooling: | FLOOR FURNACE | | Number of Bathrooms: | 1 | Number of Bedrooms: | 2 | | Plumbing: | 6 | Roof Covering: | COMP SHINGLE |
|
| | Type | Description | Class CD | Sub Class CD | Year Built | Area |
| | MA | Main Area | 1 | 20 | 1910 | 955.0 |
| | SI1 | SITE IMPROVEMENT | 1 | 20 | 1910 | 1.0 |
| | BASE | BASEMENT | 1 | 20 | 1910 | 928.0 |
| | BRF | BASEMENT - REC FINISH | 1 | 20 | 1910 | 216.0 |
| | RPS | PORCH W/STEPS,ROOF | 1 | 20 | 1910 | 60.0 |
| | WOD | Wood Deck | 1 | 20 | 1910 | 149.0 |
| | UTST | Utility Storage Shed | 1 | 20 | 1910 | 198.0 |
Sketch
Property Image
Land
| 1 | RES 1 | Converted: Residential | 0.1653 | 7200.00 | 0.00 | 0.00 | 1.00 | $37,800 | $0 |
Roll Value History
| 2026 | N/A | N/A | N/A | N/A | N/A |
| 2025 | $0 | $64,800 | $0 | $64,800 | $64,800 |
| 2024 | $0 | $64,800 | $0 | $64,800 | $64,800 |
| 2023 | $48,240 | $37,800 | $0 | $86,040 | $86,040 |
| 2022 | $48,240 | $37,800 | $0 | $86,040 | $86,040 |
| 2021 | $24,120 | $37,800 | $0 | $61,920 | $61,920 |
| 2020 | $24,120 | $37,800 | $0 | $61,920 | $61,920 |
| 2019 | $24,120 | $37,800 | $0 | $61,920 | $61,920 |
| 2018 | $24,120 | $37,800 | $0 | $61,920 | $61,920 |
| 2017 | $54,420 | $21,600 | $0 | $76,020 | $76,020 |
| 2016 | $51,830 | $21,600 | $0 | $73,430 | $73,430 |
| 2015 | $51,830 | $21,600 | $0 | $73,430 | $73,430 |
| 2014 | $69,100 | $21,600 | $0 | $90,700 | $90,700 |
| 2013 | $69,100 | $21,600 | $0 | $90,700 | $90,700 |
| 2012 | $69,100 | $21,600 | $0 | $0 | $0 |
| 2011 | $69,100 | $21,600 | $0 | $0 | $0 |
| 2010 | $64,800 | $21,600 | $0 | $0 | $0 |
| 2009 | $74,400 | $21,600 | $0 | $0 | $0 |
| 2008 | $53,600 | $12,600 | $0 | $0 | $0 |
| 2007 | $53,600 | $12,600 | $0 | $0 | $0 |
Deed and Sales History
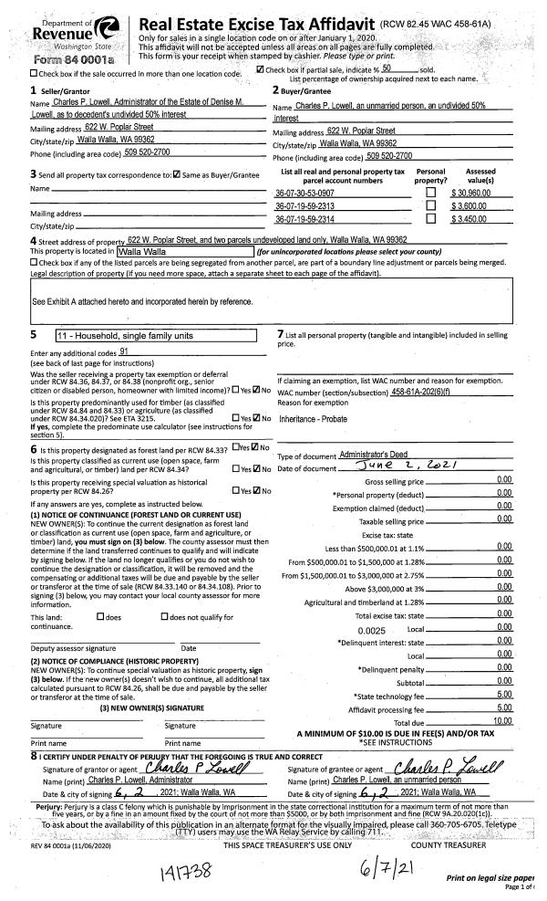
| 1 | 06/02/2021 | ADMD | ADMINISTRATOR'S DEED | LOWELL CHARLES P & DENISE M | LOWELL CHARLES P | | 3 PARCELS | $0.00 | 141738 | 2021-06873 |
| 2 | 08/28/1995 | WARRANTY D | WARRANTY DEED | | | | | $56,500.00 | 84621 | 2339-508146 |
Payout Agreement
| No payout information available.. |