Property
Account |
| Property ID: | 11382 | Abbreviated Legal Description: | REESES LOT 1 BLK 9 |
| Parcel Number: | 360730530901 | Agent Code: | |
| Type: | Real | | |
| Tax Area: | 1 - OL-140-F | Land Use Code | 12 |
| Open Space: | N | DFL | N |
| Historic Property: | N | Remodel Property: | N |
| Multi-Family Redevelopment: | N | | |
| Township: | 7 | Section: | 30 |
| Range: | 36 |
Location |
| Address: | 603 W ALDER ST WA 99362 | Mapsco: | |
| Neighborhood: | F SFR Multi Res | Map ID: | |
| Neighborhood CD: | 512081 |
Owner |
| Name: | SOTELO MARCELO & ERICKA G | Owner ID: | 73510 |
| Mailing Address: | 603 W ALDER ST WALLA WALLA, WA 99362 | % Ownership: | 100.0000000000% |
| | | Exemptions: | |
Taxes and Assessment Details
Property Tax Information as of
02/21/2026
Click on "Statement Details" to expand or collapse a tax statement.
* Please enter a valid date ** Please enter a valid date *
Statement Details |
| | TOTAL: | $0.00 | $0.00 | $0.00 | $0.00 | $0.00 | $0.00 |
|
| | $0.00 | $0.00 | $0.00 | $0.00 | $0.00 | $0.00 |
Values
| (+) Improvement Homesite Value: | + | $0 | |
| (+) Improvement Non-Homesite Value: | + | $177,950 | |
| (+) Land Homesite Value: | + | $0 | |
| (+) Land Non-Homesite Value: | + | $37,800 | |
| (+) Curr Use (HS): | + | $0 | $0 |
| (+) Curr Use (NHS): | + | $0 | $0 |
| | | -------------------------- | |
| (=) Market Value: | = | $215,750 | |
| (–) Productivity Loss: | – | $0 | |
| | | -------------------------- | |
| (=) Subtotal: | = | $215,750 | |
| (+) Senior Appraised Value: | + | $0 | |
| (+) Non-Senior Appraised Value: | + | $215,750 | |
| | | -------------------------- | |
| (=) Total Appraised Value: | = | $215,750 | |
| (–) Senior Exemption Loss: | – | $0 | |
| (–) Exemption Loss: | – | $0 | |
| | | -------------------------- | |
| (=) Taxable Value: | = | $215,750 | |
Taxing Jurisdiction
| Owner: | SOTELO MARCELO & ERICKA G | | |
| % Ownership: | 100.0000000000% | | |
| Total Value: | $215,750 | | |
| Tax Area: | 1 - OL-140-F |
| CERFD | CURRENT EXPENSE REFUND 010 | 0.0000000000 | $215,750 | $215,750 | $0.00 | | |
| CURREXP | CURRENT EXPENSE 010 | 1.0175366760 | $215,750 | $215,750 | $219.53 | | |
| HUMNSERV | HUMAN SERVICES 119 | 0.0250000000 | $215,750 | $215,750 | $5.39 | | |
| SLDREL | SOLDIERS RELIEF 121 | 0.0155990005 | $215,750 | $215,750 | $3.37 | | |
| EMERGSER | EMS 147 | 0.3792580840 | $215,750 | $215,750 | $81.82 | | |
| EMSRFD | EMS REFUND 147 | 0.0000000000 | $215,750 | $215,750 | $0.00 | | |
| PORTRFD | PORT REFUND 640 | 0.0000000000 | $215,750 | $215,750 | $0.00 | | |
| PORTWWGEN | PORT OF WW 640 | 0.2460186015 | $215,750 | $215,750 | $53.08 | | |
| SD140BOND | SD #140 BOND 764 | 0.8342371393 | $215,750 | $215,750 | $179.99 | | |
| SD140GEN | SD #140 GENERAL 760 | 2.0646500647 | $215,750 | $215,750 | $445.45 | | |
| ST2 | STATE SCHOOL PART 2 600 | 0.8131451643 | $215,750 | $215,750 | $175.44 | | |
| STATESCHL | STATE SCHOOL 600 | 1.5158548041 | $215,750 | $215,750 | $327.05 | | |
| STREFUND | STATE REFUND LEVY 603 | 0.0000000000 | $215,750 | $215,750 | $0.00 | | |
| CWWBOND | C OF WW BOND 643 | 0.2760494372 | $215,750 | $215,750 | $59.56 | | |
| CWWGEN | CITY OF WW 631 | 1.6100204973 | $215,750 | $215,750 | $347.36 | | |
| CWWRFD | CITY OF WALLA WALLA REFUND 631 | 0.0000000000 | $215,750 | $215,750 | $0.00 | | |
| | Total Tax Rate: | 8.7973694689 | | | | | |
| | | | | Taxes w/Current Exemptions: | $1,898.04 | | |
| | | | | Taxes w/o Exemptions: | $1,898.04 | | |
Improvement / Building
| Improvement #1: | RESIDENTIAL | State Code: | 12 | 989.0 sqft | Value: | $149,670 |
| Exterior Wall: | STUCCO | Heating/Cooling: | FORCED AIR | | Number of Bathrooms: | 1 | Number of Bedrooms: | 2 | | Plumbing: | 6 | Roof Covering: | COMP SHINGLE |
|
| | Type | Description | Class CD | Sub Class CD | Year Built | Area |
| | MA | Main Area | 1 | 30 | 1934 | 989.0 |
| | SI1 | SITE IMPROVEMENT | 1 | 30 | 1934 | 1.5 |
| | BASE | BASEMENT | 1 | 30 | 1934 | 391.0 |
| | RPO | OPEN PORCH W/ROOF | 1 | 30 | 1934 | 36.0 |
| | S1F | Single One Story Fireplace | 1 | 30 | 1934 | 1.0 |
| | BMF | BASEMENT - MIN FINISH | 1 | 30 | 1934 | 391.0 |
| Improvement #2: | RESIDENTIAL | State Code: | 12 | 384.0 sqft | Value: | $28,280 |
| Exterior Wall: | SIDING | Foundation: | SLAB FOUNDATION | | Heating/Cooling: | FORCED AIR | Number of Bathrooms: | 1 | | Number of Bedrooms: | 1 | Plumbing: | 6 | | Roof Covering: | COMP SHINGLE |   |   |
|
Sketch
Property Image
Land
| 1 | RES 1 | Converted: Residential | 0.1653 | 7200.00 | 0.00 | 0.00 | 1.00 | $37,800 | $0 |
Roll Value History
| 2026 | N/A | N/A | N/A | N/A | N/A |
| 2025 | $177,300 | $64,800 | $0 | $242,100 | $242,100 |
| 2024 | $177,300 | $64,800 | $0 | $242,100 | $242,100 |
| 2023 | $177,950 | $37,800 | $0 | $215,750 | $215,750 |
| 2022 | $161,770 | $37,800 | $0 | $199,570 | $199,570 |
| 2021 | $115,560 | $37,800 | $0 | $153,360 | $153,360 |
| 2020 | $110,050 | $37,800 | $0 | $147,850 | $147,850 |
| 2019 | $110,050 | $37,800 | $0 | $147,850 | $147,850 |
| 2018 | $110,050 | $37,800 | $0 | $147,850 | $147,850 |
| 2017 | $120,200 | $21,600 | $0 | $141,800 | $141,800 |
| 2016 | $120,200 | $21,600 | $0 | $141,800 | $141,800 |
| 2015 | $120,200 | $21,600 | $0 | $141,800 | $141,800 |
| 2014 | $120,200 | $21,600 | $0 | $141,800 | $141,800 |
| 2013 | $120,200 | $21,600 | $0 | $141,800 | $141,800 |
| 2012 | $120,200 | $21,600 | $0 | $0 | $0 |
| 2011 | $120,200 | $21,600 | $0 | $0 | $0 |
| 2010 | $120,200 | $21,600 | $0 | $0 | $0 |
| 2009 | $135,900 | $21,600 | $0 | $0 | $0 |
| 2008 | $59,800 | $12,600 | $0 | $0 | $0 |
| 2007 | $59,800 | $12,600 | $0 | $0 | $0 |
Deed and Sales History
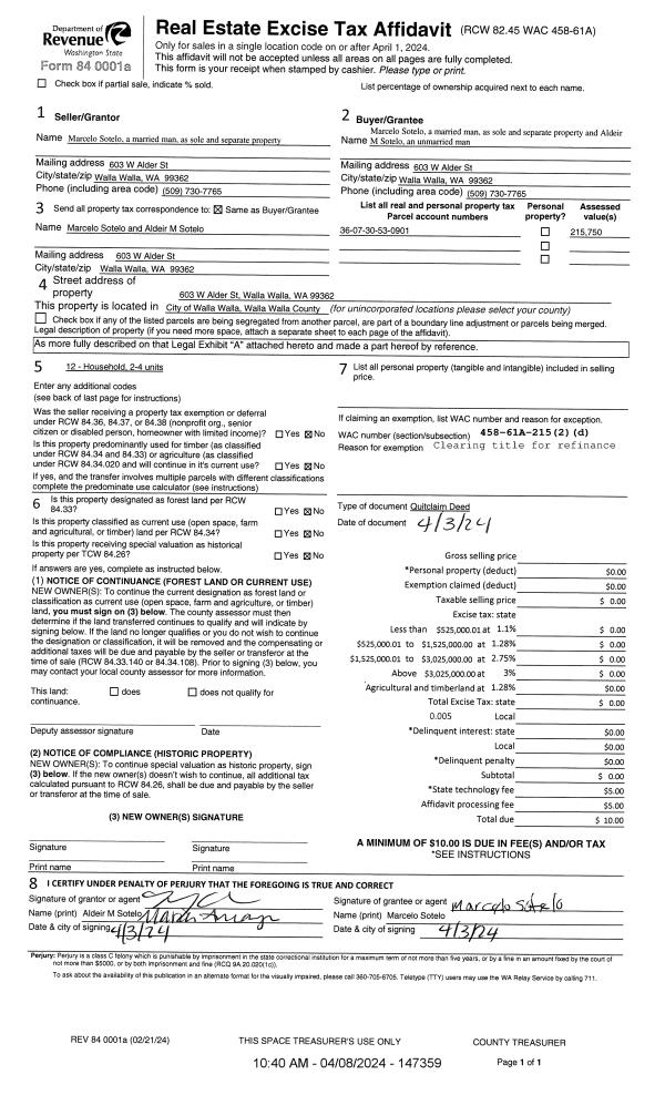
| 1 | 04/08/2024 | QCD | QUIT CLAIM DEED | SOTELO MARCELO | SOTELO MARCELO & ALDEIR M SOTELO | | | | 147359 | 2024-01702 |
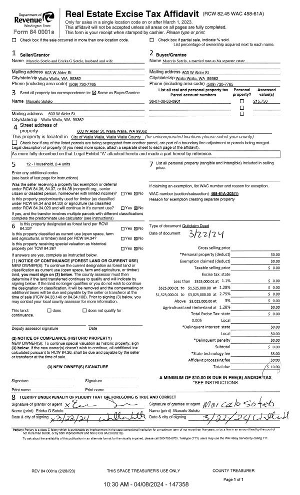
| 2 | 04/08/2024 | QCD | QUIT CLAIM DEED | SOTELO MARCELO & ERICKA G | SOTELO MARCELO | | | | 0 | 2024-01701 |
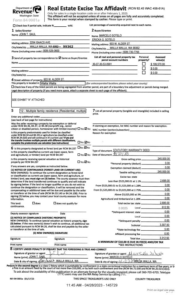
| 3 | 04/28/2023 | SWD | STATUTORY WARRANTY DEED | SAUL JOHN T | SOTELO MARCELO & ERICKA G | | | $245,000.00 | 145729 | 2023-02243 |
| 4 | 08/13/2007 | WARRANTY D | WARRANTY DEED | JUNKE, JOHN SR | SAUL, JON T | | | $128,701.00 | 113497 | 2007-09431 |
| 5 | 04/07/2006 | WARRANTY D | WARRANTY DEED | HOLM, JERRY & JOYCE | JUNKE, JOHN SR | | | $160,000.00 | 109989 | 2006-03982 |
| 6 | 05/20/2005 | WARRANTY D | WARRANTY DEED | AMDOR, ROBERT C & KATHLEEN F | HOLM, JERRY & JOYCE | | | $80,000.00 | 107531 | 2005-06101 |
| 7 | 04/18/1986 | WARRANTY D | WARRANTY DEED | | | | | $33,000.00 | 0 | 1388-304113 |
Payout Agreement
| No payout information available.. |