Property
Account |
| Property ID: | 11328 | Abbreviated Legal Description: | PHASE I OF WHITMAN PUD LTS 109 IN REPLAT OF LTS 3,4,5 |
| Parcel Number: | 350736860010 | Agent Code: | |
| Type: | Real | | |
| Tax Area: | 75 - CP 250 | Land Use Code | 11 |
| Open Space: | N | DFL | N |
| Historic Property: | N | Remodel Property: | N |
| Multi-Family Redevelopment: | N | | |
| Township: | 7 | Section: | 36 |
| Range: | 35 |
Location |
| Address: | 768 SE SONGBIRD LN WA 99324 | Mapsco: | |
| Neighborhood: | G SFR | Map ID: | |
| Neighborhood CD: | 114011 |
Owner |
| Name: | LEO JOSEPH A | Owner ID: | 59688 |
| Mailing Address: | LORETTA CAMARILLO-LEO 244 ASSUMPTION DR WALLA WALLA, WA 99362 | % Ownership: | 100.0000000000% |
| | | Exemptions: | |
Taxes and Assessment Details
Property Tax Information as of
02/21/2026
Click on "Statement Details" to expand or collapse a tax statement.
* Please enter a valid date ** Please enter a valid date *
Statement Details |
| | TOTAL: | $0.00 | $0.00 | $0.00 | $0.00 | $0.00 | $0.00 |
|
| | $0.00 | $0.00 | $0.00 | $0.00 | $0.00 | $0.00 |
Values
| (+) Improvement Homesite Value: | + | $0 | |
| (+) Improvement Non-Homesite Value: | + | $322,530 | |
| (+) Land Homesite Value: | + | $0 | |
| (+) Land Non-Homesite Value: | + | $70,000 | |
| (+) Curr Use (HS): | + | $0 | $0 |
| (+) Curr Use (NHS): | + | $0 | $0 |
| | | -------------------------- | |
| (=) Market Value: | = | $392,530 | |
| (–) Productivity Loss: | – | $0 | |
| | | -------------------------- | |
| (=) Subtotal: | = | $392,530 | |
| (+) Senior Appraised Value: | + | $0 | |
| (+) Non-Senior Appraised Value: | + | $392,530 | |
| | | -------------------------- | |
| (=) Total Appraised Value: | = | $392,530 | |
| (–) Senior Exemption Loss: | – | $0 | |
| (–) Exemption Loss: | – | $0 | |
| | | -------------------------- | |
| (=) Taxable Value: | = | $392,530 | |
Taxing Jurisdiction
| Owner: | LEO JOSEPH A | | |
| % Ownership: | 100.0000000000% | | |
| Total Value: | $392,530 | | |
| Tax Area: | 75 - CP 250 |
| CERFD | CURRENT EXPENSE REFUND 010 | 0.0000000000 | $392,530 | $392,530 | $0.00 | | |
| CURREXP | CURRENT EXPENSE 010 | 1.0175366760 | $392,530 | $392,530 | $399.41 | | |
| HUMNSERV | HUMAN SERVICES 119 | 0.0250000000 | $392,530 | $392,530 | $9.81 | | |
| SLDREL | SOLDIERS RELIEF 121 | 0.0155990005 | $392,530 | $392,530 | $6.12 | | |
| COLLPLBOND | C OF CP BOND 644 | 0.4374241808 | $392,530 | $392,530 | $171.70 | | |
| COLLPLGEN | CITY OF CP 632 | 1.4453819216 | $392,530 | $392,530 | $567.36 | | |
| EMERGSER | EMS 147 | 0.3792580840 | $392,530 | $392,530 | $148.87 | | |
| EMSRFD | EMS REFUND 147 | 0.0000000000 | $392,530 | $392,530 | $0.00 | | |
| RURALLIB | RURAL LIBRARY 623 | 0.3710609029 | $392,530 | $392,530 | $145.65 | | |
| PORTRFD | PORT REFUND 640 | 0.0000000000 | $392,530 | $392,530 | $0.00 | | |
| PORTWWGEN | PORT OF WW 640 | 0.2460186015 | $392,530 | $392,530 | $96.57 | | |
| SD250BOND | SD #250 BOND 773 | 1.4560608159 | $392,530 | $392,530 | $571.55 | | |
| SD250GEN | SD #250 GENERAL 770 | 2.3880724087 | $392,530 | $392,530 | $937.39 | | |
| ST2 | STATE SCHOOL PART 2 600 | 0.8131451643 | $392,530 | $392,530 | $319.18 | | |
| STATESCHL | STATE SCHOOL 600 | 1.5158548041 | $392,530 | $392,530 | $595.02 | | |
| STREFUND | STATE REFUND LEVY 603 | 0.0000000000 | $392,530 | $392,530 | $0.00 | | |
| | Total Tax Rate: | 10.1104125603 | | | | | |
| | | | | Taxes w/Current Exemptions: | $3,968.63 | | |
| | | | | Taxes w/o Exemptions: | $3,968.63 | | |
Improvement / Building
| Improvement #1: | RESIDENTIAL | State Code: | 11 | 1602.0 sqft | Value: | $322,530 |
| Exterior Wall: | VINYL | Heating/Cooling: | WARM & COOLED AIR | | Number of Bathrooms: | 2 | Number of Bedrooms: | 2 | | Plumbing: | 10 | Roof Covering: | COMP SHINGLE |
|
| | Type | Description | Class CD | Sub Class CD | Year Built | Area |
| | MA | Main Area | 1 | 35 | 2002 | 1602.0 |
| | SI1 | SITE IMPROVEMENT | 1 | 35 | 2002 | 2.5 |
| | ATG | Attached Garage | 1 | 35 | 2002 | 420.0 |
| | RPO | OPEN PORCH W/ROOF | 1 | 35 | 2002 | 159.0 |
| | GFP | GAS FIREPLACE | 1 | 35 | 2002 | 1.0 |
Sketch
Property Image
Land
| 1 | RES 1 | Converted: Residential | 0.1444 | 6289.00 | 0.00 | 0.00 | 1.00 | $70,000 | $0 |
Roll Value History
| 2026 | N/A | N/A | N/A | N/A | N/A |
| 2025 | $225,770 | $125,000 | $0 | $350,770 | $350,770 |
| 2024 | $322,530 | $70,000 | $0 | $392,530 | $392,530 |
| 2023 | $322,530 | $70,000 | $0 | $392,530 | $392,530 |
| 2022 | $307,170 | $70,000 | $0 | $377,170 | $377,170 |
| 2021 | $267,100 | $70,000 | $0 | $337,100 | $337,100 |
| 2020 | $202,350 | $70,000 | $0 | $272,350 | $272,350 |
| 2019 | $237,350 | $35,000 | $0 | $272,350 | $272,350 |
| 2018 | $197,790 | $35,000 | $0 | $232,790 | $232,790 |
| 2017 | $171,990 | $35,000 | $0 | $206,990 | $206,990 |
| 2016 | $163,800 | $35,000 | $0 | $198,800 | $198,800 |
| 2015 | $163,800 | $35,000 | $0 | $198,800 | $198,800 |
| 2014 | $182,000 | $35,000 | $0 | $217,000 | $217,000 |
| 2013 | $182,000 | $35,000 | $0 | $217,000 | $217,000 |
| 2012 | $163,400 | $65,000 | $0 | $0 | $0 |
| 2011 | $175,400 | $65,000 | $0 | $0 | $0 |
| 2010 | $175,400 | $65,000 | $0 | $0 | $0 |
| 2009 | $188,100 | $65,000 | $0 | $0 | $0 |
| 2008 | $126,100 | $30,000 | $0 | $0 | $0 |
| 2007 | $126,100 | $30,000 | $0 | $0 | $0 |
Deed and Sales History
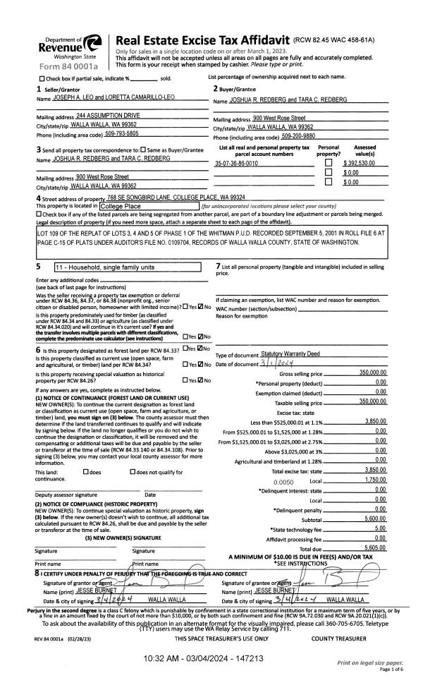
| 1 | 03/04/2024 | SWD | STATUTORY WARRANTY DEED | LEO JOSEPH A | REDBERG JOSHUA R & TARA C | | | $350,000.00 | 147213 | 2024-01066 |
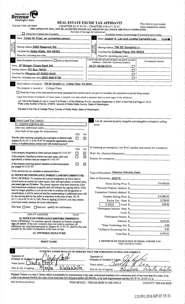
| 2 | 09/22/2016 | SWD | STATUTORY WARRANTY DEED | FROST CINDY M | LEO JOSEPH A | | | $214,000.00 | 131091 | 2016-07756 |
| 3 | 10/25/2005 | WARRANTY D | WARRANTY DEED | GILBERT, MARK W & SUSAN G | FROST, CINDY M | | | $185,000.00 | 108845 | 2005-13365 |
| 4 | 01/31/2003 | WARRANTY D | WARRANTY DEED | CONKLIN, DAVID W & JEAN F | GILBERT, MARK W & SUSAN G | | | $155,000.00 | 101311 | 2003-01452 |
Payout Agreement
| No payout information available.. |