Property
Account |
| Property ID: | 11326 | Abbreviated Legal Description: | REPLAT LOTS 3,4,5 PHASE 1 OF WHITMAN PUD LOT 104 |
| Parcel Number: | 350736860005 | Agent Code: | |
| Type: | Real | | |
| Tax Area: | 75 - CP 250 | Land Use Code | 11 |
| Open Space: | N | DFL | N |
| Historic Property: | N | Remodel Property: | N |
| Multi-Family Redevelopment: | N | | |
| Township: | 7 | Section: | 36 |
| Range: | 35 |
Location |
| Address: | 749 SE SONGBIRD LN WA 99324 | Mapsco: | |
| Neighborhood: | G SFR | Map ID: | |
| Neighborhood CD: | 114011 |
Owner |
| Name: | RYE ALISHA | Owner ID: | 71935 |
| Mailing Address: | 749 SE SONGBIRD LN COLLEGE PLACE, WA 99324 | % Ownership: | 100.0000000000% |
| | | Exemptions: | |
Taxes and Assessment Details
Values
| (+) Improvement Homesite Value: | + | $0 | |
| (+) Improvement Non-Homesite Value: | + | $385,940 | |
| (+) Land Homesite Value: | + | $0 | |
| (+) Land Non-Homesite Value: | + | $70,000 | |
| (+) Curr Use (HS): | + | $0 | $0 |
| (+) Curr Use (NHS): | + | $0 | $0 |
| | | -------------------------- | |
| (=) Market Value: | = | $455,940 | |
| (–) Productivity Loss: | – | $0 | |
| | | -------------------------- | |
| (=) Subtotal: | = | $455,940 | |
| (+) Senior Appraised Value: | + | $0 | |
| (+) Non-Senior Appraised Value: | + | $455,940 | |
| | | -------------------------- | |
| (=) Total Appraised Value: | = | $455,940 | |
| (–) Senior Exemption Loss: | – | $0 | |
| (–) Exemption Loss: | – | $0 | |
| | | -------------------------- | |
| (=) Taxable Value: | = | $455,940 | |
Taxing Jurisdiction
| Owner: | RYE ALISHA | | |
| % Ownership: | 100.0000000000% | | |
| Total Value: | $455,940 | | |
| Tax Area: | 75 - CP 250 |
| CERFD | CURRENT EXPENSE REFUND 010 | 0.0000000000 | $455,940 | $455,940 | $0.00 | | |
| CURREXP | CURRENT EXPENSE 010 | 1.0175366760 | $455,940 | $455,940 | $463.94 | | |
| HUMNSERV | HUMAN SERVICES 119 | 0.0250000000 | $455,940 | $455,940 | $11.40 | | |
| SLDREL | SOLDIERS RELIEF 121 | 0.0155990005 | $455,940 | $455,940 | $7.11 | | |
| COLLPLBOND | C OF CP BOND 644 | 0.4374241808 | $455,940 | $455,940 | $199.44 | | |
| COLLPLGEN | CITY OF CP 632 | 1.4453819216 | $455,940 | $455,940 | $659.01 | | |
| EMERGSER | EMS 147 | 0.3792580840 | $455,940 | $455,940 | $172.92 | | |
| EMSRFD | EMS REFUND 147 | 0.0000000000 | $455,940 | $455,940 | $0.00 | | |
| RURALLIB | RURAL LIBRARY 623 | 0.3710609029 | $455,940 | $455,940 | $169.18 | | |
| PORTRFD | PORT REFUND 640 | 0.0000000000 | $455,940 | $455,940 | $0.00 | | |
| PORTWWGEN | PORT OF WW 640 | 0.2460186015 | $455,940 | $455,940 | $112.17 | | |
| SD250BOND | SD #250 BOND 773 | 1.4560608159 | $455,940 | $455,940 | $663.88 | | |
| SD250GEN | SD #250 GENERAL 770 | 2.3880724087 | $455,940 | $455,940 | $1,088.82 | | |
| ST2 | STATE SCHOOL PART 2 600 | 0.8131451643 | $455,940 | $455,940 | $370.75 | | |
| STATESCHL | STATE SCHOOL 600 | 1.5158548041 | $455,940 | $455,940 | $691.14 | | |
| STREFUND | STATE REFUND LEVY 603 | 0.0000000000 | $455,940 | $455,940 | $0.00 | | |
| | Total Tax Rate: | 10.1104125603 | | | | | |
| | | | | Taxes w/Current Exemptions: | $4,609.76 | | |
| | | | | Taxes w/o Exemptions: | $4,609.76 | | |
Improvement / Building
| Improvement #1: | RESIDENTIAL | State Code: | 11 | 2176.0 sqft | Value: | $385,940 |
| Exterior Wall: | VINYL | Heating/Cooling: | WARM & COOLED AIR | | Number of Bathrooms: | 4 | Number of Bedrooms: | 3 | | Plumbing: | 16 | Roof Covering: | COMP SHINGLE |
|
| | Type | Description | Class CD | Sub Class CD | Year Built | Area |
| | MA | Main Area | 2 | 35 | 2005 | 2176.0 |
| | UPFL | Upper Floor (included in main area) | 2 | 35 | 2005 | 816.0 |
| | SI1 | SITE IMPROVEMENT | 2 | 35 | 2005 | 2.5 |
| | GFP | GAS FIREPLACE | 2 | 35 | 2005 | 1.0 |
| | RPC | OPEN PORCH W/ROOF , CEILED | 2 | 35 | 2005 | 48.0 |
| | ATG | Attached Garage | 2 | 35 | 2005 | 440.0 |
Sketch
Property Image
Land
| 1 | RES 1 | Converted: Residential | 0.1101 | 4798.00 | 0.00 | 0.00 | 1.00 | $70,000 | $0 |
Roll Value History
| 2026 | N/A | N/A | N/A | N/A | N/A |
| 2025 | $289,460 | $125,000 | $0 | $414,460 | $414,460 |
| 2024 | $385,940 | $70,000 | $0 | $455,940 | $455,940 |
| 2023 | $385,940 | $70,000 | $0 | $455,940 | $455,940 |
| 2022 | $308,750 | $70,000 | $0 | $378,750 | $378,750 |
| 2021 | $294,050 | $70,000 | $0 | $364,050 | $364,050 |
| 2020 | $235,240 | $70,000 | $0 | $305,240 | $305,240 |
| 2019 | $270,240 | $35,000 | $0 | $305,240 | $305,240 |
| 2018 | $225,200 | $35,000 | $0 | $260,200 | $260,200 |
| 2017 | $218,640 | $35,000 | $0 | $253,640 | $253,640 |
| 2016 | $198,770 | $35,000 | $0 | $233,770 | $233,770 |
| 2015 | $198,770 | $35,000 | $0 | $233,770 | $233,770 |
| 2014 | $189,300 | $35,000 | $0 | $224,300 | $224,300 |
| 2013 | $189,300 | $35,000 | $0 | $224,300 | $224,300 |
| 2012 | $171,100 | $65,000 | $0 | $0 | $0 |
| 2011 | $183,500 | $65,000 | $0 | $0 | $0 |
| 2010 | $183,500 | $65,000 | $0 | $0 | $0 |
| 2009 | $196,600 | $65,000 | $0 | $0 | $0 |
| 2008 | $188,900 | $30,000 | $0 | $0 | $0 |
| 2007 | $188,900 | $30,000 | $0 | $0 | $0 |
Deed and Sales History
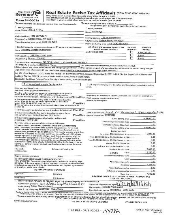
| 1 | 07/11/2022 | DPR | DEED OF PERSONAL REPRESENTATIVE | WINN HUGH P ESTATE OF | RYE ALISHA | | | $459,000.00 | 144282 | 2022-05864 |
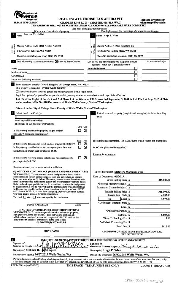
| 2 | 06/10/2019 | SWD | STATUTORY WARRANTY DEED | TERRIBILINI BRUCE A | WINN HUGH P ESTATE OF | | | $315,000.00 | 137044 | 2019-04002 |
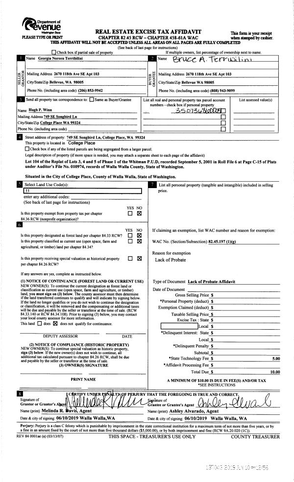
| 3 | 06/10/2019 | LOPA | LACK OF PROBATE AFFIDAVIT | TERRIBILINI BRUCE A & GEORGIA N | TERRIBILINI BRUCE A | | | $0.00 | 137043 | 2019-04001 |
| 4 | 10/04/2005 | WARRANTY D | WARRANTY DEED | CONKLIN, DAVID W & JEAN F | TERRIBILINI, BRUCE A & GEORGIA | | | $235,000.00 | 108668 | 2005-12398 |
Payout Agreement
| No payout information available.. |