Property
Account |
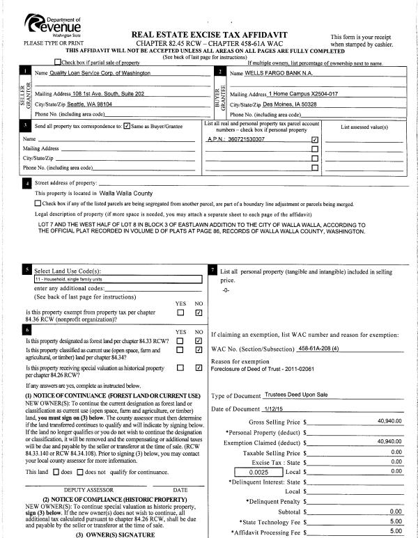
| Property ID: | 11323 | Abbreviated Legal Description: | EASTLAWN LOT 7 & W 1/2 OF LOT 8 BLK 3 |
| Parcel Number: | 360721530307 | Agent Code: | |
| Type: | Real | | |
| Tax Area: | 1 - OL-140-F | Land Use Code | 11 |
| Open Space: | N | DFL | N |
| Historic Property: | N | Remodel Property: | N |
| Multi-Family Redevelopment: | N | | |
| Township: | 7 | Section: | 21 |
| Range: | 36 |
Location |
| Address: | 1533 HOBSON ST WA 99362 | Mapsco: | |
| Neighborhood: | A-SFR | Map ID: | |
| Neighborhood CD: | 513011 |
Owner |
| Name: | BEAL ROBERT L & DEBORAH J | Owner ID: | 34255 |
| Mailing Address: | 356 BEAL LN TOUCHET, WA 99360 | % Ownership: | 100.0000000000% |
| | | Exemptions: | |
Taxes and Assessment Details
Values
| (+) Improvement Homesite Value: | + | $0 | |
| (+) Improvement Non-Homesite Value: | + | $126,220 | |
| (+) Land Homesite Value: | + | $0 | |
| (+) Land Non-Homesite Value: | + | $49,500 | |
| (+) Curr Use (HS): | + | $0 | $0 |
| (+) Curr Use (NHS): | + | $0 | $0 |
| | | -------------------------- | |
| (=) Market Value: | = | $175,720 | |
| (–) Productivity Loss: | – | $0 | |
| | | -------------------------- | |
| (=) Subtotal: | = | $175,720 | |
| (+) Senior Appraised Value: | + | $0 | |
| (+) Non-Senior Appraised Value: | + | $175,720 | |
| | | -------------------------- | |
| (=) Total Appraised Value: | = | $175,720 | |
| (–) Senior Exemption Loss: | – | $0 | |
| (–) Exemption Loss: | – | $0 | |
| | | -------------------------- | |
| (=) Taxable Value: | = | $175,720 | |
Taxing Jurisdiction
| Owner: | BEAL ROBERT L & DEBORAH J | | |
| % Ownership: | 100.0000000000% | | |
| Total Value: | $175,720 | | |
| Tax Area: | 1 - OL-140-F |
| CERFD | CURRENT EXPENSE REFUND 010 | 0.0000000000 | $175,720 | $175,720 | $0.00 | | |
| CURREXP | CURRENT EXPENSE 010 | 1.0175366760 | $175,720 | $175,720 | $178.80 | | |
| HUMNSERV | HUMAN SERVICES 119 | 0.0250000000 | $175,720 | $175,720 | $4.39 | | |
| SLDREL | SOLDIERS RELIEF 121 | 0.0155990005 | $175,720 | $175,720 | $2.74 | | |
| EMERGSER | EMS 147 | 0.3792580840 | $175,720 | $175,720 | $66.64 | | |
| EMSRFD | EMS REFUND 147 | 0.0000000000 | $175,720 | $175,720 | $0.00 | | |
| PORTRFD | PORT REFUND 640 | 0.0000000000 | $175,720 | $175,720 | $0.00 | | |
| PORTWWGEN | PORT OF WW 640 | 0.2460186015 | $175,720 | $175,720 | $43.23 | | |
| SD140BOND | SD #140 BOND 764 | 0.8342371393 | $175,720 | $175,720 | $146.59 | | |
| SD140GEN | SD #140 GENERAL 760 | 2.0646500647 | $175,720 | $175,720 | $362.80 | | |
| ST2 | STATE SCHOOL PART 2 600 | 0.8131451643 | $175,720 | $175,720 | $142.89 | | |
| STATESCHL | STATE SCHOOL 600 | 1.5158548041 | $175,720 | $175,720 | $266.37 | | |
| STREFUND | STATE REFUND LEVY 603 | 0.0000000000 | $175,720 | $175,720 | $0.00 | | |
| CWWBOND | C OF WW BOND 643 | 0.2760494372 | $175,720 | $175,720 | $48.51 | | |
| CWWGEN | CITY OF WW 631 | 1.6100204973 | $175,720 | $175,720 | $282.91 | | |
| CWWRFD | CITY OF WALLA WALLA REFUND 631 | 0.0000000000 | $175,720 | $175,720 | $0.00 | | |
| | Total Tax Rate: | 8.7973694689 | | | | | |
| | | | | Taxes w/Current Exemptions: | $1,545.87 | | |
| | | | | Taxes w/o Exemptions: | $1,545.87 | | |
Improvement / Building
| Improvement #1: | RESIDENTIAL | State Code: | 11 | 792.0 sqft | Value: | $126,220 |
| Exterior Wall: | SIDING | Foundation: | SLAB FOUNDATION | | Heating/Cooling: | BASEBOARD ELECTRIC | Number of Bathrooms: | 1 | | Number of Bedrooms: | 2 | Plumbing: | 6 | | Roof Covering: | COMP SHINGLE |   |   |
|
| | Type | Description | Class CD | Sub Class CD | Year Built | Area |
| | MA | Main Area | 1 | 20 | 1949 | 792.0 |
| | SI1 | SITE IMPROVEMENT | 1 | 20 | 1949 | 1.0 |
Sketch
Property Image
Land
| 1 | RES 1 | Converted: Residential | 0.1818 | 7920.00 | 0.00 | 0.00 | 1.00 | $49,500 | $0 |
Roll Value History
| 2026 | N/A | N/A | N/A | N/A | N/A |
| 2025 | $117,520 | $79,200 | $0 | $196,720 | $196,720 |
| 2024 | $90,400 | $79,200 | $0 | $169,600 | $169,600 |
| 2023 | $126,220 | $49,500 | $0 | $175,720 | $175,720 |
| 2022 | $126,220 | $49,500 | $0 | $175,720 | $175,720 |
| 2021 | $90,160 | $49,500 | $0 | $139,660 | $139,660 |
| 2020 | $56,350 | $49,500 | $0 | $105,850 | $105,850 |
| 2019 | $56,350 | $49,500 | $0 | $105,850 | $105,850 |
| 2018 | $40,250 | $49,500 | $0 | $89,750 | $89,750 |
| 2017 | $36,900 | $31,700 | $0 | $68,600 | $68,600 |
| 2016 | $30,750 | $31,700 | $0 | $62,450 | $62,450 |
| 2015 | $30,750 | $31,700 | $0 | $62,450 | $62,450 |
| 2014 | $41,000 | $31,700 | $0 | $72,700 | $72,700 |
| 2013 | $41,000 | $31,700 | $0 | $72,700 | $72,700 |
| 2012 | $48,700 | $31,700 | $0 | $0 | $0 |
| 2011 | $48,700 | $31,700 | $0 | $0 | $0 |
| 2010 | $35,300 | $31,700 | $0 | $0 | $0 |
| 2009 | $42,700 | $31,700 | $0 | $0 | $0 |
| 2008 | $42,700 | $31,700 | $0 | $0 | $0 |
| 2007 | $42,700 | $31,700 | $0 | $0 | $0 |
Deed and Sales History
| 1 | 08/21/2015 | SWP | Special Warranty Deed | SECRETARY OF HOUSING & URBAN DEV | BEAL ROBERT L & DEBORAH J | | | $46,100.00 | 128661 | 2015-07328 |
| 2 | 05/29/2015 | SWP | Special Warranty Deed | WELLS FARGO BANK NA | SECRETARY OF HOUSING & URBAN DEV | | | $0.00 | 128151 | 2015-04937 |
| 3 | 01/15/2015 | TRUSTEES D | TRUSTEE'S DEED | DOAN LESLI | WELLS FARGO BANK NA | | | $40,940.00 | 127278 | 2015-00357 |
| 4 | 08/22/2008 | WARRANTY D | WARRANTY DEED | SPAIN, DENISE L | DOAN, LESLI | | | $93,500.00 | 115536 | 2008-08704 |
| 5 | 07/27/2004 | QCD | QUIT CLAIM DEED | SMITH, KEVIN C | SMITH, DENISE L | | | | 105334 | 2004-08488 |
| 6 | 07/27/2004 | WARRANTY D | WARRANTY DEED | HERBST, LISA M | SMITH, DENISE L | | | $77,400.00 | 105335 | 2004-08489 |
| 7 | 04/16/1999 | WARRANTY D | WARRANTY DEED | | | | | $58,900.00 | 92575 | 2829-904668 |
Payout Agreement
| No payout information available.. |