Property
Account |
| Property ID: | 11316 | Abbreviated Legal Description: | BLALOCK ORCHARDS LOT D-2 OF SHORT PLAT (PTN TAX 4) BLOCK 31 |
| Parcel Number: | 350726523136 | Agent Code: | |
| Type: | Real | | |
| Tax Area: | 311 - 250-4 | Land Use Code | 11 |
| Open Space: | N | DFL | N |
| Historic Property: | N | Remodel Property: | N |
| Multi-Family Redevelopment: | N | | |
| Township: | 7 | Section: | 26 |
| Range: | 35 |
Location |
| Address: | 32 RUSSET RD WA 99324 | Mapsco: | |
| Neighborhood: | A SFR Rural/City Infl | Map ID: | |
| Neighborhood CD: | 313012 |
Owner |
| Name: | FERGUSON ROBIN D & LORRAINE | Owner ID: | 54770 |
| Mailing Address: | 32 RUSSET RD WALLA WALLA, WA 99362 | % Ownership: | 100.0000000000% |
| | | Exemptions: | |
Taxes and Assessment Details
Property Tax Information as of
02/21/2026
Click on "Statement Details" to expand or collapse a tax statement.
* Please enter a valid date ** Please enter a valid date *
Statement Details |
| | TOTAL: | $0.00 | $0.00 | $0.00 | $0.00 | $0.00 | $0.00 |
|
| | $0.00 | $0.00 | $0.00 | $0.00 | $0.00 | $0.00 |
Values
| (+) Improvement Homesite Value: | + | $0 | |
| (+) Improvement Non-Homesite Value: | + | $616,540 | |
| (+) Land Homesite Value: | + | $0 | |
| (+) Land Non-Homesite Value: | + | $91,190 | |
| (+) Curr Use (HS): | + | $0 | $0 |
| (+) Curr Use (NHS): | + | $0 | $0 |
| | | -------------------------- | |
| (=) Market Value: | = | $707,730 | |
| (–) Productivity Loss: | – | $0 | |
| | | -------------------------- | |
| (=) Subtotal: | = | $707,730 | |
| (+) Senior Appraised Value: | + | $0 | |
| (+) Non-Senior Appraised Value: | + | $707,730 | |
| | | -------------------------- | |
| (=) Total Appraised Value: | = | $707,730 | |
| (–) Senior Exemption Loss: | – | $0 | |
| (–) Exemption Loss: | – | $0 | |
| | | -------------------------- | |
| (=) Taxable Value: | = | $707,730 | |
Taxing Jurisdiction
| Owner: | FERGUSON ROBIN D & LORRAINE | | |
| % Ownership: | 100.0000000000% | | |
| Total Value: | $707,730 | | |
| Tax Area: | 311 - 250-4 |
| CERFD | CURRENT EXPENSE REFUND 010 | 0.0000000000 | $707,730 | $707,730 | $0.00 | | |
| CURREXP | CURRENT EXPENSE 010 | 1.0175366760 | $707,730 | $707,730 | $720.14 | | |
| HUMNSERV | HUMAN SERVICES 119 | 0.0250000000 | $707,730 | $707,730 | $17.69 | | |
| SLDREL | SOLDIERS RELIEF 121 | 0.0155990005 | $707,730 | $707,730 | $11.04 | | |
| EMERGSER | EMS 147 | 0.3792580840 | $707,730 | $707,730 | $268.41 | | |
| EMSRFD | EMS REFUND 147 | 0.0000000000 | $707,730 | $707,730 | $0.00 | | |
| FD4EXP | FD #4 EXPENSE 686 | 0.8836993059 | $707,730 | $707,730 | $625.42 | | |
| RLBRFD | RURAL LIBRARY REFUND 623 | 0.0000000000 | $707,730 | $707,730 | $0.00 | | |
| RURALLIB | RURAL LIBRARY 623 | 0.3710609029 | $707,730 | $707,730 | $262.61 | | |
| PORTRFD | PORT REFUND 640 | 0.0000000000 | $707,730 | $707,730 | $0.00 | | |
| PORTWWGEN | PORT OF WW 640 | 0.2460186015 | $707,730 | $707,730 | $174.11 | | |
| SD250BOND | SD #250 BOND 773 | 1.4560608159 | $707,730 | $707,730 | $1,030.50 | | |
| SD250GEN | SD #250 GENERAL 770 | 2.3880724087 | $707,730 | $707,730 | $1,690.11 | | |
| ST2 | STATE SCHOOL PART 2 600 | 0.8131451643 | $707,730 | $707,730 | $575.49 | | |
| STATESCHL | STATE SCHOOL 600 | 1.5158548041 | $707,730 | $707,730 | $1,072.82 | | |
| STREFUND | STATE REFUND LEVY 603 | 0.0000000000 | $707,730 | $707,730 | $0.00 | | |
| COROAD | COUNTY ROAD 115 | 1.6549953990 | $707,730 | $707,730 | $1,171.29 | | |
| CRPRD | COUNTY ROAD REFUND 115 | 0.0000000000 | $707,730 | $707,730 | $0.00 | | |
| | Total Tax Rate: | 10.7663011628 | | | | | |
| | | | | Taxes w/Current Exemptions: | $7,619.63 | | |
| | | | | Taxes w/o Exemptions: | $7,619.63 | | |
Improvement / Building
| Improvement #1: | RESIDENTIAL | State Code: | 11 | 2354.0 sqft | Value: | $616,540 |
| Exterior Wall: | HARDBOARD | Heating/Cooling: | WARM & COOLED AIR | | Number of Bathrooms: | 3.5 | Number of Bedrooms: | 4 | | Plumbing: | 12 | Roof Covering: | COMP SHINGLE |
|
| | Type | Description | Class CD | Sub Class CD | Year Built | Area |
| | MA | Main Area | 1 | 40 | 2004 | 2354.0 |
| | GFP | GAS FIREPLACE | 1 | 40 | 0 | 1.0 |
| | SI1 | SITE IMPROVEMENT | 1 | 40 | 0 | 3.0 |
| | BASE | BASEMENT | 1 | 40 | 2004 | 1230.0 |
| | BMF | BASEMENT - MIN FINISH | 1 | 40 | 2004 | 1230.0 |
| | ATG | Attached Garage | 1 | 40 | 2004 | 894.0 |
| | RPO | OPEN PORCH W/ROOF | 1 | 40 | 2004 | 49.0 |
| | WOD | Wood Deck | 1 | 40 | 2004 | 253.0 |
Sketch
Property Image
Land
| 1 | RES 1 | Converted: Residential | 0.5300 | 23087.00 | 0.00 | 0.00 | 1.00 | $91,190 | $0 |
Roll Value History
| 2026 | N/A | N/A | N/A | N/A | N/A |
| 2025 | $616,540 | $91,190 | $0 | $707,730 | $707,730 |
| 2024 | $616,540 | $91,190 | $0 | $707,730 | $707,730 |
| 2023 | $616,540 | $91,190 | $0 | $707,730 | $707,730 |
| 2022 | $493,230 | $91,190 | $0 | $584,420 | $584,420 |
| 2021 | $418,720 | $58,200 | $0 | $476,920 | $476,920 |
| 2020 | $395,020 | $58,200 | $0 | $453,220 | $453,220 |
| 2019 | $395,020 | $58,200 | $0 | $453,220 | $453,220 |
| 2018 | $383,520 | $58,200 | $0 | $441,720 | $441,720 |
| 2017 | $333,490 | $58,200 | $0 | $391,690 | $391,690 |
| 2016 | $317,610 | $58,200 | $0 | $375,810 | $375,810 |
| 2015 | $307,680 | $58,200 | $0 | $365,880 | $365,880 |
| 2014 | $256,400 | $58,200 | $0 | $314,600 | $314,600 |
| 2013 | $256,400 | $58,200 | $0 | $314,600 | $314,600 |
| 2012 | $256,400 | $58,200 | $0 | $0 | $0 |
| 2011 | $256,400 | $58,200 | $0 | $0 | $0 |
| 2010 | $252,900 | $58,200 | $0 | $0 | $0 |
| 2009 | $309,300 | $36,400 | $0 | $0 | $0 |
| 2008 | $229,500 | $36,400 | $0 | $0 | $0 |
| 2007 | $229,500 | $36,400 | $0 | $0 | $0 |
Deed and Sales History
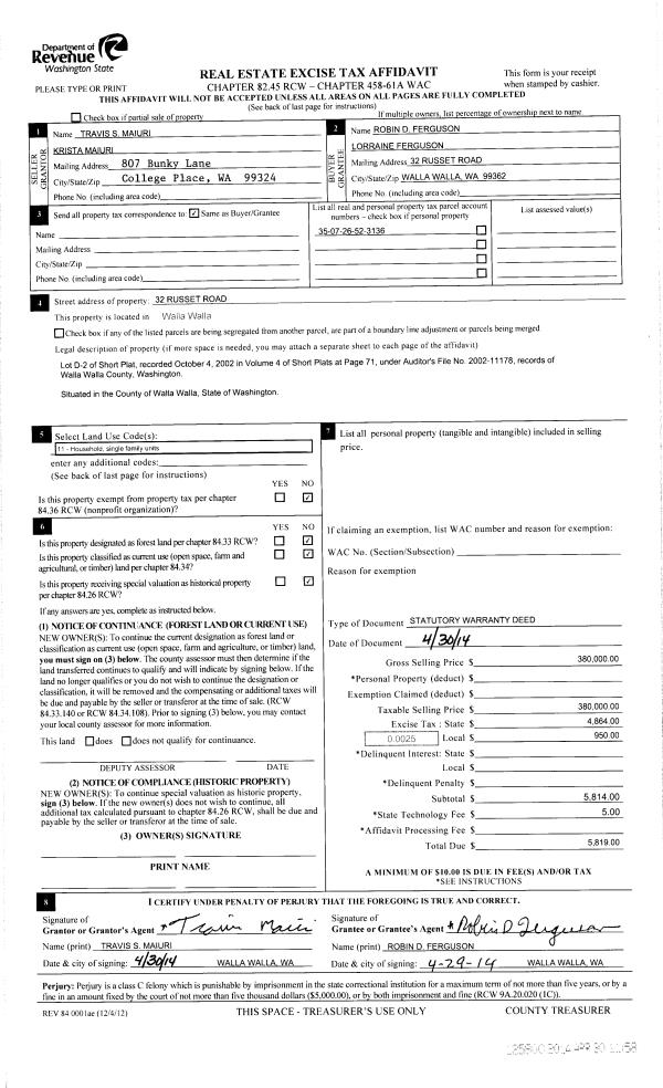
| 1 | 04/30/2014 | SWD | STATUTORY WARRANTY DEED | MAIURI TRAVIS & KRISTA | FERGUSON ROBIN D & LORRAINE | | | $380,000.00 | 125800 | 2014-02919 |
| 2 | 11/08/2002 | QCD | QUIT CLAIM DEED | MAIURI, DONALD R & JERRI ANN | MAIURI, TRAVIS & KRISTA | | | | 100783 | 2002-12790 |
Payout Agreement
| No payout information available.. |