Property
Account |
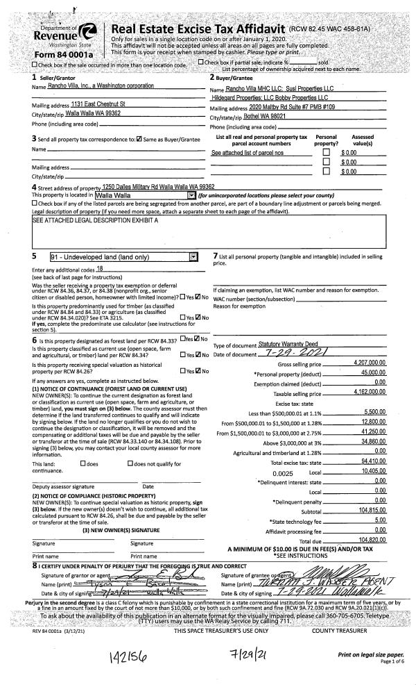
| Property ID: | 11309 | Abbreviated Legal Description: | 30-7-36 TAX 47, LESS NLY PTN LESS WESTDALE FIRST ADDN LESS TAX 47A,60, 61, & 59 |
| Parcel Number: | 360730430013 | Agent Code: | |
| Type: | Real | | |
| Tax Area: | 1 - OL-140-F | Land Use Code | 15 |
| Open Space: | N | DFL | N |
| Historic Property: | N | Remodel Property: | N |
| Multi-Family Redevelopment: | N | | |
| Township: | 7 | Section: | 30 |
| Range: | 36 |
Location |
| Address: | 1250 THE DALLES MILITARY RD WALLA WALLA, WA 99362 | Mapsco: | |
| Neighborhood: | COLLEGE PLACE 1 | Map ID: | |
| Neighborhood CD: | 1341 |
Owner |
| Name: | RANCHO VILLA MHC LLC ET AL | Owner ID: | 69976 |
| Mailing Address: | 2020 MALTBY RD STE #7 PMB #109 BOTHEL, WA 98021 | % Ownership: | 100.0000000000% |
| | | Exemptions: | |
Taxes and Assessment Details
Property Tax Information as of
02/21/2026
Click on "Statement Details" to expand or collapse a tax statement.
* Please enter a valid date ** Please enter a valid date *
Statement Details |
| | TOTAL: | $0.00 | $0.00 | $0.00 | $0.00 | $0.00 | $0.00 |
|
| | $0.00 | $0.00 | $0.00 | $0.00 | $0.00 | $0.00 |
Values
| (+) Improvement Homesite Value: | + | N/A | |
| (+) Improvement Non-Homesite Value: | + | N/A | |
| (+) Land Homesite Value: | + | N/A | |
| (+) Land Non-Homesite Value: | + | N/A | Ag / Timber Use Value |
| (+) Curr Use (HS): | + | N/A | N/A |
| (+) Curr Use (NHS): | + | N/A | N/A |
| | | -------------------------- | |
| (=) Market Value: | = | N/A | |
| (–) Productivity Loss: | – | N/A | |
| | | -------------------------- | |
| (=) Subtotal: | = | N/A | |
| (+) Senior Appraised Value: | + | N/A | |
| (+) Non-Senior Appraised Value: | + | N/A | |
| | | -------------------------- | |
| (=) Total Appraised Value: | = | N/A | |
| (–) Senior Exemption Loss: | – | N/A | |
| (–) Exemption Loss: | – | N/A | |
| | | -------------------------- | |
| (=) Taxable Value: | = | N/A | |
Taxing Jurisdiction
| Owner: | RANCHO VILLA MHC LLC ET AL | | |
| % Ownership: | 100.0000000000% | | |
| Total Value: | N/A | | |
| Tax Area: | 1 - OL-140-F |
| CERFD | CURRENT EXPENSE REFUND 010 | N/A | N/A | N/A | N/A | | |
| CURREXP | CURRENT EXPENSE 010 | N/A | N/A | N/A | N/A | | |
| HUMNSERV | HUMAN SERVICES 119 | N/A | N/A | N/A | N/A | | |
| SLDREL | SOLDIERS RELIEF 121 | N/A | N/A | N/A | N/A | | |
| EMERGSER | EMS 147 | N/A | N/A | N/A | N/A | | |
| EMSRFD | EMS REFUND 147 | N/A | N/A | N/A | N/A | | |
| PORTRFD | PORT REFUND 640 | N/A | N/A | N/A | N/A | | |
| PORTWWGEN | PORT OF WW 640 | N/A | N/A | N/A | N/A | | |
| SD140BOND | SD #140 BOND 764 | N/A | N/A | N/A | N/A | | |
| SD140GEN | SD #140 GENERAL 760 | N/A | N/A | N/A | N/A | | |
| ST2 | STATE SCHOOL PART 2 600 | N/A | N/A | N/A | N/A | | |
| STATESCHL | STATE SCHOOL 600 | N/A | N/A | N/A | N/A | | |
| STREFUND | STATE REFUND LEVY 603 | N/A | N/A | N/A | N/A | | |
| CWWBOND | C OF WW BOND 643 | N/A | N/A | N/A | N/A | | |
| CWWGEN | CITY OF WW 631 | N/A | N/A | N/A | N/A | | |
| CWWRFD | CITY OF WALLA WALLA REFUND 631 | N/A | N/A | N/A | N/A | | |
| | Total Tax Rate: | N/A | | | | | |
| | | | | Taxes w/Current Exemptions: | N/A | | |
| | | | | Taxes w/o Exemptions: | N/A | | |
Improvement / Building
| Improvement #1: | COMMERCIAL | State Code: | 15 | 64220.0 sqft | Value: | N/A |
| | Type | Description | Class CD | Sub Class CD | Year Built | Area |
| | MA | Main Area | D | | 1990 | 64220.0 |
| | SI1 | SITE IMPROVEMENT | 1 | 30 | 1990 | 50.0 |
| | MPG | MH Park Good | D | * | 1990 | 162.0 |
Sketch
Property Image
Land
| 1 | COM 1 | Converted: Commercial | 14.1000 | 614196.00 | 0.00 | 0.00 | 1.00 | N/A | N/A |
Roll Value History
| 2026 | N/A | N/A | N/A | N/A | N/A |
| 2025 | $4,439,100 | $958,800 | $0 | $5,397,900 | $5,397,900 |
| 2024 | $4,439,100 | $958,800 | $0 | $5,397,900 | $5,397,900 |
| 2023 | $4,543,800 | $921,300 | $0 | $5,465,100 | $5,465,100 |
| 2022 | $1,497,600 | $921,300 | $0 | $2,418,900 | $2,418,900 |
| 2021 | $1,497,600 | $921,300 | $0 | $2,418,900 | $2,418,900 |
| 2020 | $1,497,600 | $921,300 | $0 | $2,418,900 | $2,418,900 |
| 2019 | $1,784,400 | $634,500 | $0 | $2,418,900 | $2,418,900 |
| 2018 | $1,784,400 | $634,500 | $0 | $2,418,900 | $2,418,900 |
| 2017 | $1,784,400 | $634,500 | $0 | $2,418,900 | $2,418,900 |
| 2016 | $1,784,400 | $634,500 | $0 | $2,418,900 | $2,418,900 |
| 2015 | $1,784,400 | $634,500 | $0 | $2,418,900 | $2,418,900 |
| 2014 | $1,784,400 | $634,500 | $0 | $2,418,900 | $2,418,900 |
| 2013 | $1,754,200 | $634,500 | $0 | $2,388,700 | $2,388,700 |
| 2012 | $1,754,200 | $634,500 | $0 | $0 | $0 |
| 2011 | $1,754,200 | $634,500 | $0 | $0 | $0 |
| 2010 | $1,754,200 | $634,500 | $0 | $0 | $0 |
| 2009 | $1,754,200 | $634,500 | $0 | $0 | $0 |
| 2008 | $1,331,600 | $614,200 | $0 | $0 | $0 |
| 2007 | $1,331,600 | $614,200 | $0 | $0 | $0 |
Deed and Sales History
| 1 | 07/29/2021 | AGREEMENT | AGREEMENT | RANCHO VILLA MHC LLC ET AL | | | | | 0 | 2021-09263 |
| 2 | 07/29/2021 | AGREEMENT | AGREEMENT | RANCHO VILLA MHC LLC ET AL | | | | | 0 | 2021-09262 |
| 3 | 07/29/2021 | SWD | STATUTORY WARRANTY DEED | RANCHO VILLA INC | RANCHO VILLA MHC LLC ET AL | | 17-PARCELS | $4,162,000.00 | 142156 | 2021-09261 |
|   | |
Payout Agreement
| No payout information available.. |