Property
Account |
| Property ID: | 11307 | Abbreviated Legal Description: | 30-7-36 STRIP ON ELY PTN OF SLY PTN OF ELY PTN OF TAX 47A |
| Parcel Number: | 360730430009 | Agent Code: | |
| Type: | Real | | |
| Tax Area: | 1 - OL-140-F | Land Use Code | 15 |
| Open Space: | N | DFL | N |
| Historic Property: | N | Remodel Property: | N |
| Multi-Family Redevelopment: | N | | |
| Township: | 7 | Section: | 30 |
| Range: | 36 |
Location |
| Address: | 1250 DALLES MILITARY RD WA 99362 | Mapsco: | |
| Neighborhood: | COLLEGE PLACE 1 | Map ID: | |
| Neighborhood CD: | 1341 |
Owner |
| Name: | RANCHO VILLA MHC LLC ET AL | Owner ID: | 69976 |
| Mailing Address: | 2020 MALTBY RD STE #7 PMB #109 BOTHEL, WA 98021 | % Ownership: | 100.0000000000% |
| | | Exemptions: | |
Taxes and Assessment Details
Property Tax Information as of
04/19/2026
Click on "Statement Details" to expand or collapse a tax statement.
* Please enter a valid date ** Please enter a valid date *
Statement Details |
| | TOTAL: | $0.00 | $0.00 | $0.00 | $0.00 | $0.00 | $0.00 |
|
| | $0.00 | $0.00 | $0.00 | $0.00 | $0.00 | $0.00 |
Values
| (+) Improvement Homesite Value: | + | $0 | |
| (+) Improvement Non-Homesite Value: | + | $0 | |
| (+) Land Homesite Value: | + | $0 | |
| (+) Land Non-Homesite Value: | + | $17,100 | |
| (+) Curr Use (HS): | + | $0 | $0 |
| (+) Curr Use (NHS): | + | $0 | $0 |
| | | -------------------------- | |
| (=) Market Value: | = | $17,100 | |
| (–) Productivity Loss: | – | $0 | |
| | | -------------------------- | |
| (=) Subtotal: | = | $17,100 | |
| (+) Senior Appraised Value: | + | $0 | |
| (+) Non-Senior Appraised Value: | + | $17,100 | |
| | | -------------------------- | |
| (=) Total Appraised Value: | = | $17,100 | |
| (–) Senior Exemption Loss: | – | $0 | |
| (–) Exemption Loss: | – | $0 | |
| | | -------------------------- | |
| (=) Taxable Value: | = | $17,100 | |
Taxing Jurisdiction
| Owner: | RANCHO VILLA MHC LLC ET AL | | |
| % Ownership: | 100.0000000000% | | |
| Total Value: | $17,100 | | |
| Tax Area: | 1 - OL-140-F |
| CERFD | CURRENT EXPENSE REFUND 010 | 0.0000000000 | $17,100 | $17,100 | $0.00 | | |
| CURREXP | CURRENT EXPENSE 010 | 0.9851088983 | $17,100 | $17,100 | $16.85 | | |
| HUMNSERV | HUMAN SERVICES 119 | 0.0250000000 | $17,100 | $17,100 | $0.43 | | |
| SLDREL | SOLDIERS RELIEF 121 | 0.0155990000 | $17,100 | $17,100 | $0.27 | | |
| EMERGSER | EMS 147 | 0.3676811629 | $17,100 | $17,100 | $6.29 | | |
| EMSRFD | EMS REFUND 147 | 0.0000000000 | $17,100 | $17,100 | $0.00 | | |
| PORTRFD | PORT REFUND 640 | 0.0000000000 | $17,100 | $17,100 | $0.00 | | |
| PORTWWGEN | PORT OF WW 640 | 0.2344301070 | $17,100 | $17,100 | $4.01 | | |
| SD140BOND | SD #140 BOND 764 | 0.8032434458 | $17,100 | $17,100 | $13.74 | | |
| SD140CAP | SD #140 CAP 762 | 0.3840034221 | $17,100 | $17,100 | $6.57 | | |
| SD140GEN | SD #140 GENERAL 760 | 2.4999999996 | $17,100 | $17,100 | $42.75 | | |
| ST2 | STATE SCHOOL PART 2 600 | 0.8853714103 | $17,100 | $17,100 | $15.14 | | |
| STATESCHL | STATE SCHOOL 600 | 1.6424571473 | $17,100 | $17,100 | $28.09 | | |
| STREFUND | STATE REFUND LEVY 603 | 0.0000000000 | $17,100 | $17,100 | $0.00 | | |
| CWWBOND | C OF WW BOND 643 | 0.2642134255 | $17,100 | $17,100 | $4.52 | | |
| CWWGEN | CITY OF WW 631 | 1.6110494978 | $17,100 | $17,100 | $27.55 | | |
| CWWRFD | CITY OF WALLA WALLA REFUND 631 | 0.0000000000 | $17,100 | $17,100 | $0.00 | | |
| | Total Tax Rate: | 9.7181575166 | | | | | |
| | | | | Taxes w/Current Exemptions: | $166.21 | | |
| | | | | Taxes w/o Exemptions: | $166.21 | | |
Improvement / Building
Sketch
| No sketches available for this property. |
Property Image
Land
| 1 | COM 1 | Converted: Commercial | 0.1961 | 8540.00 | 0.00 | 0.00 | 1.00 | $17,100 | $0 |
Roll Value History
| 2026 | N/A | N/A | N/A | N/A | N/A |
| 2025 | $0 | $17,100 | $0 | $17,100 | $17,100 |
| 2024 | $0 | $17,100 | $0 | $17,100 | $17,100 |
| 2023 | $0 | $17,100 | $0 | $17,100 | $17,100 |
| 2022 | $0 | $14,900 | $0 | $14,900 | $14,900 |
| 2021 | $0 | $14,900 | $0 | $14,900 | $14,900 |
| 2020 | $0 | $14,900 | $0 | $14,900 | $14,900 |
| 2019 | $0 | $13,600 | $0 | $13,600 | $13,600 |
| 2018 | $0 | $13,600 | $0 | $13,600 | $13,600 |
| 2017 | $0 | $13,600 | $0 | $13,600 | $13,600 |
| 2016 | $0 | $13,600 | $0 | $13,600 | $13,600 |
| 2015 | $0 | $13,600 | $0 | $13,600 | $13,600 |
| 2014 | $0 | $13,600 | $0 | $13,600 | $13,600 |
| 2013 | $0 | $13,600 | $0 | $13,600 | $13,600 |
| 2012 | $0 | $13,600 | $0 | $0 | $0 |
| 2011 | $0 | $13,600 | $0 | $0 | $0 |
| 2010 | $0 | $13,600 | $0 | $0 | $0 |
| 2009 | $0 | $13,600 | $0 | $0 | $0 |
| 2008 | $0 | $8,500 | $0 | $0 | $0 |
| 2007 | $0 | $8,500 | $0 | $0 | $0 |
Deed and Sales History
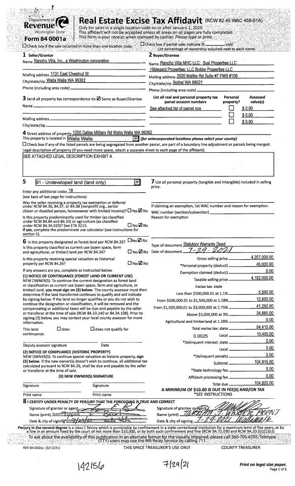
| 1 | 07/29/2021 | SWD | STATUTORY WARRANTY DEED | RANCHO VILLA INC | RANCHO VILLA MHC LLC ET AL | | 17-PARCELS | $4,162,000.00 | 142156 | 2021-09261 |
|   | |
Payout Agreement
| No payout information available.. |