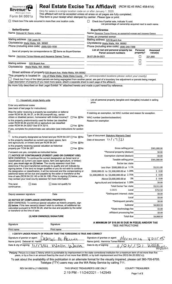
Property
Account |
| Property ID: | 11257 | Abbreviated Legal Description: | BRYANTS ACRE TRACTS E 65' OF S 232' OF LOT 7 |
| Parcel Number: | 360728540021 | Agent Code: | |
| Type: | Real | | |
| Tax Area: | 1 - OL-140-F | Land Use Code | 11 |
| Open Space: | N | DFL | N |
| Historic Property: | N | Remodel Property: | N |
| Multi-Family Redevelopment: | N | | |
| Township: | 7 | Section: | 28 |
| Range: | 36 |
Location |
| Address: | 525 BRYANT AVE WA 99362 | Mapsco: | |
| Neighborhood: | G Res | Map ID: | |
| Neighborhood CD: | 614011 |
Owner |
| Name: | TORRES-NIEVES HERMINIA | Owner ID: | 70705 |
| Mailing Address: | ASUSENA GAMEZ TORRES 525 BRYANT AVE WALLA WALLA, WA 99362 | % Ownership: | 100.0000000000% |
| | | Exemptions: | |
Taxes and Assessment Details
Property Tax Information as of
02/21/2026
Click on "Statement Details" to expand or collapse a tax statement.
* Please enter a valid date ** Please enter a valid date *
Statement Details |
| | TOTAL: | $0.00 | $0.00 | $0.00 | $0.00 | $0.00 | $0.00 |
|
| | $0.00 | $0.00 | $0.00 | $0.00 | $0.00 | $0.00 |
Values
| (+) Improvement Homesite Value: | + | $0 | |
| (+) Improvement Non-Homesite Value: | + | $188,450 | |
| (+) Land Homesite Value: | + | $0 | |
| (+) Land Non-Homesite Value: | + | $122,900 | |
| (+) Curr Use (HS): | + | $0 | $0 |
| (+) Curr Use (NHS): | + | $0 | $0 |
| | | -------------------------- | |
| (=) Market Value: | = | $311,350 | |
| (–) Productivity Loss: | – | $0 | |
| | | -------------------------- | |
| (=) Subtotal: | = | $311,350 | |
| (+) Senior Appraised Value: | + | $0 | |
| (+) Non-Senior Appraised Value: | + | $311,350 | |
| | | -------------------------- | |
| (=) Total Appraised Value: | = | $311,350 | |
| (–) Senior Exemption Loss: | – | $0 | |
| (–) Exemption Loss: | – | $0 | |
| | | -------------------------- | |
| (=) Taxable Value: | = | $311,350 | |
Taxing Jurisdiction
| Owner: | TORRES-NIEVES HERMINIA | | |
| % Ownership: | 100.0000000000% | | |
| Total Value: | $311,350 | | |
| Tax Area: | 1 - OL-140-F |
| CERFD | CURRENT EXPENSE REFUND 010 | 0.0000000000 | $311,350 | $311,350 | $0.00 | | |
| CURREXP | CURRENT EXPENSE 010 | 1.0175366760 | $311,350 | $311,350 | $316.81 | | |
| HUMNSERV | HUMAN SERVICES 119 | 0.0250000000 | $311,350 | $311,350 | $7.78 | | |
| SLDREL | SOLDIERS RELIEF 121 | 0.0155990005 | $311,350 | $311,350 | $4.86 | | |
| EMERGSER | EMS 147 | 0.3792580840 | $311,350 | $311,350 | $118.08 | | |
| EMSRFD | EMS REFUND 147 | 0.0000000000 | $311,350 | $311,350 | $0.00 | | |
| PORTRFD | PORT REFUND 640 | 0.0000000000 | $311,350 | $311,350 | $0.00 | | |
| PORTWWGEN | PORT OF WW 640 | 0.2460186015 | $311,350 | $311,350 | $76.60 | | |
| SD140BOND | SD #140 BOND 764 | 0.8342371393 | $311,350 | $311,350 | $259.74 | | |
| SD140GEN | SD #140 GENERAL 760 | 2.0646500647 | $311,350 | $311,350 | $642.83 | | |
| ST2 | STATE SCHOOL PART 2 600 | 0.8131451643 | $311,350 | $311,350 | $253.17 | | |
| STATESCHL | STATE SCHOOL 600 | 1.5158548041 | $311,350 | $311,350 | $471.96 | | |
| STREFUND | STATE REFUND LEVY 603 | 0.0000000000 | $311,350 | $311,350 | $0.00 | | |
| CWWBOND | C OF WW BOND 643 | 0.2760494372 | $311,350 | $311,350 | $85.95 | | |
| CWWGEN | CITY OF WW 631 | 1.6100204973 | $311,350 | $311,350 | $501.28 | | |
| CWWRFD | CITY OF WALLA WALLA REFUND 631 | 0.0000000000 | $311,350 | $311,350 | $0.00 | | |
| | Total Tax Rate: | 8.7973694689 | | | | | |
| | | | | Taxes w/Current Exemptions: | $2,739.06 | | |
| | | | | Taxes w/o Exemptions: | $2,739.06 | | |
Improvement / Building
| Improvement #1: | RESIDENTIAL | State Code: | 11 | 916.0 sqft | Value: | $188,450 |
| Exterior Wall: | SIDING | Heating/Cooling: | WARM & COOLED AIR | | Number of Bathrooms: | 1 | Number of Bedrooms: | 4 | | Plumbing: | 7 | Roof Covering: | COMP SHINGLE |
|
| | Type | Description | Class CD | Sub Class CD | Year Built | Area |
| | MA | Main Area | 1 | 30 | 1920 | 916.0 |
| | SI1 | SITE IMPROVEMENT | 1 | 30 | 1920 | 1.5 |
| | BASE | BASEMENT | 1 | 30 | 1920 | 804.0 |
| | BPF | BASEMENT -PARTITIONED FINISH | 1 | 30 | 1920 | 400.0 |
| | DTG | Detached Garage | 1 | 30 | 1920 | 240.0 |
| | RCD | WOOD DECK W/ROOF, CEILED | 1 | 30 | 1920 | 72.0 |
| | WDR | WOOD DECK W/ROOF | 1 | 30 | 1920 | 90.0 |
| | TOOL | TOOL SHED | 1 | 30 | 1920 | 288.0 |
Sketch
Property Image
Land
| 1 | RES 1 | Converted: Residential | 0.3462 | 15080.00 | 0.00 | 0.00 | 1.00 | $122,900 | $0 |
Roll Value History
| 2026 | N/A | N/A | N/A | N/A | N/A |
| 2025 | $187,730 | $146,580 | $0 | $334,310 | $334,310 |
| 2024 | $188,450 | $122,900 | $0 | $311,350 | $311,350 |
| 2023 | $188,450 | $122,900 | $0 | $311,350 | $311,350 |
| 2022 | $171,320 | $101,040 | $0 | $272,360 | $272,360 |
| 2021 | $126,900 | $101,040 | $0 | $227,940 | $227,940 |
| 2020 | $120,860 | $101,040 | $0 | $221,900 | $221,900 |
| 2019 | $120,860 | $101,040 | $0 | $221,900 | $221,900 |
| 2018 | $114,620 | $51,400 | $0 | $166,020 | $166,020 |
| 2017 | $114,620 | $51,400 | $0 | $166,020 | $166,020 |
| 2016 | $104,200 | $51,400 | $0 | $155,600 | $155,600 |
| 2015 | $104,200 | $51,400 | $0 | $155,600 | $155,600 |
| 2014 | $104,200 | $51,400 | $0 | $155,600 | $155,600 |
| 2013 | $104,200 | $51,400 | $0 | $155,600 | $155,600 |
| 2012 | $104,200 | $51,400 | $0 | $0 | $0 |
| 2011 | $104,200 | $51,400 | $0 | $0 | $0 |
| 2010 | $96,800 | $51,400 | $0 | $0 | $0 |
| 2009 | $113,300 | $51,400 | $0 | $0 | $0 |
| 2008 | $113,300 | $51,400 | $0 | $0 | $0 |
| 2007 | $62,400 | $28,900 | $0 | $0 | $0 |
Deed and Sales History
| 1 | 11/24/2021 | SWD | STATUTORY WARRANTY DEED | HAMM DEBORAH MARIE | TORRES-NIEVES HERMINIA | | | $301,000.00 | 142949 | 2021-14023 |
| 2 | 11/24/2021 | LOPA | LACK OF PROBATE AFFIDAVIT | HAMM DAVID A & DEBORAH M | HAMM DEBORAH MARIE | | | $0.00 | 142948 | 2021-14022 |
| 3 | 12/28/2006 | WARRANTY D | WARRANTY DEED | CONNERLY, JOHN M & MARCEE J | HAMM, DAVID A & DEBORAH M | | | $165,000.00 | 111984 | 2006-15404 |
| 4 | 07/15/2004 | WARRANTY D | WARRANTY DEED | MAYBERRY, MARY C | CONNERLY, JOHN M & MARCEE J | | | $127,000.00 | 105255 | 2004-07974 |
| 5 | 05/18/2000 | WARRANTY D | WARRANTY DEED | | | | | $90,000.00 | 95099 | 2980-004770 |
Payout Agreement
| No payout information available.. |