Property
Account |
| Property ID: | 11256 | Abbreviated Legal Description: | 30-7-36 TAX 42A |
| Parcel Number: | 360730210013 | Agent Code: | |
| Type: | Real | | |
| Tax Area: | 6 - OL-140-F-FB | Land Use Code | 11 |
| Open Space: | N | DFL | N |
| Historic Property: | N | Remodel Property: | N |
| Multi-Family Redevelopment: | N | | |
| Township: | 7 | Section: | 30 |
| Range: | 36 |
Location |
| Address: | 264 AVERY ST WA 99362 | Mapsco: | |
| Neighborhood: | A-SFR | Map ID: | |
| Neighborhood CD: | 313011 |
Owner |
| Name: | ROEDIGER BRYAN D & CANDICE | Owner ID: | 64232 |
| Mailing Address: | 264 AVERY ST WALLA WALLA, WA 99362 | % Ownership: | 100.0000000000% |
| | | Exemptions: | |
Taxes and Assessment Details
Property Tax Information as of
02/21/2026
Click on "Statement Details" to expand or collapse a tax statement.
* Please enter a valid date ** Please enter a valid date *
Statement Details |
| | TOTAL: | $0.00 | $0.00 | $0.00 | $0.00 | $0.00 | $0.00 |
|
| | $0.00 | $0.00 | $0.00 | $0.00 | $0.00 | $0.00 |
Values
| (+) Improvement Homesite Value: | + | $0 | |
| (+) Improvement Non-Homesite Value: | + | $234,940 | |
| (+) Land Homesite Value: | + | $0 | |
| (+) Land Non-Homesite Value: | + | $113,600 | |
| (+) Curr Use (HS): | + | $0 | $0 |
| (+) Curr Use (NHS): | + | $0 | $0 |
| | | -------------------------- | |
| (=) Market Value: | = | $348,540 | |
| (–) Productivity Loss: | – | $0 | |
| | | -------------------------- | |
| (=) Subtotal: | = | $348,540 | |
| (+) Senior Appraised Value: | + | $0 | |
| (+) Non-Senior Appraised Value: | + | $348,540 | |
| | | -------------------------- | |
| (=) Total Appraised Value: | = | $348,540 | |
| (–) Senior Exemption Loss: | – | $0 | |
| (–) Exemption Loss: | – | $0 | |
| | | -------------------------- | |
| (=) Taxable Value: | = | $348,540 | |
Taxing Jurisdiction
| Owner: | ROEDIGER BRYAN D & CANDICE | | |
| % Ownership: | 100.0000000000% | | |
| Total Value: | $348,540 | | |
| Tax Area: | 6 - OL-140-F-FB |
| CERFD | CURRENT EXPENSE REFUND 010 | 0.0000000000 | $348,540 | $348,540 | $0.00 | | |
| CURREXP | CURRENT EXPENSE 010 | 1.0175366760 | $348,540 | $348,540 | $354.65 | | |
| HUMNSERV | HUMAN SERVICES 119 | 0.0250000000 | $348,540 | $348,540 | $8.71 | | |
| SLDREL | SOLDIERS RELIEF 121 | 0.0155990005 | $348,540 | $348,540 | $5.44 | | |
| EMERGSER | EMS 147 | 0.3792580840 | $348,540 | $348,540 | $132.19 | | |
| EMSRFD | EMS REFUND 147 | 0.0000000000 | $348,540 | $348,540 | $0.00 | | |
| PORTRFD | PORT REFUND 640 | 0.0000000000 | $348,540 | $348,540 | $0.00 | | |
| PORTWWGEN | PORT OF WW 640 | 0.2460186015 | $348,540 | $348,540 | $85.75 | | |
| SD140BOND | SD #140 BOND 764 | 0.8342371393 | $348,540 | $348,540 | $290.77 | | |
| SD140GEN | SD #140 GENERAL 760 | 2.0646500647 | $348,540 | $348,540 | $719.61 | | |
| ST2 | STATE SCHOOL PART 2 600 | 0.8131451643 | $348,540 | $348,540 | $283.41 | | |
| STATESCHL | STATE SCHOOL 600 | 1.5158548041 | $348,540 | $348,540 | $528.34 | | |
| STREFUND | STATE REFUND LEVY 603 | 0.0000000000 | $348,540 | $348,540 | $0.00 | | |
| CWWBOND | C OF WW BOND 643 | 0.2760494372 | $348,540 | $348,540 | $96.21 | | |
| CWWGEN | CITY OF WW 631 | 1.6100204973 | $348,540 | $348,540 | $561.16 | | |
| CWWRFD | CITY OF WALLA WALLA REFUND 631 | 0.0000000000 | $348,540 | $348,540 | $0.00 | | |
| | Total Tax Rate: | 8.7973694689 | | | | | |
| | | | | Taxes w/Current Exemptions: | $3,066.24 | | |
| | | | | Taxes w/o Exemptions: | $3,066.24 | | |
Improvement / Building
| Improvement #1: | RESIDENTIAL | State Code: | 11 | 1764.0 sqft | Value: | $234,940 |
| Exterior Wall: | STUCCO | Heating/Cooling: | WARM & COOLED AIR | | Number of Bathrooms: | 2 | Number of Bedrooms: | 3 | | Plumbing: | 9 | Roof Covering: | COMP SHINGLE |
|
| | Type | Description | Class CD | Sub Class CD | Year Built | Area |
| | MA | Main Area | 1 | 30 | 1949 | 1764.0 |
| | POL2 | POLE BUILDING-CONCRETE | 1 | 30 | 0 | 864.0 |
| | SI1 | SITE IMPROVEMENT | 1 | 30 | 0 | 1.5 |
| | S1F | Single One Story Fireplace | 1 | 30 | 1949 | 1.0 |
| | ATG | Attached Garage | 1 | 30 | 1949 | 552.0 |
Sketch
Property Image
Land
| 1 | RES 1 | Converted: Residential | 0.8000 | 34848.00 | 0.00 | 0.00 | 1.00 | $113,600 | $0 |
Roll Value History
| 2026 | N/A | N/A | N/A | N/A | N/A |
| 2025 | $281,930 | $113,600 | $0 | $395,530 | $395,530 |
| 2024 | $234,940 | $113,600 | $0 | $348,540 | $348,540 |
| 2023 | $234,940 | $113,600 | $0 | $348,540 | $348,540 |
| 2022 | $213,580 | $113,600 | $0 | $327,180 | $327,180 |
| 2021 | $242,250 | $43,300 | $0 | $285,550 | $285,550 |
| 2020 | $230,720 | $43,300 | $0 | $274,020 | $274,020 |
| 2019 | $230,720 | $43,300 | $0 | $274,020 | $274,020 |
| 2018 | $177,470 | $43,300 | $0 | $220,770 | $220,770 |
| 2017 | $161,340 | $43,300 | $0 | $204,640 | $204,640 |
| 2016 | $134,450 | $43,300 | $0 | $177,750 | $177,750 |
| 2015 | $121,300 | $44,000 | $0 | $165,300 | $165,300 |
| 2014 | $121,300 | $44,000 | $0 | $165,300 | $165,300 |
| 2013 | $121,300 | $44,000 | $0 | $165,300 | $165,300 |
| 2012 | $121,300 | $44,000 | $0 | $0 | $0 |
| 2011 | $121,300 | $44,000 | $0 | $0 | $0 |
| 2010 | $116,700 | $44,000 | $0 | $0 | $0 |
| 2009 | $185,100 | $26,400 | $0 | $0 | $0 |
| 2008 | $105,800 | $26,400 | $0 | $0 | $0 |
| 2007 | $105,800 | $26,400 | $0 | $0 | $0 |
Deed and Sales History
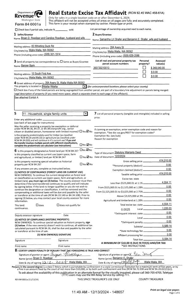
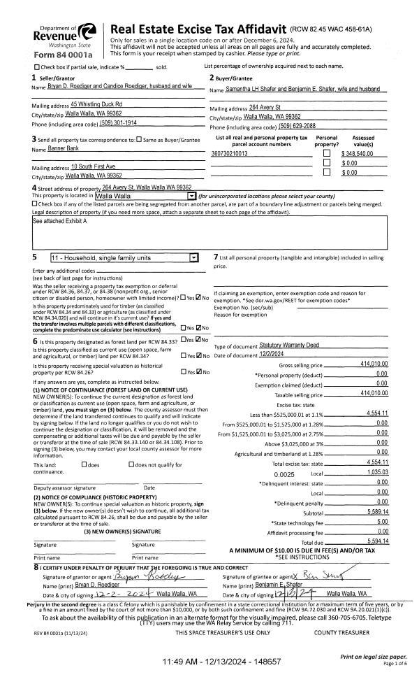
| 1 | 12/13/2024 | SWD | STATUTORY WARRANTY DEED | ROEDIGER BRYAN D & CANDICE | SHAFER SAMANTHA LH & BENJAMIN E | | | $414,010.00 | 148657 | 2024-07203 |
| 2 | 11/08/2018 | SWD | STATUTORY WARRANTY DEED | SCHEIBE MARK A | ROEDIGER BRYAN D & CANDICE | | | $297,000.00 | 135903 | 2018-09287 |
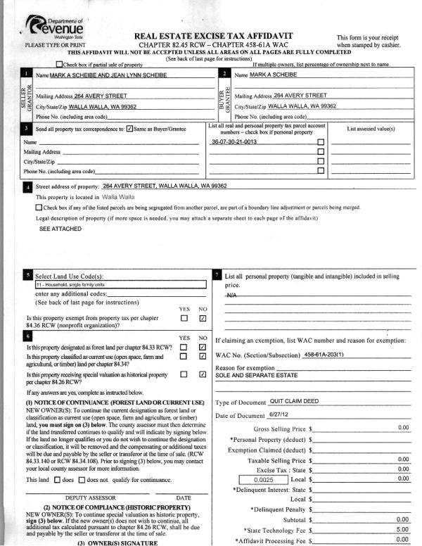
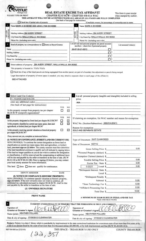
| 3 | 07/17/2012 | QCD | QUIT CLAIM DEED | SCHEIBE, MARK A & JEAN LYNN | SCHEIBE, MARK A | | | $0.00 | 122351 | 2012-06031 |
| 4 | 07/07/2009 | QCD | QUIT CLAIM DEED | GANTENBEIN, BRENDA | SCHEIBE, MARK A | | | | 116975 | 2009 -06875 |
| 5 | 06/02/2006 | WARRANTY D | WARRANTY DEED | CRABTREE, GARY M & PATTY | SCHEIBE, MARK A & BRENDA | | | $252,200.00 | 110434 | 2006-06426 |
| 6 | 11/08/2001 | WARRANTY D | WARRANTY DEED | | | | | $152,900.00 | 98301 | 3220-112124 |
Payout Agreement
| No payout information available.. |