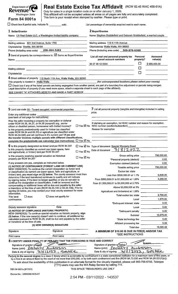
Property
Account |
| Property ID: | 11242 | Abbreviated Legal Description: | 30-7-36 PARCEL #4 |
| Parcel Number: | 360730120004 | Agent Code: | |
| Type: | Real | | |
| Tax Area: | 1 - OL-140-F | Land Use Code | 24 |
| Open Space: | N | DFL | N |
| Historic Property: | N | Remodel Property: | N |
| Multi-Family Redevelopment: | N | | |
| Township: | 7 | Section: | 30 |
| Range: | 36 |
Location |
| Address: | 115 N 11TH AVE BLDG A WALLA WALLA, WA 99362 | Mapsco: | |
| Neighborhood: | | Map ID: | |
| Neighborhood CD: | 3343 |
Owner |
| Name: | STUBBLEFIELD STEPHEN & DEBORAH | Owner ID: | 2940 |
| Mailing Address: | 116 N 11TH AVE WALLA WALLA, WA 99362 | % Ownership: | 100.0000000000% |
| | | Exemptions: | |
Taxes and Assessment Details
Property Tax Information as of
02/21/2026
Click on "Statement Details" to expand or collapse a tax statement.
* Please enter a valid date ** Please enter a valid date *
Statement Details |
| | TOTAL: | $0.00 | $0.00 | $0.00 | $0.00 | $0.00 | $0.00 |
|
| | $0.00 | $0.00 | $0.00 | $0.00 | $0.00 | $0.00 |
Values
| (+) Improvement Homesite Value: | + | $0 | |
| (+) Improvement Non-Homesite Value: | + | $509,100 | |
| (+) Land Homesite Value: | + | $0 | |
| (+) Land Non-Homesite Value: | + | $241,500 | |
| (+) Curr Use (HS): | + | $0 | $0 |
| (+) Curr Use (NHS): | + | $0 | $0 |
| | | -------------------------- | |
| (=) Market Value: | = | $750,600 | |
| (–) Productivity Loss: | – | $0 | |
| | | -------------------------- | |
| (=) Subtotal: | = | $750,600 | |
| (+) Senior Appraised Value: | + | $0 | |
| (+) Non-Senior Appraised Value: | + | $750,600 | |
| | | -------------------------- | |
| (=) Total Appraised Value: | = | $750,600 | |
| (–) Senior Exemption Loss: | – | $0 | |
| (–) Exemption Loss: | – | $0 | |
| | | -------------------------- | |
| (=) Taxable Value: | = | $750,600 | |
Taxing Jurisdiction
| Owner: | STUBBLEFIELD STEPHEN & DEBORAH | | |
| % Ownership: | 100.0000000000% | | |
| Total Value: | $750,600 | | |
| Tax Area: | 1 - OL-140-F |
| CERFD | CURRENT EXPENSE REFUND 010 | 0.0000000000 | $750,600 | $750,600 | $0.00 | | |
| CURREXP | CURRENT EXPENSE 010 | 0.9851088983 | $750,600 | $750,600 | $739.42 | | |
| HUMNSERV | HUMAN SERVICES 119 | 0.0250000000 | $750,600 | $750,600 | $18.77 | | |
| SLDREL | SOLDIERS RELIEF 121 | 0.0155990000 | $750,600 | $750,600 | $11.71 | | |
| EMERGSER | EMS 147 | 0.3676811629 | $750,600 | $750,600 | $275.98 | | |
| EMSRFD | EMS REFUND 147 | 0.0000000000 | $750,600 | $750,600 | $0.00 | | |
| PORTRFD | PORT REFUND 640 | 0.0000000000 | $750,600 | $750,600 | $0.00 | | |
| PORTWWGEN | PORT OF WW 640 | 0.2344301070 | $750,600 | $750,600 | $175.96 | | |
| SD140BOND | SD #140 BOND 764 | 0.8032434458 | $750,600 | $750,600 | $602.91 | | |
| SD140CAP | SD #140 CAP 762 | 0.3840034221 | $750,600 | $750,600 | $288.23 | | |
| SD140GEN | SD #140 GENERAL 760 | 2.4999999996 | $750,600 | $750,600 | $1,876.50 | | |
| ST2 | STATE SCHOOL PART 2 600 | 0.8853714103 | $750,600 | $750,600 | $664.56 | | |
| STATESCHL | STATE SCHOOL 600 | 1.6424571473 | $750,600 | $750,600 | $1,232.83 | | |
| STREFUND | STATE REFUND LEVY 603 | 0.0000000000 | $750,600 | $750,600 | $0.00 | | |
| CWWBOND | C OF WW BOND 643 | 0.2642134255 | $750,600 | $750,600 | $198.32 | | |
| CWWGEN | CITY OF WW 631 | 1.6110494978 | $750,600 | $750,600 | $1,209.25 | | |
| CWWRFD | CITY OF WALLA WALLA REFUND 631 | 0.0000000000 | $750,600 | $750,600 | $0.00 | | |
| | Total Tax Rate: | 9.7181575166 | | | | | |
| | | | | Taxes w/Current Exemptions: | $7,294.44 | | |
| | | | | Taxes w/o Exemptions: | $7,294.44 | | |
Improvement / Building
| Improvement #1: | COMMERCIAL | State Code: | 24 | 22802.0 sqft | Value: | $509,100 |
| | Type | Description | Class CD | Sub Class CD | Year Built | Area |
| | MA | Main Area | D | | 1970 | 22802.0 |
| | POL3 | POLE BUILDING-CON,ELEC,INSU | D | * | 1970 | 1200.0 |
| | SI1 | SITE IMPROVEMENT | D | * | 1970 | 4.0 |
Sketch
Property Image
Land
| 1 | COM 1 | Converted: Commercial | 1.6200 | 70567.20 | 0.00 | 0.00 | 1.00 | $241,500 | $0 |
Roll Value History
| 2026 | N/A | N/A | N/A | N/A | N/A |
| 2025 | $509,100 | $241,500 | $0 | $750,600 | $750,600 |
| 2024 | $509,100 | $241,500 | $0 | $750,600 | $750,600 |
| 2023 | $509,100 | $241,500 | $0 | $750,600 | $750,600 |
| 2022 | $509,100 | $241,500 | $0 | $750,600 | $750,600 |
| 2021 | $471,300 | $218,100 | $0 | $689,400 | $689,400 |
| 2020 | $471,300 | $218,100 | $0 | $689,400 | $689,400 |
| 2019 | $452,300 | $218,100 | $0 | $670,400 | $670,400 |
| 2018 | $452,300 | $218,100 | $0 | $670,400 | $670,400 |
| 2017 | $452,300 | $218,100 | $0 | $670,400 | $670,400 |
| 2016 | $452,300 | $218,100 | $0 | $670,400 | $670,400 |
| 2015 | $446,400 | $224,000 | $0 | $670,400 | $670,400 |
| 2014 | $446,400 | $224,000 | $0 | $670,400 | $670,400 |
| 2013 | $446,400 | $224,000 | $0 | $670,400 | $670,400 |
| 2012 | $446,400 | $224,000 | $0 | $0 | $0 |
| 2011 | $446,400 | $224,000 | $0 | $0 | $0 |
| 2010 | $438,400 | $46,200 | $0 | $0 | $0 |
| 2009 | $438,400 | $46,200 | $0 | $0 | $0 |
| 2008 | $395,500 | $46,200 | $0 | $0 | $0 |
| 2007 | $395,500 | $46,200 | $0 | $0 | $0 |
Deed and Sales History
| 1 | 03/11/2022 | SWP | Special Warranty Deed | LN REAL ESTATE LLC | STUBBLEFIELD STEPHEN & DEBORAH | | | $750,000.00 | 143537 | 2022-02096 |
| 2 | 02/03/2006 | WARRANTY D | WARRANTY DEED | LUMBERMEN'S OF WASHINGTON~INC | LN REAL ESTATE LLC | | | | 109606 | 2006-01371 |
| 3 | 06/22/1993 | WARRANTY D | WARRANTY DEED | | | | | $1,000,000.00 | 79369 | 2089-306310 |
|   | |
Payout Agreement
| No payout information available.. |