Property
Account |
| Property ID: | 11239 | Abbreviated Legal Description: | TABLEROCK SUBD LOT 50 |
| Parcel Number: | 360604580050 | Agent Code: | |
| Type: | Real | | |
| Tax Area: | 5 - OL-140 | Land Use Code | 11 |
| Open Space: | N | DFL | N |
| Historic Property: | N | Remodel Property: | N |
| Multi-Family Redevelopment: | N | | |
| Township: | 6 | Section: | 4 |
| Range: | 36 |
Location |
| Address: | 34 THUNDER RIDGE RD WA 99362 | Mapsco: | |
| Neighborhood: | VG Res Rural/City Inf | Map ID: | |
| Neighborhood CD: | 615012 |
Owner |
| Name: | BLANC MICHAEL C | Owner ID: | 55549 |
| Mailing Address: | 34 THUNDER RIDGE RD WALLA WALLA, WA 99362 | % Ownership: | 100.0000000000% |
| | | Exemptions: | |
Taxes and Assessment Details
Property Tax Information as of
02/21/2026
Click on "Statement Details" to expand or collapse a tax statement.
* Please enter a valid date ** Please enter a valid date *
Statement Details |
| | TOTAL: | $0.00 | $0.00 | $0.00 | $0.00 | $0.00 | $0.00 |
|
| | $0.00 | $0.00 | $0.00 | $0.00 | $0.00 | $0.00 |
Values
| (+) Improvement Homesite Value: | + | $0 | |
| (+) Improvement Non-Homesite Value: | + | $596,500 | |
| (+) Land Homesite Value: | + | $0 | |
| (+) Land Non-Homesite Value: | + | $120,000 | |
| (+) Curr Use (HS): | + | $0 | $0 |
| (+) Curr Use (NHS): | + | $0 | $0 |
| | | -------------------------- | |
| (=) Market Value: | = | $716,500 | |
| (–) Productivity Loss: | – | $0 | |
| | | -------------------------- | |
| (=) Subtotal: | = | $716,500 | |
| (+) Senior Appraised Value: | + | $0 | |
| (+) Non-Senior Appraised Value: | + | $716,500 | |
| | | -------------------------- | |
| (=) Total Appraised Value: | = | $716,500 | |
| (–) Senior Exemption Loss: | – | $0 | |
| (–) Exemption Loss: | – | $0 | |
| | | -------------------------- | |
| (=) Taxable Value: | = | $716,500 | |
Taxing Jurisdiction
| Owner: | BLANC MICHAEL C | | |
| % Ownership: | 100.0000000000% | | |
| Total Value: | $716,500 | | |
| Tax Area: | 5 - OL-140 |
| CERFD | CURRENT EXPENSE REFUND 010 | 0.0000000000 | $716,500 | $716,500 | $0.00 | | |
| CURREXP | CURRENT EXPENSE 010 | 1.0175366760 | $716,500 | $716,500 | $729.07 | | |
| HUMNSERV | HUMAN SERVICES 119 | 0.0250000000 | $716,500 | $716,500 | $17.91 | | |
| SLDREL | SOLDIERS RELIEF 121 | 0.0155990005 | $716,500 | $716,500 | $11.18 | | |
| EMERGSER | EMS 147 | 0.3792580840 | $716,500 | $716,500 | $271.74 | | |
| EMSRFD | EMS REFUND 147 | 0.0000000000 | $716,500 | $716,500 | $0.00 | | |
| PORTRFD | PORT REFUND 640 | 0.0000000000 | $716,500 | $716,500 | $0.00 | | |
| PORTWWGEN | PORT OF WW 640 | 0.2460186015 | $716,500 | $716,500 | $176.27 | | |
| SD140BOND | SD #140 BOND 764 | 0.8342371393 | $716,500 | $716,500 | $597.73 | | |
| SD140GEN | SD #140 GENERAL 760 | 2.0646500647 | $716,500 | $716,500 | $1,479.32 | | |
| ST2 | STATE SCHOOL PART 2 600 | 0.8131451643 | $716,500 | $716,500 | $582.62 | | |
| STATESCHL | STATE SCHOOL 600 | 1.5158548041 | $716,500 | $716,500 | $1,086.11 | | |
| STREFUND | STATE REFUND LEVY 603 | 0.0000000000 | $716,500 | $716,500 | $0.00 | | |
| CWWBOND | C OF WW BOND 643 | 0.2760494372 | $716,500 | $716,500 | $197.79 | | |
| CWWGEN | CITY OF WW 631 | 1.6100204973 | $716,500 | $716,500 | $1,153.58 | | |
| CWWRFD | CITY OF WALLA WALLA REFUND 631 | 0.0000000000 | $716,500 | $716,500 | $0.00 | | |
| | Total Tax Rate: | 8.7973694689 | | | | | |
| | | | | Taxes w/Current Exemptions: | $6,303.32 | | |
| | | | | Taxes w/o Exemptions: | $6,303.32 | | |
Improvement / Building
| Improvement #1: | RESIDENTIAL | State Code: | 11 | 2044.0 sqft | Value: | $596,500 |
| Exterior Wall: | HARDBOARD | Heating/Cooling: | WARM & COOLED AIR | | Number of Bathrooms: | 3 | Number of Bedrooms: | 3 | | Plumbing: | 15 | Roof Covering: | COMP SHINGLE |
|
| | Type | Description | Class CD | Sub Class CD | Year Built | Area |
| | MA | Main Area | 1 | 40 | 2005 | 2044.0 |
| | SI1 | SITE IMPROVEMENT | 1 | 40 | 2005 | 4.0 |
| | BASE | BASEMENT | 1 | 40 | 2005 | 844.0 |
| | BPF | BASEMENT -PARTITIONED FINISH | 1 | 40 | 2005 | 844.0 |
| | ATG | Attached Garage | 1 | 40 | 2005 | 528.0 |
| | GFP | GAS FIREPLACE | 1 | 40 | 2005 | 1.0 |
| | RPC | OPEN PORCH W/ROOF , CEILED | 1 | 40 | 2005 | 147.0 |
| | RPC | OPEN PORCH W/ROOF , CEILED | 1 | 40 | 2005 | 53.0 |
Sketch
Property Image
Land
| 1 | RES 1 | Converted: Residential | 0.2284 | 9948.00 | 0.00 | 0.00 | 1.00 | $120,000 | $0 |
Roll Value History
| 2026 | N/A | N/A | N/A | N/A | N/A |
| 2025 | $362,590 | $180,000 | $0 | $542,590 | $542,590 |
| 2024 | $596,500 | $120,000 | $0 | $716,500 | $716,500 |
| 2023 | $596,500 | $120,000 | $0 | $716,500 | $716,500 |
| 2022 | $568,100 | $95,000 | $0 | $663,100 | $663,100 |
| 2021 | $405,780 | $95,000 | $0 | $500,780 | $500,780 |
| 2020 | $300,580 | $95,000 | $0 | $395,580 | $395,580 |
| 2019 | $300,580 | $95,000 | $0 | $395,580 | $395,580 |
| 2018 | $331,810 | $50,000 | $0 | $381,810 | $381,810 |
| 2017 | $301,640 | $50,000 | $0 | $351,640 | $351,640 |
| 2016 | $301,640 | $50,000 | $0 | $351,640 | $351,640 |
| 2015 | $287,280 | $50,000 | $0 | $337,280 | $337,280 |
| 2014 | $273,600 | $50,000 | $0 | $323,600 | $323,600 |
| 2013 | $273,600 | $50,000 | $0 | $323,600 | $323,600 |
| 2012 | $259,900 | $55,000 | $0 | $0 | $0 |
| 2011 | $379,900 | $70,000 | $0 | $0 | $0 |
| 2010 | $379,900 | $70,000 | $0 | $0 | $0 |
| 2009 | $358,500 | $70,000 | $0 | $0 | $0 |
| 2008 | $358,500 | $70,000 | $0 | $0 | $0 |
| 2007 | $362,200 | $50,000 | $0 | $0 | $0 |
Deed and Sales History
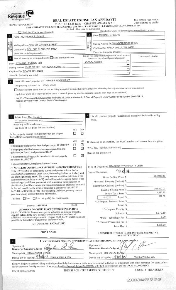
| 1 | 09/18/2014 | SWD | STATUTORY WARRANTY DEED | EVANS ROYALANN R | BLANC MICHAEL C | | | $351,000.00 | 126688 | 2014-06952 |
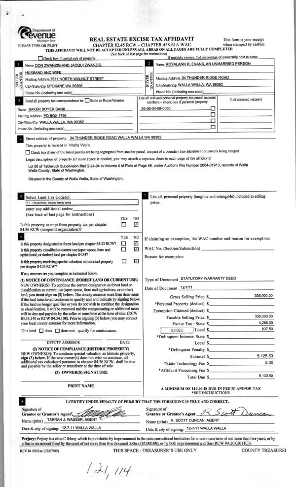
| 2 | 12/14/2011 | WARRANTY D | WARRANTY DEED | ZWANZIG, DON & JACQUI | EVANS, ROYALANN R | | | $335,000.00 | 121114 | 2011-09819 |
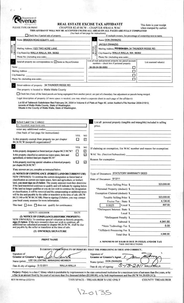
| 3 | 05/13/2011 | WARRANTY D | WARRANTY DEED | BRADEN ROAD EQUITY LLC | ZWANZIG, DON & JACQUI | | | $323,000.00 | 120135 | 2011-03784 |
| 4 | 06/30/2005 | QCD | QUIT CLAIM DEED | GILLENTINE, LEE & MARIANNE | BRADEN ROAD EQUITY LLC | | | | 107844 | 2005-07905 |
| 5 | 06/16/2004 | WARRANTY D | WARRANTY DEED | GATEWOOD, W PAUL | GILLENTINE, LEE & MARIANNE | | | $53,900.00 | 105035 | 2004-06679 |
Payout Agreement
| No payout information available.. |