Property
Account |
| Property ID: | 11225 | Abbreviated Legal Description: | MAPLE STREET CONDOS UNIT #339 |
| Parcel Number: | 360729920004 | Agent Code: | |
| Type: | Real | | |
| Tax Area: | 1 - OL-140-F | Land Use Code | 14 |
| Open Space: | N | DFL | N |
| Historic Property: | N | Remodel Property: | N |
| Multi-Family Redevelopment: | N | | |
| Township: | 7 | Section: | 29 |
| Range: | 36 |
Location |
| Address: | 339 E MAPLE ST WA 99362 | Mapsco: | |
| Neighborhood: | G Res Condo | Map ID: | |
| Neighborhood CD: | 614041 |
Owner |
| Name: | BEAN DEREK TROY | Owner ID: | 69927 |
| Mailing Address: | 339 E MAPLE ST WALLA WALLA, WA 99362 | % Ownership: | 100.0000000000% |
| | | Exemptions: | |
Taxes and Assessment Details
Property Tax Information as of
02/21/2026
Click on "Statement Details" to expand or collapse a tax statement.
* Please enter a valid date ** Please enter a valid date *
Statement Details |
| | TOTAL: | $0.00 | $0.00 | $0.00 | $0.00 | $0.00 | $0.00 |
|
| | $0.00 | $0.00 | $0.00 | $0.00 | $0.00 | $0.00 |
Values
| (+) Improvement Homesite Value: | + | $0 | |
| (+) Improvement Non-Homesite Value: | + | $257,800 | |
| (+) Land Homesite Value: | + | $0 | |
| (+) Land Non-Homesite Value: | + | $0 | |
| (+) Curr Use (HS): | + | $0 | $0 |
| (+) Curr Use (NHS): | + | $0 | $0 |
| | | -------------------------- | |
| (=) Market Value: | = | $257,800 | |
| (–) Productivity Loss: | – | $0 | |
| | | -------------------------- | |
| (=) Subtotal: | = | $257,800 | |
| (+) Senior Appraised Value: | + | $0 | |
| (+) Non-Senior Appraised Value: | + | $257,800 | |
| | | -------------------------- | |
| (=) Total Appraised Value: | = | $257,800 | |
| (–) Senior Exemption Loss: | – | $0 | |
| (–) Exemption Loss: | – | $0 | |
| | | -------------------------- | |
| (=) Taxable Value: | = | $257,800 | |
Taxing Jurisdiction
| Owner: | BEAN DEREK TROY | | |
| % Ownership: | 100.0000000000% | | |
| Total Value: | $257,800 | | |
| Tax Area: | 1 - OL-140-F |
| CERFD | CURRENT EXPENSE REFUND 010 | 0.0000000000 | $257,800 | $257,800 | $0.00 | | |
| CURREXP | CURRENT EXPENSE 010 | 1.0175366760 | $257,800 | $257,800 | $262.32 | | |
| HUMNSERV | HUMAN SERVICES 119 | 0.0250000000 | $257,800 | $257,800 | $6.45 | | |
| SLDREL | SOLDIERS RELIEF 121 | 0.0155990005 | $257,800 | $257,800 | $4.02 | | |
| EMERGSER | EMS 147 | 0.3792580840 | $257,800 | $257,800 | $97.77 | | |
| EMSRFD | EMS REFUND 147 | 0.0000000000 | $257,800 | $257,800 | $0.00 | | |
| PORTRFD | PORT REFUND 640 | 0.0000000000 | $257,800 | $257,800 | $0.00 | | |
| PORTWWGEN | PORT OF WW 640 | 0.2460186015 | $257,800 | $257,800 | $63.42 | | |
| SD140BOND | SD #140 BOND 764 | 0.8342371393 | $257,800 | $257,800 | $215.07 | | |
| SD140GEN | SD #140 GENERAL 760 | 2.0646500647 | $257,800 | $257,800 | $532.27 | | |
| ST2 | STATE SCHOOL PART 2 600 | 0.8131451643 | $257,800 | $257,800 | $209.63 | | |
| STATESCHL | STATE SCHOOL 600 | 1.5158548041 | $257,800 | $257,800 | $390.79 | | |
| STREFUND | STATE REFUND LEVY 603 | 0.0000000000 | $257,800 | $257,800 | $0.00 | | |
| CWWBOND | C OF WW BOND 643 | 0.2760494372 | $257,800 | $257,800 | $71.17 | | |
| CWWGEN | CITY OF WW 631 | 1.6100204973 | $257,800 | $257,800 | $415.06 | | |
| CWWRFD | CITY OF WALLA WALLA REFUND 631 | 0.0000000000 | $257,800 | $257,800 | $0.00 | | |
| | Total Tax Rate: | 8.7973694689 | | | | | |
| | | | | Taxes w/Current Exemptions: | $2,267.97 | | |
| | | | | Taxes w/o Exemptions: | $2,267.97 | | |
Improvement / Building
| Improvement #1: | RESIDENTIAL | State Code: | 14 | 1091.0 sqft | Value: | $257,800 |
| Exterior Wall: | HARDBOARD | Heating/Cooling: | WARM & COOLED AIR | | Number of Bathrooms: | 2 | Number of Bedrooms: | 3 | | Plumbing: | 9 | Roof Covering: | COMP SHINGLE |
|
| | Type | Description | Class CD | Sub Class CD | Year Built | Area |
| | MA | Main Area | 1 | 35 | 1993 | 1091.0 |
| | SI1 | SITE IMPROVEMENT | 1 | 35 | 1993 | 10.0 |
| | ATG | Attached Garage | 1 | 35 | 1993 | 200.0 |
| | CPC | COVERED CARPORT/PATIO | 1 | 35 | 1993 | 80.0 |
| | GFP | GAS FIREPLACE | 1 | 35 | 1993 | 1.0 |
| | RPO | OPEN PORCH W/ROOF | 1 | 35 | 1993 | 20.0 |
Sketch
Property Image
Land
No land segments exist for this property.
Roll Value History
| 2026 | N/A | N/A | N/A | N/A | N/A |
| 2025 | $277,510 | $0 | $0 | $277,510 | $277,510 |
| 2024 | $257,800 | $0 | $0 | $257,800 | $257,800 |
| 2023 | $257,800 | $0 | $0 | $257,800 | $257,800 |
| 2022 | $257,800 | $0 | $0 | $257,800 | $257,800 |
| 2021 | $234,360 | $0 | $0 | $234,360 | $234,360 |
| 2020 | $195,300 | $0 | $0 | $195,300 | $195,300 |
| 2019 | $195,300 | $0 | $0 | $195,300 | $195,300 |
| 2018 | $182,260 | $0 | $0 | $182,260 | $182,260 |
| 2017 | $158,490 | $0 | $0 | $158,490 | $158,490 |
| 2016 | $109,300 | $0 | $0 | $109,300 | $109,300 |
| 2015 | $109,300 | $0 | $0 | $109,300 | $109,300 |
| 2014 | $109,300 | $0 | $0 | $109,300 | $109,300 |
| 2013 | $109,300 | $0 | $0 | $109,300 | $109,300 |
| 2012 | $99,400 | $0 | $0 | $0 | $0 |
| 2011 | $144,100 | $0 | $0 | $0 | $0 |
| 2010 | $144,100 | $0 | $0 | $0 | $0 |
| 2009 | $160,100 | $0 | $0 | $0 | $0 |
| 2008 | $134,900 | $0 | $0 | $0 | $0 |
| 2007 | $98,900 | $0 | $0 | $0 | $0 |
Deed and Sales History
| 1 | 07/30/2021 | SWD | STATUTORY WARRANTY DEED | LOISEAU KAREN | BEAN DEREK TROY | | | $269,000.00 | 142174 | 2021-09324 |
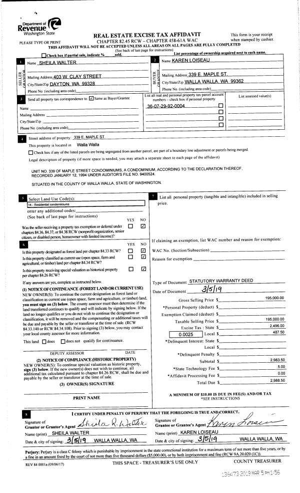
| 2 | 03/05/2019 | SWD | STATUTORY WARRANTY DEED | WALTER SHEILA | LOISEAU KAREN | | | $195,000.00 | 136473 | 2019-01440 |
| 3 | 01/12/2018 | SWD | STATUTORY WARRANTY DEED | JENNINGS JACK WILLIAM & JOAN AS TRUSTEES OF THE | WALTER SHEILA | | | $185,000.00 | 133993 | 2018-00375 |
| 4 | 10/04/2005 | WARRANTY D | WARRANTY DEED | GERMAN, VLADIMIR & EKATERINA | JENNINGS, JACK WILLIAM & JOAN | | | $135,000.00 | 108663 | 2005-12344 |
| 5 | 04/05/2002 | WARRANTY D | WARRANTY DEED | | | | | $93,000.00 | 99269 | 2002-0004210 |
Payout Agreement
| No payout information available.. |