Property
Account |
| Property ID: | 11197 | Abbreviated Legal Description: | ROBERTS BLK 35(J) |
| Parcel Number: | 360729873500 | Agent Code: | |
| Type: | Real | | |
| Tax Area: | 1 - OL-140-F | Land Use Code | 91 |
| Open Space: | N | DFL | N |
| Historic Property: | N | Remodel Property: | N |
| Multi-Family Redevelopment: | N | | |
| Township: | 7 | Section: | 29 |
| Range: | 36 |
Location |
| Address: | 428 CRAIG ST WA 99362 | Mapsco: | |
| Neighborhood: | G SFR Contig | Map ID: | |
| Neighborhood CD: | 514097 |
Owner |
| Name: | SALMINEN JED C | Owner ID: | 73630 |
| Mailing Address: | DAVID C WAGNER 428 CRAIG ST WALLA WALLA, WA 99362 | % Ownership: | 100.0000000000% |
| | | Exemptions: | |
Taxes and Assessment Details
Property Tax Information as of
02/21/2026
Click on "Statement Details" to expand or collapse a tax statement.
* Please enter a valid date ** Please enter a valid date *
Statement Details |
| | TOTAL: | $0.00 | $0.00 | $0.00 | $0.00 | $0.00 | $0.00 |
|
| | $0.00 | $0.00 | $0.00 | $0.00 | $0.00 | $0.00 |
Values
| (+) Improvement Homesite Value: | + | $0 | |
| (+) Improvement Non-Homesite Value: | + | $0 | |
| (+) Land Homesite Value: | + | $0 | |
| (+) Land Non-Homesite Value: | + | $30,250 | |
| (+) Curr Use (HS): | + | $0 | $0 |
| (+) Curr Use (NHS): | + | $0 | $0 |
| | | -------------------------- | |
| (=) Market Value: | = | $30,250 | |
| (–) Productivity Loss: | – | $0 | |
| | | -------------------------- | |
| (=) Subtotal: | = | $30,250 | |
| (+) Senior Appraised Value: | + | $0 | |
| (+) Non-Senior Appraised Value: | + | $30,250 | |
| | | -------------------------- | |
| (=) Total Appraised Value: | = | $30,250 | |
| (–) Senior Exemption Loss: | – | $0 | |
| (–) Exemption Loss: | – | $0 | |
| | | -------------------------- | |
| (=) Taxable Value: | = | $30,250 | |
Taxing Jurisdiction
| Owner: | SALMINEN JED C | | |
| % Ownership: | 100.0000000000% | | |
| Total Value: | $30,250 | | |
| Tax Area: | 1 - OL-140-F |
| CERFD | CURRENT EXPENSE REFUND 010 | 0.0000000000 | $30,250 | $30,250 | $0.00 | | |
| CURREXP | CURRENT EXPENSE 010 | 0.9851088983 | $30,250 | $30,250 | $29.80 | | |
| HUMNSERV | HUMAN SERVICES 119 | 0.0250000000 | $30,250 | $30,250 | $0.76 | | |
| SLDREL | SOLDIERS RELIEF 121 | 0.0155990000 | $30,250 | $30,250 | $0.47 | | |
| EMERGSER | EMS 147 | 0.3676811629 | $30,250 | $30,250 | $11.12 | | |
| EMSRFD | EMS REFUND 147 | 0.0000000000 | $30,250 | $30,250 | $0.00 | | |
| PORTRFD | PORT REFUND 640 | 0.0000000000 | $30,250 | $30,250 | $0.00 | | |
| PORTWWGEN | PORT OF WW 640 | 0.2344301070 | $30,250 | $30,250 | $7.09 | | |
| SD140BOND | SD #140 BOND 764 | 0.8032434458 | $30,250 | $30,250 | $24.30 | | |
| SD140CAP | SD #140 CAP 762 | 0.3840034221 | $30,250 | $30,250 | $11.62 | | |
| SD140GEN | SD #140 GENERAL 760 | 2.4999999996 | $30,250 | $30,250 | $75.63 | | |
| ST2 | STATE SCHOOL PART 2 600 | 0.8853714103 | $30,250 | $30,250 | $26.78 | | |
| STATESCHL | STATE SCHOOL 600 | 1.6424571473 | $30,250 | $30,250 | $49.68 | | |
| STREFUND | STATE REFUND LEVY 603 | 0.0000000000 | $30,250 | $30,250 | $0.00 | | |
| CWWBOND | C OF WW BOND 643 | 0.2642134255 | $30,250 | $30,250 | $7.99 | | |
| CWWGEN | CITY OF WW 631 | 1.6110494978 | $30,250 | $30,250 | $48.73 | | |
| CWWRFD | CITY OF WALLA WALLA REFUND 631 | 0.0000000000 | $30,250 | $30,250 | $0.00 | | |
| | Total Tax Rate: | 9.7181575166 | | | | | |
| | | | | Taxes w/Current Exemptions: | $293.97 | | |
| | | | | Taxes w/o Exemptions: | $293.97 | | |
Improvement / Building
Sketch
| No sketches available for this property. |
Property Image
Land
| 1 | RES 1 | Converted: Residential | 0.0631 | 2750.00 | 0.00 | 0.00 | 1.00 | $30,250 | $0 |
Roll Value History
| 2026 | N/A | N/A | N/A | N/A | N/A |
| 2025 | $0 | $30,250 | $0 | $30,250 | $30,250 |
| 2024 | $0 | $30,250 | $0 | $30,250 | $30,250 |
| 2023 | $0 | $19,930 | $0 | $19,930 | $19,930 |
| 2022 | $0 | $19,930 | $0 | $19,930 | $19,930 |
| 2021 | $0 | $19,930 | $0 | $19,930 | $19,930 |
| 2020 | $0 | $19,930 | $0 | $19,930 | $19,930 |
| 2019 | $0 | $19,930 | $0 | $19,930 | $19,930 |
| 2018 | $0 | $19,930 | $0 | $19,930 | $19,930 |
| 2017 | $0 | $12,400 | $0 | $12,400 | $12,400 |
| 2016 | $0 | $12,400 | $0 | $12,400 | $12,400 |
| 2015 | $0 | $12,400 | $0 | $12,400 | $12,400 |
| 2014 | $0 | $12,400 | $0 | $12,400 | $12,400 |
| 2013 | $0 | $12,400 | $0 | $12,400 | $12,400 |
| 2012 | $0 | $12,400 | $0 | $0 | $0 |
| 2011 | $0 | $12,400 | $0 | $0 | $0 |
| 2010 | $0 | $12,400 | $0 | $0 | $0 |
| 2009 | $0 | $12,400 | $0 | $0 | $0 |
| 2008 | $0 | $12,400 | $0 | $0 | $0 |
| 2007 | $0 | $12,400 | $0 | $0 | $0 |
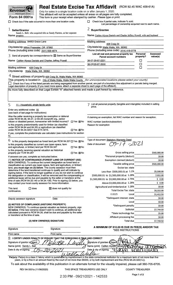
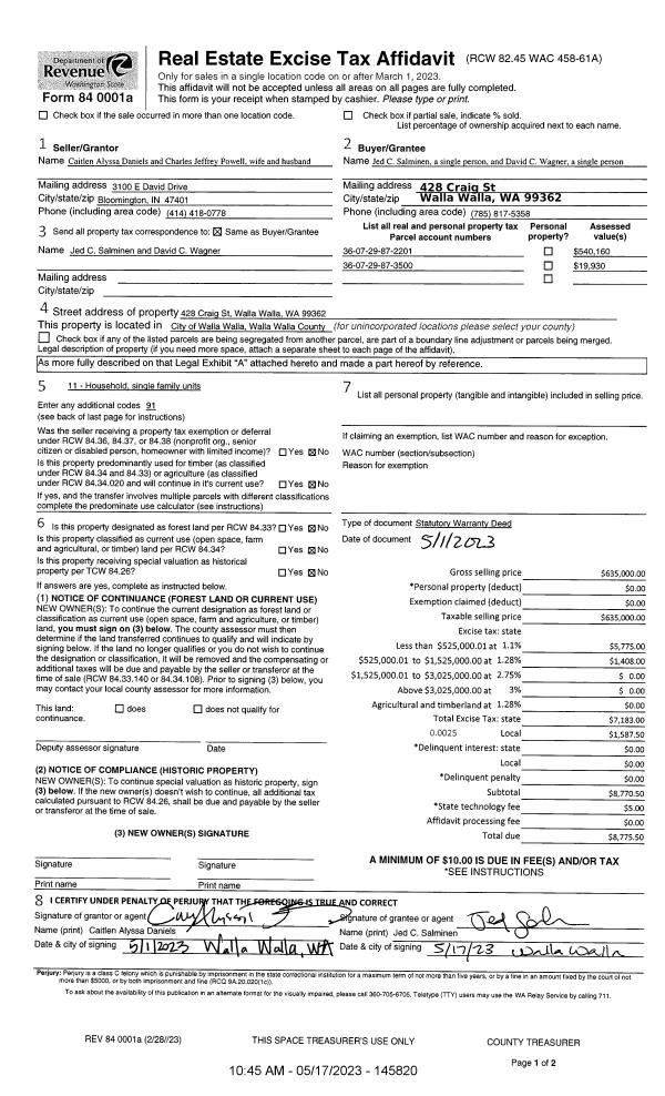
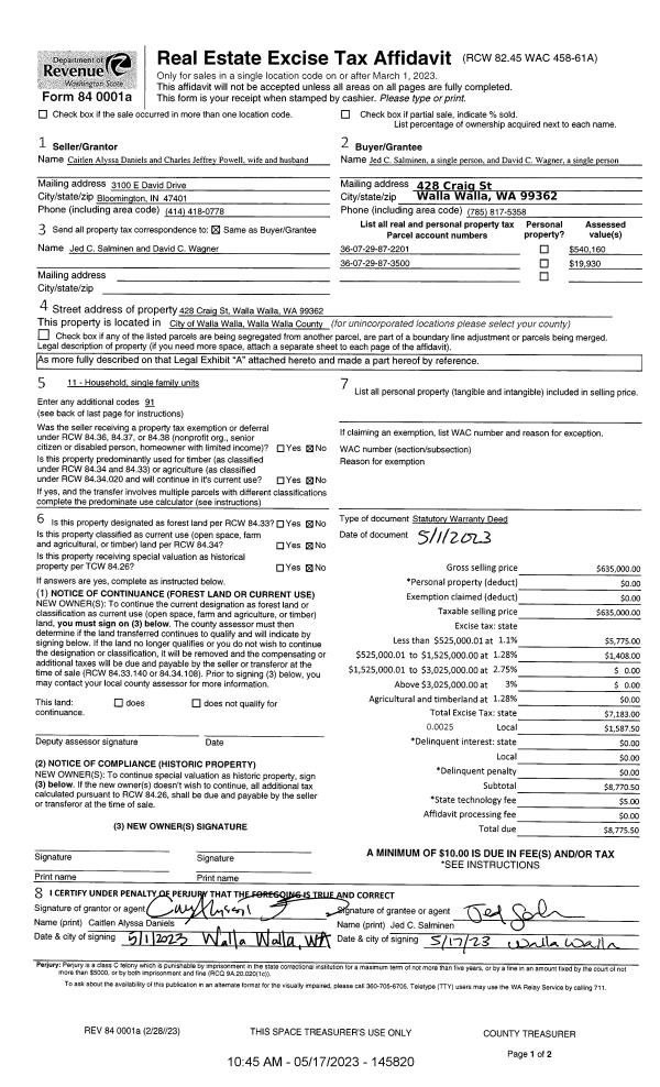
Deed and Sales History
| 1 | 05/17/2023 | SWD | STATUTORY WARRANTY DEED | DANIELS CAITLEN ALYSSA | SALMINEN JED C | | 2-PARCELS | $635,000.00 | 145820 | 2023-02605 |
|   | |
| 2 | 09/17/2021 | SWD | STATUTORY WARRANTY DEED | BELL SANDY L | DANIELS CAITLEN ALYSSA | | 2-PARCELS | $565,000.00 | 142533 | 2021-11590 |
|   | |
| 3 | 07/01/1982 | WARRANTY D | WARRANTY DEED | | | | | $43,500.00 | 0 | 1438-403142 |
|   | |
Payout Agreement
| No payout information available.. |