| 1 | 12/16/2019 | QCD | QUIT CLAIM DEED | BROWN DONALD S | SHACOCHIS-BROWN KRISTEN M | | | $0.00 | 138268 | 2019-10448 |
| 2 | 11/21/2016 | SWD | STATUTORY WARRANTY DEED | OSHIRO ERIK R & ALEXANDRA E OSHIRO | BROWN DONALD S | | 2-PARCELS | $162,000.00 | 131460 | 2016-09570 |
|   | |
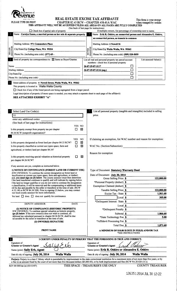
| 3 | 07/30/2014 | SWD | STATUTORY WARRANTY DEED | EASON CAROLYN | OSHIRO ERIK R & ALEXANDRA E OSHIRO | | 2-PARCELS | $122,000.00 | 126351 | 2014-05412 |
|   | |
| 4 | 08/10/2011 | WARRANTY D | WARRANTY DEED | PROF WINTER RENTALS LLC | | | | | 120523 | 2011-06230 |
| 5 | 06/03/2009 | WARRANTY D | WARRANTY DEED | "WINTER, CAROLYN" | | | | | 116830 | 2009-05565 |
| 6 | 03/04/2009 | QCD | QUIT CLAIM DEED | PROF WINTER RENTALS LLC | WINTER, CAROLYN | | | | 116417 | 2009-02121 |
| 7 | 04/11/2005 | QCD | QUIT CLAIM DEED | WINTER EUGENE & CAROLYN | PROF WINTER RENTALS LLC | | | | 107218 | 2005-04102 |
| 8 | 03/16/2004 | WARRANTY D | WARRANTY DEED | ZLATEVA MARIA | WINTER EUGENE & CAROLYN | | | $110,000.00 | 104270 | 2004-02717 |
|   | |
| 9 | 08/13/2002 | WARRANTY D | WARRANTY DEED | SCHROEDER, LAYNE & KIMBERLY | ZLATEVA, MARIA | | | $96,500.00 | 100141 | 2002-0009078 |