Property
Account |
| Property ID: | 11180 | Abbreviated Legal Description: | ROBERTS NLY 120' OF LOT 1 BLK 22 TRI OUT OF S 27' OF NLY 120' OFLOT 2 BLK 22 |
| Parcel Number: | 360729872201 | Agent Code: | |
| Type: | Real | | |
| Tax Area: | 1 - OL-140-F | Land Use Code | 11 |
| Open Space: | N | DFL | N |
| Historic Property: | N | Remodel Property: | N |
| Multi-Family Redevelopment: | N | | |
| Township: | 7 | Section: | 29 |
| Range: | 36 |
Location |
| Address: | 428 CRAIG ST WA 99362 | Mapsco: | |
| Neighborhood: | G-SFR | Map ID: | |
| Neighborhood CD: | 514011 |
Owner |
| Name: | SALMINEN JED C | Owner ID: | 73630 |
| Mailing Address: | DAVID C WAGNER 428 CRAIG ST WALLA WALLA, WA 99362 | % Ownership: | 100.0000000000% |
| | | Exemptions: | |
Taxes and Assessment Details
Values
| (+) Improvement Homesite Value: | + | N/A | |
| (+) Improvement Non-Homesite Value: | + | N/A | |
| (+) Land Homesite Value: | + | N/A | |
| (+) Land Non-Homesite Value: | + | N/A | Ag / Timber Use Value |
| (+) Curr Use (HS): | + | N/A | N/A |
| (+) Curr Use (NHS): | + | N/A | N/A |
| | | -------------------------- | |
| (=) Market Value: | = | N/A | |
| (–) Productivity Loss: | – | N/A | |
| | | -------------------------- | |
| (=) Subtotal: | = | N/A | |
| (+) Senior Appraised Value: | + | N/A | |
| (+) Non-Senior Appraised Value: | + | N/A | |
| | | -------------------------- | |
| (=) Total Appraised Value: | = | N/A | |
| (–) Senior Exemption Loss: | – | N/A | |
| (–) Exemption Loss: | – | N/A | |
| | | -------------------------- | |
| (=) Taxable Value: | = | N/A | |
Taxing Jurisdiction
| Owner: | SALMINEN JED C | | |
| % Ownership: | 100.0000000000% | | |
| Total Value: | N/A | | |
| Tax Area: | 1 - OL-140-F |
| CERFD | CURRENT EXPENSE REFUND 010 | N/A | N/A | N/A | N/A | | |
| CURREXP | CURRENT EXPENSE 010 | N/A | N/A | N/A | N/A | | |
| HUMNSERV | HUMAN SERVICES 119 | N/A | N/A | N/A | N/A | | |
| SLDREL | SOLDIERS RELIEF 121 | N/A | N/A | N/A | N/A | | |
| EMERGSER | EMS 147 | N/A | N/A | N/A | N/A | | |
| EMSRFD | EMS REFUND 147 | N/A | N/A | N/A | N/A | | |
| PORTRFD | PORT REFUND 640 | N/A | N/A | N/A | N/A | | |
| PORTWWGEN | PORT OF WW 640 | N/A | N/A | N/A | N/A | | |
| SD140BOND | SD #140 BOND 764 | N/A | N/A | N/A | N/A | | |
| SD140GEN | SD #140 GENERAL 760 | N/A | N/A | N/A | N/A | | |
| ST2 | STATE SCHOOL PART 2 600 | N/A | N/A | N/A | N/A | | |
| STATESCHL | STATE SCHOOL 600 | N/A | N/A | N/A | N/A | | |
| STREFUND | STATE REFUND LEVY 603 | N/A | N/A | N/A | N/A | | |
| CWWBOND | C OF WW BOND 643 | N/A | N/A | N/A | N/A | | |
| CWWGEN | CITY OF WW 631 | N/A | N/A | N/A | N/A | | |
| CWWRFD | CITY OF WALLA WALLA REFUND 631 | N/A | N/A | N/A | N/A | | |
| | Total Tax Rate: | N/A | | | | | |
| | | | | Taxes w/Current Exemptions: | N/A | | |
| | | | | Taxes w/o Exemptions: | N/A | | |
Improvement / Building
| Improvement #1: | RESIDENTIAL | State Code: | 11 | 2482.0 sqft | Value: | N/A |
| Exterior Wall: | SIDING | Heating/Cooling: | MINI-SPLIT HP SYSTEM | | Number of Bathrooms: | 2.5 | Number of Bedrooms: | 6 | | Plumbing: | 12 | Roof Covering: | COMP SHINGLE |
|
| | Type | Description | Class CD | Sub Class CD | Year Built | Area |
| | MA | Main Area | 7 | 45 | 1901 | 2482.0 |
| | UPFL | Upper Floor (included in main area) | 7 | 45 | 1901 | 804.0 |
| | UPFL | Upper Floor (included in main area) | 7 | 45 | 2021 | 240.0 |
| | SI1 | SITE IMPROVEMENT | 7 | 45 | 1901 | 6.0 |
| | BASE | BASEMENT | 7 | 45 | 1901 | 1119.0 |
| | BPF | BASEMENT -PARTITIONED FINISH | 7 | 45 | 2021 | 400.0 |
| | RPS | PORCH W/STEPS,ROOF | 7 | 45 | 1901 | 36.0 |
| | WOD | Wood Deck | 7 | 45 | 2021 | 217.0 |
| | DTG | Detached Garage | 7 | 45 | 1901 | 360.0 |
| | GFP | GAS FIREPLACE | 7 | 45 | 2021 | 1.0 |
Sketch
Property Image
Land
| 1 | RES 1 | Converted: Residential | 0.1263 | 5500.00 | 0.00 | 0.00 | 1.00 | N/A | N/A |
Roll Value History
| 2026 | N/A | N/A | N/A | N/A | N/A |
| 2025 | $552,550 | $60,500 | $0 | $613,050 | $613,050 |
| 2024 | $552,550 | $60,500 | $0 | $613,050 | $613,050 |
| 2023 | $575,320 | $39,880 | $0 | $615,200 | $615,200 |
| 2022 | $500,280 | $39,880 | $0 | $540,160 | $540,160 |
| 2021 | $135,210 | $39,880 | $0 | $175,090 | $175,090 |
| 2020 | $122,920 | $39,880 | $0 | $162,800 | $162,800 |
| 2019 | $122,920 | $39,880 | $0 | $162,800 | $162,800 |
| 2018 | $122,920 | $39,880 | $0 | $162,800 | $162,800 |
| 2017 | $85,700 | $24,800 | $0 | $110,500 | $110,500 |
| 2016 | $85,700 | $24,800 | $0 | $110,500 | $110,500 |
| 2015 | $85,700 | $24,800 | $0 | $110,500 | $110,500 |
| 2014 | $85,700 | $24,800 | $0 | $110,500 | $110,500 |
| 2013 | $85,700 | $24,800 | $0 | $110,500 | $110,500 |
| 2012 | $82,900 | $24,800 | $0 | $0 | $0 |
| 2011 | $82,900 | $24,800 | $0 | $0 | $0 |
| 2010 | $77,800 | $24,800 | $0 | $0 | $0 |
| 2009 | $89,200 | $24,800 | $0 | $0 | $0 |
| 2008 | $89,200 | $24,800 | $0 | $0 | $0 |
| 2007 | $89,200 | $24,800 | $0 | $0 | $0 |
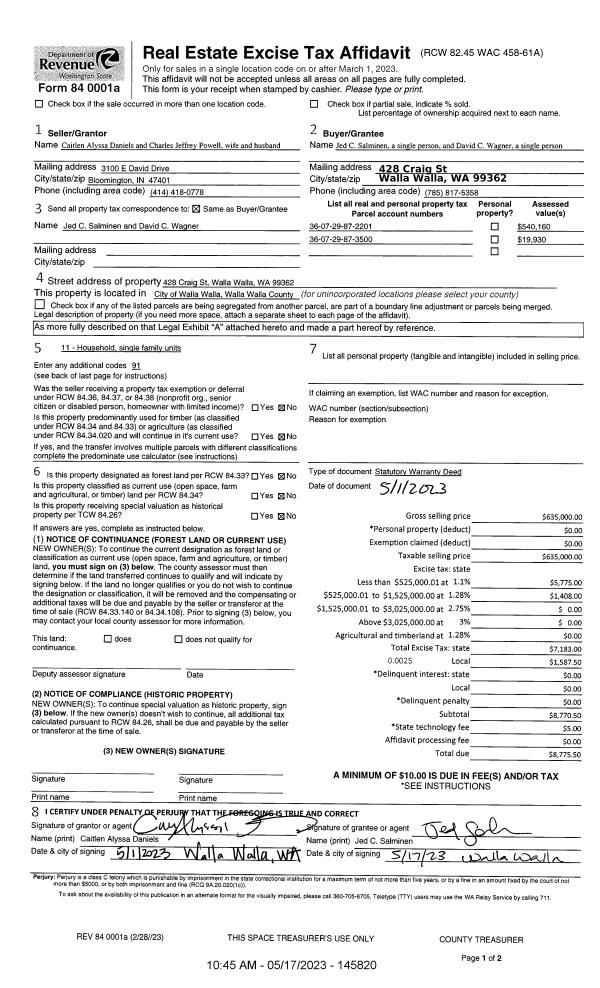
Deed and Sales History
| 1 | 05/17/2023 | SWD | STATUTORY WARRANTY DEED | DANIELS CAITLEN ALYSSA | SALMINEN JED C | | 2-PARCELS | $635,000.00 | 145820 | 2023-02605 |
|   | |
| 2 | 09/17/2021 | SWD | STATUTORY WARRANTY DEED | BELL SANDY L | DANIELS CAITLEN ALYSSA | | 2-PARCELS | $565,000.00 | 142533 | 2021-11590 |
|   | |
| 3 | 07/01/1982 | WARRANTY D | WARRANTY DEED | | | | | $43,500.00 | 0 | 1438-403142 |
|   | |
Payout Agreement
| No payout information available.. |