Property
Account |
| Property ID: | 1117 | Abbreviated Legal Description: | VALLEY HOMES SLY 93' LT 89 & WLY STRIP IN LT 90 (LT 2 OF ST PLAT) |
| Parcel Number: | 360722560199 | Agent Code: | |
| Type: | Real | | |
| Tax Area: | 6 - OL-140-F-FB | Land Use Code | 11 |
| Open Space: | N | DFL | N |
| Historic Property: | N | Remodel Property: | N |
| Multi-Family Redevelopment: | N | | |
| Township: | 7 | Section: | 22 |
| Range: | 36 |
Location |
| Address: | 115 BUSH ST WA 99362 | Mapsco: | |
| Neighborhood: | A SFR | Map ID: | |
| Neighborhood CD: | 413011 |
Owner |
| Name: | SOTELO VERONICA V | Owner ID: | 61926 |
| Mailing Address: | 115 BUSH ST WALLA WALLA, WA 99362 | % Ownership: | 100.0000000000% |
| | | Exemptions: | |
Taxes and Assessment Details
Values
| (+) Improvement Homesite Value: | + | $0 | |
| (+) Improvement Non-Homesite Value: | + | $152,160 | |
| (+) Land Homesite Value: | + | $0 | |
| (+) Land Non-Homesite Value: | + | $84,000 | |
| (+) Curr Use (HS): | + | $0 | $0 |
| (+) Curr Use (NHS): | + | $0 | $0 |
| | | -------------------------- | |
| (=) Market Value: | = | $236,160 | |
| (–) Productivity Loss: | – | $0 | |
| | | -------------------------- | |
| (=) Subtotal: | = | $236,160 | |
| (+) Senior Appraised Value: | + | $0 | |
| (+) Non-Senior Appraised Value: | + | $236,160 | |
| | | -------------------------- | |
| (=) Total Appraised Value: | = | $236,160 | |
| (–) Senior Exemption Loss: | – | $0 | |
| (–) Exemption Loss: | – | $0 | |
| | | -------------------------- | |
| (=) Taxable Value: | = | $236,160 | |
Taxing Jurisdiction
| Owner: | SOTELO VERONICA V | | |
| % Ownership: | 100.0000000000% | | |
| Total Value: | $236,160 | | |
| Tax Area: | 6 - OL-140-F-FB |
| CERFD | CURRENT EXPENSE REFUND 010 | 0.0000000000 | $236,160 | $236,160 | $0.00 | | |
| CURREXP | CURRENT EXPENSE 010 | 1.0175366760 | $236,160 | $236,160 | $240.30 | | |
| HUMNSERV | HUMAN SERVICES 119 | 0.0250000000 | $236,160 | $236,160 | $5.90 | | |
| SLDREL | SOLDIERS RELIEF 121 | 0.0155990005 | $236,160 | $236,160 | $3.68 | | |
| EMERGSER | EMS 147 | 0.3792580840 | $236,160 | $236,160 | $89.57 | | |
| EMSRFD | EMS REFUND 147 | 0.0000000000 | $236,160 | $236,160 | $0.00 | | |
| PORTRFD | PORT REFUND 640 | 0.0000000000 | $236,160 | $236,160 | $0.00 | | |
| PORTWWGEN | PORT OF WW 640 | 0.2460186015 | $236,160 | $236,160 | $58.10 | | |
| SD140BOND | SD #140 BOND 764 | 0.8342371393 | $236,160 | $236,160 | $197.01 | | |
| SD140GEN | SD #140 GENERAL 760 | 2.0646500647 | $236,160 | $236,160 | $487.59 | | |
| ST2 | STATE SCHOOL PART 2 600 | 0.8131451643 | $236,160 | $236,160 | $192.03 | | |
| STATESCHL | STATE SCHOOL 600 | 1.5158548041 | $236,160 | $236,160 | $357.98 | | |
| STREFUND | STATE REFUND LEVY 603 | 0.0000000000 | $236,160 | $236,160 | $0.00 | | |
| CWWBOND | C OF WW BOND 643 | 0.2760494372 | $236,160 | $236,160 | $65.19 | | |
| CWWGEN | CITY OF WW 631 | 1.6100204973 | $236,160 | $236,160 | $380.22 | | |
| CWWRFD | CITY OF WALLA WALLA REFUND 631 | 0.0000000000 | $236,160 | $236,160 | $0.00 | | |
| | Total Tax Rate: | 8.7973694689 | | | | | |
| | | | | Taxes w/Current Exemptions: | $2,077.57 | | |
| | | | | Taxes w/o Exemptions: | $2,077.57 | | |
Improvement / Building
| Improvement #1: | RESIDENTIAL | State Code: | 11 | 1136.0 sqft | Value: | $152,160 |
| Exterior Wall: | PLYWOOD | Heating/Cooling: | STOVE-NO HEAT | | Number of Bathrooms: | 1 | Number of Bedrooms: | 1 | | Plumbing: | 6 | Roof Covering: | COMP SHINGLE |
|
| | Type | Description | Class CD | Sub Class CD | Year Built | Area |
| | MA | Main Area | 1 | 20 | 1910 | 1136.0 |
| | SI1 | SITE IMPROVEMENT | 1 | 20 | 0 | 2.0 |
| | OPS | OPEN PORCH W/STEPS | 1 | 20 | 1910 | 15.0 |
| | EQUIPSHED | EQUIPMENT SHED | 1 | 20 | 1910 | 132.0 |
Sketch
Property Image
Land
| 1 | RES 1 | Converted: Residential | 0.3864 | 16833.00 | 0.00 | 0.00 | 1.00 | $84,000 | $0 |
Roll Value History
| 2026 | N/A | N/A | N/A | N/A | N/A |
| 2025 | $152,160 | $84,000 | $0 | $236,160 | $236,160 |
| 2024 | $152,160 | $84,000 | $0 | $236,160 | $236,160 |
| 2023 | $152,160 | $84,000 | $0 | $236,160 | $236,160 |
| 2022 | $145,250 | $58,070 | $0 | $203,320 | $203,320 |
| 2021 | $26,410 | $58,070 | $0 | $84,480 | $84,480 |
| 2020 | $24,010 | $58,070 | $0 | $82,080 | $82,080 |
| 2019 | $24,010 | $58,070 | $0 | $82,080 | $82,080 |
| 2018 | $21,830 | $58,070 | $0 | $79,900 | $79,900 |
| 2017 | $20,790 | $58,070 | $0 | $78,860 | $78,860 |
| 2016 | $30,800 | $45,100 | $0 | $75,900 | $75,900 |
| 2015 | $30,800 | $45,100 | $0 | $75,900 | $75,900 |
| 2014 | $30,800 | $45,100 | $0 | $75,900 | $75,900 |
| 2013 | $30,800 | $45,100 | $0 | $75,900 | $75,900 |
| 2012 | $30,800 | $45,100 | $0 | $0 | $0 |
| 2011 | $30,900 | $45,100 | $0 | $0 | $0 |
| 2010 | $30,900 | $45,100 | $0 | $0 | $0 |
| 2009 | $39,300 | $45,100 | $0 | $0 | $0 |
| 2008 | $39,300 | $45,100 | $0 | $0 | $0 |
| 2007 | $39,300 | $45,100 | $0 | $0 | $0 |
Deed and Sales History
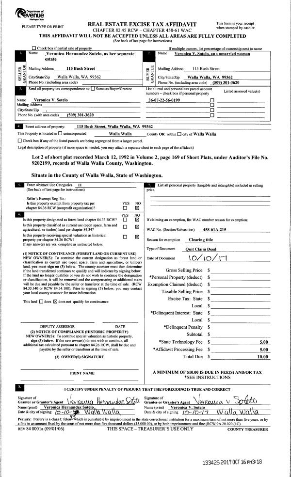
| 1 | 10/10/2017 | QCD | QUIT CLAIM DEED | SOTELO VERONICA HERNANDEZ | SOTELO VERONICA V | | | $0.00 | 133426 | 2017-08184 |
| 2 | 05/07/1992 | WARRANTY D | WARRANTY DEED | | | | | $27,000.00 | 76811 | 1969-204040 |
Payout Agreement
| No payout information available.. |