Property
Account |
| Property ID: | 11169 | Abbreviated Legal Description: | ROBERTS LOTS 7 AND 8 BLK 19 LESS ALLEY & TAX 1 LESS 2' STRIP |
| Parcel Number: | 360729871915 | Agent Code: | |
| Type: | Real | | |
| Tax Area: | 1 - OL-140-F | Land Use Code | 11 |
| Open Space: | N | DFL | N |
| Historic Property: | N | Remodel Property: | N |
| Multi-Family Redevelopment: | N | | |
| Township: | 7 | Section: | 29 |
| Range: | 36 |
Location |
| Address: | 528 S PARK ST WA 99362 | Mapsco: | |
| Neighborhood: | G-SFR | Map ID: | |
| Neighborhood CD: | 514011 |
Owner |
| Name: | DIMITRI BENJAMIN J & KATIE S | Owner ID: | 66300 |
| Mailing Address: | 528 S PARK ST WALLA WALLA, WA 99362 | % Ownership: | 100.0000000000% |
| | | Exemptions: | |
Taxes and Assessment Details
Property Tax Information as of
02/21/2026
Click on "Statement Details" to expand or collapse a tax statement.
* Please enter a valid date ** Please enter a valid date *
Statement Details |
| | TOTAL: | $0.00 | $0.00 | $0.00 | $0.00 | $0.00 | $0.00 |
|
| | $0.00 | $0.00 | $0.00 | $0.00 | $0.00 | $0.00 |
Values
| (+) Improvement Homesite Value: | + | $0 | |
| (+) Improvement Non-Homesite Value: | + | $412,720 | |
| (+) Land Homesite Value: | + | $0 | |
| (+) Land Non-Homesite Value: | + | $49,070 | |
| (+) Curr Use (HS): | + | $0 | $0 |
| (+) Curr Use (NHS): | + | $0 | $0 |
| | | -------------------------- | |
| (=) Market Value: | = | $461,790 | |
| (–) Productivity Loss: | – | $0 | |
| | | -------------------------- | |
| (=) Subtotal: | = | $461,790 | |
| (+) Senior Appraised Value: | + | $0 | |
| (+) Non-Senior Appraised Value: | + | $461,790 | |
| | | -------------------------- | |
| (=) Total Appraised Value: | = | $461,790 | |
| (–) Senior Exemption Loss: | – | $0 | |
| (–) Exemption Loss: | – | $0 | |
| | | -------------------------- | |
| (=) Taxable Value: | = | $461,790 | |
Taxing Jurisdiction
| Owner: | DIMITRI BENJAMIN J & KATIE S | | |
| % Ownership: | 100.0000000000% | | |
| Total Value: | $461,790 | | |
| Tax Area: | 1 - OL-140-F |
| CERFD | CURRENT EXPENSE REFUND 010 | 0.0000000000 | $461,790 | $461,790 | $0.00 | | |
| CURREXP | CURRENT EXPENSE 010 | 1.0175366760 | $461,790 | $461,790 | $469.89 | | |
| HUMNSERV | HUMAN SERVICES 119 | 0.0250000000 | $461,790 | $461,790 | $11.54 | | |
| SLDREL | SOLDIERS RELIEF 121 | 0.0155990005 | $461,790 | $461,790 | $7.20 | | |
| EMERGSER | EMS 147 | 0.3792580840 | $461,790 | $461,790 | $175.14 | | |
| EMSRFD | EMS REFUND 147 | 0.0000000000 | $461,790 | $461,790 | $0.00 | | |
| PORTRFD | PORT REFUND 640 | 0.0000000000 | $461,790 | $461,790 | $0.00 | | |
| PORTWWGEN | PORT OF WW 640 | 0.2460186015 | $461,790 | $461,790 | $113.61 | | |
| SD140BOND | SD #140 BOND 764 | 0.8342371393 | $461,790 | $461,790 | $385.24 | | |
| SD140GEN | SD #140 GENERAL 760 | 2.0646500647 | $461,790 | $461,790 | $953.43 | | |
| ST2 | STATE SCHOOL PART 2 600 | 0.8131451643 | $461,790 | $461,790 | $375.50 | | |
| STATESCHL | STATE SCHOOL 600 | 1.5158548041 | $461,790 | $461,790 | $700.01 | | |
| STREFUND | STATE REFUND LEVY 603 | 0.0000000000 | $461,790 | $461,790 | $0.00 | | |
| CWWBOND | C OF WW BOND 643 | 0.2760494372 | $461,790 | $461,790 | $127.48 | | |
| CWWGEN | CITY OF WW 631 | 1.6100204973 | $461,790 | $461,790 | $743.49 | | |
| CWWRFD | CITY OF WALLA WALLA REFUND 631 | 0.0000000000 | $461,790 | $461,790 | $0.00 | | |
| | Total Tax Rate: | 8.7973694689 | | | | | |
| | | | | Taxes w/Current Exemptions: | $4,062.53 | | |
| | | | | Taxes w/o Exemptions: | $4,062.53 | | |
Improvement / Building
| Improvement #1: | RESIDENTIAL | State Code: | 11 | 1526.0 sqft | Value: | $412,720 |
| Exterior Wall: | SIDING | Heating/Cooling: | WARM & COOLED AIR | | Number of Bathrooms: | 2 | Number of Bedrooms: | 4 | | Plumbing: | 10 | Roof Covering: | COMP SHINGLE |
|
| | Type | Description | Class CD | Sub Class CD | Year Built | Area |
| | MA | Main Area | 2 | 35 | 1895 | 1526.0 |
| | UPFL | Upper Floor (included in main area) | 2 | 35 | 1895 | 714.0 |
| | SI1 | SITE IMPROVEMENT | 2 | 35 | 1895 | 1.5 |
| | BASE | BASEMENT | 2 | 35 | 1895 | 308.0 |
| | RCD | WOOD DECK W/ROOF, CEILED | 2 | 35 | 1895 | 223.0 |
| | WDR | WOOD DECK W/ROOF | 2 | 35 | 1895 | 240.0 |
| | DTG | Detached Garage | 2 | 35 | 1895 | 216.0 |
Sketch
Property Image
Land
| 1 | RES 1 | Converted: Residential | 0.1554 | 6768.00 | 0.00 | 0.00 | 1.00 | $49,070 | $0 |
Roll Value History
| 2026 | N/A | N/A | N/A | N/A | N/A |
| 2025 | $381,950 | $74,450 | $0 | $456,400 | $456,400 |
| 2024 | $381,950 | $74,450 | $0 | $456,400 | $456,400 |
| 2023 | $412,720 | $49,070 | $0 | $461,790 | $461,790 |
| 2022 | $375,200 | $49,070 | $0 | $424,270 | $424,270 |
| 2021 | $312,670 | $49,070 | $0 | $361,740 | $361,740 |
| 2020 | $195,420 | $49,070 | $0 | $244,490 | $244,490 |
| 2019 | $195,420 | $49,070 | $0 | $244,490 | $244,490 |
| 2018 | $186,110 | $49,070 | $0 | $235,180 | $235,180 |
| 2017 | $200,640 | $30,500 | $0 | $231,140 | $231,140 |
| 2016 | $200,640 | $30,500 | $0 | $231,140 | $231,140 |
| 2015 | $200,640 | $30,500 | $0 | $231,140 | $231,140 |
| 2014 | $167,200 | $30,500 | $0 | $197,700 | $197,700 |
| 2013 | $167,200 | $30,500 | $0 | $197,700 | $197,700 |
| 2012 | $163,500 | $30,500 | $0 | $0 | $0 |
| 2011 | $145,900 | $30,500 | $0 | $0 | $0 |
| 2010 | $137,500 | $30,500 | $0 | $0 | $0 |
| 2009 | $156,200 | $30,500 | $0 | $0 | $0 |
| 2008 | $156,200 | $30,500 | $0 | $0 | $0 |
| 2007 | $156,200 | $30,500 | $0 | $0 | $0 |
Deed and Sales History
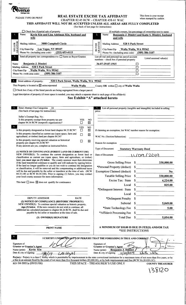
| 1 | 11/20/2019 | SWD | STATUTORY WARRANTY DEED | KIN KEVIN M & LISA A | DIMITRI BENJAMIN J & KATIE S | | | $330,000.00 | 138120 | 2019-09627 |
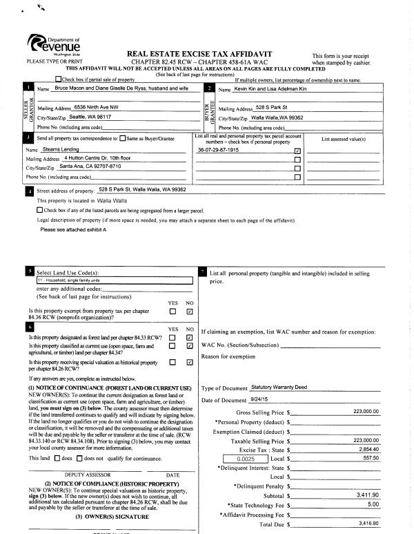
| 2 | 09/28/2015 | SWD | STATUTORY WARRANTY DEED | MACON BRUCE & DIANE DE RYSS | KIN KEVIN M & LISA A | | | $223,000.00 | 128892 | 2015-08498 |
| 3 | 05/28/2004 | WARRANTY D | WARRANTY DEED | NICOARA, SEBASTIAN & SHELAH | MACON, BRUCE & DIANE DE RYSS | | | $187,500.00 | 104884 | 2004-05844 |
| 4 | 11/02/1999 | WARRANTY D | WARRANTY DEED | | | | | $58,000.00 | 93948 | 2919-912587 |
Payout Agreement
| No payout information available.. |