Property
Account |
| Property ID: | 11164 | Abbreviated Legal Description: | ROBERTS TAX 1 & 2 BLK 18 |
| Parcel Number: | 360729871805 | Agent Code: | |
| Type: | Real | | |
| Tax Area: | 1 - OL-140-F | Land Use Code | 11 |
| Open Space: | N | DFL | N |
| Historic Property: | N | Remodel Property: | N |
| Multi-Family Redevelopment: | N | | |
| Township: | 7 | Section: | 29 |
| Range: | 36 |
Location |
| Address: | 529 S PALOUSE ST WA 99362 | Mapsco: | |
| Neighborhood: | G-SFR | Map ID: | |
| Neighborhood CD: | 514011 |
Owner |
| Name: | HOWE STEPHEN & JENNIFER VILLAR | Owner ID: | 66153 |
| Mailing Address: | 7822 NE 14TH ST MEDINA, WA 98039 | % Ownership: | 100.0000000000% |
| | | Exemptions: | |
Taxes and Assessment Details
Property Tax Information as of
02/21/2026
Click on "Statement Details" to expand or collapse a tax statement.
* Please enter a valid date ** Please enter a valid date *
Statement Details |
| | TOTAL: | $0.00 | $0.00 | $0.00 | $0.00 | $0.00 | $0.00 |
|
| | $0.00 | $0.00 | $0.00 | $0.00 | $0.00 | $0.00 |
Values
| (+) Improvement Homesite Value: | + | $0 | |
| (+) Improvement Non-Homesite Value: | + | $966,580 | |
| (+) Land Homesite Value: | + | $0 | |
| (+) Land Non-Homesite Value: | + | $78,890 | |
| (+) Curr Use (HS): | + | $0 | $0 |
| (+) Curr Use (NHS): | + | $0 | $0 |
| | | -------------------------- | |
| (=) Market Value: | = | $1,045,470 | |
| (–) Productivity Loss: | – | $0 | |
| | | -------------------------- | |
| (=) Subtotal: | = | $1,045,470 | |
| (+) Senior Appraised Value: | + | $0 | |
| (+) Non-Senior Appraised Value: | + | $1,045,470 | |
| | | -------------------------- | |
| (=) Total Appraised Value: | = | $1,045,470 | |
| (–) Senior Exemption Loss: | – | $0 | |
| (–) Exemption Loss: | – | $0 | |
| | | -------------------------- | |
| (=) Taxable Value: | = | $1,045,470 | |
Taxing Jurisdiction
| Owner: | HOWE STEPHEN & JENNIFER VILLAR | | |
| % Ownership: | 100.0000000000% | | |
| Total Value: | $1,045,470 | | |
| Tax Area: | 1 - OL-140-F |
| CERFD | CURRENT EXPENSE REFUND 010 | 0.0000000000 | $1,045,470 | $1,045,470 | $0.00 | | |
| CURREXP | CURRENT EXPENSE 010 | 1.0175366760 | $1,045,470 | $1,045,470 | $1,063.80 | | |
| HUMNSERV | HUMAN SERVICES 119 | 0.0250000000 | $1,045,470 | $1,045,470 | $26.14 | | |
| SLDREL | SOLDIERS RELIEF 121 | 0.0155990005 | $1,045,470 | $1,045,470 | $16.31 | | |
| EMERGSER | EMS 147 | 0.3792580840 | $1,045,470 | $1,045,470 | $396.50 | | |
| EMSRFD | EMS REFUND 147 | 0.0000000000 | $1,045,470 | $1,045,470 | $0.00 | | |
| PORTRFD | PORT REFUND 640 | 0.0000000000 | $1,045,470 | $1,045,470 | $0.00 | | |
| PORTWWGEN | PORT OF WW 640 | 0.2460186015 | $1,045,470 | $1,045,470 | $257.21 | | |
| SD140BOND | SD #140 BOND 764 | 0.8342371393 | $1,045,470 | $1,045,470 | $872.17 | | |
| SD140GEN | SD #140 GENERAL 760 | 2.0646500647 | $1,045,470 | $1,045,470 | $2,158.53 | | |
| ST2 | STATE SCHOOL PART 2 600 | 0.8131451643 | $1,045,470 | $1,045,470 | $850.12 | | |
| STATESCHL | STATE SCHOOL 600 | 1.5158548041 | $1,045,470 | $1,045,470 | $1,584.78 | | |
| STREFUND | STATE REFUND LEVY 603 | 0.0000000000 | $1,045,470 | $1,045,470 | $0.00 | | |
| CWWBOND | C OF WW BOND 643 | 0.2760494372 | $1,045,470 | $1,045,470 | $288.60 | | |
| CWWGEN | CITY OF WW 631 | 1.6100204973 | $1,045,470 | $1,045,470 | $1,683.23 | | |
| CWWRFD | CITY OF WALLA WALLA REFUND 631 | 0.0000000000 | $1,045,470 | $1,045,470 | $0.00 | | |
| | Total Tax Rate: | 8.7973694689 | | | | | |
| | | | | Taxes w/Current Exemptions: | $9,197.39 | | |
| | | | | Taxes w/o Exemptions: | $9,197.39 | | |
Improvement / Building
| Improvement #1: | RESIDENTIAL | State Code: | 11 | 3472.0 sqft | Value: | $966,580 |
| Exterior Wall: | SIDING | Heating/Cooling: | WARM & COOLED AIR | | Number of Bathrooms: | 3 | Number of Bedrooms: | 4 | | Plumbing: | 12 | Roof Covering: | COMP SHINGLE |
|
| | Type | Description | Class CD | Sub Class CD | Year Built | Area |
| | MA | Main Area | 2 | 55 | 1892 | 3472.0 |
| | UPFL | Upper Floor (included in main area) | 2 | 55 | 1892 | 1601.0 |
| | SI1 | SITE IMPROVEMENT | 2 | 55 | 1892 | 4.0 |
| | BASE | BASEMENT | 2 | 55 | 1892 | 384.0 |
| | BPF | BASEMENT -PARTITIONED FINISH | 2 | 55 | 1892 | 384.0 |
| | S2F | Single 2S Fireplace | 2 | 55 | 1892 | 1.0 |
| | D2F | Double 2 Story Fireplace | 2 | 55 | 1892 | 1.0 |
| | SWP | Solid Wall Porch | 2 | 55 | 1892 | 99.0 |
| | CPC | COVERED CARPORT/PATIO | 2 | 55 | 1892 | 295.0 |
| | RCD | WOOD DECK W/ROOF, CEILED | 2 | 55 | 1892 | 317.0 |
| | DTG | Detached Garage | 2 | 55 | 1892 | 784.0 |
Sketch
Property Image
Land
| 1 | RES 1 | Converted: Residential | 0.4855 | 21150.00 | 0.00 | 0.00 | 1.00 | $78,890 | $0 |
Roll Value History
| 2026 | N/A | N/A | N/A | N/A | N/A |
| 2025 | $973,800 | $139,800 | $0 | $1,113,600 | $1,113,600 |
| 2024 | $973,800 | $139,800 | $0 | $1,113,600 | $1,113,600 |
| 2023 | $966,580 | $78,890 | $0 | $1,045,470 | $1,045,470 |
| 2022 | $840,500 | $78,890 | $0 | $919,390 | $919,390 |
| 2021 | $600,360 | $78,890 | $0 | $679,250 | $679,250 |
| 2020 | $522,050 | $78,890 | $0 | $600,940 | $600,940 |
| 2019 | $522,050 | $78,890 | $0 | $600,940 | $600,940 |
| 2018 | $522,050 | $78,890 | $0 | $600,940 | $600,940 |
| 2017 | $456,700 | $51,700 | $0 | $508,400 | $508,400 |
| 2016 | $456,700 | $51,700 | $0 | $508,400 | $508,400 |
| 2015 | $456,700 | $51,700 | $0 | $508,400 | $508,400 |
| 2014 | $443,400 | $51,700 | $0 | $495,100 | $495,100 |
| 2013 | $443,400 | $51,700 | $0 | $495,100 | $495,100 |
| 2012 | $443,400 | $51,700 | $0 | $0 | $0 |
| 2011 | $443,400 | $51,700 | $0 | $0 | $0 |
| 2010 | $419,800 | $51,700 | $0 | $0 | $0 |
| 2009 | $447,200 | $51,700 | $0 | $0 | $0 |
| 2008 | $382,100 | $51,700 | $0 | $0 | $0 |
| 2007 | $382,100 | $51,700 | $0 | $0 | $0 |
Deed and Sales History
| 1 | 09/10/2024 | QCD | QUIT CLAIM DEED | VILLAR JENNIFER L | JLV TRUST | | | | 148165 | 2024-05116 |
| 2 | 06/24/2024 | QCD | QUIT CLAIM DEED | HOWE STEPHEN & JENNIFER VILLAR | VILLAR JENNIFER L | | | | 147761 | 2024-03346 |
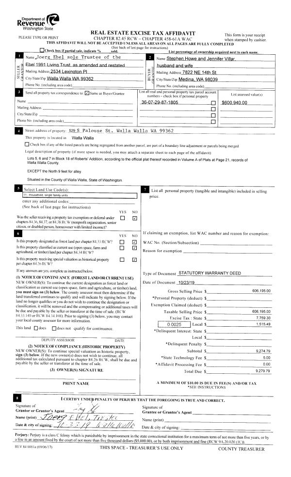
| 3 | 10/25/2019 | SWD | STATUTORY WARRANTY DEED | EBEL 1991 LIVING TRUST | HOWE STEPHEN & JENNIFER VILLAR | | | $606,195.00 | 137955 | 2019-08646 |
| 4 | 10/25/2019 | DEATH CERT | DEATH CERTIFICATE | EBEL GISELE EMMY | | | | | 0 | 2019-08645 |
| 5 | 05/09/1997 | WARRANTY D | WARRANTY DEED | | | | | $285,000.00 | 88129 | 2519-704160 |
Payout Agreement
| No payout information available.. |