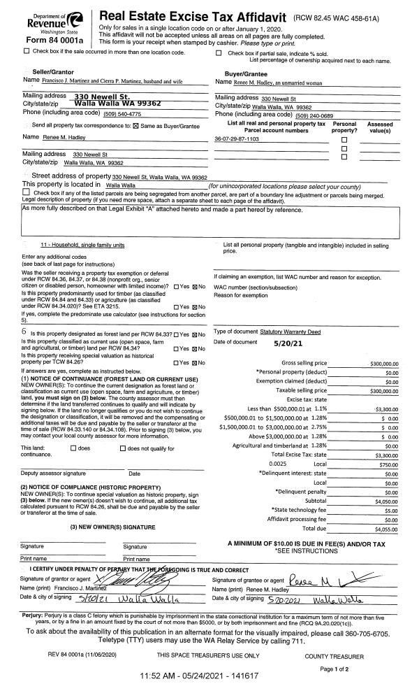
Property
Account |
| Property ID: | 11132 | Abbreviated Legal Description: | ROBERTS TAX 4 LOT 3 BLK 11 |
| Parcel Number: | 360729871103 | Agent Code: | |
| Type: | Real | | |
| Tax Area: | 1 - OL-140-F | Land Use Code | 11 |
| Open Space: | N | DFL | N |
| Historic Property: | N | Remodel Property: | N |
| Multi-Family Redevelopment: | N | | |
| Township: | 7 | Section: | 29 |
| Range: | 36 |
Location |
| Address: | 330 NEWELL ST WA 99362 | Mapsco: | |
| Neighborhood: | G-SFR | Map ID: | |
| Neighborhood CD: | 514011 |
Owner |
| Name: | HADLEY RENEE M | Owner ID: | 69495 |
| Mailing Address: | 330 NEWELL ST WALLA WALLA, WA 99362 | % Ownership: | 100.0000000000% |
| | | Exemptions: | |
Taxes and Assessment Details
Values
| (+) Improvement Homesite Value: | + | $0 | |
| (+) Improvement Non-Homesite Value: | + | $242,700 | |
| (+) Land Homesite Value: | + | $0 | |
| (+) Land Non-Homesite Value: | + | $72,760 | |
| (+) Curr Use (HS): | + | $0 | $0 |
| (+) Curr Use (NHS): | + | $0 | $0 |
| | | -------------------------- | |
| (=) Market Value: | = | $315,460 | |
| (–) Productivity Loss: | – | $0 | |
| | | -------------------------- | |
| (=) Subtotal: | = | $315,460 | |
| (+) Senior Appraised Value: | + | $0 | |
| (+) Non-Senior Appraised Value: | + | $315,460 | |
| | | -------------------------- | |
| (=) Total Appraised Value: | = | $315,460 | |
| (–) Senior Exemption Loss: | – | $0 | |
| (–) Exemption Loss: | – | $0 | |
| | | -------------------------- | |
| (=) Taxable Value: | = | $315,460 | |
Taxing Jurisdiction
| Owner: | HADLEY RENEE M | | |
| % Ownership: | 100.0000000000% | | |
| Total Value: | $315,460 | | |
| Tax Area: | 1 - OL-140-F |
| CERFD | CURRENT EXPENSE REFUND 010 | 0.0000000000 | $315,460 | $315,460 | $0.00 | | |
| CURREXP | CURRENT EXPENSE 010 | 1.0175366760 | $315,460 | $315,460 | $320.99 | | |
| HUMNSERV | HUMAN SERVICES 119 | 0.0250000000 | $315,460 | $315,460 | $7.89 | | |
| SLDREL | SOLDIERS RELIEF 121 | 0.0155990005 | $315,460 | $315,460 | $4.92 | | |
| EMERGSER | EMS 147 | 0.3792580840 | $315,460 | $315,460 | $119.64 | | |
| EMSRFD | EMS REFUND 147 | 0.0000000000 | $315,460 | $315,460 | $0.00 | | |
| PORTRFD | PORT REFUND 640 | 0.0000000000 | $315,460 | $315,460 | $0.00 | | |
| PORTWWGEN | PORT OF WW 640 | 0.2460186015 | $315,460 | $315,460 | $77.61 | | |
| SD140BOND | SD #140 BOND 764 | 0.8342371393 | $315,460 | $315,460 | $263.17 | | |
| SD140GEN | SD #140 GENERAL 760 | 2.0646500647 | $315,460 | $315,460 | $651.31 | | |
| ST2 | STATE SCHOOL PART 2 600 | 0.8131451643 | $315,460 | $315,460 | $256.51 | | |
| STATESCHL | STATE SCHOOL 600 | 1.5158548041 | $315,460 | $315,460 | $478.19 | | |
| STREFUND | STATE REFUND LEVY 603 | 0.0000000000 | $315,460 | $315,460 | $0.00 | | |
| CWWBOND | C OF WW BOND 643 | 0.2760494372 | $315,460 | $315,460 | $87.08 | | |
| CWWGEN | CITY OF WW 631 | 1.6100204973 | $315,460 | $315,460 | $507.90 | | |
| CWWRFD | CITY OF WALLA WALLA REFUND 631 | 0.0000000000 | $315,460 | $315,460 | $0.00 | | |
| | Total Tax Rate: | 8.7973694689 | | | | | |
| | | | | Taxes w/Current Exemptions: | $2,775.21 | | |
| | | | | Taxes w/o Exemptions: | $2,775.21 | | |
Improvement / Building
| Improvement #1: | RESIDENTIAL | State Code: | 11 | 998.0 sqft | Value: | $242,700 |
| Exterior Wall: | METAL/STEEL | Heating/Cooling: | WARM & COOLED AIR | | Number of Bathrooms: | 2 | Number of Bedrooms: | 2 | | Plumbing: | 10 | Roof Covering: | COMP SHINGLE |
|
| | Type | Description | Class CD | Sub Class CD | Year Built | Area |
| | MA | Main Area | 1 | 30 | 1915 | 998.0 |
| | SI1 | SITE IMPROVEMENT | 1 | 30 | 1915 | 1.0 |
| | BASE | BASEMENT | 1 | 30 | 1915 | 496.0 |
| | RPS | PORCH W/STEPS,ROOF | 1 | 30 | 1915 | 60.0 |
| | SWP | Solid Wall Porch | 1 | 30 | 1915 | 294.0 |
| | DTG | Detached Garage | 1 | 30 | 1915 | 440.0 |
Sketch
Property Image
Land
| 1 | RES 1 | Converted: Residential | 0.2376 | 10350.00 | 0.00 | 0.00 | 1.00 | $72,760 | $0 |
Roll Value History
| 2026 | N/A | N/A | N/A | N/A | N/A |
| 2025 | $233,000 | $113,850 | $0 | $346,850 | $346,850 |
| 2024 | $233,000 | $113,850 | $0 | $346,850 | $346,850 |
| 2023 | $242,700 | $72,760 | $0 | $315,460 | $315,460 |
| 2022 | $220,630 | $72,760 | $0 | $293,390 | $293,390 |
| 2021 | $183,860 | $72,760 | $0 | $256,620 | $256,620 |
| 2020 | $131,330 | $72,760 | $0 | $204,090 | $204,090 |
| 2019 | $131,330 | $72,760 | $0 | $204,090 | $204,090 |
| 2018 | $114,200 | $72,760 | $0 | $186,960 | $186,960 |
| 2017 | $125,240 | $45,200 | $0 | $170,440 | $170,440 |
| 2016 | $108,900 | $45,200 | $0 | $154,100 | $154,100 |
| 2015 | $108,900 | $45,200 | $0 | $154,100 | $154,100 |
| 2014 | $108,900 | $45,200 | $0 | $154,100 | $154,100 |
| 2013 | $108,900 | $45,200 | $0 | $154,100 | $154,100 |
| 2012 | $108,900 | $45,200 | $0 | $0 | $0 |
| 2011 | $108,900 | $45,200 | $0 | $0 | $0 |
| 2010 | $101,600 | $45,200 | $0 | $0 | $0 |
| 2009 | $117,900 | $45,200 | $0 | $0 | $0 |
| 2008 | $85,300 | $45,200 | $0 | $0 | $0 |
| 2007 | $85,300 | $45,200 | $0 | $0 | $0 |
Deed and Sales History
| 1 | 05/24/2021 | SWD | STATUTORY WARRANTY DEED | MARTINEZ FRANCISCO JOSE & CIERRA PAIGE | HADLEY RENEE M | | | $300,000.00 | 141617 | 2021-06235 |
| 2 | 09/10/2018 | SWD | STATUTORY WARRANTY DEED | POOLER LUCIANA | MARTINEZ FRANCISCO JOSE & CIERRA PAIGE | | | $79,310.00 | 135512 | 2018-07538 |
| 3 | 01/14/1991 | WARRANTY D | WARRANTY DEED | | | | | $37,500.00 | 0 | 1879-100231 |
Payout Agreement
| No payout information available.. |