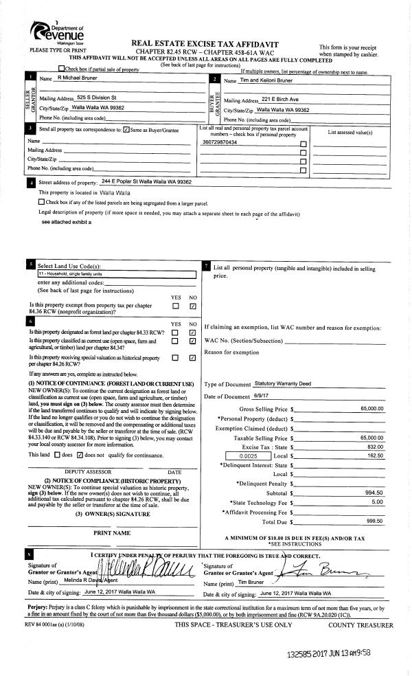
Property
Account |
| Property ID: | 11122 | Abbreviated Legal Description: | UNNUMBERED BLOCK-ROBERTS TAX 33 |
| Parcel Number: | 360729870434 | Agent Code: | |
| Type: | Real | | |
| Tax Area: | 1 - OL-140-F | Land Use Code | 12 |
| Open Space: | N | DFL | N |
| Historic Property: | N | Remodel Property: | N |
| Multi-Family Redevelopment: | N | | |
| Township: | 7 | Section: | 29 |
| Range: | 36 |
Location |
| Address: | 244 E POPLAR ST WA 99362 | Mapsco: | |
| Neighborhood: | A-Duplex | Map ID: | |
| Neighborhood CD: | 513031 |
Owner |
| Name: | BRUNER TIMOTHY & KEILONI | Owner ID: | 12879 |
| Mailing Address: | 221 E BIRCH ST WALLA WALLA, WA 99362 | % Ownership: | 100.0000000000% |
| | | Exemptions: | |
Taxes and Assessment Details
Values
| (+) Improvement Homesite Value: | + | $0 | |
| (+) Improvement Non-Homesite Value: | + | $52,630 | |
| (+) Land Homesite Value: | + | $0 | |
| (+) Land Non-Homesite Value: | + | $28,130 | |
| (+) Curr Use (HS): | + | $0 | $0 |
| (+) Curr Use (NHS): | + | $0 | $0 |
| | | -------------------------- | |
| (=) Market Value: | = | $80,760 | |
| (–) Productivity Loss: | – | $0 | |
| | | -------------------------- | |
| (=) Subtotal: | = | $80,760 | |
| (+) Senior Appraised Value: | + | $0 | |
| (+) Non-Senior Appraised Value: | + | $80,760 | |
| | | -------------------------- | |
| (=) Total Appraised Value: | = | $80,760 | |
| (–) Senior Exemption Loss: | – | $0 | |
| (–) Exemption Loss: | – | $0 | |
| | | -------------------------- | |
| (=) Taxable Value: | = | $80,760 | |
Taxing Jurisdiction
| Owner: | BRUNER TIMOTHY & KEILONI | | |
| % Ownership: | 100.0000000000% | | |
| Total Value: | $80,760 | | |
| Tax Area: | 1 - OL-140-F |
| CERFD | CURRENT EXPENSE REFUND 010 | 0.0000000000 | $80,760 | $80,760 | $0.00 | | |
| CURREXP | CURRENT EXPENSE 010 | 1.0175366760 | $80,760 | $80,760 | $82.18 | | |
| HUMNSERV | HUMAN SERVICES 119 | 0.0250000000 | $80,760 | $80,760 | $2.02 | | |
| SLDREL | SOLDIERS RELIEF 121 | 0.0155990005 | $80,760 | $80,760 | $1.26 | | |
| EMERGSER | EMS 147 | 0.3792580840 | $80,760 | $80,760 | $30.63 | | |
| EMSRFD | EMS REFUND 147 | 0.0000000000 | $80,760 | $80,760 | $0.00 | | |
| PORTRFD | PORT REFUND 640 | 0.0000000000 | $80,760 | $80,760 | $0.00 | | |
| PORTWWGEN | PORT OF WW 640 | 0.2460186015 | $80,760 | $80,760 | $19.87 | | |
| SD140BOND | SD #140 BOND 764 | 0.8342371393 | $80,760 | $80,760 | $67.37 | | |
| SD140GEN | SD #140 GENERAL 760 | 2.0646500647 | $80,760 | $80,760 | $166.74 | | |
| ST2 | STATE SCHOOL PART 2 600 | 0.8131451643 | $80,760 | $80,760 | $65.67 | | |
| STATESCHL | STATE SCHOOL 600 | 1.5158548041 | $80,760 | $80,760 | $122.42 | | |
| STREFUND | STATE REFUND LEVY 603 | 0.0000000000 | $80,760 | $80,760 | $0.00 | | |
| CWWBOND | C OF WW BOND 643 | 0.2760494372 | $80,760 | $80,760 | $22.29 | | |
| CWWGEN | CITY OF WW 631 | 1.6100204973 | $80,760 | $80,760 | $130.03 | | |
| CWWRFD | CITY OF WALLA WALLA REFUND 631 | 0.0000000000 | $80,760 | $80,760 | $0.00 | | |
| | Total Tax Rate: | 8.7973694689 | | | | | |
| | | | | Taxes w/Current Exemptions: | $710.48 | | |
| | | | | Taxes w/o Exemptions: | $710.48 | | |
Improvement / Building
| Improvement #1: | RESIDENTIAL | State Code: | 12 | 880.0 sqft | Value: | $52,630 |
| Exterior Wall: | SIDING | Heating/Cooling: | FLOOR FURNACE | | Number of Bathrooms: | 2 | Number of Bedrooms: | 2 | | Plumbing: | 10 | Roof Covering: | COMP SHINGLE |
|
| | Type | Description | Class CD | Sub Class CD | Year Built | Area |
| | MA | Main Area | 1 | 20 | 1940 | 880.0 |
| | SI1 | SITE IMPROVEMENT | 1 | 20 | 1940 | 2.0 |
| | OPS | OPEN PORCH W/STEPS | 1 | 20 | 1940 | 12.0 |
Sketch
Property Image
Land
| 1 | RES 1 | Converted: Residential | 0.1033 | 4500.00 | 0.00 | 0.00 | 1.00 | $28,130 | $0 |
Roll Value History
| 2026 | N/A | N/A | N/A | N/A | N/A |
| 2025 | $56,300 | $40,500 | $0 | $96,800 | $96,800 |
| 2024 | $56,300 | $40,500 | $0 | $96,800 | $96,800 |
| 2023 | $52,630 | $28,130 | $0 | $80,760 | $80,760 |
| 2022 | $52,630 | $28,130 | $0 | $80,760 | $80,760 |
| 2021 | $47,850 | $28,130 | $0 | $75,980 | $75,980 |
| 2020 | $45,570 | $28,130 | $0 | $73,700 | $73,700 |
| 2019 | $45,570 | $28,130 | $0 | $73,700 | $73,700 |
| 2018 | $45,570 | $28,130 | $0 | $73,700 | $73,700 |
| 2017 | $52,690 | $18,000 | $0 | $70,690 | $70,690 |
| 2016 | $52,690 | $18,000 | $0 | $70,690 | $70,690 |
| 2015 | $52,690 | $18,000 | $0 | $70,690 | $70,690 |
| 2014 | $47,900 | $18,000 | $0 | $65,900 | $65,900 |
| 2013 | $47,900 | $18,000 | $0 | $65,900 | $65,900 |
| 2012 | $47,400 | $18,000 | $0 | $0 | $0 |
| 2011 | $47,400 | $18,000 | $0 | $0 | $0 |
| 2010 | $47,400 | $18,000 | $0 | $0 | $0 |
| 2009 | $47,400 | $18,000 | $0 | $0 | $0 |
| 2008 | $47,400 | $18,000 | $0 | $0 | $0 |
| 2007 | $47,400 | $18,000 | $0 | $0 | $0 |
Deed and Sales History
| 1 | 06/13/2017 | SWD | STATUTORY WARRANTY DEED | BREINER R MICHAEL | BRUNER TIMOTHY & KEILONI | | | $65,000.00 | 132585 | 2017-04497 |
| 2 | 03/31/1999 | WARRANTY D | WARRANTY DEED | | | | | $55,000.00 | 92458 | 2829-903952 |
Payout Agreement
| No payout information available.. |