Property
Account |
| Property ID: | 1111 | Abbreviated Legal Description: | 36 07 21 TAX 33 AND 67B |
| Parcel Number: | 360721320007 | Agent Code: | |
| Type: | Real | | |
| Tax Area: | 1 - OL-140-F | Land Use Code | 11 |
| Open Space: | N | DFL | N |
| Historic Property: | N | Remodel Property: | N |
| Multi-Family Redevelopment: | N | | |
| Township: | 7 | Section: | 21 |
| Range: | 36 |
Location |
| Address: | 725 FRANCIS AVE WA 99362 | Mapsco: | |
| Neighborhood: | G-SFR | Map ID: | |
| Neighborhood CD: | 514011 |
Owner |
| Name: | CONSANI ROBIN | Owner ID: | 57777 |
| Mailing Address: | MICHAEL F DOLAN 725 FRANCIS AVE WALLA WALLA, WA 99362 | % Ownership: | 100.0000000000% |
| | | Exemptions: | |
Taxes and Assessment Details
Property Tax Information as of
02/21/2026
Click on "Statement Details" to expand or collapse a tax statement.
* Please enter a valid date ** Please enter a valid date *
Statement Details |
| | TOTAL: | $0.00 | $0.00 | $0.00 | $0.00 | $0.00 | $0.00 |
|
| | $0.00 | $0.00 | $0.00 | $0.00 | $0.00 | $0.00 |
Values
| (+) Improvement Homesite Value: | + | $0 | |
| (+) Improvement Non-Homesite Value: | + | $430,880 | |
| (+) Land Homesite Value: | + | $0 | |
| (+) Land Non-Homesite Value: | + | $74,020 | |
| (+) Curr Use (HS): | + | $0 | $0 |
| (+) Curr Use (NHS): | + | $0 | $0 |
| | | -------------------------- | |
| (=) Market Value: | = | $504,900 | |
| (–) Productivity Loss: | – | $0 | |
| | | -------------------------- | |
| (=) Subtotal: | = | $504,900 | |
| (+) Senior Appraised Value: | + | $0 | |
| (+) Non-Senior Appraised Value: | + | $504,900 | |
| | | -------------------------- | |
| (=) Total Appraised Value: | = | $504,900 | |
| (–) Senior Exemption Loss: | – | $0 | |
| (–) Exemption Loss: | – | $0 | |
| | | -------------------------- | |
| (=) Taxable Value: | = | $504,900 | |
Taxing Jurisdiction
| Owner: | CONSANI ROBIN | | |
| % Ownership: | 100.0000000000% | | |
| Total Value: | $504,900 | | |
| Tax Area: | 1 - OL-140-F |
| CERFD | CURRENT EXPENSE REFUND 010 | 0.0000000000 | $504,900 | $504,900 | $0.00 | | |
| CURREXP | CURRENT EXPENSE 010 | 1.0175366760 | $504,900 | $504,900 | $513.75 | | |
| HUMNSERV | HUMAN SERVICES 119 | 0.0250000000 | $504,900 | $504,900 | $12.62 | | |
| SLDREL | SOLDIERS RELIEF 121 | 0.0155990005 | $504,900 | $504,900 | $7.88 | | |
| EMERGSER | EMS 147 | 0.3792580840 | $504,900 | $504,900 | $191.49 | | |
| EMSRFD | EMS REFUND 147 | 0.0000000000 | $504,900 | $504,900 | $0.00 | | |
| PORTRFD | PORT REFUND 640 | 0.0000000000 | $504,900 | $504,900 | $0.00 | | |
| PORTWWGEN | PORT OF WW 640 | 0.2460186015 | $504,900 | $504,900 | $124.21 | | |
| SD140BOND | SD #140 BOND 764 | 0.8342371393 | $504,900 | $504,900 | $421.21 | | |
| SD140GEN | SD #140 GENERAL 760 | 2.0646500647 | $504,900 | $504,900 | $1,042.44 | | |
| ST2 | STATE SCHOOL PART 2 600 | 0.8131451643 | $504,900 | $504,900 | $410.56 | | |
| STATESCHL | STATE SCHOOL 600 | 1.5158548041 | $504,900 | $504,900 | $765.36 | | |
| STREFUND | STATE REFUND LEVY 603 | 0.0000000000 | $504,900 | $504,900 | $0.00 | | |
| CWWBOND | C OF WW BOND 643 | 0.2760494372 | $504,900 | $504,900 | $139.38 | | |
| CWWGEN | CITY OF WW 631 | 1.6100204973 | $504,900 | $504,900 | $812.90 | | |
| CWWRFD | CITY OF WALLA WALLA REFUND 631 | 0.0000000000 | $504,900 | $504,900 | $0.00 | | |
| | Total Tax Rate: | 8.7973694689 | | | | | |
| | | | | Taxes w/Current Exemptions: | $4,441.80 | | |
| | | | | Taxes w/o Exemptions: | $4,441.80 | | |
Improvement / Building
| Improvement #1: | RESIDENTIAL | State Code: | 11 | 1739.0 sqft | Value: | $430,880 |
| Exterior Wall: | SIDING | Heating/Cooling: | WARM & COOLED AIR | | Number of Bathrooms: | 2 | Number of Bedrooms: | 2 | | Plumbing: | 10 | Roof Covering: | COMP SHINGLE |
|
| | Type | Description | Class CD | Sub Class CD | Year Built | Area |
| | MA | Main Area | 1 | 40 | 1948 | 1739.0 |
| | SI1 | SITE IMPROVEMENT | 1 | 40 | 1948 | 2.0 |
| | BASE | BASEMENT | 1 | 40 | 1948 | 1378.0 |
| | BPF | BASEMENT -PARTITIONED FINISH | 1 | 40 | 1948 | 920.0 |
| | S1F | Single One Story Fireplace | 1 | 40 | 1948 | 1.0 |
| | STG2 | Sub Terrain Garage Double | 1 | 40 | 1948 | 1.0 |
| | RPC | OPEN PORCH W/ROOF , CEILED | 1 | 40 | 1948 | 84.0 |
| | OSP | Open | 1 | 40 | 1948 | 225.0 |
Sketch
Property Image
Land
| 1 | RES 1 | Converted: Residential | 0.2900 | 12632.00 | 0.00 | 0.00 | 1.00 | $74,020 | $0 |
Roll Value History
| 2026 | N/A | N/A | N/A | N/A | N/A |
| 2025 | $422,580 | $132,510 | $0 | $555,090 | $555,090 |
| 2024 | $367,460 | $132,510 | $0 | $499,970 | $499,970 |
| 2023 | $430,880 | $74,020 | $0 | $504,900 | $504,900 |
| 2022 | $391,710 | $74,020 | $0 | $465,730 | $465,730 |
| 2021 | $356,100 | $74,020 | $0 | $430,120 | $430,120 |
| 2020 | $296,750 | $74,020 | $0 | $370,770 | $370,770 |
| 2019 | $296,750 | $74,020 | $0 | $370,770 | $370,770 |
| 2018 | $272,330 | $74,020 | $0 | $346,350 | $346,350 |
| 2017 | $259,760 | $46,600 | $0 | $306,360 | $306,360 |
| 2016 | $236,150 | $46,600 | $0 | $282,750 | $282,750 |
| 2015 | $224,900 | $46,600 | $0 | $271,500 | $271,500 |
| 2014 | $224,900 | $46,600 | $0 | $271,500 | $271,500 |
| 2013 | $224,900 | $46,600 | $0 | $271,500 | $271,500 |
| 2012 | $224,900 | $46,600 | $0 | $0 | $0 |
| 2011 | $224,900 | $46,600 | $0 | $0 | $0 |
| 2010 | $212,000 | $46,600 | $0 | $0 | $0 |
| 2009 | $240,700 | $46,600 | $0 | $0 | $0 |
| 2008 | $203,200 | $46,600 | $0 | $0 | $0 |
| 2007 | $203,200 | $46,600 | $0 | $0 | $0 |
Deed and Sales History
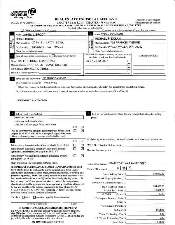
| 1 | 11/13/2015 | SWD | STATUTORY WARRANTY DEED | BRODT JAMES J | CONSANI ROBIN | | | $304,000.00 | 129190 | 2015-09896 |
| 2 | 09/05/2002 | WARRANTY D | WARRANTY DEED | BUCHANAN, BRUCE & STACI | BRODT, JAMES J | | | $230,000.00 | 100313 | 2002-09954 |
| 3 | 09/03/2002 | QCD | QUIT CLAIM DEED | BRODT, ROBIN HAMILTON | BRODT, JAMES J | | | | 100312 | 100312- |
| 4 | 09/27/1996 | WARRANTY D | WARRANTY DEED | | | | | $160,000.00 | 86929 | 2449-609830 |
Payout Agreement
| No payout information available.. |