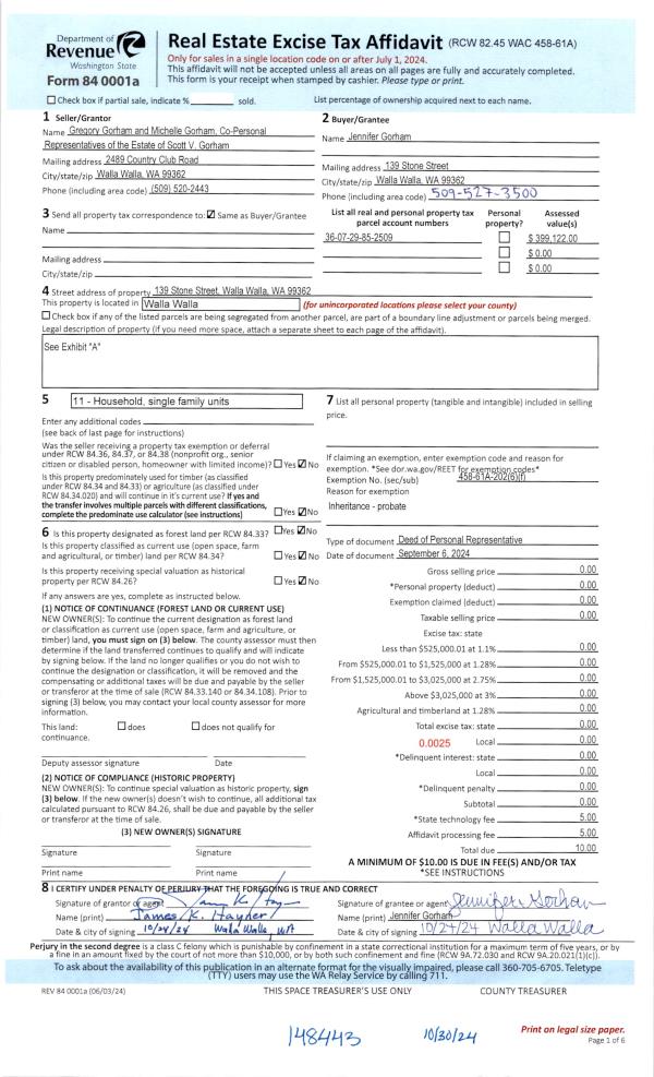
Property
Account |
| Property ID: | 11077 | Abbreviated Legal Description: | MTN VIEW PLUS 1/2 VAC ST LOT 9 BLK 25; LESS W 42.5' LOT 10 BLK 25 |
| Parcel Number: | 360729852509 | Agent Code: | |
| Type: | Real | | |
| Tax Area: | 1 - OL-140-F | Land Use Code | 11 |
| Open Space: | N | DFL | N |
| Historic Property: | N | Remodel Property: | N |
| Multi-Family Redevelopment: | N | | |
| Township: | 7 | Section: | 29 |
| Range: | 36 |
Location |
| Address: | 139 STONE ST WA 99362 | Mapsco: | |
| Neighborhood: | A Res | Map ID: | |
| Neighborhood CD: | 613011 |
Owner |
| Name: | GORHAM SCOTT V | Owner ID: | 12841 |
| Mailing Address: | 2489 COUNTRY CLUB RD WALLA WALLA, WA 99362 | % Ownership: | 100.0000000000% |
| | | Exemptions: | |
Taxes and Assessment Details
Property Tax Information as of
02/21/2026
Click on "Statement Details" to expand or collapse a tax statement.
* Please enter a valid date ** Please enter a valid date *
Statement Details |
| | TOTAL: | $0.00 | $0.00 | $0.00 | $0.00 | $0.00 | $0.00 |
|
| | $0.00 | $0.00 | $0.00 | $0.00 | $0.00 | $0.00 |
Values
| (+) Improvement Homesite Value: | + | $0 | |
| (+) Improvement Non-Homesite Value: | + | $279,920 | |
| (+) Land Homesite Value: | + | $0 | |
| (+) Land Non-Homesite Value: | + | $91,090 | |
| (+) Curr Use (HS): | + | $0 | $0 |
| (+) Curr Use (NHS): | + | $0 | $0 |
| | | -------------------------- | |
| (=) Market Value: | = | $371,010 | |
| (–) Productivity Loss: | – | $0 | |
| | | -------------------------- | |
| (=) Subtotal: | = | $371,010 | |
| (+) Senior Appraised Value: | + | $0 | |
| (+) Non-Senior Appraised Value: | + | $371,010 | |
| | | -------------------------- | |
| (=) Total Appraised Value: | = | $371,010 | |
| (–) Senior Exemption Loss: | – | $0 | |
| (–) Exemption Loss: | – | $0 | |
| | | -------------------------- | |
| (=) Taxable Value: | = | $371,010 | |
Taxing Jurisdiction
| Owner: | GORHAM SCOTT V | | |
| % Ownership: | 100.0000000000% | | |
| Total Value: | $371,010 | | |
| Tax Area: | 1 - OL-140-F |
| CERFD | CURRENT EXPENSE REFUND 010 | 0.0000000000 | $371,010 | $371,010 | $0.00 | | |
| CURREXP | CURRENT EXPENSE 010 | 1.0175366760 | $371,010 | $371,010 | $377.52 | | |
| HUMNSERV | HUMAN SERVICES 119 | 0.0250000000 | $371,010 | $371,010 | $9.28 | | |
| SLDREL | SOLDIERS RELIEF 121 | 0.0155990005 | $371,010 | $371,010 | $5.79 | | |
| EMERGSER | EMS 147 | 0.3792580840 | $371,010 | $371,010 | $140.71 | | |
| EMSRFD | EMS REFUND 147 | 0.0000000000 | $371,010 | $371,010 | $0.00 | | |
| PORTRFD | PORT REFUND 640 | 0.0000000000 | $371,010 | $371,010 | $0.00 | | |
| PORTWWGEN | PORT OF WW 640 | 0.2460186015 | $371,010 | $371,010 | $91.28 | | |
| SD140BOND | SD #140 BOND 764 | 0.8342371393 | $371,010 | $371,010 | $309.51 | | |
| SD140GEN | SD #140 GENERAL 760 | 2.0646500647 | $371,010 | $371,010 | $766.01 | | |
| ST2 | STATE SCHOOL PART 2 600 | 0.8131451643 | $371,010 | $371,010 | $301.68 | | |
| STATESCHL | STATE SCHOOL 600 | 1.5158548041 | $371,010 | $371,010 | $562.40 | | |
| STREFUND | STATE REFUND LEVY 603 | 0.0000000000 | $371,010 | $371,010 | $0.00 | | |
| CWWBOND | C OF WW BOND 643 | 0.2760494372 | $371,010 | $371,010 | $102.42 | | |
| CWWGEN | CITY OF WW 631 | 1.6100204973 | $371,010 | $371,010 | $597.33 | | |
| CWWRFD | CITY OF WALLA WALLA REFUND 631 | 0.0000000000 | $371,010 | $371,010 | $0.00 | | |
| | Total Tax Rate: | 8.7973694689 | | | | | |
| | | | | Taxes w/Current Exemptions: | $3,263.93 | | |
| | | | | Taxes w/o Exemptions: | $3,263.93 | | |
Improvement / Building
| Improvement #1: | RESIDENTIAL | State Code: | 11 | 1551.0 sqft | Value: | $279,920 |
| Exterior Wall: | MASONRY VENEER | Heating/Cooling: | HEAT PUMP | | Number of Bathrooms: | 2 | Number of Bedrooms: | 2 | | Plumbing: | 9 | Roof Covering: | COMP SHINGLE |
|
| | Type | Description | Class CD | Sub Class CD | Year Built | Area |
| | MA | Main Area | 1 | 35 | 1956 | 1551.0 |
| | SI1 | SITE IMPROVEMENT | 1 | 35 | 1956 | 1.5 |
| | ATG | Attached Garage | 1 | 35 | 1956 | 330.0 |
| | RPO | OPEN PORCH W/ROOF | 1 | 35 | 1956 | 75.0 |
| | S1F | Single One Story Fireplace | 1 | 35 | 1956 | 1.0 |
| | CPC | COVERED CARPORT/PATIO | 1 | 35 | 1956 | 180.0 |
Sketch
Property Image
Land
| 1 | RES 1 | Converted: Residential | 0.2617 | 11400.00 | 0.00 | 0.00 | 1.00 | $91,090 | $0 |
Roll Value History
| 2026 | N/A | N/A | N/A | N/A | N/A |
| 2025 | $258,850 | $111,260 | $0 | $370,110 | $370,110 |
| 2024 | $279,920 | $91,090 | $0 | $371,010 | $371,010 |
| 2023 | $279,920 | $91,090 | $0 | $371,010 | $371,010 |
| 2022 | $279,920 | $73,190 | $0 | $353,110 | $353,110 |
| 2021 | $223,930 | $73,190 | $0 | $297,120 | $297,120 |
| 2020 | $186,610 | $73,190 | $0 | $259,800 | $259,800 |
| 2019 | $186,610 | $73,190 | $0 | $259,800 | $259,800 |
| 2018 | $175,150 | $48,300 | $0 | $223,450 | $223,450 |
| 2017 | $159,230 | $48,300 | $0 | $207,530 | $207,530 |
| 2016 | $138,460 | $48,300 | $0 | $186,760 | $186,760 |
| 2015 | $120,400 | $48,300 | $0 | $168,700 | $168,700 |
| 2014 | $120,400 | $48,300 | $0 | $168,700 | $168,700 |
| 2013 | $120,400 | $48,300 | $0 | $168,700 | $168,700 |
| 2012 | $112,400 | $48,300 | $0 | $0 | $0 |
| 2011 | $112,400 | $48,300 | $0 | $0 | $0 |
| 2010 | $112,400 | $48,300 | $0 | $0 | $0 |
| 2009 | $130,300 | $48,300 | $0 | $0 | $0 |
| 2008 | $130,300 | $48,300 | $0 | $0 | $0 |
| 2007 | $105,100 | $25,800 | $0 | $0 | $0 |
Deed and Sales History
| 1 | 10/30/2024 | DPR | DEED OF PERSONAL REPRESENTATIVE | GORHAM SCOTT V | GORHAM JENNIFER | | | | 148443 | 2024-06338 |
| 2 | 05/08/1992 | WARRANTY D | WARRANTY DEED | | | | | $87,000.00 | 76818 | 1969-204070 |
Payout Agreement
| No payout information available.. |