Property
Account |
| Property ID: | 11071 | Abbreviated Legal Description: | MTN VIEW LOTS 6, 7, & 8 BLK 24 |
| Parcel Number: | 360729852406 | Agent Code: | |
| Type: | Real | | |
| Tax Area: | 1 - OL-140-F | Land Use Code | 11 |
| Open Space: | N | DFL | N |
| Historic Property: | N | Remodel Property: | N |
| Multi-Family Redevelopment: | N | | |
| Township: | 7 | Section: | 29 |
| Range: | 36 |
Location |
| Address: | 234 SHERIDAN RD WA 99362 | Mapsco: | |
| Neighborhood: | A Res | Map ID: | |
| Neighborhood CD: | 613011 |
Owner |
| Name: | HOLCE NICHOLAS A & RACHEL CORTEZ | Owner ID: | 69149 |
| Mailing Address: | 234 SHERIDAN RD WALLA WALLA, WA 99362 | % Ownership: | 100.0000000000% |
| | | Exemptions: | |
Taxes and Assessment Details
Property Tax Information as of
02/21/2026
Click on "Statement Details" to expand or collapse a tax statement.
* Please enter a valid date ** Please enter a valid date *
Statement Details |
| | TOTAL: | $0.00 | $0.00 | $0.00 | $0.00 | $0.00 | $0.00 |
|
| | $0.00 | $0.00 | $0.00 | $0.00 | $0.00 | $0.00 |
Values
| (+) Improvement Homesite Value: | + | $0 | |
| (+) Improvement Non-Homesite Value: | + | $362,930 | |
| (+) Land Homesite Value: | + | $0 | |
| (+) Land Non-Homesite Value: | + | $95,760 | |
| (+) Curr Use (HS): | + | $0 | $0 |
| (+) Curr Use (NHS): | + | $0 | $0 |
| | | -------------------------- | |
| (=) Market Value: | = | $458,690 | |
| (–) Productivity Loss: | – | $0 | |
| | | -------------------------- | |
| (=) Subtotal: | = | $458,690 | |
| (+) Senior Appraised Value: | + | $0 | |
| (+) Non-Senior Appraised Value: | + | $458,690 | |
| | | -------------------------- | |
| (=) Total Appraised Value: | = | $458,690 | |
| (–) Senior Exemption Loss: | – | $0 | |
| (–) Exemption Loss: | – | $0 | |
| | | -------------------------- | |
| (=) Taxable Value: | = | $458,690 | |
Taxing Jurisdiction
| Owner: | HOLCE NICHOLAS A & RACHEL CORTEZ | | |
| % Ownership: | 100.0000000000% | | |
| Total Value: | $458,690 | | |
| Tax Area: | 1 - OL-140-F |
| CERFD | CURRENT EXPENSE REFUND 010 | 0.0000000000 | $458,690 | $458,690 | $0.00 | | |
| CURREXP | CURRENT EXPENSE 010 | 1.0175366760 | $458,690 | $458,690 | $466.73 | | |
| HUMNSERV | HUMAN SERVICES 119 | 0.0250000000 | $458,690 | $458,690 | $11.47 | | |
| SLDREL | SOLDIERS RELIEF 121 | 0.0155990005 | $458,690 | $458,690 | $7.16 | | |
| EMERGSER | EMS 147 | 0.3792580840 | $458,690 | $458,690 | $173.96 | | |
| EMSRFD | EMS REFUND 147 | 0.0000000000 | $458,690 | $458,690 | $0.00 | | |
| PORTRFD | PORT REFUND 640 | 0.0000000000 | $458,690 | $458,690 | $0.00 | | |
| PORTWWGEN | PORT OF WW 640 | 0.2460186015 | $458,690 | $458,690 | $112.85 | | |
| SD140BOND | SD #140 BOND 764 | 0.8342371393 | $458,690 | $458,690 | $382.66 | | |
| SD140GEN | SD #140 GENERAL 760 | 2.0646500647 | $458,690 | $458,690 | $947.03 | | |
| ST2 | STATE SCHOOL PART 2 600 | 0.8131451643 | $458,690 | $458,690 | $372.98 | | |
| STATESCHL | STATE SCHOOL 600 | 1.5158548041 | $458,690 | $458,690 | $695.31 | | |
| STREFUND | STATE REFUND LEVY 603 | 0.0000000000 | $458,690 | $458,690 | $0.00 | | |
| CWWBOND | C OF WW BOND 643 | 0.2760494372 | $458,690 | $458,690 | $126.62 | | |
| CWWGEN | CITY OF WW 631 | 1.6100204973 | $458,690 | $458,690 | $738.50 | | |
| CWWRFD | CITY OF WALLA WALLA REFUND 631 | 0.0000000000 | $458,690 | $458,690 | $0.00 | | |
| | Total Tax Rate: | 8.7973694689 | | | | | |
| | | | | Taxes w/Current Exemptions: | $4,035.27 | | |
| | | | | Taxes w/o Exemptions: | $4,035.27 | | |
Improvement / Building
| Improvement #1: | RESIDENTIAL | State Code: | 11 | 2069.0 sqft | Value: | $362,930 |
| Exterior Wall: | METAL/STEEL | Heating/Cooling: | WARM & COOLED AIR | | Number of Bathrooms: | 1.5 | Number of Bedrooms: | 3 | | Plumbing: | 8 | Roof Covering: | COMP SHINGLE |
|
| | Type | Description | Class CD | Sub Class CD | Year Built | Area |
| | MA | Main Area | 4 | 30 | 1901 | 2069.0 |
| | UPFL | Upper Floor (included in main area) | 4 | 30 | 1901 | 837.0 |
| | SI1 | SITE IMPROVEMENT | 4 | 30 | 1901 | 2.0 |
| | BASE | BASEMENT | 4 | 30 | 1901 | 1232.0 |
| | BPF | BASEMENT -PARTITIONED FINISH | 4 | 30 | 1901 | 741.0 |
| | S2F | Single 2S Fireplace | 4 | 30 | 1901 | 1.0 |
| | WOD | Wood Deck | 4 | 30 | 1901 | 216.0 |
| | WOD | Wood Deck | 4 | 30 | 1901 | 256.0 |
| | RPS | PORCH W/STEPS,ROOF | 4 | 30 | 1901 | 48.0 |
| | DTG | Detached Garage | 4 | 30 | 2021 | 1080.0 |
Sketch
Property Image
Land
| 1 | RES 1 | Converted: Residential | 0.4132 | 18000.00 | 0.00 | 0.00 | 1.00 | $95,760 | $0 |
Roll Value History
| 2026 | N/A | N/A | N/A | N/A | N/A |
| 2025 | $339,820 | $117,180 | $0 | $457,000 | $457,000 |
| 2024 | $362,930 | $95,760 | $0 | $458,690 | $458,690 |
| 2023 | $362,930 | $95,760 | $0 | $458,690 | $458,690 |
| 2022 | $313,030 | $76,680 | $0 | $389,710 | $389,710 |
| 2021 | $252,530 | $76,680 | $0 | $329,210 | $329,210 |
| 2020 | $202,020 | $76,680 | $0 | $278,700 | $278,700 |
| 2019 | $202,020 | $76,680 | $0 | $278,700 | $278,700 |
| 2018 | $144,760 | $53,900 | $0 | $198,660 | $198,660 |
| 2017 | $144,760 | $53,900 | $0 | $198,660 | $198,660 |
| 2016 | $144,760 | $53,900 | $0 | $198,660 | $198,660 |
| 2015 | $144,760 | $53,900 | $0 | $198,660 | $198,660 |
| 2014 | $131,600 | $53,900 | $0 | $185,500 | $185,500 |
| 2013 | $131,600 | $53,900 | $0 | $185,500 | $185,500 |
| 2012 | $137,400 | $53,900 | $0 | $0 | $0 |
| 2011 | $137,400 | $53,900 | $0 | $0 | $0 |
| 2010 | $137,400 | $53,900 | $0 | $0 | $0 |
| 2009 | $158,600 | $53,900 | $0 | $0 | $0 |
| 2008 | $233,500 | $53,900 | $0 | $0 | $0 |
| 2007 | $95,600 | $31,400 | $0 | $0 | $0 |
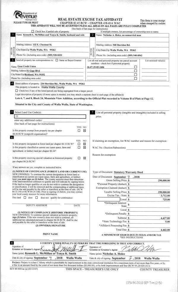
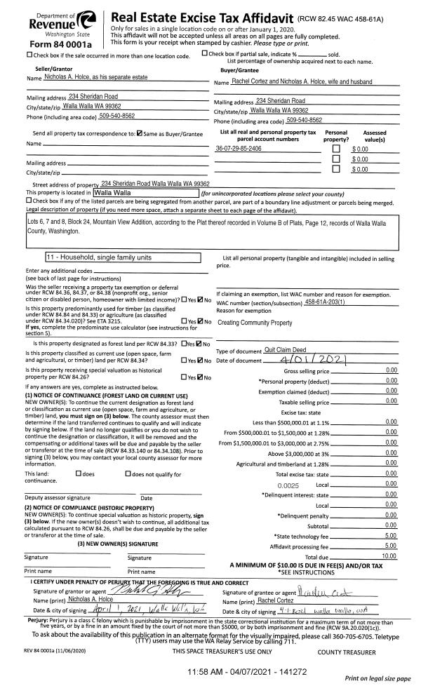
Deed and Sales History
| 1 | 04/01/2021 | QCD | QUIT CLAIM DEED | HOLCE NICHOLAS A | HOLCE NICHOLAS A & RACHEL CORTEZ | | | $0.00 | 141272 | 2021-04045 |
| 2 | 09/07/2018 | SWD | STATUTORY WARRANTY DEED | MC MILLAN KENNETH LAIN | HOLCE NICHOLAS A | | | $290,000.00 | 135496 | 2018-07443 |
| 3 | 07/26/2017 | QCD | QUIT CLAIM DEED | MC MILLAN LAINE | MC MILLAN KENNETH LAIN | | | $0.00 | 132872 | 2017-05797 |
| 4 | 06/17/2010 | QCD | QUIT CLAIM DEED | MC MILLAN, CAROL A | MC MILLAN, LAINE | | | | 118631 | 2010-04649 |
| 5 | 10/22/1999 | WARRANTY D | WARRANTY DEED | | | | | $115,000.00 | 93881 | 2909-912185 |
Payout Agreement
| No payout information available.. |