Property
Account |
| Property ID: | 11035 | Abbreviated Legal Description: | STONES ESTLY PTN LOTS 3 & 4 PLUS PTN VAC TILLAMOOK ST PLUS TAX 4BLK 9 |
| Parcel Number: | 360729830922 | Agent Code: | |
| Type: | Real | | |
| Tax Area: | 1 - OL-140-F | Land Use Code | 11 |
| Open Space: | N | DFL | N |
| Historic Property: | N | Remodel Property: | N |
| Multi-Family Redevelopment: | N | | |
| Township: | 7 | Section: | 29 |
| Range: | 36 |
Location |
| Address: | 43 NATCHES ST WA 99362 | Mapsco: | |
| Neighborhood: | A Res | Map ID: | |
| Neighborhood CD: | 613011 |
Owner |
| Name: | SNYDER RENAE S | Owner ID: | 61503 |
| Mailing Address: | 43 NATCHES ST WALLA WALLA, WA 99362 | % Ownership: | 100.0000000000% |
| | | Exemptions: | |
Taxes and Assessment Details
Property Tax Information as of
02/21/2026
Click on "Statement Details" to expand or collapse a tax statement.
* Please enter a valid date ** Please enter a valid date *
Statement Details |
| | TOTAL: | $0.00 | $0.00 | $0.00 | $0.00 | $0.00 | $0.00 |
|
| | $0.00 | $0.00 | $0.00 | $0.00 | $0.00 | $0.00 |
Values
| (+) Improvement Homesite Value: | + | $0 | |
| (+) Improvement Non-Homesite Value: | + | $332,510 | |
| (+) Land Homesite Value: | + | $0 | |
| (+) Land Non-Homesite Value: | + | $97,660 | |
| (+) Curr Use (HS): | + | $0 | $0 |
| (+) Curr Use (NHS): | + | $0 | $0 |
| | | -------------------------- | |
| (=) Market Value: | = | $430,170 | |
| (–) Productivity Loss: | – | $0 | |
| | | -------------------------- | |
| (=) Subtotal: | = | $430,170 | |
| (+) Senior Appraised Value: | + | $0 | |
| (+) Non-Senior Appraised Value: | + | $430,170 | |
| | | -------------------------- | |
| (=) Total Appraised Value: | = | $430,170 | |
| (–) Senior Exemption Loss: | – | $0 | |
| (–) Exemption Loss: | – | $0 | |
| | | -------------------------- | |
| (=) Taxable Value: | = | $430,170 | |
Taxing Jurisdiction
| Owner: | SNYDER RENAE S | | |
| % Ownership: | 100.0000000000% | | |
| Total Value: | $430,170 | | |
| Tax Area: | 1 - OL-140-F |
| CERFD | CURRENT EXPENSE REFUND 010 | 0.0000000000 | $430,170 | $430,170 | $0.00 | | |
| CURREXP | CURRENT EXPENSE 010 | 1.0175366760 | $430,170 | $430,170 | $437.71 | | |
| HUMNSERV | HUMAN SERVICES 119 | 0.0250000000 | $430,170 | $430,170 | $10.75 | | |
| SLDREL | SOLDIERS RELIEF 121 | 0.0155990005 | $430,170 | $430,170 | $6.71 | | |
| EMERGSER | EMS 147 | 0.3792580840 | $430,170 | $430,170 | $163.15 | | |
| EMSRFD | EMS REFUND 147 | 0.0000000000 | $430,170 | $430,170 | $0.00 | | |
| PORTRFD | PORT REFUND 640 | 0.0000000000 | $430,170 | $430,170 | $0.00 | | |
| PORTWWGEN | PORT OF WW 640 | 0.2460186015 | $430,170 | $430,170 | $105.83 | | |
| SD140BOND | SD #140 BOND 764 | 0.8342371393 | $430,170 | $430,170 | $358.86 | | |
| SD140GEN | SD #140 GENERAL 760 | 2.0646500647 | $430,170 | $430,170 | $888.15 | | |
| ST2 | STATE SCHOOL PART 2 600 | 0.8131451643 | $430,170 | $430,170 | $349.79 | | |
| STATESCHL | STATE SCHOOL 600 | 1.5158548041 | $430,170 | $430,170 | $652.08 | | |
| STREFUND | STATE REFUND LEVY 603 | 0.0000000000 | $430,170 | $430,170 | $0.00 | | |
| CWWBOND | C OF WW BOND 643 | 0.2760494372 | $430,170 | $430,170 | $118.75 | | |
| CWWGEN | CITY OF WW 631 | 1.6100204973 | $430,170 | $430,170 | $692.58 | | |
| CWWRFD | CITY OF WALLA WALLA REFUND 631 | 0.0000000000 | $430,170 | $430,170 | $0.00 | | |
| | Total Tax Rate: | 8.7973694689 | | | | | |
| | | | | Taxes w/Current Exemptions: | $3,784.36 | | |
| | | | | Taxes w/o Exemptions: | $3,784.36 | | |
Improvement / Building
| Improvement #1: | RESIDENTIAL | State Code: | 11 | 1428.0 sqft | Value: | $332,510 |
| Exterior Wall: | SIDING | Heating/Cooling: | WARM & COOLED AIR | | Number of Bathrooms: | 3.5 | Number of Bedrooms: | 5 | | Plumbing: | 14 | Roof Covering: | COMP SHINGLE |
|
| | Type | Description | Class CD | Sub Class CD | Year Built | Area |
| | MA | Main Area | 1 | 30 | 1995 | 1428.0 |
| | SI1 | SITE IMPROVEMENT | 1 | 30 | 1995 | 2.5 |
| | BASE | BASEMENT | 1 | 30 | 1995 | 1230.0 |
| | BPF | BASEMENT -PARTITIONED FINISH | 1 | 30 | 1995 | 1230.0 |
| | ATG | Attached Garage | 1 | 30 | 1995 | 440.0 |
| | RPS | PORCH W/STEPS,ROOF | 1 | 30 | 1995 | 66.0 |
| | WOD | Wood Deck | 1 | 30 | 1995 | 32.0 |
| | BLW | WOOD BALCONIES | 1 | 30 | 1995 | 63.0 |
Sketch
Property Image
Land
| 1 | RES 1 | Converted: Residential | 0.4700 | 20473.00 | 0.00 | 0.00 | 1.00 | $97,660 | $0 |
Roll Value History
| 2026 | N/A | N/A | N/A | N/A | N/A |
| 2025 | $368,530 | $119,360 | $0 | $487,890 | $487,890 |
| 2024 | $332,510 | $97,660 | $0 | $430,170 | $430,170 |
| 2023 | $332,510 | $97,660 | $0 | $430,170 | $430,170 |
| 2022 | $277,100 | $77,800 | $0 | $354,900 | $354,900 |
| 2021 | $263,900 | $77,800 | $0 | $341,700 | $341,700 |
| 2020 | $203,000 | $77,800 | $0 | $280,800 | $280,800 |
| 2019 | $203,000 | $77,800 | $0 | $280,800 | $280,800 |
| 2018 | $210,540 | $56,000 | $0 | $266,540 | $266,540 |
| 2017 | $210,540 | $56,000 | $0 | $266,540 | $266,540 |
| 2016 | $200,510 | $56,000 | $0 | $256,510 | $256,510 |
| 2015 | $182,280 | $56,000 | $0 | $238,280 | $238,280 |
| 2014 | $173,600 | $56,000 | $0 | $229,600 | $229,600 |
| 2013 | $173,600 | $56,000 | $0 | $229,600 | $229,600 |
| 2012 | $178,300 | $56,000 | $0 | $0 | $0 |
| 2011 | $157,000 | $56,000 | $0 | $0 | $0 |
| 2010 | $146,900 | $56,000 | $0 | $0 | $0 |
| 2009 | $169,400 | $56,000 | $0 | $0 | $0 |
| 2008 | $169,400 | $56,000 | $0 | $0 | $0 |
| 2007 | $132,200 | $23,100 | $0 | $0 | $0 |
Deed and Sales History
| 1 | | DEATH CERT | DEATH CERTIFICATE | SNYDER ARTHUR DAVID | | | | | 0 | |
| 2 | 08/23/2017 | COMMUNITY | COMMUNITY PROPERTY AGREEMENT | SNYDER ARTHUR D & RENAE S | SNYDER ARTHUR D & RENAE S | | | | 0 | 2017-06546 |
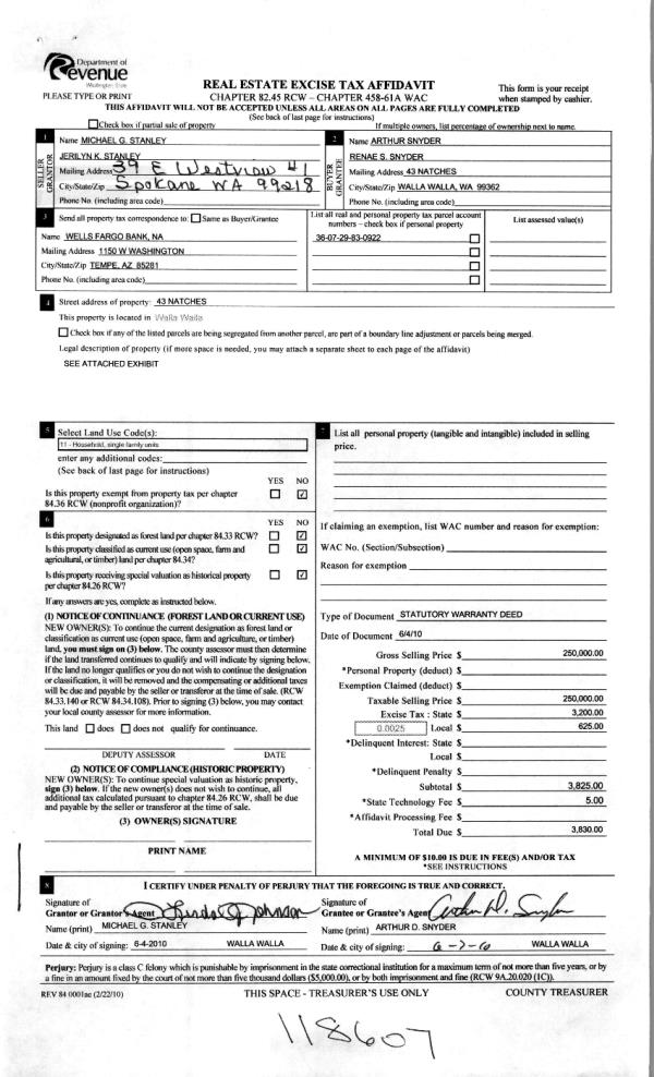
| 3 | 06/11/2010 | WARRANTY D | WARRANTY DEED | STANLEY, MICHAEL & JERILYN | SNYDER, ARTHUR D & RENAE S | | | $250,000.00 | 118607 | 2010-04517 |
Payout Agreement
| No payout information available.. |