Property
Account |
| Property ID: | 1103 | Abbreviated Legal Description: | GARDEN CREEK CONDO'S UNIT #210 |
| Parcel Number: | 360722600003 | Agent Code: | |
| Type: | Real | | |
| Tax Area: | 1 - OL-140-F | Land Use Code | 14 |
| Open Space: | N | DFL | N |
| Historic Property: | N | Remodel Property: | N |
| Multi-Family Redevelopment: | N | | |
| Township: | 7 | Section: | 22 |
| Range: | 36 |
Location |
| Address: | 210 GARDEN DR WA 99362 | Mapsco: | |
| Neighborhood: | CONDO | Map ID: | |
| Neighborhood CD: | 413041 |
Owner |
| Name: | GARDEN DRIVE LLC | Owner ID: | 64379 |
| Mailing Address: | PO BOX 2923 WALLA WALLA, WA 99362 | % Ownership: | 100.0000000000% |
| | | Exemptions: | |
Taxes and Assessment Details
Values
| (+) Improvement Homesite Value: | + | $0 | |
| (+) Improvement Non-Homesite Value: | + | $139,120 | |
| (+) Land Homesite Value: | + | $0 | |
| (+) Land Non-Homesite Value: | + | $0 | |
| (+) Curr Use (HS): | + | $0 | $0 |
| (+) Curr Use (NHS): | + | $0 | $0 |
| | | -------------------------- | |
| (=) Market Value: | = | $139,120 | |
| (–) Productivity Loss: | – | $0 | |
| | | -------------------------- | |
| (=) Subtotal: | = | $139,120 | |
| (+) Senior Appraised Value: | + | $0 | |
| (+) Non-Senior Appraised Value: | + | $139,120 | |
| | | -------------------------- | |
| (=) Total Appraised Value: | = | $139,120 | |
| (–) Senior Exemption Loss: | – | $0 | |
| (–) Exemption Loss: | – | $0 | |
| | | -------------------------- | |
| (=) Taxable Value: | = | $139,120 | |
Taxing Jurisdiction
| Owner: | GARDEN DRIVE LLC | | |
| % Ownership: | 100.0000000000% | | |
| Total Value: | $139,120 | | |
| Tax Area: | 1 - OL-140-F |
| CERFD | CURRENT EXPENSE REFUND 010 | 0.0000000000 | $139,120 | $139,120 | $0.00 | | |
| CURREXP | CURRENT EXPENSE 010 | 0.9851088983 | $139,120 | $139,120 | $137.05 | | |
| HUMNSERV | HUMAN SERVICES 119 | 0.0250000000 | $139,120 | $139,120 | $3.48 | | |
| SLDREL | SOLDIERS RELIEF 121 | 0.0155990000 | $139,120 | $139,120 | $2.17 | | |
| EMERGSER | EMS 147 | 0.3676811629 | $139,120 | $139,120 | $51.15 | | |
| EMSRFD | EMS REFUND 147 | 0.0000000000 | $139,120 | $139,120 | $0.00 | | |
| PORTRFD | PORT REFUND 640 | 0.0000000000 | $139,120 | $139,120 | $0.00 | | |
| PORTWWGEN | PORT OF WW 640 | 0.2344301070 | $139,120 | $139,120 | $32.61 | | |
| SD140BOND | SD #140 BOND 764 | 0.8032434458 | $139,120 | $139,120 | $111.75 | | |
| SD140CAP | SD #140 CAP 762 | 0.3840034221 | $139,120 | $139,120 | $53.42 | | |
| SD140GEN | SD #140 GENERAL 760 | 2.4999999996 | $139,120 | $139,120 | $347.80 | | |
| ST2 | STATE SCHOOL PART 2 600 | 0.8853714103 | $139,120 | $139,120 | $123.17 | | |
| STATESCHL | STATE SCHOOL 600 | 1.6424571473 | $139,120 | $139,120 | $228.50 | | |
| STREFUND | STATE REFUND LEVY 603 | 0.0000000000 | $139,120 | $139,120 | $0.00 | | |
| CWWBOND | C OF WW BOND 643 | 0.2642134255 | $139,120 | $139,120 | $36.76 | | |
| CWWGEN | CITY OF WW 631 | 1.6110494978 | $139,120 | $139,120 | $224.13 | | |
| CWWRFD | CITY OF WALLA WALLA REFUND 631 | 0.0000000000 | $139,120 | $139,120 | $0.00 | | |
| | Total Tax Rate: | 9.7181575166 | | | | | |
| | | | | Taxes w/Current Exemptions: | $1,351.99 | | |
| | | | | Taxes w/o Exemptions: | $1,351.99 | | |
Improvement / Building
| Improvement #1: | RESIDENTIAL | State Code: | 14 | 988.0 sqft | Value: | $139,120 |
| Exterior Wall: | PLYWOOD | Heating/Cooling: | WARM & COOLED AIR | | Number of Bathrooms: | 2 | Number of Bedrooms: | 2 | | Plumbing: | 9 | Roof Covering: | COMP SHINGLE |
|
| | Type | Description | Class CD | Sub Class CD | Year Built | Area |
| | MA | Main Area | 4 | 30 | 1975 | 988.0 |
| | SI1 | SITE IMPROVEMENT | 4 | 30 | 0 | 1.0 |
| | ATG | Attached Garage | 4 | 30 | 1975 | 286.0 |
| | UPFL | Upper Floor (included in main area) | 4 | 30 | 1975 | 442.0 |
Sketch
Property Image
Land
No land segments exist for this property.
Roll Value History
| 2026 | N/A | N/A | N/A | N/A | N/A |
| 2025 | $139,120 | $0 | $0 | $139,120 | $139,120 |
| 2024 | $139,120 | $0 | $0 | $139,120 | $139,120 |
| 2023 | $139,120 | $0 | $0 | $139,120 | $139,120 |
| 2022 | $126,350 | $0 | $0 | $126,350 | $126,350 |
| 2021 | $101,080 | $0 | $0 | $101,080 | $101,080 |
| 2020 | $96,260 | $0 | $0 | $96,260 | $96,260 |
| 2019 | $96,260 | $0 | $0 | $96,260 | $96,260 |
| 2018 | $80,220 | $0 | $0 | $80,220 | $80,220 |
| 2017 | $80,220 | $0 | $0 | $80,220 | $80,220 |
| 2016 | $80,220 | $0 | $0 | $80,220 | $80,220 |
| 2015 | $80,220 | $0 | $0 | $80,220 | $80,220 |
| 2014 | $76,400 | $0 | $0 | $76,400 | $76,400 |
| 2013 | $76,400 | $0 | $0 | $76,400 | $76,400 |
| 2012 | $76,400 | $0 | $0 | $0 | $0 |
| 2011 | $81,000 | $0 | $0 | $0 | $0 |
| 2010 | $81,000 | $0 | $0 | $0 | $0 |
| 2009 | $81,000 | $0 | $0 | $0 | $0 |
| 2008 | $81,000 | $0 | $0 | $0 | $0 |
| 2007 | $81,000 | $0 | $0 | $0 | $0 |
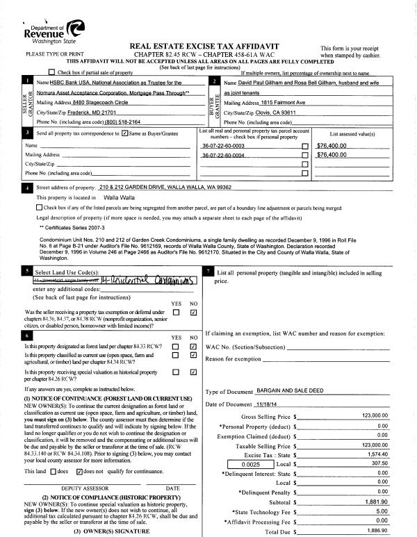
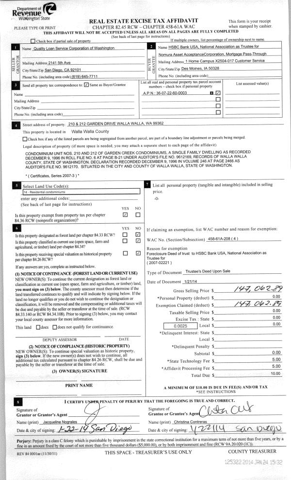
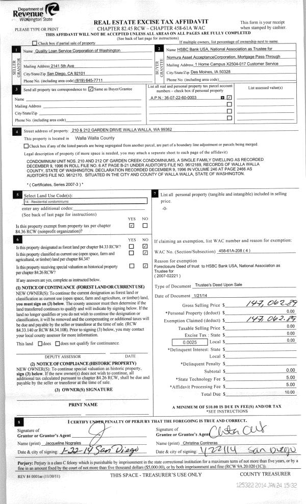
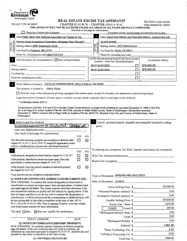
Deed and Sales History
| 1 | 01/09/2019 | SWD | STATUTORY WARRANTY DEED | GILLHAM DAVID PAUL & ROSA BELL | GARDEN DRIVE LLC | | | $0.00 | 136227 | 2019-00187 |
| 2 | 12/04/2014 | BARGAIN & | BARGAIN & SALE DEED | HSBC BANK USA | GILLHAM DAVID PAUL & ROSA BELL | | 2-PARCELS | $123,000.00 | 127052 | 2014-08798 |
|   | |
| 3 | 01/24/2014 | TRUSTEES D | TRUSTEE'S DEED | YANEZ ALICIA | HSBC BANK USA | | 2 PARCELS | $147,062.00 | 125322 | 2014-00596 |
|   | |
| 4 | 02/26/2007 | WARRANTY D | WARRANTY DEED | GURR DAVE & MARLA | YANEZ ALICIA | | | $174,000.00 | 112298 | 2007-02220 |
|   | |
| 5 | 09/26/2002 | WARRANTY D | WARRANTY DEED | "MILSTEIN, BERT" | | | | | 100455 | 2002-108140 |
Payout Agreement
| No payout information available.. |