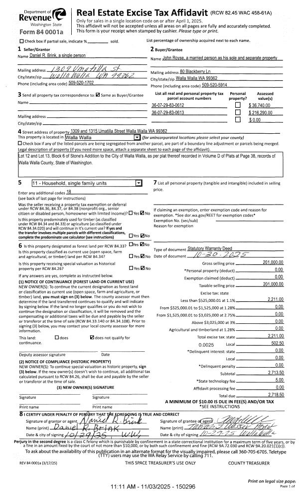
Property
Account |
| Property ID: | 11020 | Abbreviated Legal Description: | STONES LOT 13 BLK 6 |
| Parcel Number: | 360729830613 | Agent Code: | |
| Type: | Real | | |
| Tax Area: | 1 - OL-140-F | Land Use Code | 11 |
| Open Space: | N | DFL | N |
| Historic Property: | N | Remodel Property: | N |
| Multi-Family Redevelopment: | N | | |
| Township: | 7 | Section: | 29 |
| Range: | 36 |
Location |
| Address: | 1309 UMATILLA ST WA 99362 | Mapsco: | |
| Neighborhood: | A Res | Map ID: | |
| Neighborhood CD: | 613011 |
Owner |
| Name: | BRINK DANIEL R | Owner ID: | 7850 |
| Mailing Address: | 1309 UMATILLA ST WALLA WALLA, WA 99362 | % Ownership: | 100.0000000000% |
| | | Exemptions: | |
Taxes and Assessment Details
Property Tax Information as of
02/21/2026
Click on "Statement Details" to expand or collapse a tax statement.
* Please enter a valid date ** Please enter a valid date *
Statement Details |
| | TOTAL: | $0.00 | $0.00 | $0.00 | $0.00 | $0.00 | $0.00 |
|
| | $0.00 | $0.00 | $0.00 | $0.00 | $0.00 | $0.00 |
Values
| (+) Improvement Homesite Value: | + | $0 | |
| (+) Improvement Non-Homesite Value: | + | $144,280 | |
| (+) Land Homesite Value: | + | $0 | |
| (+) Land Non-Homesite Value: | + | $65,860 | |
| (+) Curr Use (HS): | + | $0 | $0 |
| (+) Curr Use (NHS): | + | $0 | $0 |
| | | -------------------------- | |
| (=) Market Value: | = | $210,140 | |
| (–) Productivity Loss: | – | $0 | |
| | | -------------------------- | |
| (=) Subtotal: | = | $210,140 | |
| (+) Senior Appraised Value: | + | $0 | |
| (+) Non-Senior Appraised Value: | + | $210,140 | |
| | | -------------------------- | |
| (=) Total Appraised Value: | = | $210,140 | |
| (–) Senior Exemption Loss: | – | $0 | |
| (–) Exemption Loss: | – | $0 | |
| | | -------------------------- | |
| (=) Taxable Value: | = | $210,140 | |
Taxing Jurisdiction
| Owner: | BRINK DANIEL R | | |
| % Ownership: | 100.0000000000% | | |
| Total Value: | $210,140 | | |
| Tax Area: | 1 - OL-140-F |
| CERFD | CURRENT EXPENSE REFUND 010 | 0.0000000000 | $210,140 | $210,140 | $0.00 | | |
| CURREXP | CURRENT EXPENSE 010 | 1.0175366760 | $210,140 | $210,140 | $213.83 | | |
| HUMNSERV | HUMAN SERVICES 119 | 0.0250000000 | $210,140 | $210,140 | $5.25 | | |
| SLDREL | SOLDIERS RELIEF 121 | 0.0155990005 | $210,140 | $210,140 | $3.28 | | |
| EMERGSER | EMS 147 | 0.3792580840 | $210,140 | $210,140 | $79.70 | | |
| EMSRFD | EMS REFUND 147 | 0.0000000000 | $210,140 | $210,140 | $0.00 | | |
| PORTRFD | PORT REFUND 640 | 0.0000000000 | $210,140 | $210,140 | $0.00 | | |
| PORTWWGEN | PORT OF WW 640 | 0.2460186015 | $210,140 | $210,140 | $51.70 | | |
| SD140BOND | SD #140 BOND 764 | 0.8342371393 | $210,140 | $210,140 | $175.31 | | |
| SD140GEN | SD #140 GENERAL 760 | 2.0646500647 | $210,140 | $210,140 | $433.87 | | |
| ST2 | STATE SCHOOL PART 2 600 | 0.8131451643 | $210,140 | $210,140 | $170.87 | | |
| STATESCHL | STATE SCHOOL 600 | 1.5158548041 | $210,140 | $210,140 | $318.54 | | |
| STREFUND | STATE REFUND LEVY 603 | 0.0000000000 | $210,140 | $210,140 | $0.00 | | |
| CWWBOND | C OF WW BOND 643 | 0.2760494372 | $210,140 | $210,140 | $58.01 | | |
| CWWGEN | CITY OF WW 631 | 1.6100204973 | $210,140 | $210,140 | $338.33 | | |
| CWWRFD | CITY OF WALLA WALLA REFUND 631 | 0.0000000000 | $210,140 | $210,140 | $0.00 | | |
| | Total Tax Rate: | 8.7973694689 | | | | | |
| | | | | Taxes w/Current Exemptions: | $1,848.69 | | |
| | | | | Taxes w/o Exemptions: | $1,848.69 | | |
Improvement / Building
| Improvement #1: | RESIDENTIAL | State Code: | 11 | 1792.0 sqft | Value: | $144,280 |
| Exterior Wall: | PLYWOOD | Heating/Cooling: | BASEBOARD ELECTRIC | | Number of Bathrooms: | 2 | Number of Bedrooms: | 4 | | Plumbing: | 12 | Roof Covering: | COMP SHINGLE |
|
| | Type | Description | Class CD | Sub Class CD | Year Built | Area |
| | MA | Main Area | 1 | 25 | 1968 | 1792.0 |
| | SI1 | SITE IMPROVEMENT | 1 | 25 | 1968 | 1.5 |
| | RPO | OPEN PORCH W/ROOF | 1 | 25 | 1968 | 20.0 |
| | CPCS | CARPORT/SHED OR FLAT ROOF | 1 | 25 | 1968 | 600.0 |
| | UTST | Utility Storage Shed | 1 | 25 | 1968 | 120.0 |
Sketch
Property Image
Land
| 1 | RES 1 | Converted: Residential | 0.1680 | 7318.08 | 0.00 | 0.00 | 1.00 | $65,860 | $0 |
Roll Value History
| 2026 | N/A | N/A | N/A | N/A | N/A |
| 2025 | $135,770 | $80,520 | $0 | $216,290 | $216,290 |
| 2024 | $144,280 | $65,860 | $0 | $210,140 | $210,140 |
| 2023 | $144,280 | $65,860 | $0 | $210,140 | $210,140 |
| 2022 | $144,280 | $53,070 | $0 | $197,350 | $197,350 |
| 2021 | $144,280 | $53,070 | $0 | $197,350 | $197,350 |
| 2020 | $120,230 | $53,070 | $0 | $173,300 | $173,300 |
| 2019 | $120,230 | $53,070 | $0 | $173,300 | $173,300 |
| 2018 | $123,180 | $43,900 | $0 | $167,080 | $64,492 |
| 2017 | $123,180 | $43,900 | $0 | $167,080 | $64,492 |
| 2016 | $117,320 | $43,900 | $0 | $161,220 | $64,488 |
| 2015 | $117,320 | $43,900 | $0 | $161,220 | $161,220 |
| 2014 | $113,900 | $43,900 | $0 | $157,800 | $157,800 |
| 2013 | $113,900 | $43,900 | $0 | $157,800 | $157,800 |
| 2012 | $121,400 | $43,900 | $0 | $0 | $0 |
| 2011 | $121,400 | $43,900 | $0 | $0 | $0 |
| 2010 | $121,400 | $43,900 | $0 | $0 | $0 |
| 2009 | $139,800 | $43,900 | $0 | $0 | $0 |
| 2008 | $139,800 | $43,900 | $0 | $0 | $0 |
| 2007 | $75,400 | $22,000 | $0 | $0 | $0 |
Deed and Sales History
| 1 | 10/30/2025 | SWD | STATUTORY WARRANTY DEED | BRINK DANIEL R | ROYSE JOHN | | 2-PARCELS | $201,000.00 | 150296 | 2025-06789 |
|   | |
| 2 | 04/08/2020 | DPR | DEED OF PERSONAL REPRESENTATIVE | BRINK-GONZALEZ WANDA M | BRINK DANIEL R | | | $0.00 | 138906 | 2020-03123 |
| 3 | 07/01/1969 | WARRANTY D | WARRANTY DEED | | | | | $15,895.00 | 0 | 3310-502534 |
Payout Agreement
| No payout information available.. |