Property
Account |
| Property ID: | 11008 | Abbreviated Legal Description: | STONES LOT 2 BLK 5 |
| Parcel Number: | 360729830502 | Agent Code: | |
| Type: | Real | | |
| Tax Area: | 1 - OL-140-F | Land Use Code | 11 |
| Open Space: | N | DFL | N |
| Historic Property: | N | Remodel Property: | N |
| Multi-Family Redevelopment: | N | | |
| Township: | 7 | Section: | 29 |
| Range: | 36 |
Location |
| Address: | 1310 UMATILLA ST WA 99362 | Mapsco: | |
| Neighborhood: | A Res | Map ID: | |
| Neighborhood CD: | 613011 |
Owner |
| Name: | JIMENEZ REVOCABLE LIVING TRUST | Owner ID: | 73571 |
| Mailing Address: | JONAH P JIMENEZ & GAYLE M JAY TRUSTEES 1 REGATTA WAY NAPA, CA 94559 | % Ownership: | 100.0000000000% |
| | | Exemptions: | |
Taxes and Assessment Details
Property Tax Information as of
02/21/2026
Click on "Statement Details" to expand or collapse a tax statement.
* Please enter a valid date ** Please enter a valid date *
Statement Details |
| | TOTAL: | $0.00 | $0.00 | $0.00 | $0.00 | $0.00 | $0.00 |
|
| | $0.00 | $0.00 | $0.00 | $0.00 | $0.00 | $0.00 |
Values
| (+) Improvement Homesite Value: | + | $0 | |
| (+) Improvement Non-Homesite Value: | + | $123,340 | |
| (+) Land Homesite Value: | + | $0 | |
| (+) Land Non-Homesite Value: | + | $68,580 | |
| (+) Curr Use (HS): | + | $0 | $0 |
| (+) Curr Use (NHS): | + | $0 | $0 |
| | | -------------------------- | |
| (=) Market Value: | = | $191,920 | |
| (–) Productivity Loss: | – | $0 | |
| | | -------------------------- | |
| (=) Subtotal: | = | $191,920 | |
| (+) Senior Appraised Value: | + | $0 | |
| (+) Non-Senior Appraised Value: | + | $191,920 | |
| | | -------------------------- | |
| (=) Total Appraised Value: | = | $191,920 | |
| (–) Senior Exemption Loss: | – | $0 | |
| (–) Exemption Loss: | – | $0 | |
| | | -------------------------- | |
| (=) Taxable Value: | = | $191,920 | |
Taxing Jurisdiction
| Owner: | JIMENEZ REVOCABLE LIVING TRUST | | |
| % Ownership: | 100.0000000000% | | |
| Total Value: | $191,920 | | |
| Tax Area: | 1 - OL-140-F |
| CERFD | CURRENT EXPENSE REFUND 010 | 0.0000000000 | $191,920 | $191,920 | $0.00 | | |
| CURREXP | CURRENT EXPENSE 010 | 1.0175366760 | $191,920 | $191,920 | $195.29 | | |
| HUMNSERV | HUMAN SERVICES 119 | 0.0250000000 | $191,920 | $191,920 | $4.80 | | |
| SLDREL | SOLDIERS RELIEF 121 | 0.0155990005 | $191,920 | $191,920 | $2.99 | | |
| EMERGSER | EMS 147 | 0.3792580840 | $191,920 | $191,920 | $72.79 | | |
| EMSRFD | EMS REFUND 147 | 0.0000000000 | $191,920 | $191,920 | $0.00 | | |
| PORTRFD | PORT REFUND 640 | 0.0000000000 | $191,920 | $191,920 | $0.00 | | |
| PORTWWGEN | PORT OF WW 640 | 0.2460186015 | $191,920 | $191,920 | $47.22 | | |
| SD140BOND | SD #140 BOND 764 | 0.8342371393 | $191,920 | $191,920 | $160.11 | | |
| SD140GEN | SD #140 GENERAL 760 | 2.0646500647 | $191,920 | $191,920 | $396.25 | | |
| ST2 | STATE SCHOOL PART 2 600 | 0.8131451643 | $191,920 | $191,920 | $156.06 | | |
| STATESCHL | STATE SCHOOL 600 | 1.5158548041 | $191,920 | $191,920 | $290.92 | | |
| STREFUND | STATE REFUND LEVY 603 | 0.0000000000 | $191,920 | $191,920 | $0.00 | | |
| CWWBOND | C OF WW BOND 643 | 0.2760494372 | $191,920 | $191,920 | $52.98 | | |
| CWWGEN | CITY OF WW 631 | 1.6100204973 | $191,920 | $191,920 | $309.00 | | |
| CWWRFD | CITY OF WALLA WALLA REFUND 631 | 0.0000000000 | $191,920 | $191,920 | $0.00 | | |
| | Total Tax Rate: | 8.7973694689 | | | | | |
| | | | | Taxes w/Current Exemptions: | $1,688.41 | | |
| | | | | Taxes w/o Exemptions: | $1,688.41 | | |
Improvement / Building
| Improvement #1: | RESIDENTIAL | State Code: | 11 | 480.0 sqft | Value: | $123,340 |
| Exterior Wall: | CONCRETE BLOCK | Heating/Cooling: | HEAT PUMP | | Number of Bathrooms: | 1 | Number of Bedrooms: | 1 | | Plumbing: | 6 | Roof Covering: | COMP SHINGLE |
|
| | Type | Description | Class CD | Sub Class CD | Year Built | Area |
| | MA | Main Area | 1 | 25 | 1925 | 480.0 |
| | SI1 | SITE IMPROVEMENT | 1 | 25 | 1925 | 1.0 |
| | WOD | Wood Deck | 1 | 25 | 1925 | 72.0 |
| | CPC | COVERED CARPORT/PATIO | 1 | 25 | 1925 | 288.0 |
Sketch
Property Image
Land
| 1 | RES 1 | Converted: Residential | 0.1749 | 7620.00 | 0.00 | 0.00 | 1.00 | $68,580 | $0 |
Roll Value History
| 2026 | N/A | N/A | N/A | N/A | N/A |
| 2025 | $107,000 | $83,820 | $0 | $190,820 | $190,820 |
| 2024 | $123,340 | $68,580 | $0 | $191,920 | $191,920 |
| 2023 | $123,340 | $68,580 | $0 | $191,920 | $191,920 |
| 2022 | $112,130 | $55,250 | $0 | $167,380 | $167,380 |
| 2021 | $74,750 | $55,250 | $0 | $130,000 | $130,000 |
| 2020 | $74,750 | $55,250 | $0 | $130,000 | $130,000 |
| 2019 | $50,050 | $55,250 | $0 | $105,300 | $105,300 |
| 2018 | $10,000 | $45,100 | $0 | $55,100 | $55,100 |
| 2017 | $10,000 | $45,100 | $0 | $55,100 | $55,100 |
| 2016 | $10,000 | $45,100 | $0 | $55,100 | $55,100 |
| 2015 | $10,000 | $45,100 | $0 | $55,100 | $55,100 |
| 2014 | $10,000 | $45,100 | $0 | $55,100 | $55,100 |
| 2013 | $10,000 | $45,100 | $0 | $55,100 | $55,100 |
| 2012 | $14,700 | $45,100 | $0 | $0 | $0 |
| 2011 | $14,700 | $45,100 | $0 | $0 | $0 |
| 2010 | $14,700 | $45,100 | $0 | $0 | $0 |
| 2009 | $28,700 | $45,100 | $0 | $0 | $0 |
| 2008 | $28,700 | $45,100 | $0 | $0 | $0 |
| 2007 | $27,300 | $15,200 | $0 | $0 | $0 |
Deed and Sales History
| 1 | 05/19/2023 | QCD | QUIT CLAIM DEED | JAY GAYLE & JOHAH JIMENEZ | JIMENEZ REVOCABLE LIVING TRUST | | | $0.00 | 145778 | 2023-02686 |
| 2 | 09/10/2021 | SWD | STATUTORY WARRANTY DEED | A & R RENTALS LLC | JAY GAYLE & JOHAH JIMENEZ | | | $175,000.00 | 142479 | 2021-11171 |
| 3 | 08/31/2020 | SWD | STATUTORY WARRANTY DEED | MC DONALD JOHN L & KAREN K | A & R RENTALS LLC | | | $130,000.00 | 139809 | 2020-08758 |
| 4 | 01/02/2020 | QCD | QUIT CLAIM DEED | MCDONALD GWENDOLYN MAE | MC DONALD JOHN L & KAREN K | | | $0.00 | 138365 | 2020-00067 |
| 5 | 11/27/2019 | SWD | STATUTORY WARRANTY DEED | RUBINO ZINA | MCDONALD GWENDOLYN MAE | | | $154,900.00 | 138172 | 2019-09865 |
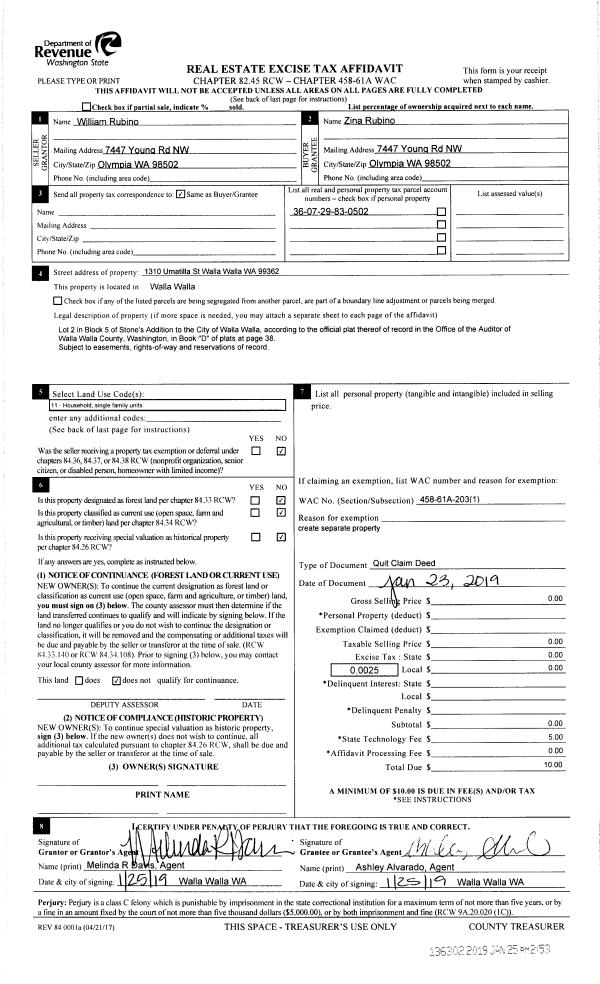
| 6 | 01/25/2019 | QCD | QUIT CLAIM DEED | RUBINO WILLIAM | RUBINO ZINA | | | | 136302 | 2019-00537 |
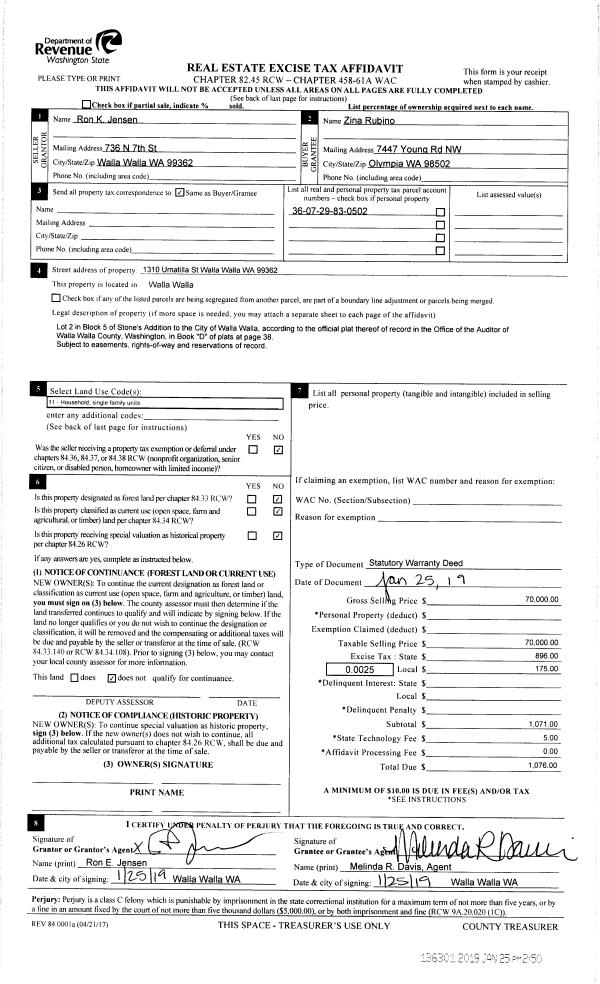
| 7 | 01/25/2019 | SWD | STATUTORY WARRANTY DEED | JENSEN RON K | RUBINO ZINA | | | $70,000.00 | 136301 | 2019-00536 |
| 8 | 03/02/1982 | WARRANTY D | WARRANTY DEED | | | | | $10,000.00 | 0 | 1318-201693 |
Payout Agreement
| No payout information available.. |