Property
Account |
| Property ID: | 11007 | Abbreviated Legal Description: | STONES ADDN LOT 1 BLK 4 |
| Parcel Number: | 360729830413 | Agent Code: | |
| Type: | Real | | |
| Tax Area: | 1 - OL-140-F | Land Use Code | 11 |
| Open Space: | N | DFL | N |
| Historic Property: | N | Remodel Property: | N |
| Multi-Family Redevelopment: | N | | |
| Township: | 7 | Section: | 29 |
| Range: | 36 |
Location |
| Address: | 1202 UMATILLA ST WA 99362 | Mapsco: | |
| Neighborhood: | A Res | Map ID: | |
| Neighborhood CD: | 613011 |
Owner |
| Name: | MOODY RICKEY LYNN | Owner ID: | 57378 |
| Mailing Address: | JANET VAUPEL 1202 UMATILLA ST WALLA WALLA, WA 99362 | % Ownership: | 100.0000000000% |
| | | Exemptions: | |
Taxes and Assessment Details
Values
| (+) Improvement Homesite Value: | + | $0 | |
| (+) Improvement Non-Homesite Value: | + | $315,420 | |
| (+) Land Homesite Value: | + | $0 | |
| (+) Land Non-Homesite Value: | + | $68,580 | |
| (+) Curr Use (HS): | + | $0 | $0 |
| (+) Curr Use (NHS): | + | $0 | $0 |
| | | -------------------------- | |
| (=) Market Value: | = | $384,000 | |
| (–) Productivity Loss: | – | $0 | |
| | | -------------------------- | |
| (=) Subtotal: | = | $384,000 | |
| (+) Senior Appraised Value: | + | $0 | |
| (+) Non-Senior Appraised Value: | + | $384,000 | |
| | | -------------------------- | |
| (=) Total Appraised Value: | = | $384,000 | |
| (–) Senior Exemption Loss: | – | $0 | |
| (–) Exemption Loss: | – | $0 | |
| | | -------------------------- | |
| (=) Taxable Value: | = | $384,000 | |
Taxing Jurisdiction
| Owner: | MOODY RICKEY LYNN | | |
| % Ownership: | 100.0000000000% | | |
| Total Value: | $384,000 | | |
| Tax Area: | 1 - OL-140-F |
| CERFD | CURRENT EXPENSE REFUND 010 | 0.0000000000 | $384,000 | $384,000 | $0.00 | | |
| CURREXP | CURRENT EXPENSE 010 | 1.0175366760 | $384,000 | $384,000 | $390.73 | | |
| HUMNSERV | HUMAN SERVICES 119 | 0.0250000000 | $384,000 | $384,000 | $9.60 | | |
| SLDREL | SOLDIERS RELIEF 121 | 0.0155990005 | $384,000 | $384,000 | $5.99 | | |
| EMERGSER | EMS 147 | 0.3792580840 | $384,000 | $384,000 | $145.64 | | |
| EMSRFD | EMS REFUND 147 | 0.0000000000 | $384,000 | $384,000 | $0.00 | | |
| PORTRFD | PORT REFUND 640 | 0.0000000000 | $384,000 | $384,000 | $0.00 | | |
| PORTWWGEN | PORT OF WW 640 | 0.2460186015 | $384,000 | $384,000 | $94.47 | | |
| SD140BOND | SD #140 BOND 764 | 0.8342371393 | $384,000 | $384,000 | $320.35 | | |
| SD140GEN | SD #140 GENERAL 760 | 2.0646500647 | $384,000 | $384,000 | $792.83 | | |
| ST2 | STATE SCHOOL PART 2 600 | 0.8131451643 | $384,000 | $384,000 | $312.25 | | |
| STATESCHL | STATE SCHOOL 600 | 1.5158548041 | $384,000 | $384,000 | $582.09 | | |
| STREFUND | STATE REFUND LEVY 603 | 0.0000000000 | $384,000 | $384,000 | $0.00 | | |
| CWWBOND | C OF WW BOND 643 | 0.2760494372 | $384,000 | $384,000 | $106.00 | | |
| CWWGEN | CITY OF WW 631 | 1.6100204973 | $384,000 | $384,000 | $618.25 | | |
| CWWRFD | CITY OF WALLA WALLA REFUND 631 | 0.0000000000 | $384,000 | $384,000 | $0.00 | | |
| | Total Tax Rate: | 8.7973694689 | | | | | |
| | | | | Taxes w/Current Exemptions: | $3,378.20 | | |
| | | | | Taxes w/o Exemptions: | $3,378.20 | | |
Improvement / Building
| Improvement #1: | RESIDENTIAL | State Code: | 11 | 1664.0 sqft | Value: | $315,420 |
| Exterior Wall: | SIDING | Heating/Cooling: | WARM & COOLED AIR | | Number of Bathrooms: | 2 | Number of Bedrooms: | 3 | | Plumbing: | 10 | Roof Covering: | COMP SHINGLE |
|
| | Type | Description | Class CD | Sub Class CD | Year Built | Area |
| | MA | Main Area | 1 | 30 | 2003 | 1664.0 |
| | SI1 | SITE IMPROVEMENT | 1 | 30 | 2003 | 1.5 |
| | ATG | Attached Garage | 1 | 30 | 2003 | 420.0 |
| | RPO | OPEN PORCH W/ROOF | 1 | 30 | 2003 | 118.0 |
Sketch
Property Image
Land
| 1 | RES 1 | Converted: Residential | 0.1749 | 7620.00 | 0.00 | 0.00 | 1.00 | $68,580 | $0 |
Roll Value History
| 2026 | N/A | N/A | N/A | N/A | N/A |
| 2025 | $300,000 | $83,820 | $0 | $383,820 | $383,820 |
| 2024 | $315,420 | $68,580 | $0 | $384,000 | $384,000 |
| 2023 | $315,420 | $68,580 | $0 | $384,000 | $384,000 |
| 2022 | $300,400 | $55,250 | $0 | $355,650 | $355,650 |
| 2021 | $261,220 | $55,250 | $0 | $316,470 | $316,470 |
| 2020 | $180,150 | $55,250 | $0 | $235,400 | $235,400 |
| 2019 | $180,150 | $55,250 | $0 | $235,400 | $235,400 |
| 2018 | $148,880 | $45,100 | $0 | $193,980 | $193,980 |
| 2017 | $135,350 | $45,100 | $0 | $180,450 | $180,450 |
| 2016 | $135,350 | $45,100 | $0 | $180,450 | $180,450 |
| 2015 | $135,350 | $45,100 | $0 | $180,450 | $180,450 |
| 2014 | $128,900 | $45,100 | $0 | $174,000 | $174,000 |
| 2013 | $120,700 | $45,100 | $0 | $165,800 | $165,800 |
| 2012 | $120,700 | $45,100 | $0 | $0 | $0 |
| 2011 | $112,800 | $45,100 | $0 | $0 | $0 |
| 2010 | $112,800 | $45,100 | $0 | $0 | $0 |
| 2009 | $130,300 | $45,100 | $0 | $0 | $0 |
| 2008 | $130,300 | $45,100 | $0 | $0 | $0 |
| 2007 | $123,700 | $15,200 | $0 | $0 | $0 |
Deed and Sales History
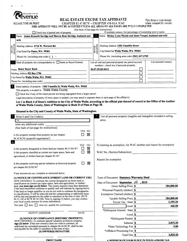
| 1 | 09/11/2015 | SWD | STATUTORY WARRANTY DEED | SAVIDGE JAMES KENNETH | MOODY RICKEY LYNN | | | $184,000.00 | 128802 | 2015-07960 |
| 2 | 05/22/2013 | QCD | QUIT CLAIM DEED | SAVIDGE, JAMES KENNETH | SAVIDGE, JAMES KENNETH | | | $0.00 | 123992 | 2013-05115 |
| 3 | 12/20/2010 | WARRANTY D | WARRANTY DEED | KAUFMAN, ANTHONY L & EMILY B | SAVIDGE, JAMES KENNETH | | | $170,000.00 | 119482 | 2010-10518 |
| 4 | 03/29/2004 | WARRANTY D | WARRANTY DEED | BRYAN, MICHAEL E & PAMELA K | KAUFMAN, ANTHONY L & EMILY B | | | $143,000.00 | 104378 | 2004-03305 |
| 5 | 07/09/2003 | WARRANTY D | WARRANTY DEED | SCHNEIDMILLER, ALBERT D | BRYAN MICHAEL E & PAMELA K | | | $125,000.00 | 102521 | 2003-10205 |
|   | |
| 6 | 08/16/1979 | WARRANTY D | WARRANTY DEED | | | | | $0.00 | 0 | 1097-907764 |
Payout Agreement
| No payout information available.. |