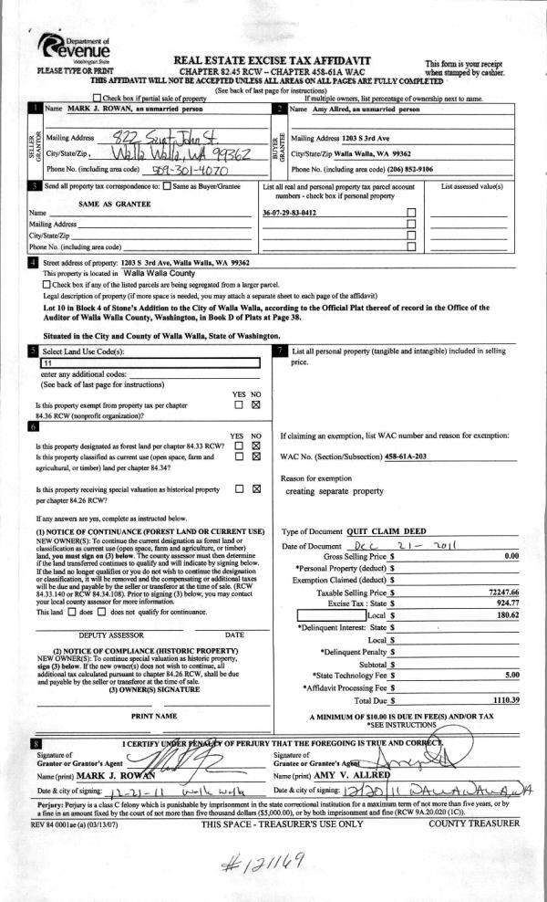
Property
Account |
| Property ID: | 11006 | Abbreviated Legal Description: | STONES LOT 10 BLK 4 |
| Parcel Number: | 360729830412 | Agent Code: | |
| Type: | Real | | |
| Tax Area: | 1 - OL-140-F | Land Use Code | 11 |
| Open Space: | N | DFL | N |
| Historic Property: | N | Remodel Property: | N |
| Multi-Family Redevelopment: | N | | |
| Township: | 7 | Section: | 29 |
| Range: | 36 |
Location |
| Address: | 1203 S 3RD AVE WA 99362 | Mapsco: | |
| Neighborhood: | A Res | Map ID: | |
| Neighborhood CD: | 613011 |
Owner |
| Name: | ALLRED AMY V | Owner ID: | 50665 |
| Mailing Address: | 1203 S 3RD AVE WALLA WALLA, WA 99362 | % Ownership: | 100.0000000000% |
| | | Exemptions: | |
Taxes and Assessment Details
Values
| (+) Improvement Homesite Value: | + | $0 | |
| (+) Improvement Non-Homesite Value: | + | $260,180 | |
| (+) Land Homesite Value: | + | $0 | |
| (+) Land Non-Homesite Value: | + | $83,820 | |
| (+) Curr Use (HS): | + | $0 | $0 |
| (+) Curr Use (NHS): | + | $0 | $0 |
| | | -------------------------- | |
| (=) Market Value: | = | $344,000 | |
| (–) Productivity Loss: | – | $0 | |
| | | -------------------------- | |
| (=) Subtotal: | = | $344,000 | |
| (+) Senior Appraised Value: | + | $0 | |
| (+) Non-Senior Appraised Value: | + | $344,000 | |
| | | -------------------------- | |
| (=) Total Appraised Value: | = | $344,000 | |
| (–) Senior Exemption Loss: | – | $0 | |
| (–) Exemption Loss: | – | $0 | |
| | | -------------------------- | |
| (=) Taxable Value: | = | $344,000 | |
Taxing Jurisdiction
| Owner: | ALLRED AMY V | | |
| % Ownership: | 100.0000000000% | | |
| Total Value: | $344,000 | | |
| Tax Area: | 1 - OL-140-F |
| CERFD | CURRENT EXPENSE REFUND 010 | 0.0000000000 | $344,000 | $344,000 | $0.00 | | |
| CURREXP | CURRENT EXPENSE 010 | 0.9851088983 | $344,000 | $344,000 | $338.88 | | |
| HUMNSERV | HUMAN SERVICES 119 | 0.0250000000 | $344,000 | $344,000 | $8.60 | | |
| SLDREL | SOLDIERS RELIEF 121 | 0.0155990000 | $344,000 | $344,000 | $5.37 | | |
| EMERGSER | EMS 147 | 0.3676811629 | $344,000 | $344,000 | $126.48 | | |
| EMSRFD | EMS REFUND 147 | 0.0000000000 | $344,000 | $344,000 | $0.00 | | |
| PORTRFD | PORT REFUND 640 | 0.0000000000 | $344,000 | $344,000 | $0.00 | | |
| PORTWWGEN | PORT OF WW 640 | 0.2344301070 | $344,000 | $344,000 | $80.64 | | |
| SD140BOND | SD #140 BOND 764 | 0.8032434458 | $344,000 | $344,000 | $276.32 | | |
| SD140CAP | SD #140 CAP 762 | 0.3840034221 | $344,000 | $344,000 | $132.10 | | |
| SD140GEN | SD #140 GENERAL 760 | 2.4999999996 | $344,000 | $344,000 | $860.00 | | |
| ST2 | STATE SCHOOL PART 2 600 | 0.8853714103 | $344,000 | $344,000 | $304.57 | | |
| STATESCHL | STATE SCHOOL 600 | 1.6424571473 | $344,000 | $344,000 | $565.01 | | |
| STREFUND | STATE REFUND LEVY 603 | 0.0000000000 | $344,000 | $344,000 | $0.00 | | |
| CWWBOND | C OF WW BOND 643 | 0.2642134255 | $344,000 | $344,000 | $90.89 | | |
| CWWGEN | CITY OF WW 631 | 1.6110494978 | $344,000 | $344,000 | $554.20 | | |
| CWWRFD | CITY OF WALLA WALLA REFUND 631 | 0.0000000000 | $344,000 | $344,000 | $0.00 | | |
| | Total Tax Rate: | 9.7181575166 | | | | | |
| | | | | Taxes w/Current Exemptions: | $3,343.06 | | |
| | | | | Taxes w/o Exemptions: | $3,343.06 | | |
Improvement / Building
| Improvement #1: | RESIDENTIAL | State Code: | 11 | 1027.0 sqft | Value: | $260,180 |
| Exterior Wall: | STUCCO | Heating/Cooling: | WARM & COOLED AIR | | Number of Bathrooms: | 2 | Number of Bedrooms: | 3 | | Plumbing: | 10 | Roof Covering: | COMP SHINGLE |
|
| | Type | Description | Class CD | Sub Class CD | Year Built | Area |
| | MA | Main Area | 1 | 30 | 1922 | 1027.0 |
| | SI1 | SITE IMPROVEMENT | 1 | 30 | 1922 | 3.5 |
| | BASE | BASEMENT | 1 | 30 | 1922 | 1027.0 |
| | BRF | BASEMENT - REC FINISH | 1 | 30 | 1922 | 550.0 |
| | DTG | Detached Garage | 1 | 30 | 1922 | 480.0 |
| | RPO | OPEN PORCH W/ROOF | 1 | 30 | 1922 | 65.0 |
Sketch
Property Image
Land
| 1 | RES 1 | Converted: Residential | 0.1749 | 7620.00 | 0.00 | 0.00 | 1.00 | $83,820 | $0 |
Roll Value History
| 2026 | N/A | N/A | N/A | N/A | N/A |
| 2025 | $260,180 | $83,820 | $0 | $344,000 | $344,000 |
| 2024 | $271,380 | $68,580 | $0 | $339,960 | $339,960 |
| 2023 | $271,380 | $68,580 | $0 | $339,960 | $339,960 |
| 2022 | $246,710 | $55,250 | $0 | $301,960 | $301,960 |
| 2021 | $205,590 | $55,250 | $0 | $260,840 | $260,840 |
| 2020 | $146,850 | $55,250 | $0 | $202,100 | $202,100 |
| 2019 | $146,850 | $55,250 | $0 | $202,100 | $202,100 |
| 2018 | $87,200 | $45,100 | $0 | $132,300 | $132,300 |
| 2017 | $87,200 | $45,100 | $0 | $132,300 | $132,300 |
| 2016 | $87,200 | $45,100 | $0 | $132,300 | $132,300 |
| 2015 | $87,200 | $45,100 | $0 | $132,300 | $132,300 |
| 2014 | $87,200 | $45,100 | $0 | $132,300 | $132,300 |
| 2013 | $87,200 | $45,100 | $0 | $132,300 | $132,300 |
| 2012 | $98,700 | $45,100 | $0 | $0 | $0 |
| 2011 | $98,700 | $45,100 | $0 | $0 | $0 |
| 2010 | $98,700 | $45,100 | $0 | $0 | $0 |
| 2009 | $114,700 | $45,100 | $0 | $0 | $0 |
| 2008 | $114,700 | $45,100 | $0 | $0 | $0 |
| 2007 | $85,400 | $15,200 | $0 | $0 | $0 |
Deed and Sales History
| 1 | 12/27/2011 | QCD | QUIT CLAIM DEED | ROWAN, MARK J | ALLRED, AMY V | | | | 121169 | 2011-10164 |
| 2 | 11/07/2006 | WARRANTY D | WARRANTY DEED | WOODLEY, THOMAS A | ALLRED, AMY V | | | $160,000.00 | 111610 | 2006-13445 |
| 3 | 12/03/2003 | WARRANTY D | WARRANTY DEED | BRYAN, MICHAEL E & PAMELA K | WOODLEY, THOMAS A | | | $127,500.00 | 103644 | 2003-18414 |
| 4 | 07/09/2003 | WARRANTY D | WARRANTY DEED | SCHNEIDMILLER ALBERT D | BRYAN MICHAEL E & PAMELA K | | | $125,000.00 | 102521 | 2003-10205 |
|   | |
| 5 | 01/01/1952 | WARRANTY D | WARRANTY DEED | | | | | $0.00 | 0 | 6000-37305 |
Payout Agreement
| No payout information available.. |