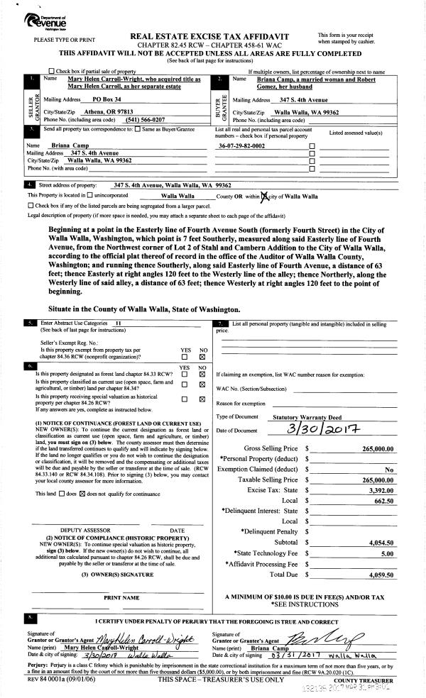
Property
Account |
| Property ID: | 10980 | Abbreviated Legal Description: | STAHL & CAMBERN TAX 2 LOT 2 |
| Parcel Number: | 360729820002 | Agent Code: | |
| Type: | Real | | |
| Tax Area: | 1 - OL-140-F | Land Use Code | 11 |
| Open Space: | N | DFL | N |
| Historic Property: | N | Remodel Property: | N |
| Multi-Family Redevelopment: | N | | |
| Township: | 7 | Section: | 29 |
| Range: | 36 |
Location |
| Address: | 347 S 4TH AVE WA 99362 | Mapsco: | |
| Neighborhood: | Fair Inferior Res | Map ID: | |
| Neighborhood CD: | 512111 |
Owner |
| Name: | CAMP BRIANA | Owner ID: | 60640 |
| Mailing Address: | ROBERT GOMEZ 347 S 4TH AVE WALLA WALLA, WA 99362 | % Ownership: | 100.0000000000% |
| | | Exemptions: | |
Taxes and Assessment Details
Values
| (+) Improvement Homesite Value: | + | $0 | |
| (+) Improvement Non-Homesite Value: | + | $379,300 | |
| (+) Land Homesite Value: | + | $0 | |
| (+) Land Non-Homesite Value: | + | $37,800 | |
| (+) Curr Use (HS): | + | $0 | $0 |
| (+) Curr Use (NHS): | + | $0 | $0 |
| | | -------------------------- | |
| (=) Market Value: | = | $417,100 | |
| (–) Productivity Loss: | – | $0 | |
| | | -------------------------- | |
| (=) Subtotal: | = | $417,100 | |
| (+) Senior Appraised Value: | + | $0 | |
| (+) Non-Senior Appraised Value: | + | $417,100 | |
| | | -------------------------- | |
| (=) Total Appraised Value: | = | $417,100 | |
| (–) Senior Exemption Loss: | – | $0 | |
| (–) Exemption Loss: | – | $0 | |
| | | -------------------------- | |
| (=) Taxable Value: | = | $417,100 | |
Taxing Jurisdiction
| Owner: | CAMP BRIANA | | |
| % Ownership: | 100.0000000000% | | |
| Total Value: | $417,100 | | |
| Tax Area: | 1 - OL-140-F |
| CERFD | CURRENT EXPENSE REFUND 010 | 0.0000000000 | $417,100 | $417,100 | $0.00 | | |
| CURREXP | CURRENT EXPENSE 010 | 1.0175366760 | $417,100 | $417,100 | $424.41 | | |
| HUMNSERV | HUMAN SERVICES 119 | 0.0250000000 | $417,100 | $417,100 | $10.43 | | |
| SLDREL | SOLDIERS RELIEF 121 | 0.0155990005 | $417,100 | $417,100 | $6.51 | | |
| EMERGSER | EMS 147 | 0.3792580840 | $417,100 | $417,100 | $158.19 | | |
| EMSRFD | EMS REFUND 147 | 0.0000000000 | $417,100 | $417,100 | $0.00 | | |
| PORTRFD | PORT REFUND 640 | 0.0000000000 | $417,100 | $417,100 | $0.00 | | |
| PORTWWGEN | PORT OF WW 640 | 0.2460186015 | $417,100 | $417,100 | $102.61 | | |
| SD140BOND | SD #140 BOND 764 | 0.8342371393 | $417,100 | $417,100 | $347.96 | | |
| SD140GEN | SD #140 GENERAL 760 | 2.0646500647 | $417,100 | $417,100 | $861.17 | | |
| ST2 | STATE SCHOOL PART 2 600 | 0.8131451643 | $417,100 | $417,100 | $339.16 | | |
| STATESCHL | STATE SCHOOL 600 | 1.5158548041 | $417,100 | $417,100 | $632.26 | | |
| STREFUND | STATE REFUND LEVY 603 | 0.0000000000 | $417,100 | $417,100 | $0.00 | | |
| CWWBOND | C OF WW BOND 643 | 0.2760494372 | $417,100 | $417,100 | $115.14 | | |
| CWWGEN | CITY OF WW 631 | 1.6100204973 | $417,100 | $417,100 | $671.54 | | |
| CWWRFD | CITY OF WALLA WALLA REFUND 631 | 0.0000000000 | $417,100 | $417,100 | $0.00 | | |
| | Total Tax Rate: | 8.7973694689 | | | | | |
| | | | | Taxes w/Current Exemptions: | $3,669.38 | | |
| | | | | Taxes w/o Exemptions: | $3,669.38 | | |
Improvement / Building
| Improvement #1: | RESIDENTIAL | State Code: | 11 | 2815.0 sqft | Value: | $379,300 |
| Exterior Wall: | SIDING | Heating/Cooling: | HEAT PUMP | | Number of Bathrooms: | 2.5 | Number of Bedrooms: | 5 | | Plumbing: | 9 | Roof Covering: | COMP SHINGLE |
|
| | Type | Description | Class CD | Sub Class CD | Year Built | Area |
| | MA | Main Area | 2 | 40 | 1899 | 2815.0 |
| | UPFL | Upper Floor (included in main area) | 2 | 40 | 1899 | 1092.0 |
| | SI1 | SITE IMPROVEMENT | 2 | 40 | 1899 | 2.5 |
| | BASE | BASEMENT | 2 | 40 | 1899 | 1040.0 |
| | S2F | Single 2S Fireplace | 2 | 40 | 1899 | 1.0 |
| | ATIC | ATTIC ROOM | 2 | 40 | 1899 | 525.0 |
| | RCD | WOOD DECK W/ROOF, CEILED | 2 | 40 | 1899 | 360.0 |
| | CPCS | CARPORT/SHED OR FLAT ROOF | 2 | 40 | 1899 | 441.0 |
| | UTST | Utility Storage Shed | 2 | 40 | 1899 | 144.0 |
Sketch
Property Image
Land
| 1 | RES 1 | Converted: Residential | 0.1653 | 7200.00 | 0.00 | 0.00 | 1.00 | $37,800 | $0 |
Roll Value History
| 2026 | N/A | N/A | N/A | N/A | N/A |
| 2025 | $357,100 | $64,800 | $0 | $421,900 | $421,900 |
| 2024 | $357,100 | $64,800 | $0 | $421,900 | $421,900 |
| 2023 | $379,300 | $37,800 | $0 | $417,100 | $417,100 |
| 2022 | $344,820 | $37,800 | $0 | $382,620 | $382,620 |
| 2021 | $313,470 | $37,800 | $0 | $351,270 | $351,270 |
| 2020 | $223,910 | $37,800 | $0 | $261,710 | $261,710 |
| 2019 | $223,910 | $37,800 | $0 | $261,710 | $261,710 |
| 2018 | $223,910 | $37,800 | $0 | $261,710 | $261,710 |
| 2017 | $218,510 | $43,200 | $0 | $261,710 | $261,710 |
| 2016 | $208,100 | $43,200 | $0 | $251,300 | $251,300 |
| 2015 | $208,100 | $43,200 | $0 | $251,300 | $251,300 |
| 2014 | $208,100 | $43,200 | $0 | $251,300 | $251,300 |
| 2013 | $208,100 | $43,200 | $0 | $251,300 | $251,300 |
| 2012 | $208,100 | $43,200 | $0 | $0 | $0 |
| 2011 | $208,100 | $43,200 | $0 | $0 | $0 |
| 2010 | $150,100 | $43,200 | $0 | $0 | $0 |
| 2009 | $184,200 | $43,200 | $0 | $0 | $0 |
| 2008 | $184,200 | $43,200 | $0 | $0 | $0 |
| 2007 | $139,800 | $14,400 | $0 | $0 | $0 |
Deed and Sales History
| 1 | 03/31/2017 | SWD | STATUTORY WARRANTY DEED | CARROLL MARY HELEN | CAMP BRIANA | | | $265,000.00 | 132136 | 2017-02479 |
| 2 | 11/21/1983 | WARRANTY D | WARRANTY DEED | | | | | $56,800.00 | 0 | 1418-308357 |
Payout Agreement
| No payout information available.. |