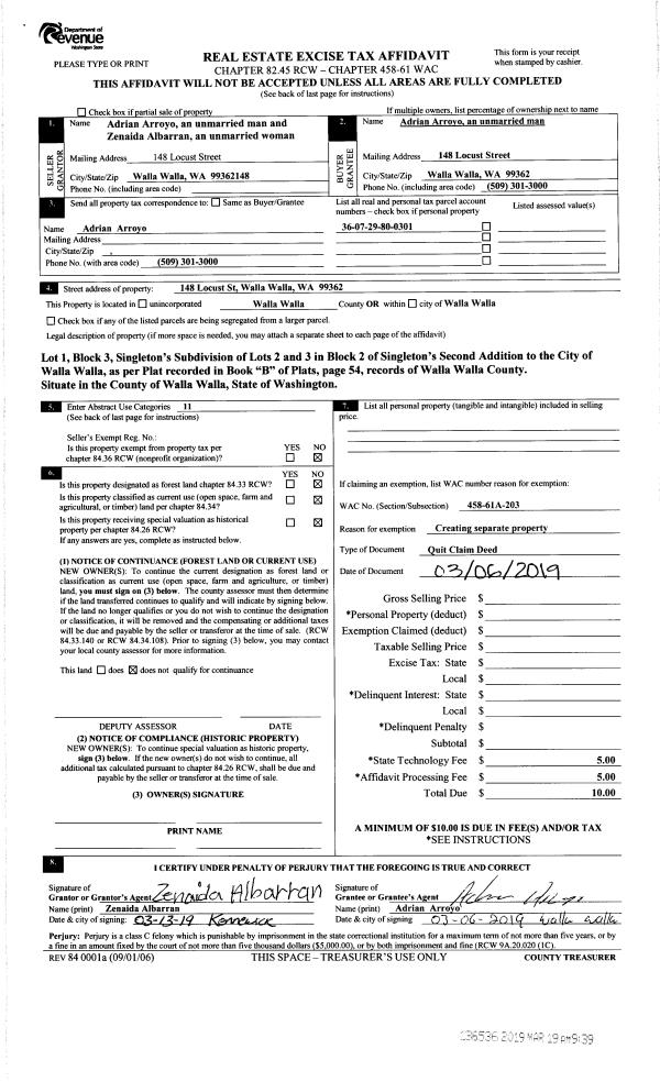
Property
Account |
| Property ID: | 10969 | Abbreviated Legal Description: | SINGLETONS SUB LOT 1 BLK 3 |
| Parcel Number: | 360729800301 | Agent Code: | |
| Type: | Real | | |
| Tax Area: | 1 - OL-140-F | Land Use Code | 11 |
| Open Space: | N | DFL | N |
| Historic Property: | N | Remodel Property: | N |
| Multi-Family Redevelopment: | N | | |
| Township: | 7 | Section: | 29 |
| Range: | 36 |
Location |
| Address: | 148 LOCUST ST WA 99362 | Mapsco: | |
| Neighborhood: | G-SFR | Map ID: | |
| Neighborhood CD: | 514011 |
Owner |
| Name: | ARROYO ADRIAN | Owner ID: | 64845 |
| Mailing Address: | 148 LOCUST ST WALLA WALLA, WA 99362 | % Ownership: | 100.0000000000% |
| | | Exemptions: | |
Taxes and Assessment Details
Property Tax Information as of
02/21/2026
Click on "Statement Details" to expand or collapse a tax statement.
* Please enter a valid date ** Please enter a valid date *
Statement Details |
| | TOTAL: | $0.00 | $0.00 | $0.00 | $0.00 | $0.00 | $0.00 |
|
| | $0.00 | $0.00 | $0.00 | $0.00 | $0.00 | $0.00 |
Values
| (+) Improvement Homesite Value: | + | $0 | |
| (+) Improvement Non-Homesite Value: | + | $183,960 | |
| (+) Land Homesite Value: | + | $0 | |
| (+) Land Non-Homesite Value: | + | $39,470 | |
| (+) Curr Use (HS): | + | $0 | $0 |
| (+) Curr Use (NHS): | + | $0 | $0 |
| | | -------------------------- | |
| (=) Market Value: | = | $223,430 | |
| (–) Productivity Loss: | – | $0 | |
| | | -------------------------- | |
| (=) Subtotal: | = | $223,430 | |
| (+) Senior Appraised Value: | + | $0 | |
| (+) Non-Senior Appraised Value: | + | $223,430 | |
| | | -------------------------- | |
| (=) Total Appraised Value: | = | $223,430 | |
| (–) Senior Exemption Loss: | – | $0 | |
| (–) Exemption Loss: | – | $0 | |
| | | -------------------------- | |
| (=) Taxable Value: | = | $223,430 | |
Taxing Jurisdiction
| Owner: | ARROYO ADRIAN | | |
| % Ownership: | 100.0000000000% | | |
| Total Value: | $223,430 | | |
| Tax Area: | 1 - OL-140-F |
| CERFD | CURRENT EXPENSE REFUND 010 | 0.0000000000 | $223,430 | $223,430 | $0.00 | | |
| CURREXP | CURRENT EXPENSE 010 | 1.0175366760 | $223,430 | $223,430 | $227.35 | | |
| HUMNSERV | HUMAN SERVICES 119 | 0.0250000000 | $223,430 | $223,430 | $5.59 | | |
| SLDREL | SOLDIERS RELIEF 121 | 0.0155990005 | $223,430 | $223,430 | $3.49 | | |
| EMERGSER | EMS 147 | 0.3792580840 | $223,430 | $223,430 | $84.74 | | |
| EMSRFD | EMS REFUND 147 | 0.0000000000 | $223,430 | $223,430 | $0.00 | | |
| PORTRFD | PORT REFUND 640 | 0.0000000000 | $223,430 | $223,430 | $0.00 | | |
| PORTWWGEN | PORT OF WW 640 | 0.2460186015 | $223,430 | $223,430 | $54.97 | | |
| SD140BOND | SD #140 BOND 764 | 0.8342371393 | $223,430 | $223,430 | $186.39 | | |
| SD140GEN | SD #140 GENERAL 760 | 2.0646500647 | $223,430 | $223,430 | $461.30 | | |
| ST2 | STATE SCHOOL PART 2 600 | 0.8131451643 | $223,430 | $223,430 | $181.68 | | |
| STATESCHL | STATE SCHOOL 600 | 1.5158548041 | $223,430 | $223,430 | $338.69 | | |
| STREFUND | STATE REFUND LEVY 603 | 0.0000000000 | $223,430 | $223,430 | $0.00 | | |
| CWWBOND | C OF WW BOND 643 | 0.2760494372 | $223,430 | $223,430 | $61.68 | | |
| CWWGEN | CITY OF WW 631 | 1.6100204973 | $223,430 | $223,430 | $359.73 | | |
| CWWRFD | CITY OF WALLA WALLA REFUND 631 | 0.0000000000 | $223,430 | $223,430 | $0.00 | | |
| | Total Tax Rate: | 8.7973694689 | | | | | |
| | | | | Taxes w/Current Exemptions: | $1,965.61 | | |
| | | | | Taxes w/o Exemptions: | $1,965.61 | | |
Improvement / Building
| Improvement #1: | RESIDENTIAL | State Code: | 11 | 1383.0 sqft | Value: | $183,960 |
| Exterior Wall: | SIDING | Heating/Cooling: | FORCED AIR | | Number of Bathrooms: | 2 | Number of Bedrooms: | 4 | | Plumbing: | 10 | Roof Covering: | COMP SHINGLE |
|
| | Type | Description | Class CD | Sub Class CD | Year Built | Area |
| | MA | Main Area | 4 | 30 | 1900 | 1383.0 |
| | UPFL | Upper Floor (included in main area) | 4 | 30 | 1900 | 224.0 |
| | SI1 | SITE IMPROVEMENT | 4 | 30 | 1900 | 1.0 |
| | SWP | Solid Wall Porch | 4 | 30 | 1900 | 56.0 |
| | RPC | OPEN PORCH W/ROOF , CEILED | 4 | 30 | 1900 | 147.0 |
| | DTG | Detached Garage | 4 | 30 | 1900 | 160.0 |
Sketch
Property Image
Land
| 1 | RES 1 | Converted: Residential | 0.1250 | 5444.00 | 0.00 | 0.00 | 1.00 | $39,470 | $0 |
Roll Value History
| 2026 | N/A | N/A | N/A | N/A | N/A |
| 2025 | $160,590 | $59,880 | $0 | $220,470 | $220,470 |
| 2024 | $160,590 | $59,880 | $0 | $220,470 | $220,470 |
| 2023 | $183,960 | $39,470 | $0 | $223,430 | $223,430 |
| 2022 | $167,230 | $39,470 | $0 | $206,700 | $206,700 |
| 2021 | $139,360 | $39,470 | $0 | $178,830 | $178,830 |
| 2020 | $107,200 | $39,470 | $0 | $146,670 | $146,670 |
| 2019 | $107,200 | $39,470 | $0 | $146,670 | $146,670 |
| 2018 | $107,200 | $39,470 | $0 | $146,670 | $146,670 |
| 2017 | $108,570 | $21,800 | $0 | $130,370 | $130,370 |
| 2016 | $103,400 | $21,800 | $0 | $125,200 | $125,200 |
| 2015 | $103,400 | $21,800 | $0 | $125,200 | $125,200 |
| 2014 | $103,400 | $21,800 | $0 | $125,200 | $125,200 |
| 2013 | $103,400 | $21,800 | $0 | $125,200 | $125,200 |
| 2012 | $103,400 | $21,800 | $0 | $0 | $0 |
| 2011 | $103,400 | $21,800 | $0 | $0 | $0 |
| 2010 | $103,400 | $21,800 | $0 | $0 | $0 |
| 2009 | $117,300 | $21,800 | $0 | $0 | $0 |
| 2008 | $106,400 | $32,700 | $0 | $0 | $0 |
| 2007 | $53,400 | $16,300 | $0 | $0 | $0 |
Deed and Sales History
| 1 | 03/06/2019 | QCD | QUIT CLAIM DEED | ARROYO ADRIAN | ARROYO ADRIAN | | | $0.00 | 136536 | 2019-01749 |
| 2 | 09/18/2012 | QCD | QUIT CLAIM DEED | ARROYO, ADRIAN | ARROYO, ADRIAN | | | $0.00 | 122658 | 2012-08125 |
| 3 | 03/30/2010 | QCD | QUIT CLAIM DEED | PRECIADO, ELIA LILIA | ARROYO, ADRIAN | | | | 118266 | 2010-02575 |
| 4 | 06/01/2000 | WARRANTY D | WARRANTY DEED | | | | | $57,000.00 | 95181 | 2990-005236 |
Payout Agreement
| No payout information available.. |