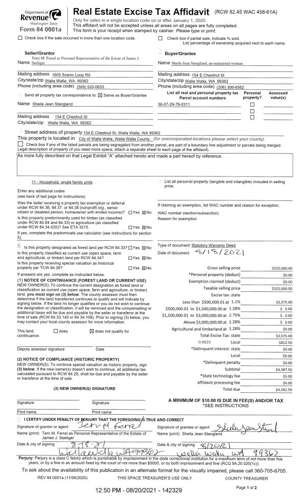
Property
Account |
| Property ID: | 10960 | Abbreviated Legal Description: | SINGLETONS 2ND LOT 11 BLK 3; W 8' OF LOT 12 BLK 3 |
| Parcel Number: | 360729790311 | Agent Code: | |
| Type: | Real | | |
| Tax Area: | 1 - OL-140-F | Land Use Code | 11 |
| Open Space: | N | DFL | N |
| Historic Property: | N | Remodel Property: | N |
| Multi-Family Redevelopment: | N | | |
| Township: | 7 | Section: | 29 |
| Range: | 36 |
Location |
| Address: | 154 E CHESTNUT ST WA 99362 | Mapsco: | |
| Neighborhood: | A Res | Map ID: | |
| Neighborhood CD: | 613011 |
Owner |
| Name: | STANGLAND SHEILA JEAN | Owner ID: | 70141 |
| Mailing Address: | 154 E CHESTNUT ST WALLA WALLA, WA 99362 | % Ownership: | 100.0000000000% |
| | | Exemptions: | |
Taxes and Assessment Details
Values
| (+) Improvement Homesite Value: | + | $0 | |
| (+) Improvement Non-Homesite Value: | + | $289,790 | |
| (+) Land Homesite Value: | + | $0 | |
| (+) Land Non-Homesite Value: | + | $56,380 | |
| (+) Curr Use (HS): | + | $0 | $0 |
| (+) Curr Use (NHS): | + | $0 | $0 |
| | | -------------------------- | |
| (=) Market Value: | = | $346,170 | |
| (–) Productivity Loss: | – | $0 | |
| | | -------------------------- | |
| (=) Subtotal: | = | $346,170 | |
| (+) Senior Appraised Value: | + | $0 | |
| (+) Non-Senior Appraised Value: | + | $346,170 | |
| | | -------------------------- | |
| (=) Total Appraised Value: | = | $346,170 | |
| (–) Senior Exemption Loss: | – | $0 | |
| (–) Exemption Loss: | – | $0 | |
| | | -------------------------- | |
| (=) Taxable Value: | = | $346,170 | |
Taxing Jurisdiction
| Owner: | STANGLAND SHEILA JEAN | | |
| % Ownership: | 100.0000000000% | | |
| Total Value: | $346,170 | | |
| Tax Area: | 1 - OL-140-F |
| CERFD | CURRENT EXPENSE REFUND 010 | 0.0000000000 | $346,170 | $346,170 | $0.00 | | |
| CURREXP | CURRENT EXPENSE 010 | 1.0175366760 | $346,170 | $346,170 | $352.24 | | |
| HUMNSERV | HUMAN SERVICES 119 | 0.0250000000 | $346,170 | $346,170 | $8.65 | | |
| SLDREL | SOLDIERS RELIEF 121 | 0.0155990005 | $346,170 | $346,170 | $5.40 | | |
| EMERGSER | EMS 147 | 0.3792580840 | $346,170 | $346,170 | $131.29 | | |
| EMSRFD | EMS REFUND 147 | 0.0000000000 | $346,170 | $346,170 | $0.00 | | |
| PORTRFD | PORT REFUND 640 | 0.0000000000 | $346,170 | $346,170 | $0.00 | | |
| PORTWWGEN | PORT OF WW 640 | 0.2460186015 | $346,170 | $346,170 | $85.16 | | |
| SD140BOND | SD #140 BOND 764 | 0.8342371393 | $346,170 | $346,170 | $288.79 | | |
| SD140GEN | SD #140 GENERAL 760 | 2.0646500647 | $346,170 | $346,170 | $714.72 | | |
| ST2 | STATE SCHOOL PART 2 600 | 0.8131451643 | $346,170 | $346,170 | $281.49 | | |
| STATESCHL | STATE SCHOOL 600 | 1.5158548041 | $346,170 | $346,170 | $524.74 | | |
| STREFUND | STATE REFUND LEVY 603 | 0.0000000000 | $346,170 | $346,170 | $0.00 | | |
| CWWBOND | C OF WW BOND 643 | 0.2760494372 | $346,170 | $346,170 | $95.56 | | |
| CWWGEN | CITY OF WW 631 | 1.6100204973 | $346,170 | $346,170 | $557.34 | | |
| CWWRFD | CITY OF WALLA WALLA REFUND 631 | 0.0000000000 | $346,170 | $346,170 | $0.00 | | |
| | Total Tax Rate: | 8.7973694689 | | | | | |
| | | | | Taxes w/Current Exemptions: | $3,045.38 | | |
| | | | | Taxes w/o Exemptions: | $3,045.38 | | |
Improvement / Building
| Improvement #1: | RESIDENTIAL | State Code: | 11 | 1169.0 sqft | Value: | $289,790 |
| Exterior Wall: | SIDING | Heating/Cooling: | FORCED AIR | | Number of Bathrooms: | 1 | Number of Bedrooms: | 3 | | Plumbing: | 7 | Roof Covering: | COMP SHINGLE |
|
| | Type | Description | Class CD | Sub Class CD | Year Built | Area |
| | MA | Main Area | 1 | 30 | 1900 | 1169.0 |
| | SI1 | SITE IMPROVEMENT | 1 | 30 | 1900 | 1.5 |
| | BASE | BASEMENT | 1 | 30 | 1900 | 260.0 |
| | BMF | BASEMENT - MIN FINISH | 1 | 30 | 1900 | 160.0 |
| | DTG | Detached Garage | 1 | 30 | 1900 | 520.0 |
| | S1F | Single One Story Fireplace | 1 | 30 | 1900 | 1.0 |
| | RPO | OPEN PORCH W/ROOF | 1 | 30 | 1900 | 72.0 |
| | CPC | COVERED CARPORT/PATIO | 1 | 30 | 1900 | 260.0 |
Sketch
Property Image
Land
| 1 | RES 1 | Converted: Residential | 0.1598 | 6960.00 | 0.00 | 0.00 | 1.00 | $56,380 | $0 |
Roll Value History
| 2026 | N/A | N/A | N/A | N/A | N/A |
| 2025 | $251,230 | $68,900 | $0 | $320,130 | $320,130 |
| 2024 | $289,790 | $56,380 | $0 | $346,170 | $346,170 |
| 2023 | $289,790 | $56,380 | $0 | $346,170 | $346,170 |
| 2022 | $275,990 | $45,410 | $0 | $321,400 | $321,400 |
| 2021 | $183,990 | $45,410 | $0 | $229,400 | $229,400 |
| 2020 | $136,290 | $45,410 | $0 | $181,700 | $181,700 |
| 2019 | $136,290 | $45,410 | $0 | $181,700 | $181,700 |
| 2018 | $105,530 | $41,800 | $0 | $147,330 | $147,330 |
| 2017 | $100,500 | $41,800 | $0 | $142,300 | $142,300 |
| 2016 | $100,500 | $41,800 | $0 | $142,300 | $142,300 |
| 2015 | $100,500 | $41,800 | $0 | $142,300 | $142,300 |
| 2014 | $100,500 | $41,800 | $0 | $142,300 | $142,300 |
| 2013 | $100,500 | $41,800 | $0 | $142,300 | $142,300 |
| 2012 | $100,500 | $41,800 | $0 | $0 | $0 |
| 2011 | $100,500 | $41,800 | $0 | $0 | $0 |
| 2010 | $93,700 | $41,800 | $0 | $0 | $0 |
| 2009 | $108,800 | $41,800 | $0 | $0 | $0 |
| 2008 | $108,800 | $41,800 | $0 | $0 | $0 |
| 2007 | $71,200 | $13,900 | $0 | $0 | $0 |
Deed and Sales History
| 1 | 08/20/2021 | SWD | STATUTORY WARRANTY DEED | SEELIGER JAMES J ESTATE OF | STANGLAND SHEILA JEAN | | | $325,000.00 | 142329 | 2021-10267 |
| 2 | 12/18/2013 | QCD | QUIT CLAIM DEED | SEELIGER JAMES J ESTATE OF | | | | | 0 | 2013-12086 |
| 3 | 01/01/1962 | WARRANTY D | WARRANTY DEED | | | | | $9,600.00 | 0 | 3000-435932 |
Payout Agreement
| No payout information available.. |