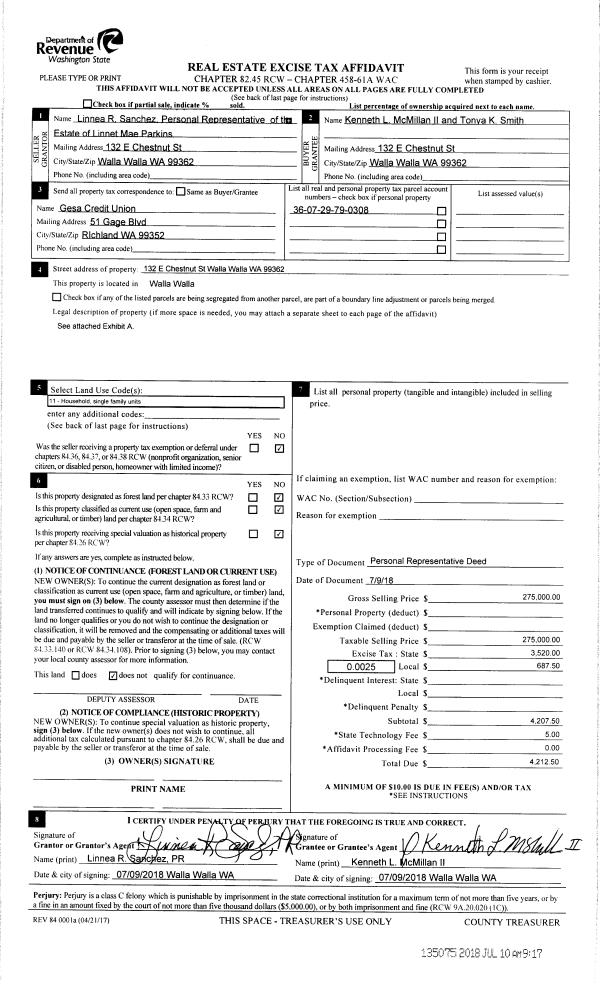
Property
Account |
| Property ID: | 10958 | Abbreviated Legal Description: | SINGLETONS 2ND LOT 8 AND E 1/2 OF LOT 7 BLK 3; TAX 3 LOT 9 BLK 3 |
| Parcel Number: | 360729790308 | Agent Code: | |
| Type: | Real | | |
| Tax Area: | 1 - OL-140-F | Land Use Code | 11 |
| Open Space: | N | DFL | N |
| Historic Property: | N | Remodel Property: | N |
| Multi-Family Redevelopment: | N | | |
| Township: | 7 | Section: | 29 |
| Range: | 36 |
Location |
| Address: | 132 E CHESTNUT ST WA 99362 | Mapsco: | |
| Neighborhood: | A Res | Map ID: | |
| Neighborhood CD: | 613011 |
Owner |
| Name: | MCMILLAN KENNETH L II | Owner ID: | 63549 |
| Mailing Address: | TONYA K SMITH 132 E CHESTNUT ST WALLA WALLA, WA 99362 | % Ownership: | 100.0000000000% |
| | | Exemptions: | |
Taxes and Assessment Details
Property Tax Information as of
02/21/2026
Click on "Statement Details" to expand or collapse a tax statement.
* Please enter a valid date ** Please enter a valid date *
Statement Details |
| | TOTAL: | $0.00 | $0.00 | $0.00 | $0.00 | $0.00 | $0.00 |
|
| | $0.00 | $0.00 | $0.00 | $0.00 | $0.00 | $0.00 |
Values
| (+) Improvement Homesite Value: | + | $0 | |
| (+) Improvement Non-Homesite Value: | + | $406,730 | |
| (+) Land Homesite Value: | + | $0 | |
| (+) Land Non-Homesite Value: | + | $83,780 | |
| (+) Curr Use (HS): | + | $0 | $0 |
| (+) Curr Use (NHS): | + | $0 | $0 |
| | | -------------------------- | |
| (=) Market Value: | = | $490,510 | |
| (–) Productivity Loss: | – | $0 | |
| | | -------------------------- | |
| (=) Subtotal: | = | $490,510 | |
| (+) Senior Appraised Value: | + | $0 | |
| (+) Non-Senior Appraised Value: | + | $490,510 | |
| | | -------------------------- | |
| (=) Total Appraised Value: | = | $490,510 | |
| (–) Senior Exemption Loss: | – | $0 | |
| (–) Exemption Loss: | – | $0 | |
| | | -------------------------- | |
| (=) Taxable Value: | = | $490,510 | |
Taxing Jurisdiction
| Owner: | MCMILLAN KENNETH L II | | |
| % Ownership: | 100.0000000000% | | |
| Total Value: | $490,510 | | |
| Tax Area: | 1 - OL-140-F |
| CERFD | CURRENT EXPENSE REFUND 010 | 0.0000000000 | $490,510 | $490,510 | $0.00 | | |
| CURREXP | CURRENT EXPENSE 010 | 1.0175366760 | $490,510 | $490,510 | $499.11 | | |
| HUMNSERV | HUMAN SERVICES 119 | 0.0250000000 | $490,510 | $490,510 | $12.26 | | |
| SLDREL | SOLDIERS RELIEF 121 | 0.0155990005 | $490,510 | $490,510 | $7.65 | | |
| EMERGSER | EMS 147 | 0.3792580840 | $490,510 | $490,510 | $186.03 | | |
| EMSRFD | EMS REFUND 147 | 0.0000000000 | $490,510 | $490,510 | $0.00 | | |
| PORTRFD | PORT REFUND 640 | 0.0000000000 | $490,510 | $490,510 | $0.00 | | |
| PORTWWGEN | PORT OF WW 640 | 0.2460186015 | $490,510 | $490,510 | $120.67 | | |
| SD140BOND | SD #140 BOND 764 | 0.8342371393 | $490,510 | $490,510 | $409.20 | | |
| SD140GEN | SD #140 GENERAL 760 | 2.0646500647 | $490,510 | $490,510 | $1,012.73 | | |
| ST2 | STATE SCHOOL PART 2 600 | 0.8131451643 | $490,510 | $490,510 | $398.86 | | |
| STATESCHL | STATE SCHOOL 600 | 1.5158548041 | $490,510 | $490,510 | $743.54 | | |
| STREFUND | STATE REFUND LEVY 603 | 0.0000000000 | $490,510 | $490,510 | $0.00 | | |
| CWWBOND | C OF WW BOND 643 | 0.2760494372 | $490,510 | $490,510 | $135.41 | | |
| CWWGEN | CITY OF WW 631 | 1.6100204973 | $490,510 | $490,510 | $789.73 | | |
| CWWRFD | CITY OF WALLA WALLA REFUND 631 | 0.0000000000 | $490,510 | $490,510 | $0.00 | | |
| | Total Tax Rate: | 8.7973694689 | | | | | |
| | | | | Taxes w/Current Exemptions: | $4,315.19 | | |
| | | | | Taxes w/o Exemptions: | $4,315.19 | | |
Improvement / Building
| Improvement #1: | RESIDENTIAL | State Code: | 11 | 3492.0 sqft | Value: | $406,730 |
| Exterior Wall: | SIDING | Heating/Cooling: | FORCED AIR | | Number of Bathrooms: | 3.5 | Number of Bedrooms: | 4 | | Plumbing: | 15 | Roof Covering: | COMP SHINGLE |
|
| | Type | Description | Class CD | Sub Class CD | Year Built | Area |
| | MA | Main Area | 2 | 40 | 1906 | 3492.0 |
| | UPFL | Upper Floor (included in main area) | 2 | 40 | 1906 | 1746.0 |
| | SI1 | SITE IMPROVEMENT | 2 | 40 | 1906 | 2.5 |
| | BASE | BASEMENT | 2 | 40 | 1906 | 1064.0 |
| | DTG | Detached Garage | 2 | 40 | 1906 | 280.0 |
| | RPO | OPEN PORCH W/ROOF | 2 | 40 | 1906 | 431.0 |
| | SUN | SOLAR ROOM | 2 | 40 | 1906 | 368.0 |
| | BLW | WOOD BALCONIES | 2 | 40 | 1906 | 60.0 |
Sketch
Property Image
Land
| 1 | RES 1 | Converted: Residential | 0.3238 | 14105.00 | 0.00 | 0.00 | 1.00 | $83,780 | $0 |
Roll Value History
| 2026 | N/A | N/A | N/A | N/A | N/A |
| 2025 | $388,220 | $102,320 | $0 | $490,540 | $490,540 |
| 2024 | $406,730 | $83,780 | $0 | $490,510 | $490,510 |
| 2023 | $406,730 | $83,780 | $0 | $490,510 | $490,510 |
| 2022 | $338,940 | $67,150 | $0 | $406,090 | $406,090 |
| 2021 | $242,100 | $67,150 | $0 | $309,250 | $309,250 |
| 2020 | $201,750 | $67,150 | $0 | $268,900 | $268,900 |
| 2019 | $201,750 | $67,150 | $0 | $268,900 | $268,900 |
| 2018 | $190,190 | $50,600 | $0 | $240,790 | $240,790 |
| 2017 | $172,900 | $50,600 | $0 | $223,500 | $223,500 |
| 2016 | $172,900 | $50,600 | $0 | $223,500 | $223,500 |
| 2015 | $172,900 | $50,600 | $0 | $223,500 | $223,500 |
| 2014 | $172,900 | $50,600 | $0 | $223,500 | $223,500 |
| 2013 | $172,900 | $50,600 | $0 | $223,500 | $223,500 |
| 2012 | $177,000 | $50,600 | $0 | $0 | $0 |
| 2011 | $202,300 | $50,600 | $0 | $0 | $0 |
| 2010 | $202,300 | $50,600 | $0 | $0 | $0 |
| 2009 | $230,400 | $50,600 | $0 | $0 | $0 |
| 2008 | $230,400 | $50,600 | $0 | $0 | $0 |
| 2007 | $92,900 | $21,200 | $0 | $0 | $0 |
Deed and Sales History
| 1 | 07/10/2018 | DPR | DEED OF PERSONAL REPRESENTATIVE | PARKINS LINNET M ESTATE OF | MCMILLAN KENNETH L II | | | $275,000.00 | 135075 | 2018-05498 |
| 2 | 11/20/2009 | QCD | QUIT CLAIM DEED | PARKINS, KIETH W | PARKINS, LINNET M | | | | 117706 | 2009-11414 |
| 3 | 10/30/2009 | WARRANTY D | WARRANTY DEED | "PARKINS, KIETH W" | PARKINS LINNET M ESTATE OF | | | | 0 | CC #09-3-000250 |
| 4 | 02/17/1999 | WARRANTY D | WARRANTY DEED | | | | | $99,900.00 | 92192 | 2809-901977 |
|   | |
Payout Agreement
| No payout information available.. |