Property
Account |
| Property ID: | 10954 | Abbreviated Legal Description: | SINGLETONS 2ND TAX 7 LOT 1 BLK 2 |
| Parcel Number: | 360729790207 | Agent Code: | |
| Type: | Real | | |
| Tax Area: | 1 - OL-140-F | Land Use Code | 11 |
| Open Space: | N | DFL | N |
| Historic Property: | N | Remodel Property: | N |
| Multi-Family Redevelopment: | N | | |
| Township: | 7 | Section: | 29 |
| Range: | 36 |
Location |
| Address: | 603 S 1ST AVE WA 99362 | Mapsco: | |
| Neighborhood: | G-SFR | Map ID: | |
| Neighborhood CD: | 514011 |
Owner |
| Name: | ZANATTA REBECCA JANE | Owner ID: | 67828 |
| Mailing Address: | 603 S 1ST AVE WALLA WALLA, WA 99362 | % Ownership: | 100.0000000000% |
| | | Exemptions: | |
Taxes and Assessment Details
Property Tax Information as of
02/21/2026
Click on "Statement Details" to expand or collapse a tax statement.
* Please enter a valid date ** Please enter a valid date *
Statement Details |
| | TOTAL: | $0.00 | $0.00 | $0.00 | $0.00 | $0.00 | $0.00 |
|
| | $0.00 | $0.00 | $0.00 | $0.00 | $0.00 | $0.00 |
Values
| (+) Improvement Homesite Value: | + | $0 | |
| (+) Improvement Non-Homesite Value: | + | $333,400 | |
| (+) Land Homesite Value: | + | $0 | |
| (+) Land Non-Homesite Value: | + | $44,530 | |
| (+) Curr Use (HS): | + | $0 | $0 |
| (+) Curr Use (NHS): | + | $0 | $0 |
| | | -------------------------- | |
| (=) Market Value: | = | $377,930 | |
| (–) Productivity Loss: | – | $0 | |
| | | -------------------------- | |
| (=) Subtotal: | = | $377,930 | |
| (+) Senior Appraised Value: | + | $0 | |
| (+) Non-Senior Appraised Value: | + | $377,930 | |
| | | -------------------------- | |
| (=) Total Appraised Value: | = | $377,930 | |
| (–) Senior Exemption Loss: | – | $0 | |
| (–) Exemption Loss: | – | $0 | |
| | | -------------------------- | |
| (=) Taxable Value: | = | $377,930 | |
Taxing Jurisdiction
| Owner: | ZANATTA REBECCA JANE | | |
| % Ownership: | 100.0000000000% | | |
| Total Value: | $377,930 | | |
| Tax Area: | 1 - OL-140-F |
| CERFD | CURRENT EXPENSE REFUND 010 | 0.0000000000 | $377,930 | $377,930 | $0.00 | | |
| CURREXP | CURRENT EXPENSE 010 | 1.0175366760 | $377,930 | $377,930 | $384.56 | | |
| HUMNSERV | HUMAN SERVICES 119 | 0.0250000000 | $377,930 | $377,930 | $9.45 | | |
| SLDREL | SOLDIERS RELIEF 121 | 0.0155990005 | $377,930 | $377,930 | $5.90 | | |
| EMERGSER | EMS 147 | 0.3792580840 | $377,930 | $377,930 | $143.33 | | |
| EMSRFD | EMS REFUND 147 | 0.0000000000 | $377,930 | $377,930 | $0.00 | | |
| PORTRFD | PORT REFUND 640 | 0.0000000000 | $377,930 | $377,930 | $0.00 | | |
| PORTWWGEN | PORT OF WW 640 | 0.2460186015 | $377,930 | $377,930 | $92.98 | | |
| SD140BOND | SD #140 BOND 764 | 0.8342371393 | $377,930 | $377,930 | $315.28 | | |
| SD140GEN | SD #140 GENERAL 760 | 2.0646500647 | $377,930 | $377,930 | $780.29 | | |
| ST2 | STATE SCHOOL PART 2 600 | 0.8131451643 | $377,930 | $377,930 | $307.31 | | |
| STATESCHL | STATE SCHOOL 600 | 1.5158548041 | $377,930 | $377,930 | $572.89 | | |
| STREFUND | STATE REFUND LEVY 603 | 0.0000000000 | $377,930 | $377,930 | $0.00 | | |
| CWWBOND | C OF WW BOND 643 | 0.2760494372 | $377,930 | $377,930 | $104.33 | | |
| CWWGEN | CITY OF WW 631 | 1.6100204973 | $377,930 | $377,930 | $608.48 | | |
| CWWRFD | CITY OF WALLA WALLA REFUND 631 | 0.0000000000 | $377,930 | $377,930 | $0.00 | | |
| | Total Tax Rate: | 8.7973694689 | | | | | |
| | | | | Taxes w/Current Exemptions: | $3,324.80 | | |
| | | | | Taxes w/o Exemptions: | $3,324.80 | | |
Improvement / Building
| Improvement #1: | RESIDENTIAL | State Code: | 11 | 828.0 sqft | Value: | $333,400 |
| Exterior Wall: | VINYL | Heating/Cooling: | WARM & COOLED AIR | | Number of Bathrooms: | 1.5 | Number of Bedrooms: | 3 | | Plumbing: | 9 | Roof Covering: | COMP SHINGLE |
|
| | Type | Description | Class CD | Sub Class CD | Year Built | Area |
| | MA | Main Area | 1 | 30 | 1939 | 828.0 |
| | SI1 | SITE IMPROVEMENT | 1 | 30 | 1939 | 3.0 |
| | BASE | BASEMENT | 1 | 30 | 1939 | 828.0 |
| | BMF | BASEMENT - MIN FINISH | 1 | 30 | 2020 | 768.0 |
| | ATG | Attached Garage | 1 | 30 | 1939 | 192.0 |
| | GUH | GUEST HOUSE | 1 | 30 | 2020 | 510.0 |
| | TOOL | TOOL SHED | 1 | 30 | 2020 | 90.0 |
Sketch
Property Image
Land
| 1 | RES 1 | Converted: Residential | 0.1410 | 6142.00 | 0.00 | 0.00 | 1.00 | $44,530 | $0 |
Roll Value History
| 2026 | N/A | N/A | N/A | N/A | N/A |
| 2025 | $297,410 | $67,560 | $0 | $364,970 | $364,970 |
| 2024 | $304,170 | $67,560 | $0 | $371,730 | $371,730 |
| 2023 | $333,400 | $44,530 | $0 | $377,930 | $377,930 |
| 2022 | $303,090 | $44,530 | $0 | $347,620 | $347,620 |
| 2021 | $288,660 | $44,530 | $0 | $333,190 | $333,190 |
| 2020 | $140,660 | $44,530 | $0 | $185,190 | $185,190 |
| 2019 | $140,660 | $44,530 | $0 | $185,190 | $185,190 |
| 2018 | $133,960 | $44,530 | $0 | $178,490 | $178,490 |
| 2017 | $87,310 | $36,900 | $0 | $124,210 | $124,210 |
| 2016 | $62,520 | $36,900 | $0 | $99,420 | $99,420 |
| 2015 | $62,520 | $36,900 | $0 | $99,420 | $99,420 |
| 2014 | $52,100 | $36,900 | $0 | $89,000 | $89,000 |
| 2013 | $52,100 | $36,900 | $0 | $89,000 | $89,000 |
| 2012 | $49,700 | $36,900 | $0 | $0 | $0 |
| 2011 | $49,700 | $36,900 | $0 | $0 | $0 |
| 2010 | $65,000 | $36,900 | $0 | $0 | $0 |
| 2009 | $83,000 | $36,900 | $0 | $0 | $0 |
| 2008 | $83,000 | $36,900 | $0 | $0 | $0 |
| 2007 | $57,200 | $12,300 | $0 | $0 | $0 |
Deed and Sales History
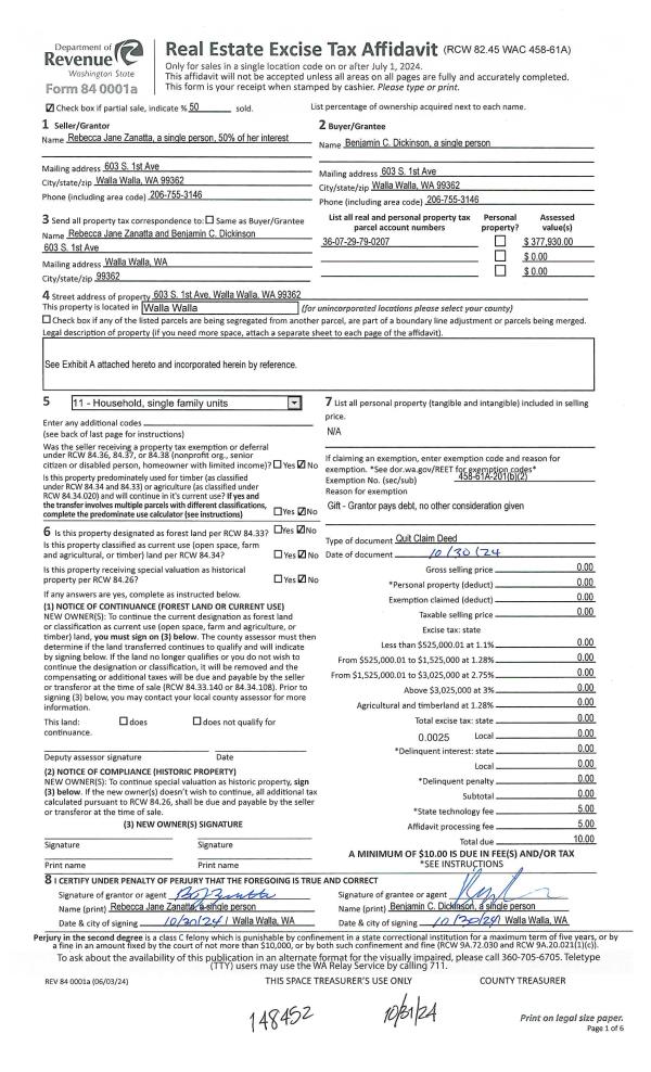
| 1 | 10/31/2024 | QCD | QUIT CLAIM DEED | ZANATTA REBECCA JANE | ZANATTA REBECCA JANE & BENJAMIN C DICKINSON | | | | 148452 | 2024-06369 |
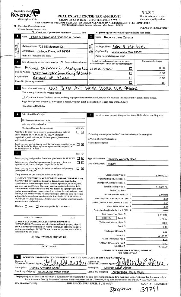
| 2 | 08/28/2020 | SWD | STATUTORY WARRANTY DEED | BROWN PHILIP A & SHANNON A | ZANATTA REBECCA JANE | | | $310,000.00 | 139791 | 2020-08675 |
| 3 | 03/31/2017 | SWD | STATUTORY WARRANTY DEED | MOUNTAIN WANDA | BROWN PHILIP A & SHANNON A | | | $185,000.00 | 132135 | 2017-02477 |
| 4 | 03/10/2009 | QCD | QUIT CLAIM DEED | HILLMAN, CARMEN K | MOUNTAIN, WANDA | | | | 116448 | 2009-02303 |
| 5 | 06/01/1983 | QCD | QUIT CLAIM DEED | | | | | $35,000.00 | 0 | 1839-004838 |
Payout Agreement
| No payout information available.. |