Property
Account |
| Property ID: | 10953 | Abbreviated Legal Description: | SINGLETONS 2ND TAX 1 LOT 1 BLK 2 |
| Parcel Number: | 360729790201 | Agent Code: | |
| Type: | Real | | |
| Tax Area: | 1 - OL-140-F | Land Use Code | 11 |
| Open Space: | N | DFL | N |
| Historic Property: | N | Remodel Property: | N |
| Multi-Family Redevelopment: | N | | |
| Township: | 7 | Section: | 29 |
| Range: | 36 |
Location |
| Address: | 117 E CHESTNUT ST WA 99362 | Mapsco: | |
| Neighborhood: | A-SFR | Map ID: | |
| Neighborhood CD: | 513011 |
Owner |
| Name: | WATKINS JEREMY | Owner ID: | 62924 |
| Mailing Address: | 40350 US HIGHWAY 12 NACHES, WA 98937-9542 | % Ownership: | 100.0000000000% |
| | | Exemptions: | |
Taxes and Assessment Details
Values
| (+) Improvement Homesite Value: | + | $0 | |
| (+) Improvement Non-Homesite Value: | + | $253,280 | |
| (+) Land Homesite Value: | + | $0 | |
| (+) Land Non-Homesite Value: | + | $36,290 | |
| (+) Curr Use (HS): | + | $0 | $0 |
| (+) Curr Use (NHS): | + | $0 | $0 |
| | | -------------------------- | |
| (=) Market Value: | = | $289,570 | |
| (–) Productivity Loss: | – | $0 | |
| | | -------------------------- | |
| (=) Subtotal: | = | $289,570 | |
| (+) Senior Appraised Value: | + | $0 | |
| (+) Non-Senior Appraised Value: | + | $289,570 | |
| | | -------------------------- | |
| (=) Total Appraised Value: | = | $289,570 | |
| (–) Senior Exemption Loss: | – | $0 | |
| (–) Exemption Loss: | – | $0 | |
| | | -------------------------- | |
| (=) Taxable Value: | = | $289,570 | |
Taxing Jurisdiction
| Owner: | WATKINS JEREMY | | |
| % Ownership: | 100.0000000000% | | |
| Total Value: | $289,570 | | |
| Tax Area: | 1 - OL-140-F |
| CERFD | CURRENT EXPENSE REFUND 010 | 0.0000000000 | $289,570 | $289,570 | $0.00 | | |
| CURREXP | CURRENT EXPENSE 010 | 1.0175366760 | $289,570 | $289,570 | $294.65 | | |
| HUMNSERV | HUMAN SERVICES 119 | 0.0250000000 | $289,570 | $289,570 | $7.24 | | |
| SLDREL | SOLDIERS RELIEF 121 | 0.0155990005 | $289,570 | $289,570 | $4.52 | | |
| EMERGSER | EMS 147 | 0.3792580840 | $289,570 | $289,570 | $109.82 | | |
| EMSRFD | EMS REFUND 147 | 0.0000000000 | $289,570 | $289,570 | $0.00 | | |
| PORTRFD | PORT REFUND 640 | 0.0000000000 | $289,570 | $289,570 | $0.00 | | |
| PORTWWGEN | PORT OF WW 640 | 0.2460186015 | $289,570 | $289,570 | $71.24 | | |
| SD140BOND | SD #140 BOND 764 | 0.8342371393 | $289,570 | $289,570 | $241.57 | | |
| SD140GEN | SD #140 GENERAL 760 | 2.0646500647 | $289,570 | $289,570 | $597.86 | | |
| ST2 | STATE SCHOOL PART 2 600 | 0.8131451643 | $289,570 | $289,570 | $235.46 | | |
| STATESCHL | STATE SCHOOL 600 | 1.5158548041 | $289,570 | $289,570 | $438.95 | | |
| STREFUND | STATE REFUND LEVY 603 | 0.0000000000 | $289,570 | $289,570 | $0.00 | | |
| CWWBOND | C OF WW BOND 643 | 0.2760494372 | $289,570 | $289,570 | $79.94 | | |
| CWWGEN | CITY OF WW 631 | 1.6100204973 | $289,570 | $289,570 | $466.21 | | |
| CWWRFD | CITY OF WALLA WALLA REFUND 631 | 0.0000000000 | $289,570 | $289,570 | $0.00 | | |
| | Total Tax Rate: | 8.7973694689 | | | | | |
| | | | | Taxes w/Current Exemptions: | $2,547.46 | | |
| | | | | Taxes w/o Exemptions: | $2,547.46 | | |
Improvement / Building
| Improvement #1: | RESIDENTIAL | State Code: | 11 | 1658.0 sqft | Value: | $253,280 |
| Exterior Wall: | SIDING | Heating/Cooling: | FORCED AIR | | Number of Bathrooms: | 2 | Number of Bedrooms: | 4 | | Plumbing: | 10 | Roof Covering: | COMP SHINGLE |
|
| | Type | Description | Class CD | Sub Class CD | Year Built | Area |
| | MA | Main Area | 4 | 30 | 1901 | 1658.0 |
| | UPFL | Upper Floor (included in main area) | 4 | 30 | 1901 | 576.0 |
| | SI1 | SITE IMPROVEMENT | 4 | 30 | 1901 | 1.0 |
| | BASE | BASEMENT | 4 | 30 | 1901 | 120.0 |
| | RCD | WOOD DECK W/ROOF, CEILED | 4 | 30 | 1901 | 70.0 |
| | DTG | Detached Garage | 4 | 30 | 1901 | 320.0 |
Sketch
Property Image
Land
| 1 | RES 1 | Converted: Residential | 0.1333 | 5807.00 | 0.00 | 0.00 | 1.00 | $36,290 | $0 |
Roll Value History
| 2026 | N/A | N/A | N/A | N/A | N/A |
| 2025 | $111,300 | $58,070 | $0 | $169,370 | $169,370 |
| 2024 | $111,300 | $58,070 | $0 | $169,370 | $169,370 |
| 2023 | $253,280 | $36,290 | $0 | $289,570 | $289,570 |
| 2022 | $230,260 | $36,290 | $0 | $266,550 | $266,550 |
| 2021 | $170,560 | $36,290 | $0 | $206,850 | $206,850 |
| 2020 | $131,200 | $36,290 | $0 | $167,490 | $167,490 |
| 2019 | $131,200 | $36,290 | $0 | $167,490 | $167,490 |
| 2018 | $71,010 | $36,290 | $0 | $107,300 | $107,300 |
| 2017 | $72,500 | $34,800 | $0 | $107,300 | $107,300 |
| 2016 | $72,500 | $34,800 | $0 | $107,300 | $107,300 |
| 2015 | $72,500 | $34,800 | $0 | $107,300 | $107,300 |
| 2014 | $72,500 | $34,800 | $0 | $107,300 | $107,300 |
| 2013 | $72,500 | $34,800 | $0 | $107,300 | $107,300 |
| 2012 | $68,100 | $34,800 | $0 | $0 | $0 |
| 2011 | $86,300 | $34,800 | $0 | $0 | $0 |
| 2010 | $86,300 | $34,800 | $0 | $0 | $0 |
| 2009 | $107,700 | $34,800 | $0 | $0 | $0 |
| 2008 | $107,700 | $34,800 | $0 | $0 | $0 |
| 2007 | $86,500 | $11,600 | $0 | $0 | $0 |
Deed and Sales History
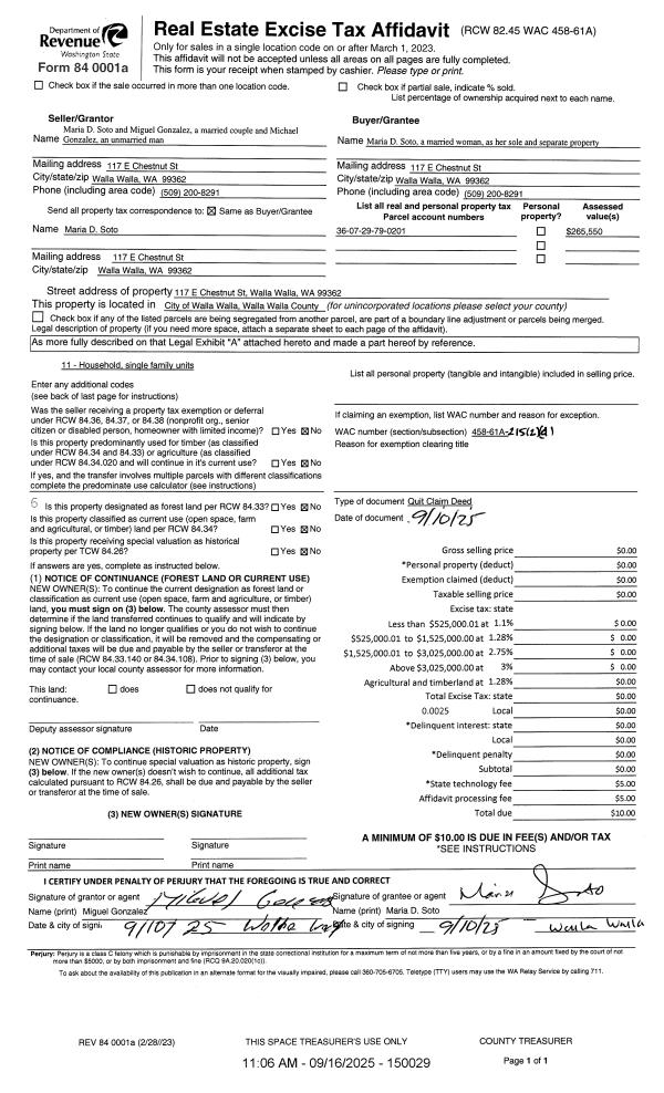
| 1 | 09/16/2025 | QCD | QUIT CLAIM DEED | SOTO MARIA D & MIGUEL GONZALEZ | SOTO MARIA D | | | | 150029 | 2025-05602 |
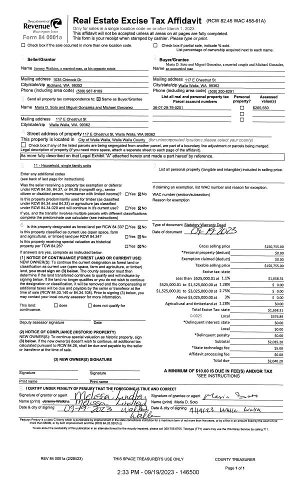
| 2 | 09/19/2023 | SWD | STATUTORY WARRANTY DEED | WATKINS JEREMY | SOTO MARIA D & MIGUEL GONZALEZ | | | $150,755.00 | 146500 | 2023-05480 |
| 3 | 04/11/2018 | QCD | QUIT CLAIM DEED | WATKINS MARISOL | WATKINS JEREMY | | | | 134492 | 2018-02833 |
| 4 | 04/12/2018 | SWD | STATUTORY WARRANTY DEED | TORRESCANO MOSES C & TAMMIE | WATKINS JEREMY | | | $90,000.00 | 134491 | 2018-02832 |
| 5 | 10/03/1994 | WARRANTY D | WARRANTY DEED | | | | | $45,000.00 | 82718 | 2239-411550 |
Payout Agreement
| No payout information available.. |