Property
Account |
| Property ID: | 10901 | Abbreviated Legal Description: | MENLO PARK LOT 1 |
| Parcel Number: | 360729750001 | Agent Code: | |
| Type: | Real | | |
| Tax Area: | 1 - OL-140-F | Land Use Code | 11 |
| Open Space: | N | DFL | N |
| Historic Property: | N | Remodel Property: | N |
| Multi-Family Redevelopment: | N | | |
| Township: | 7 | Section: | 29 |
| Range: | 36 |
Location |
| Address: | 116 THORNE ST WA 99362 | Mapsco: | |
| Neighborhood: | G-SFR | Map ID: | |
| Neighborhood CD: | 514011 |
Owner |
| Name: | SMITH JASON MICHAEL | Owner ID: | 71639 |
| Mailing Address: | BREANA KRISTINA GRACE SMITH 116 THORNE ST WALLA WALLA, WA 99362 | % Ownership: | 100.0000000000% |
| | | Exemptions: | |
Taxes and Assessment Details
Values
| (+) Improvement Homesite Value: | + | $0 | |
| (+) Improvement Non-Homesite Value: | + | $915,650 | |
| (+) Land Homesite Value: | + | $0 | |
| (+) Land Non-Homesite Value: | + | $52,200 | |
| (+) Curr Use (HS): | + | $0 | $0 |
| (+) Curr Use (NHS): | + | $0 | $0 |
| | | -------------------------- | |
| (=) Market Value: | = | $967,850 | |
| (–) Productivity Loss: | – | $0 | |
| | | -------------------------- | |
| (=) Subtotal: | = | $967,850 | |
| (+) Senior Appraised Value: | + | $0 | |
| (+) Non-Senior Appraised Value: | + | $967,850 | |
| | | -------------------------- | |
| (=) Total Appraised Value: | = | $967,850 | |
| (–) Senior Exemption Loss: | – | $0 | |
| (–) Exemption Loss: | – | $0 | |
| | | -------------------------- | |
| (=) Taxable Value: | = | $967,850 | |
Taxing Jurisdiction
| Owner: | SMITH JASON MICHAEL | | |
| % Ownership: | 100.0000000000% | | |
| Total Value: | $967,850 | | |
| Tax Area: | 1 - OL-140-F |
| CERFD | CURRENT EXPENSE REFUND 010 | 0.0000000000 | $967,850 | $967,850 | $0.00 | | |
| CURREXP | CURRENT EXPENSE 010 | 1.0175366760 | $967,850 | $967,850 | $984.82 | | |
| HUMNSERV | HUMAN SERVICES 119 | 0.0250000000 | $967,850 | $967,850 | $24.20 | | |
| SLDREL | SOLDIERS RELIEF 121 | 0.0155990005 | $967,850 | $967,850 | $15.10 | | |
| EMERGSER | EMS 147 | 0.3792580840 | $967,850 | $967,850 | $367.06 | | |
| EMSRFD | EMS REFUND 147 | 0.0000000000 | $967,850 | $967,850 | $0.00 | | |
| PORTRFD | PORT REFUND 640 | 0.0000000000 | $967,850 | $967,850 | $0.00 | | |
| PORTWWGEN | PORT OF WW 640 | 0.2460186015 | $967,850 | $967,850 | $238.11 | | |
| SD140BOND | SD #140 BOND 764 | 0.8342371393 | $967,850 | $967,850 | $807.42 | | |
| SD140GEN | SD #140 GENERAL 760 | 2.0646500647 | $967,850 | $967,850 | $1,998.27 | | |
| ST2 | STATE SCHOOL PART 2 600 | 0.8131451643 | $967,850 | $967,850 | $787.00 | | |
| STATESCHL | STATE SCHOOL 600 | 1.5158548041 | $967,850 | $967,850 | $1,467.12 | | |
| STREFUND | STATE REFUND LEVY 603 | 0.0000000000 | $967,850 | $967,850 | $0.00 | | |
| CWWBOND | C OF WW BOND 643 | 0.2760494372 | $967,850 | $967,850 | $267.17 | | |
| CWWGEN | CITY OF WW 631 | 1.6100204973 | $967,850 | $967,850 | $1,558.26 | | |
| CWWRFD | CITY OF WALLA WALLA REFUND 631 | 0.0000000000 | $967,850 | $967,850 | $0.00 | | |
| | Total Tax Rate: | 8.7973694689 | | | | | |
| | | | | Taxes w/Current Exemptions: | $8,514.53 | | |
| | | | | Taxes w/o Exemptions: | $8,514.53 | | |
Improvement / Building
| Improvement #1: | RESIDENTIAL | State Code: | 11 | 2167.0 sqft | Value: | $915,650 |
| Exterior Wall: | METAL/STEEL | Heating/Cooling: | WARM & COOLED AIR | | Number of Bathrooms: | 3.5 | Number of Bedrooms: | 3 | | Plumbing: | 15 | Roof Covering: | COMP SHINGLE |
|
| | Type | Description | Class CD | Sub Class CD | Year Built | Area |
| | MA | Main Area | 4 | 45 | 1907 | 2167.0 |
| | UPFL | Upper Floor (included in main area) | 4 | 45 | 1907 | 783.0 |
| | SI1 | SITE IMPROVEMENT | 4 | 45 | 1907 | 3.5 |
| | BASE | BASEMENT | 4 | 45 | 1907 | 1384.0 |
| | BPF | BASEMENT -PARTITIONED FINISH | 4 | 45 | 2021 | 1064.0 |
| | S2F | Single 2S Fireplace | 4 | 45 | 1907 | 2.0 |
| | RCD | WOOD DECK W/ROOF, CEILED | 4 | 45 | 1907 | 72.0 |
| | RCD | WOOD DECK W/ROOF, CEILED | 4 | 45 | 1907 | 304.0 |
| | DTG | Detached Garage | 4 | 45 | 1907 | 228.0 |
Sketch
Property Image
Land
| 1 | RES 1 | Converted: Residential | 0.1653 | 7200.00 | 0.00 | 0.00 | 1.00 | $52,200 | $0 |
Roll Value History
| 2026 | N/A | N/A | N/A | N/A | N/A |
| 2025 | $895,700 | $79,200 | $0 | $974,900 | $974,900 |
| 2024 | $895,700 | $79,200 | $0 | $974,900 | $974,900 |
| 2023 | $915,650 | $52,200 | $0 | $967,850 | $967,850 |
| 2022 | $832,410 | $52,200 | $0 | $884,610 | $884,610 |
| 2021 | $436,500 | $52,200 | $0 | $488,700 | $488,700 |
| 2020 | $363,750 | $52,200 | $0 | $415,950 | $415,950 |
| 2019 | $363,750 | $52,200 | $0 | $415,950 | $415,950 |
| 2018 | $363,750 | $52,200 | $0 | $415,950 | $415,950 |
| 2017 | $299,090 | $28,800 | $0 | $327,890 | $327,890 |
| 2016 | $271,900 | $28,800 | $0 | $300,700 | $300,700 |
| 2015 | $271,900 | $28,800 | $0 | $300,700 | $300,700 |
| 2014 | $271,900 | $28,800 | $0 | $300,700 | $300,700 |
| 2013 | $271,900 | $28,800 | $0 | $300,700 | $300,700 |
| 2012 | $271,900 | $28,800 | $0 | $0 | $0 |
| 2011 | $257,600 | $28,800 | $0 | $0 | $0 |
| 2010 | $257,600 | $28,800 | $0 | $0 | $0 |
| 2009 | $289,400 | $28,800 | $0 | $0 | $0 |
| 2008 | $275,000 | $43,200 | $0 | $0 | $0 |
| 2007 | $182,200 | $14,400 | $0 | $0 | $0 |
Deed and Sales History
| 1 | 05/16/2022 | SWD | STATUTORY WARRANTY DEED | HARMON VINE PROPERTIES LLC | SMITH JASON MICHAEL | | | $1,100,000.00 | 143944 | 2022-04140 |
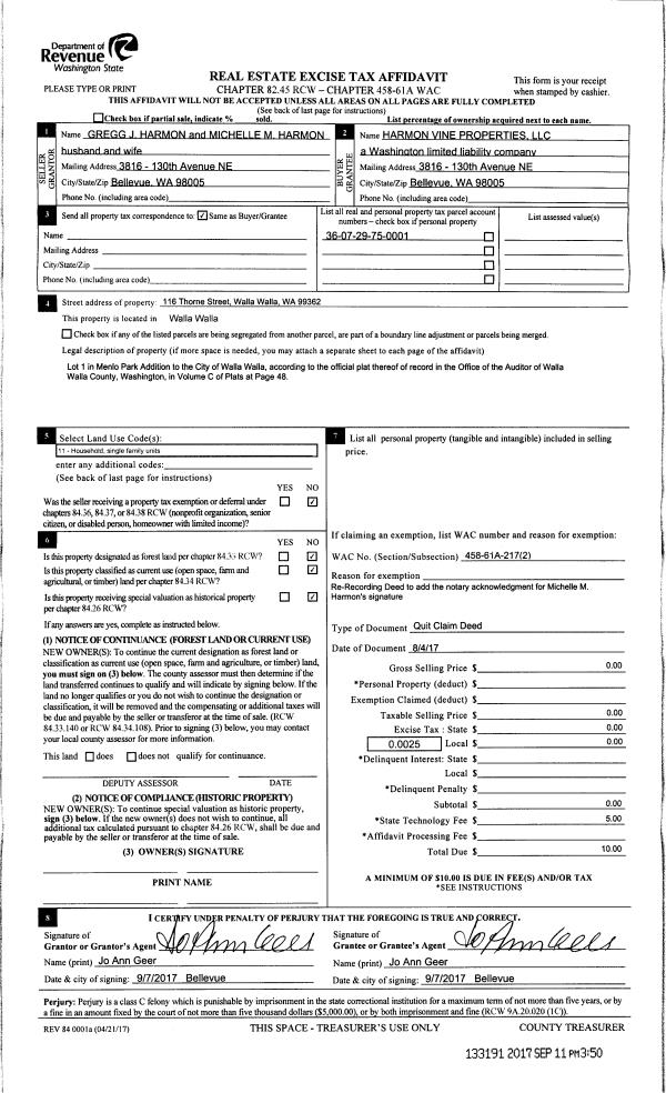
| 2 | 09/04/2017 | QCD | QUIT CLAIM DEED | HARMON GREGG J & MICHELLE M | HARMON VINE PROPERTIES LLC | | | $0.00 | 133191 | 2017-07151 |
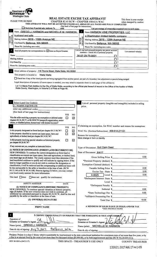
| 3 | 08/04/2014 | QCD | QUIT CLAIM DEED | HARMON GREGG J & MICHELLE M | HARMON VINE PROPERTIES LLC | | | $0.00 | 133021 | 2017-06390 |
| 4 | 07/06/2017 | SWD | STATUTORY WARRANTY DEED | KAMMER RONALD D | HARMON GREGG J & MICHELLE M | | | $350,000.00 | 132731 | 2017-05194 |
| 5 | 06/02/1993 | WARRANTY D | WARRANTY DEED | | | | | $120,000.00 | 79228 | 2079-305471 |
Payout Agreement
| No payout information available.. |