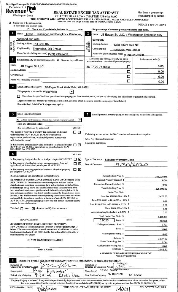
Property
Account |
| Property ID: | 10876 | Abbreviated Legal Description: | JONES LOT 3 AND W1/2 OF LOT 4 LESS ALLEY |
| Parcel Number: | 360729710003 | Agent Code: | |
| Type: | Real | | |
| Tax Area: | 1 - OL-140-F | Land Use Code | 13 |
| Open Space: | N | DFL | N |
| Historic Property: | N | Remodel Property: | N |
| Multi-Family Redevelopment: | N | | |
| Township: | 7 | Section: | 29 |
| Range: | 36 |
Location |
| Address: | 249 EAGAN ST WA 99362 | Mapsco: | |
| Neighborhood: | A+ Res Apartment | Map ID: | |
| Neighborhood CD: | 513221 |
Owner |
| Name: | JB EAGAN ST LLC | Owner ID: | 68034 |
| Mailing Address: | 1338 183RD AVE NE BELLEVUE, WA 98008 | % Ownership: | 100.0000000000% |
| | | Exemptions: | |
Taxes and Assessment Details
Property Tax Information as of
04/19/2026
Click on "Statement Details" to expand or collapse a tax statement.
* Please enter a valid date ** Please enter a valid date *
Statement Details |
| | TOTAL: | $0.00 | $0.00 | $0.00 | $0.00 | $0.00 | $0.00 |
|
| | $0.00 | $0.00 | $0.00 | $0.00 | $0.00 | $0.00 |
Values
| (+) Improvement Homesite Value: | + | $0 | |
| (+) Improvement Non-Homesite Value: | + | $331,200 | |
| (+) Land Homesite Value: | + | $0 | |
| (+) Land Non-Homesite Value: | + | $58,590 | |
| (+) Curr Use (HS): | + | $0 | $0 |
| (+) Curr Use (NHS): | + | $0 | $0 |
| | | -------------------------- | |
| (=) Market Value: | = | $389,790 | |
| (–) Productivity Loss: | – | $0 | |
| | | -------------------------- | |
| (=) Subtotal: | = | $389,790 | |
| (+) Senior Appraised Value: | + | $0 | |
| (+) Non-Senior Appraised Value: | + | $389,790 | |
| | | -------------------------- | |
| (=) Total Appraised Value: | = | $389,790 | |
| (–) Senior Exemption Loss: | – | $0 | |
| (–) Exemption Loss: | – | $0 | |
| | | -------------------------- | |
| (=) Taxable Value: | = | $389,790 | |
Taxing Jurisdiction
| Owner: | JB EAGAN ST LLC | | |
| % Ownership: | 100.0000000000% | | |
| Total Value: | $389,790 | | |
| Tax Area: | 1 - OL-140-F |
| CERFD | CURRENT EXPENSE REFUND 010 | 0.0000000000 | $389,790 | $389,790 | $0.00 | | |
| CURREXP | CURRENT EXPENSE 010 | 1.0175366760 | $389,790 | $389,790 | $396.63 | | |
| HUMNSERV | HUMAN SERVICES 119 | 0.0250000000 | $389,790 | $389,790 | $9.74 | | |
| SLDREL | SOLDIERS RELIEF 121 | 0.0155990005 | $389,790 | $389,790 | $6.08 | | |
| EMERGSER | EMS 147 | 0.3792580840 | $389,790 | $389,790 | $147.83 | | |
| EMSRFD | EMS REFUND 147 | 0.0000000000 | $389,790 | $389,790 | $0.00 | | |
| PORTRFD | PORT REFUND 640 | 0.0000000000 | $389,790 | $389,790 | $0.00 | | |
| PORTWWGEN | PORT OF WW 640 | 0.2460186015 | $389,790 | $389,790 | $95.90 | | |
| SD140BOND | SD #140 BOND 764 | 0.8342371393 | $389,790 | $389,790 | $325.18 | | |
| SD140GEN | SD #140 GENERAL 760 | 2.0646500647 | $389,790 | $389,790 | $804.78 | | |
| ST2 | STATE SCHOOL PART 2 600 | 0.8131451643 | $389,790 | $389,790 | $316.96 | | |
| STATESCHL | STATE SCHOOL 600 | 1.5158548041 | $389,790 | $389,790 | $590.87 | | |
| STREFUND | STATE REFUND LEVY 603 | 0.0000000000 | $389,790 | $389,790 | $0.00 | | |
| CWWBOND | C OF WW BOND 643 | 0.2760494372 | $389,790 | $389,790 | $107.60 | | |
| CWWGEN | CITY OF WW 631 | 1.6100204973 | $389,790 | $389,790 | $627.57 | | |
| CWWRFD | CITY OF WALLA WALLA REFUND 631 | 0.0000000000 | $389,790 | $389,790 | $0.00 | | |
| | Total Tax Rate: | 8.7973694689 | | | | | |
| | | | | Taxes w/Current Exemptions: | $3,429.14 | | |
| | | | | Taxes w/o Exemptions: | $3,429.14 | | |
Improvement / Building
| Improvement #1: | RESIDENTIAL | State Code: | 13 | 3590.0 sqft | Value: | $331,200 |
| Exterior Wall: | SIDING | Heating/Cooling: | MINI-SPLIT HP SYSTEM | | Number of Bathrooms: | 6 | Number of Bedrooms: | 6 | | Plumbing: | 25 | Roof Covering: | COMP SHINGLE |
|
| | Type | Description | Class CD | Sub Class CD | Year Built | Area |
| | MA | Main Area | 7 | 30 | 1906 | 3590.0 |
| | UPFL | Upper Floor (included in main area) | 7 | 30 | 1906 | 1254.0 |
| | UPFL | Upper Floor (included in main area) | 7 | 30 | 1906 | 768.0 |
| | SI1 | SITE IMPROVEMENT | 7 | 30 | 1906 | 3.5 |
| | RCD | WOOD DECK W/ROOF, CEILED | 7 | 30 | 1906 | 264.0 |
| | BASE | BASEMENT | 7 | 30 | 1906 | 1254.0 |
Sketch
Property Image
Land
| 1 | RES 1 | Converted: Residential | 0.2152 | 9375.00 | 0.00 | 0.00 | 1.00 | $58,590 | $0 |
Roll Value History
| 2026 | N/A | N/A | N/A | N/A | N/A |
| 2025 | $321,100 | $84,400 | $0 | $405,500 | $405,500 |
| 2024 | $321,100 | $76,900 | $0 | $398,000 | $398,000 |
| 2023 | $331,200 | $58,590 | $0 | $389,790 | $389,790 |
| 2022 | $195,840 | $58,590 | $0 | $254,430 | $254,430 |
| 2021 | $163,200 | $58,590 | $0 | $221,790 | $221,790 |
| 2020 | $130,560 | $58,590 | $0 | $189,150 | $189,150 |
| 2019 | $130,560 | $58,590 | $0 | $189,150 | $189,150 |
| 2018 | $130,560 | $58,590 | $0 | $189,150 | $189,150 |
| 2017 | $128,400 | $46,600 | $0 | $175,000 | $175,000 |
| 2016 | $128,400 | $46,600 | $0 | $175,000 | $175,000 |
| 2015 | $128,400 | $46,600 | $0 | $175,000 | $175,000 |
| 2014 | $128,400 | $46,600 | $0 | $175,000 | $175,000 |
| 2013 | $128,400 | $46,600 | $0 | $175,000 | $175,000 |
| 2012 | $128,400 | $46,600 | $0 | $0 | $0 |
| 2011 | $128,400 | $46,600 | $0 | $0 | $0 |
| 2010 | $128,400 | $46,600 | $0 | $0 | $0 |
| 2009 | $147,800 | $46,600 | $0 | $0 | $0 |
| 2008 | $147,800 | $46,600 | $0 | $0 | $0 |
| 2007 | $83,500 | $23,400 | $0 | $0 | $0 |
Deed and Sales History
| 1 | 09/30/2020 | SWD | STATUTORY WARRANTY DEED | KISSINGER RYAN J & BONGKOCH | JB EAGAN ST LLC | | | $225,000.00 | 140011 | 2020-10070 |
| 2 | 10/13/2020 | WARRANTY D | WARRANTY DEED | ADAMSON JOYCE A | KISSINGER RYAN J & BONGKOCH | | | | 125791 | 2020-10591 |
| 3 | 04/30/2014 | REAL ESTAT | REAL ESTATE CONTRACT | ADAMSON JOYCE A | KISSINGER RYAN J & BONGKOCH | 2-PARCELS | | $350,000.00 | 125791 | 2014-02891 |
|   | |
| 4 | 10/31/1985 | WARRANTY D | WARRANTY DEED | | | | | $55,000.00 | 0 | 1057-905070 |
Payout Agreement
| No payout information available.. |